Uitslag 'Wonen op Niveau' Roombeek

6 april 2004, 16:53
Zaterdag 3 april jl. heeft burgemeester Mans van Enschede in aanwezigheid van meer dan 300 belangstellenden de prijzen uitgereikt voor de ideeënprijsvraag ‘Wonen op Niveau’. De prijsvraag is uitgeschreven onder jonge Nederlandse en Vlaamse architecten. 167 architecten hebben een ontwerp ingediend. Er zijn twintig eervolle vermeldingen en acht prijswinnaars. De acht winnaars zijn: ENR (Ester Stuyck; Turnhout België), Vlinder (Ralph Pasel; Rotterdam), R4500 (Ralph Janssen; Sint Oedenode), Espresso (Roland van Bussel; Maastricht), Domus (Sylvie Smeets; Beek), 2 in 1(Marc Prosman, Suasso de Lima de Prado, Jorrit Houert; Amsterdam), Ensuite (Jan Dittmar; Amsterdam), Nabuurhuis - Samenwonen (Brian Scott; Den Haag). Alle winnaars krijgen een cheque van € 5.000,-
Alle 167 plannen zijn samengebracht in het Ideeënboek Wonen op niveau. Het boek is vanaf 3 april verkrijgbaar voor € 5 bij het Informatiecentrum Roombeek. De tentoonstelling van de ontwerpen is tot en met 2 mei te zien in het Informatiecentrum.
Planbeschrijvingen uit juryrapport en namen prijswinnaars

ENR, Ester Stuyck, Turnhout, Belgie
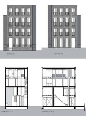
Wonen op niveau, zowel letterlijk als figuurlijk. Een interessant huis, geïnspireerd op het klassieke herenhuis. Dit ontwerp getuigt van inlevingsvermogen: beneden werken en boven wonen. De gebruikswaarde van het werkgedeelte beneden en in de kelder, met de in de achtertuin verdiepte patio, is hoog en geschikt voor vele doeleinden. De boven gelegen privé-vertrekken zijn voldoende afgeschermd. De jury was unaniem in haar oordeel dat ‘Wonen op Niveau’ een boeiend en compleet ontwerp is.

Vlinder, Ralph Pasel, Rotterdam
Een goed ontwerp behoeft weinig woorden. Zo is ook de plantoelichting uiterst beknopt. De ontwerper is erin geslaagd om in de categorie ‘smalle beukbreedte’ een volwaardig herenhuis met een deftige uitstraling te bedenken. Dit is zowel zichtbaar in de uitwerking van de binnenruimten als in de vormgeving van de gevels. De jury was meteen enthousiast.

R4500, Ralph Janssen, Sint Oedenrode
R4500 is een specifiek voor de opdrachtgever met een kleinere beurs ontworpen 4.5 meter brede woning. Toch levert dit smalle huis een hoog rendement op. De kelderruimte is volledig benut en de bovenste verdiepingen kunnen wachten op latere invulling. Zelfs verhuur aan derden, bijvoorbeeld studenten is mogelijk. Uit financieel oogpunt gezien een slim concept. Naar het oordeel van de jury is R4500 een goed doordacht en origineel ontwerp.

Espresso, Roland van Bussel, Maastricht
De summiere plantoelichting en de verwijzing naar het machinale koffiezetapparaat als metafoor voor het gezinsleven roepen weliswaar vragen op, maar bij nadere bestudering blijkt het een prima ontwerp. De transparante luiken verwijzen naar de vroegere pakhuizen. De jury vindt het ontwerp een aanwinst voor de straatwand.

Domus, Sylvie Smeets, Beek
Door toepassing van een utilitaire unit, hier accu genoemd, ontstaan vrij indeelbare grote ruimten die nog worden versterkt door zijdelingse ontsluiting langs alle verdiepingen. Deze ontsluitingscorridor wordt afgescheiden en belicht door een matglazen wand. Geluid- en klimaatbeheersing vragen om extra aandacht. Ook de belevingswaarde van de accu roept vragen op. Toch was de jury overtuigd van de helderheid van het concept en de maximale benutting van het beschikbare volume.

2 in 1, Marc Prosman, Suasso de Lima de Prado, Jorrit Houert, Amsterdam
Je proeft de ervaring van de ontwerpers met 19e eeuwse gestapelde appartementen in dit plan. Hierdoor is collectief opdrachtgeverschap mogelijk. Financieel gezien kan dit een interessante optie zijn. Het ontwerp is sober en praktisch. Het ontbreken van een kelder vindt de jury een gemiste kans. Het parkeren, zeker bij twee appartementen, verdient meer aandacht. De jury besloot de programmatische invulling zwaarder te laten wegen dan de architectonische uitwerking.

Ensuite, Jan Dittmar, Amsterdam
Een tijdloos en statig herenhuis zonder franje. Dit huis kan zo gebouwd worden. De opstelling van de ontwerper is zo bescheiden dat hij de definitieve detaillering afhankelijk stelt van de wensen van de opdrachtgever. Blijkbaar is het mogelijk een volwaardig huis te ontwerpen zonder alle functies in te vullen. De jury was onder de indruk van de kracht van de eenvoud.

Nabuurhuis – Samenwonen, Brian Scott, Den Haag
Bij dit ontwerp overtuigt de programmatische opbouw zeer. De creatieve benutting van de weliswaar brede kavel is geschikt voor meervoudig gebruik. Dit biedt ook kansen voor verschillende financieringsconstructies. Het kostte de jury enige moeite om het plan te doorgronden. Ook werd niet duidelijk hoe de gevel eruit komt te zien. De jury vindt het van groot belang dat een scala aan verschillende plannen onder de aandacht van opdrachtgevers wordt gebracht. In die zin is dit ontwerp een gewenste bijdrage.

Gerelateerde nieuwsberichten

Andere nieuwsberichten

Kraaijvanger Architects aan de slag met renovatie Station Zuidplein

24 december, 9:00

Concrete ontwerpt woongebouw in Philadelphia met gevelkunst door tattoo-artist Henk Schiffmacher

23 december, 12:00

Rotterdamse Academie van Bouwkunst stelt twee curatoren aan om thematische lijnen te ontwikkelen

22 december, 11:20

Den Haag ziet ruimte voor meer woningen in gebied Laakhavens-Hollands Spoor

19 december, 3:15

Fijne feestdagen en een gelukkig, gezond en succesvol 2026!

24 december, 1:00

Provincie Zuid-Holland: stroom van zee via Hoek van Holland naar Rotterdamse haven

23 december, 5:00

DNR geactualiseerd naar hedendaagse praktijk

19 december, 4:03

Inschrijving voor tiende editie Architectuurprijs Nijmegen geopend

19 december, 1:17

Tweede Kamer schuift aanpassing huurwet door naar nieuw kabinet

19 december, 9:13

Faillissement V&D laat nog altijd sporen na in winkelgebieden

18 december, 12:03
ATAG Nederland
KUBUS | Specialist in BIM-software
SAPA
Reynaers Aluminium Nederland
Jansen
SAB-profiel bv
Aliplast Aluminium Systems
Kingspan Light & Air
Hagemeister GmbH & Co. KG
ALUCOBOND®
Tarkett BV
Kawneer
Grohe Nederland B.V.
Malaysian Timber Council
OCS | Office Cabling Systems
Swisspearl Nederland
Forster Nederland N.V.
VELUX Commercial Benelux B.V.
Sempergreen
Houthandel van Dam
Aluprof Nederland BV
QbiQ Wall Systems
Forbo Flooring
Schüco Nederland
Cedral
Sto Isoned bv
Triflex bv
Gorter Luiken BV
wienerberger
Knauf Insulation
DUCO Ventilation & Sun Control
BEWI IsoBouw
Mview+
Rockfon (ROCKWOOL B.V.)
Gira Nederland B.V.
Kingspan Geïsoleerde Panelen
GEZE Benelux  B.V.
Renson
Metaglas Groep
ABB | Busch-Jaeger
Jung | Hateha B.V.
Knauf B.V.
Saint-Gobain Glass Benelux
Faay Vianen B.V.
objectflor
Boon Edam Nederland B.V.
Hunter Douglas Architectural
VOLA Nederland BV
Forbo Eurocol Nederland B.V.
EQUITONE gevelpanelen
Holonite B.V.
AXOR + hansgrohe
Tata Steel Colorcoat®
Architectenweb
Over ons
Contact

© 2002 - 2025 Architectenweb BV / Voorwaarden / Privacy / Disclaimer / Sitemap
Annuleren
OK
Sluiten
Doorgaan
Inloggen
Maak een gratis persoonlijk account aan