Projecten
Producten
Bedrijven
Vacatures
Agenda
Awards
Podcasts
more_horiz
Videos
Magazine
Favorieten
Profiel
Uitloggen
Abonneer je nu op onze nieuwsbrieven!
Abonneren
Nee, bedankt
Ja, denk met me mee rond de
materialisering van mijn project
Producten
Copyright: KUBUS | Specialist in Archicad
Copyright: KUBUS | Specialist in Archicad
Copyright: KUBUS | Specialist in Archicad
Copyright: KUBUS | Specialist in Archicad
Producttags
AAN
UIT
Architects in Motion over abdijrenovatie
12 maart
0
0
0
0
De Abdij van Onze Lieve Vrouw van Nazareth (Brecht) is in 1952 in neoromaanse stijl door de Paters Trappisten van Westmalle gebouwd. Destijds woonden en werkten er 120 trappistinnen; momenteel zijn dat er nog 22 en is het klooster te groot voor de gemeenschap geworden. De zusters zochten naar manieren om comfortabeler en compacter te wonen, zonder hun gewoontes, geloofsritme en rust te verliezen. Die zoektocht leidde naar
Architects in Motion
(AIM) en naar een uniek renovatietraject waarin
Archicad,
BIM en VR een belangrijke meerwaarde leverden.
Hoewel de architecten van AIM breed georiënteerd zijn, vonden ze de renovatie van de Abdij van Brecht toch wel een heel speciale opdracht. “De trappistinnen leven grotendeels in stilte en volgen een eigen ritme”, legt architect en zaakvoerder Luc Vanhout uit. “Dat vroeg om een aanpak met respect en geduld. Je kunt niet zomaar binnenwandelen met een laptop en een voorstel. We hebben veel overlegd, geluisterd, en altijd getracht om hun manier van leven te begrijpen.”
Pointcloud vormt snelle en nauwkeurige start
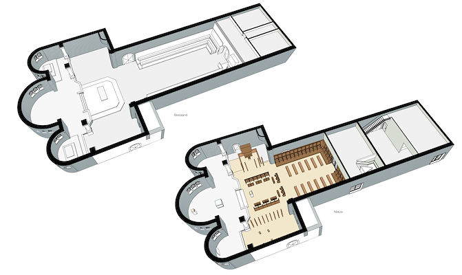
Voorafgaand aan het ontwerp bracht een drone het gebouw nauwkeurig in kaart. De buitenzijde werd vastgelegd via fotogrammetrie, terwijl de binnenzijde met LIDAR-technologie is gescand. Daarna zijn de beelden samengevoegd tot een gedetailleerde pointcloud die eenvoudig in Archicad kon worden geladen. Op basis hiervan werd de bestaande situatie gemodelleerd. Dit vormde een stevige en efficiënte start van het ontwerpproces.
?
Duidelijk communicatie door Archicad
?
AIM werkte het ontwerp voor de
Abdij van Brecht
volledig uit in Archicad, waardoor de communicatie met aannemers en opdrachtgevers als vanzelfsprekend verliep. “Dankzij functies als
de Renovatietool
, Graphic Overrides en 3D-documents was vlot duidelijk wat er precies te gebeuren stond”, licht projectarchitect Didier Fleerakkers toe. “We deelden het model op in bestaande toestand, sloop en nieuw toe te voegen elementen, waarna elke bouwlaag overzichtelijk werd gepresenteerd met kleurcodes voor bijvoorbeeld nieuwe wanden, te verplaatsen meubilair en brandwerende scheidingen.”
Lees het verhaal hier verder >>
Download brochures
Duurzame en innovatieve projecten
Brochure
Ervaringen van architecten over Archicad
Brochure
E-book: waarom architecten kiezen voor Archicad
Brochure
Stel jezelf kort voor! Dan weet het betreffende bedrijf wie hun brochure gedownload heeft.
Wil je niet bij elke download jouw gegevens in hoeven voeren?
Klik dan hier om in te loggen
. Heb je nog geen account?
Maak dan hier een gratis account aan
.
Voornaam
Achternaam
E-mailadres
Downloaden
Wanneer je brochures downloadt op Architectenweb.nl worden relevante gegevens van jou – zoals jouw naam en e-mailadres – met het betreffende bedrijf gedeeld. Meer hierover lees je in ons
privacybeleid
.
Wanneer je brochures downloadt op Architectenweb.nl worden relevante gegevens van jou – zoals jouw naam en e-mailadres – met het betreffende bedrijf gedeeld. Meer hierover lees je in ons
privacybeleid
.
Brochure
Locatie
Trefwoorden
archicad
kubus
architectsinmotion
abdijvanonzelievevrouwvannazareth
aim
architect
renovatie
abdij
abdijvanbrecht
transformatie
renovatietool
bim
KUBUS | Specialist in Archicad
Download brochures (3)
Neem contact op
Projectdata
Staat van realisatie
In ontwikkeling
Start ontwerpproces
2025
Start bouw
2025
Plaats
Brecht
Meewerkende partijen
Architect
architects in motion
Opdrachtgever
abdij OLV Nazareth Brecht
Aannemer
Beneens Bouw & Interieur BV
Leveranciers
Overig
KUBUS | Specialist in Archicad
Neem contact op met
KUBUS | Specialist in Archicad
Je bent momenteel niet ingelogd. Hierdoor is het alleen mogelijk om meer informatie per e-mail op te vragen. Wil je liever gebeld worden of documentatie per post ontvangen?
Klik dan hier om in te loggen
.
Heb je nog geen account?
Maak dan hier een gratis account aan
.
Voornaam
Achternaam
E-mailadres
Opmerkingen
Bij iedere aanvraag worden relevante gegevens van jou gedeeld met het betreffende bedrijf. Meer hierover lees je in ons
privacybeleid
.
Ja, denk met me mee rond de
materialisering van mijn project
Meer projecten van KUBUS | Specialist in Archicad
Lichtstad Architecten: bouwen aan blijvende ideeën
KUBUS | Specialist in Archicad
Office Winhov over project Pulse met Archicad
KUBUS | Specialist in Archicad
Biobased bouwen naast Natura 2000-gebied
KUBUS | Specialist in Archicad
Sporthal Lincolnpark in Spotlight
KUBUS | Specialist in Archicad
BALK Architects transformeert erfgoed naar kantoor
KUBUS | Specialist in Archicad
Contour Architecten: BIM in project Hoogmartens
KUBUS | Specialist in Archicad
Power House Company over Marga Klompé Building
KUBUS | Specialist in Archicad
Gestapelde bosvilla's midden in de natuur
KUBUS | Specialist in Archicad
Uniek project met hyperboloïde zonwering
KUBUS | Specialist in Archicad
Renovatie & verduurzaming van kantoor Staal-Kade
KUBUS | Specialist in Archicad
Orange Architects over winnend project 'Jonas'
KUBUS | Specialist in Archicad
Transformatie van historisch Fort Isabella
KUBUS | Specialist in Archicad
Transformatie voormalig De Telegraaf gebouw
KUBUS | Specialist in Archicad
Renovatie met Archicad & pointcloud
KUBUS | Specialist in Archicad
Transformatie met Archicad: Grote Staat Maastricht
KUBUS | Specialist in Archicad
Dankzij Archicad trekken we projecten naar ons toe
KUBUS | Specialist in Archicad
Ontwikkeling Sluiseiland Vianen
KUBUS | Specialist in Archicad
Élan architecten en de overstap naar Archicad
KUBUS | Specialist in Archicad
bow architecten over de efficiëntie van Archicad
KUBUS | Specialist in Archicad
Wederopbouw van Basisschool Miyanomori
KUBUS | Specialist in Archicad
SeARCH over houtbouw, prefabricage en Archicad
KUBUS | Specialist in Archicad
Herbestemming Heilig Hartkerk
KUBUS | Specialist in Archicad
Restauratieproject Rijksmonument Oude Delft
KUBUS | Specialist in Archicad
Circulaire sporthal Bredius
KUBUS | Specialist in Archicad
CLT vakantiewoning op een eiland
KUBUS | Specialist in Archicad
Renovatie van een monument, nieuwbouw én achtbaan
KUBUS | Specialist in Archicad
Lichtstad Architecten: bouwen aan blijvende ideeën
KUBUS | Specialist in Archicad
Office Winhov over project Pulse met Archicad
KUBUS | Specialist in Archicad
Biobased bouwen naast Natura 2000-gebied
KUBUS | Specialist in Archicad
Sporthal Lincolnpark in Spotlight
KUBUS | Specialist in Archicad
BALK Architects transformeert erfgoed naar kantoor
KUBUS | Specialist in Archicad
Contour Architecten: BIM in project Hoogmartens
KUBUS | Specialist in Archicad
Power House Company over Marga Klompé Building
KUBUS | Specialist in Archicad
Gestapelde bosvilla's midden in de natuur
KUBUS | Specialist in Archicad
Uniek project met hyperboloïde zonwering
KUBUS | Specialist in Archicad
Renovatie & verduurzaming van kantoor Staal-Kade
KUBUS | Specialist in Archicad
Orange Architects over winnend project 'Jonas'
KUBUS | Specialist in Archicad
Transformatie van historisch Fort Isabella
KUBUS | Specialist in Archicad
Transformatie voormalig De Telegraaf gebouw
KUBUS | Specialist in Archicad
Renovatie met Archicad & pointcloud
KUBUS | Specialist in Archicad
Transformatie met Archicad: Grote Staat Maastricht
KUBUS | Specialist in Archicad
Dankzij Archicad trekken we projecten naar ons toe
KUBUS | Specialist in Archicad
Ontwikkeling Sluiseiland Vianen
KUBUS | Specialist in Archicad
Élan architecten en de overstap naar Archicad
KUBUS | Specialist in Archicad
bow architecten over de efficiëntie van Archicad
KUBUS | Specialist in Archicad
Wederopbouw van Basisschool Miyanomori
KUBUS | Specialist in Archicad
SeARCH over houtbouw, prefabricage en Archicad
KUBUS | Specialist in Archicad
Herbestemming Heilig Hartkerk
KUBUS | Specialist in Archicad
Restauratieproject Rijksmonument Oude Delft
KUBUS | Specialist in Archicad
Circulaire sporthal Bredius
KUBUS | Specialist in Archicad
CLT vakantiewoning op een eiland
KUBUS | Specialist in Archicad
Renovatie van een monument, nieuwbouw én achtbaan
KUBUS | Specialist in Archicad
Toon alles
Andere Projecten
Canopy House
Malaysian Timber Council
Pol Heeteren BV
Klöber
Akoestische ventilatieroosters woontoren Magnus
Storax
Klimaatinnovatie in houtbouw: Mandemaat 3
Halton Ventilation Systems
Renovatie parkeergarage De Vest
Triflex bv
Kliniek San Juan de Dios in Madrid
ULMA Architectural Solutions
Vliesgevel screens Netceed kantoorgebouw
Renson
Kantoorinterieur Greenflux Amsterdam
Bureau Fraai
Nieuwbouw kinderdagverblijf Baakenhafen Hamburg
Sempergreen
CPO Vondelstaete Amersfoort: Passief Wonen
Sto Isoned bv
Nieuwbouw Oostvaarders krijgt Gorter op het dak
Gorter Luiken BV
BOW showroom in Amsterdam!
BOW Systems
Ga naar het projecten-overzicht
Voor een optimale gebruikservaring plaatst Architectenweb functionele cookies. Wat de verschillende cookies precies doen leggen we uit in een
overzicht
. Cookies van social media kun je optioneel
aanzetten
.
Akkoord
Instellingen
Annuleren
OK
Sluiten
Doorgaan
Inloggen
Maak een gratis persoonlijk account aan
Feedback
Feedback
Wij horen graag jouw feedback. Laat je reactie achter en eventueel jouw e-mail adres.
Reactie
Verstuur