Projecten
Producten
Bedrijven
Vacatures
Agenda
Awards
Podcasts
more_horiz
Videos
Magazine
Favorieten
Profiel
Uitloggen
Abonneer je nu op onze nieuwsbrieven!
Abonneren
Nee, bedankt
Ja, denk met me mee rond de
materialisering van mijn project
Producten
Straatzijd
Copyright: BRANDVRIES
Dakkapel met trappenhuis
Copyright: BRANDVRIES
Trappenhuis vormt de verbinding tussen oud en nieuw
Copyright: BRANDVRIES
Trappenhuis
Copyright: BRANDVRIES
Trapje naar kinderslaapkamers
Copyright: BRANDVRIES
Vides en niveauverschillen
Copyright: BRANDVRIES
Overhoekse pui
Copyright: BRANDVRIES
Panorama over landschap
Copyright: BRANDVRIES
Terras
Copyright: BRANDVRIES
Zijgevel
Copyright: BRANDVRIES
Ingesneden volume aan tuinzijde
Copyright: BRANDVRIES
Overstek
Copyright: BRANDVRIES
Keuken en eethoek met daarboven master bedroom
Copyright: BRANDVRIES
Master bedroom
Copyright: BRANDVRIES
Woning aan dijk
Copyright: BRANDVRIES
Conceptschema 1
Copyright: BRANDVRIES
Conceptschema 2
Copyright: BRANDVRIES
Conceptschema 3
Copyright: BRANDVRIES
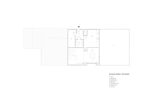
Plattegrond b.g. - oude situatie
Copyright: BRANDVRIES
Plattegrond b.g. - nieuwe situatie
Copyright: BRANDVRIES
Plattegrond verdieping - oude situatie
Copyright: BRANDVRIES
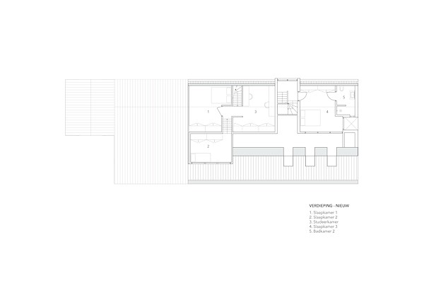
Plattegrond verdieping - nieuwe situatie
Copyright: BRANDVRIES
before-after 1
Copyright: BRANDVRIES
before-after 2
Copyright: BRANDVRIES
before-after 3
Copyright: BRANDVRIES
Producttags
AAN
UIT
Uitbreiding Dijkhuis
11 februari
0
0
0
0
Petra en Ellemieke wonen op een prachtige plek aan de rand van het historische dorpje Heenvliet: de oude kern van Heenvliet is beschermd stadsgezicht en aan de achterzijde van de woning is er vrij uitzicht op de ruïne van Kasteel Ravesteyn. Hun houten huisje is gebouwd op de plek van een oude schuur, die deel uitmaakte van een ensemble met koetshuis en dijkwoning. Het heeft een speelse plattegrond vol niveauverschillen, maar biedt te weinig ruimte voor het gezin met opgroeiende kinderen.
De uitdaging was duidelijk: een eigentijdse uitbreiding ontwerpen die de woning ruimer, lichter en comfortabeler maakt, terwijl het karakter van de oude schuur behouden blijft.
Het ontwerp
Omdat de historische footprint van de schuur twee keer zo groot was als de herbouwde woning, biedt het bestemmingsplan ruimte voor een flinke uitbreiding waarbij het woonoppervlak kan worden verdubbeld.
Een
centraal trappenhuis
verbindt het oude en het nieuwe deel op natuurlijke wijze en is vanaf de straatzijde zichtbaar via een dubbelhoge dakkapel die door de gootlijn heen zakt — een subtiel, maar karakteristiek accent. De rest van de straatgevel blijft ingetogen: de nieuwe houten gevelbekleding en kozijnen in dezelfde kleur versterken de eenheid. Met oog voor detail is het Zweeds rabat op een strakke manier toegepast; met respect voor de historische uitstraling, maar met een moderne twist.
Aan de tuinzijde zit de
wow-factor.
De ‘zwarte schuur’ wordt ingesneden door een grote overhoekse glaspartij, met veranda aan de tuinzijde en zicht op Kasteel Ravesteyn. Een vide met grote daklichten boven de eethoek en de binnenpui met doorkijk vanaf de nieuwe master bedroom geven de woning een bijzondere ruimtelijke beleving. Het huis zit vol verrassingen met overal leuke hoekjes en doorkijkjes, en het uitzicht over het landschap is adembenemend.
Het resultaat
Het resultaat is een woning waarin oud een nieuw subtiel met elkaar zijn verweven. Het woonoppervlak is verdubbeld, maar de kwaliteiten van de kleine oorspronkelijke woning zijn behouden.
Licht en ruimtelijkheid
zijn door het hele huis voelbaar, maar tegelijkertijd zijn er overal
knusse hoekjes
. Het
panorama uitzicht
over de omgeving versterkt de verbinding met deze bijzondere plek.
De verbouwing is uitgevoerd door
KVG Huizen in Hout
en aan de binnenzijde afgebouwd door Petra & Ellemieke zelf.
Stel jezelf kort voor! Dan weet het betreffende bedrijf wie hun brochure gedownload heeft.
Wil je niet bij elke download jouw gegevens in hoeven voeren?
Klik dan hier om in te loggen
. Heb je nog geen account?
Maak dan hier een gratis account aan
.
Voornaam
Achternaam
E-mailadres
Downloaden
Wanneer je brochures downloadt op Architectenweb.nl worden relevante gegevens van jou – zoals jouw naam en e-mailadres – met het betreffende bedrijf gedeeld. Meer hierover lees je in ons
privacybeleid
.
Wanneer je brochures downloadt op Architectenweb.nl worden relevante gegevens van jou – zoals jouw naam en e-mailadres – met het betreffende bedrijf gedeeld. Meer hierover lees je in ons
privacybeleid
.
Brochure
Stel jezelf kort voor! Dan weet het betreffende bedrijf wie hun model gedownload heeft.
Wil je niet bij elke download jouw gegevens in hoeven voeren?
Klik dan hier om in te loggen
.
Heb je nog geen account?
Maak dan hier een gratis account aan
.
Voornaam
Achternaam
E-mailadres
Downloaden
Wanneer je modellen downloadt op Architectenweb.nl worden relevante gegevens van jou – zoals jouw naam en e-mailadres – met het betreffende bedrijf gedeeld. Meer hierover lees je in ons
privacybeleid
.
Locatie
Trefwoorden
verduurzaming
schuur
dijkhuis
renovatie
uitbreiding
BRANDVRIES
Neem contact op
Projectdata
Staat van realisatie
Voltooid
Start ontwerpproces
2021
Start bouw
2023
Oplevering
2024
Ingebruikname
202
Plaats
Heenvliet
Meewerkende partijen
Architect
BRANDVRIES
Projectarchitect
Sander Brand
Ontwerpteam
Tijs Niessen
Aannemer
KVG Huizen in Hout
Constructeur
Bouwkundig Adviesburo Baas
Fotograaf
Martijn Vonck Fotografie
Leveranciers
Houten buitenkozijnen
Klever Kozijnen
Neem contact op met
BRANDVRIES
Je bent momenteel niet ingelogd. Hierdoor is het alleen mogelijk om meer informatie per e-mail op te vragen. Wil je liever gebeld worden of documentatie per post ontvangen?
Klik dan hier om in te loggen
.
Heb je nog geen account?
Maak dan hier een gratis account aan
.
Voornaam
Achternaam
E-mailadres
Opmerkingen
Bij iedere aanvraag worden relevante gegevens van jou gedeeld met het betreffende bedrijf. Meer hierover lees je in ons
privacybeleid
.
Ja, denk met me mee rond de
materialisering van mijn project
Meer projecten van BRANDVRIES
Personeelsgebouw De Nulck
BRANDVRIES
Gevelrenovatie Vlaardingen
BRANDVRIES
Boshuisjes Vlieland Fase III
BRANDVRIES
Supermarkt Kampeerterrein Stortemelk
BRANDVRIES
Personeelsgebouw De Nulck
BRANDVRIES
Gevelrenovatie Vlaardingen
BRANDVRIES
Boshuisjes Vlieland Fase III
BRANDVRIES
Supermarkt Kampeerterrein Stortemelk
BRANDVRIES
Toon alles
Andere Projecten
Canopy House
Malaysian Timber Council
Pol Heeteren BV
Klöber
Akoestische ventilatieroosters woontoren Magnus
Storax
Klimaatinnovatie in houtbouw: Mandemaat 3
Halton Ventilation Systems
Renovatie parkeergarage De Vest
Triflex bv
Kliniek San Juan de Dios in Madrid
ULMA Architectural Solutions
Vliesgevel screens Netceed kantoorgebouw
Renson
Kantoorinterieur Greenflux Amsterdam
Bureau Fraai
Nieuwbouw kinderdagverblijf Baakenhafen Hamburg
Sempergreen
CPO Vondelstaete Amersfoort: Passief Wonen
Sto Isoned bv
Nieuwbouw Oostvaarders krijgt Gorter op het dak
Gorter Luiken BV
BOW showroom in Amsterdam!
BOW Systems
Ga naar het projecten-overzicht
Voor een optimale gebruikservaring plaatst Architectenweb functionele cookies. Wat de verschillende cookies precies doen leggen we uit in een
overzicht
. Cookies van social media kun je optioneel
aanzetten
.
Akkoord
Instellingen
Annuleren
OK
Sluiten
Doorgaan
Inloggen
Maak een gratis persoonlijk account aan
Feedback
Feedback
Wij horen graag jouw feedback. Laat je reactie achter en eventueel jouw e-mail adres.
Reactie
Verstuur