Projecten
Producten
Bedrijven
Vacatures
Agenda
Awards
Podcasts
more_horiz
Videos
Magazine
Favorieten
Profiel
Uitloggen
Abonneer je nu op onze nieuwsbrieven!
Abonneren
Nee, bedankt
Ja, denk met me mee rond de
materialisering van mijn project
Producten
Het Oostelijk Bos
Copyright: STUDIO BRANDVRIES
Copyright: STUDIO BRANDVRIES
Copyright: STUDIO BRANDVRIES
Copyright: STUDIO BRANDVRIES
Producttags
AAN
UIT
Boshuisjes Vlieland Fase III
25 oktober 2022
1
0
0
0
Aan de rand van het Oostelijk Bos bij
Kampeerterrein Stortemelk
op Vlieland zijn in het voorjaar van 2021 vier nieuwe boshuisjes gebouwd. Anders dan eerdere fases in het Westelijk bos, waarbij de huisjes goed zichtbaar langs een wandelpad gesitueerd liggen, konden deze huisjes in een dichter begroeid gedeelte elk een eigen hofje tussen de bomen krijgen. Dit maakte deze locatie bij uitstek geschikt voor de gewenste grotere acht-persoons groepshuizen. Van de vier nieuwe huisjes zijn ‘Burcht’ en ‘Origami’ ontworpen door STUDIO BRANDVRIES, interieurontwerp i.s.m.
Evie Nagelkerke
. Huisjes ‘Spider XL’ en ‘Paviljoen’ zijn van de hand van
Atelier Boekhout.
De uitvoering is net als in fase twee gedaan door
KVG Houtbouw
.
Het ontwerp van de huisjes Origami en Burcht is gebaseerd op verschillende belevingen van het bos. Wil je als bezoeker één zijn met de natuur om je heen of ben je als groep juist op zoek naar een knus hutje waarin je op elkaar gericht bent? Voor beide huisjes is opnieuw gezocht naar een kloeke, expressieve vormentaal. Door te spelen met verschillende profielen en afwerkingen in de houten gevelbekleding krijgen de huisjes nog meer karakter.
Het ontwerp van Origami kenmerkt zich door grote glasvlakken waarmee het bos bijna naar binnen wordt gehaald. Het huisje bestaat uit een 6-persoons gedeelte en een 2-persoons studio, welke zijn geschakeld door een grote schuifdeur ter plaatse van de keukens en zowel gezamenlijk als apart verhuurd kunnen worden. De leefruimtes op de begane grond bestaat uit één open ruimte met verschillende hoekjes rond een centraal facilitair blok, waarin de keukens en badkamers zijn gesitueerd. In het 6-persoons gedeelte kijk je vanuit kleurrijke bedstedes zo het bos in, de twee persoons studio heeft met zijn open slaap-entresol een bijzondere ruimtelijke ervaring.
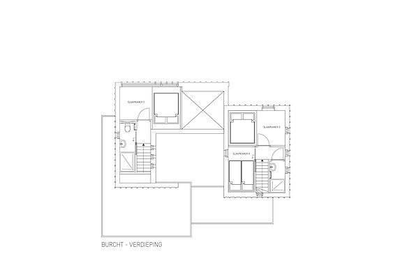
Boshuis Burcht keert zich juist naar binnen toe. De gesloten voorkant geeft niet direct alles prijs, de verrassing komt wanneer je binnengaat en direct de patio inkijkt waarop alle leefruimtes gericht zijn. Door de smalle ‘schietgaatjes’ als ramen vang je vanaf binnen telkens slechts een glimp op van het bos, waarbij grote daklichten toch voor veel lichtinval zorgen. Kenmerkend is de schakeling van verschillende buitenruimtes, van de besloten patio naar een overdekte veranda tot het terras dat met punt het bos in steekt. Met de grote lounge, keuken met bar en knusse eethoek is dit een ideaal huisje voor quality time met vrienden of familie.
Stel jezelf kort voor! Dan weet het betreffende bedrijf wie hun brochure gedownload heeft.
Wil je niet bij elke download jouw gegevens in hoeven voeren?
Klik dan hier om in te loggen
. Heb je nog geen account?
Maak dan hier een gratis account aan
.
Voornaam
Achternaam
E-mailadres
Downloaden
Wanneer je brochures downloadt op Architectenweb.nl worden relevante gegevens van jou – zoals jouw naam en e-mailadres – met het betreffende bedrijf gedeeld. Meer hierover lees je in ons
privacybeleid
.
Wanneer je brochures downloadt op Architectenweb.nl worden relevante gegevens van jou – zoals jouw naam en e-mailadres – met het betreffende bedrijf gedeeld. Meer hierover lees je in ons
privacybeleid
.
Brochure
Stel jezelf kort voor! Dan weet het betreffende bedrijf wie hun model gedownload heeft.
Wil je niet bij elke download jouw gegevens in hoeven voeren?
Klik dan hier om in te loggen
.
Heb je nog geen account?
Maak dan hier een gratis account aan
.
Voornaam
Achternaam
E-mailadres
Downloaden
Wanneer je modellen downloadt op Architectenweb.nl worden relevante gegevens van jou – zoals jouw naam en e-mailadres – met het betreffende bedrijf gedeeld. Meer hierover lees je in ons
privacybeleid
.
Locatie
BRANDVRIES
Neem contact op
Projectdata
Staat van realisatie
Voltooid
Start ontwerpproces
2020
Start bouw
2021
Oplevering
2021
Ingebruikname
2021
Plaats
Oost-Vlieland
Bruto m
2
125
Meewerkende partijen
Architect
BRANDVRIES
Opdrachtgever
Kampeerterrein Stortemelk
Aannemer
KVG Houtbouw
Leveranciers
Prefab Houtskeletbouw
KVG Houtbouw
Neem contact op met
BRANDVRIES
Je bent momenteel niet ingelogd. Hierdoor is het alleen mogelijk om meer informatie per e-mail op te vragen. Wil je liever gebeld worden of documentatie per post ontvangen?
Klik dan hier om in te loggen
.
Heb je nog geen account?
Maak dan hier een gratis account aan
.
Voornaam
Achternaam
E-mailadres
Opmerkingen
Bij iedere aanvraag worden relevante gegevens van jou gedeeld met het betreffende bedrijf. Meer hierover lees je in ons
privacybeleid
.
Ja, denk met me mee rond de
materialisering van mijn project
Meer projecten van BRANDVRIES
Uitbreiding Dijkhuis
BRANDVRIES
Personeelsgebouw De Nulck
BRANDVRIES
Gevelrenovatie Vlaardingen
BRANDVRIES
Supermarkt Kampeerterrein Stortemelk
BRANDVRIES
Uitbreiding Dijkhuis
BRANDVRIES
Personeelsgebouw De Nulck
BRANDVRIES
Gevelrenovatie Vlaardingen
BRANDVRIES
Supermarkt Kampeerterrein Stortemelk
BRANDVRIES
Toon alles
Andere Projecten
Onderwijsgebouw Aurora, Wageningen
WEBO
Sandwichpanelenwand hygiënische afbouw
Sentho B.V.
Transformeerbare vergaderruimtes in HNK Amsterdam
BREEDVELD mobiele wandsystemen
Complete buiteninrichting kantooromgeving
Falco B.V.
TopAccess Dakluik bij Porsche Service Factory
Staka Dakluiken
Nieuwbouw villa Tegenbosch, Eindhoven, Noord-Braba
van Os Architecten
Moderne villa Alkmaar
BNLA architecten
Appartementencomplex in Purmerend
SSAB Swedish Steel BV
Office Winhov over project Pulse met Archicad
KUBUS | Specialist in Archicad
Nieuwbouw moderne bungalow, Prinsenbeek, Noord-Bra
van Os Architecten
Verbouwing villa Ruitersbos, Breda, Noord-Brabant
van Os Architecten
Nieuwbouw schuurwoning, Oosterhout, Noord-Brabant
van Os Architecten
Ga naar het projecten-overzicht
Voor een optimale gebruikservaring plaatst Architectenweb functionele cookies. Wat de verschillende cookies precies doen leggen we uit in een
overzicht
. Cookies van social media kun je optioneel
aanzetten
.
Akkoord
Instellingen
Annuleren
OK
Sluiten
Doorgaan
Inloggen
Maak een gratis persoonlijk account aan
Feedback
Feedback
Wij horen graag jouw feedback. Laat je reactie achter en eventueel jouw e-mail adres.
Reactie
Verstuur