Projecten
Producten
Bedrijven
Vacatures
Agenda
Awards
Podcasts
more_horiz
Videos
Magazine
Favorieten
Profiel
Uitloggen
Abonneer je nu op onze nieuwsbrieven!
Abonneren
Nee, bedankt
Ja, denk met me mee rond de
materialisering van mijn project
Producten
Copyright: Buro Lubbers Landschapsarchitectuur & Stedenbouw
Copyright: MdB3d
Copyright: MdB3d
Producttags
AAN
UIT
Aan De Vallei
2 oktober 2025
1
0
0
0
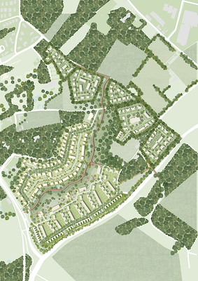
Aan de zuidrand van de gemeente Roermond ligt het voormalige agrarische gebied Melickerveld, bestaande uit landbouwgronden, bosstructuren en enkele woningen. Met het plan
Aan de Vallei
transformeert dit gebied tot een nieuwe woonwijk met 191 woningen, verweven met een rijk en natuurinclusief landschap. De Vallei vormt het hart van de wijk en is ontworpen als een meanderend beekdal, geïnspireerd op de rivier de Roer. Hier komt het hemelwater uit de wijk samen in bergingslaagtes, waardoor de natuurlijke afwisseling van droogte en piekbuien zichtbaar wordt. Rondom deze beek liggen speelplekken, ontmoetingsruimtes en rustige plekken, verbonden door een hoofdfietsroute en een netwerk van wandelpaden en landwegen.
De inrichting van het landschap is sterk gebaseerd op de aanwezige structuren en vergroot de biodiversiteit. Bosjes, houtwallen en fruitboomgaarden bieden beschutting en voedsel voor fauna zoals de das. De vallei, boskamers, boslanen en landwegen krijgen elk een eigen sfeer: open en wijds bij de Vallei, beschut en intiem in de boskamers, en kleinschalig langs de Boslaan en landwegen. Parkeren gebeurt op eigen terrein zodat er ruimte ontstaat voor groen tussen de woningen. Functionele elementen als bergingen en infrastructuur zijn geconcentreerd in de Hoven om de groene beleving te versterken.
De stedenbouwkundige opzet sluit nauw aan bij het landschap. De bebouwing begeleidt de ruimte, met langere bouwvolumes langs de Vallei en kleinschaliger woningen in de boskamers. Overhoeks geplaatste woningen zorgen voor levendige hoeken en ontmoeting. De architectuur verschilt per deelgebied, maar wordt verbonden door ‘architectuurfamilies’ en een kappenlandschap geïnspireerd op de Roermondse hoeve, waardoor een samenhangend maar afwisselend geheel ontstaat.
Zo groeit Melickerveld uit tot een groene, biodiverse en natuurinclusieve leefomgeving waar mens en natuur in balans samenleven.
Stel jezelf kort voor! Dan weet het betreffende bedrijf wie hun model gedownload heeft.
Wil je niet bij elke download jouw gegevens in hoeven voeren?
Klik dan hier om in te loggen
.
Heb je nog geen account?
Maak dan hier een gratis account aan
.
Voornaam
Achternaam
E-mailadres
Downloaden
Wanneer je modellen downloadt op Architectenweb.nl worden relevante gegevens van jou – zoals jouw naam en e-mailadres – met het betreffende bedrijf gedeeld. Meer hierover lees je in ons
privacybeleid
.
Locatie
Trefwoorden
natuurinclusief
duurzame wijk
natuurbeleving
BURO LUBBERS Landschapsarchitectuur & Stedenbouw
Neem contact op
Projectdata
Staat van realisatie
In ontwikkeling
Start ontwerpproces
2021
Start bouw
2025
Plaats
Roermond
Meewerkende partijen
Architect
MIX architectuur,
HILBERINKBOSCH architecten
,
FAAM architects
,
Weusten Liedenbaum Architecten
Opdrachtgever
JPO
Designer
De Mannen Van Schuim
Adviseur
Aveco de Bondt, Kragten, IVN natuureducatie, Meervelt
Leveranciers
Overig
MBI De Steenmeesters
, Geen info
Neem contact op met
BURO LUBBERS Landschapsarchitectuur & Stedenbouw
Je bent momenteel niet ingelogd. Hierdoor is het alleen mogelijk om meer informatie per e-mail op te vragen. Wil je liever gebeld worden of documentatie per post ontvangen?
Klik dan hier om in te loggen
.
Heb je nog geen account?
Maak dan hier een gratis account aan
.
Voornaam
Achternaam
E-mailadres
Opmerkingen
Bij iedere aanvraag worden relevante gegevens van jou gedeeld met het betreffende bedrijf. Meer hierover lees je in ons
privacybeleid
.
Ja, denk met me mee rond de
materialisering van mijn project
Meer projecten van BURO LUBBERS Landschapsarchitectuur & Stedenbouw
Strijp-R
BURO LUBBERS Landschapsarchitectuur & Stedenbouw
Celsius
BURO LUBBERS Landschapsarchitectuur & Stedenbouw
Industrieplein Hengelo
BURO LUBBERS Landschapsarchitectuur & Stedenbouw
Hortus Ludi
BURO LUBBERS Landschapsarchitectuur & Stedenbouw
Veemgebouw
BURO LUBBERS Landschapsarchitectuur & Stedenbouw
Burgemeester Van Grunsvenplein
BURO LUBBERS Landschapsarchitectuur & Stedenbouw
Brielle
BURO LUBBERS Landschapsarchitectuur & Stedenbouw
Vredeoord
BURO LUBBERS Landschapsarchitectuur & Stedenbouw
Rozemaai
BURO LUBBERS Landschapsarchitectuur & Stedenbouw
Van Besouw, Goirle
BURO LUBBERS Landschapsarchitectuur & Stedenbouw
Rieteiland Oost
BURO LUBBERS Landschapsarchitectuur & Stedenbouw
Mathildeplein
BURO LUBBERS Landschapsarchitectuur & Stedenbouw
Westerpark
BURO LUBBERS Landschapsarchitectuur & Stedenbouw
Monnikenhuizen
BURO LUBBERS Landschapsarchitectuur & Stedenbouw
Strijp-R
BURO LUBBERS Landschapsarchitectuur & Stedenbouw
Celsius
BURO LUBBERS Landschapsarchitectuur & Stedenbouw
Industrieplein Hengelo
BURO LUBBERS Landschapsarchitectuur & Stedenbouw
Hortus Ludi
BURO LUBBERS Landschapsarchitectuur & Stedenbouw
Veemgebouw
BURO LUBBERS Landschapsarchitectuur & Stedenbouw
Burgemeester Van Grunsvenplein
BURO LUBBERS Landschapsarchitectuur & Stedenbouw
Brielle
BURO LUBBERS Landschapsarchitectuur & Stedenbouw
Vredeoord
BURO LUBBERS Landschapsarchitectuur & Stedenbouw
Rozemaai
BURO LUBBERS Landschapsarchitectuur & Stedenbouw
Van Besouw, Goirle
BURO LUBBERS Landschapsarchitectuur & Stedenbouw
Rieteiland Oost
BURO LUBBERS Landschapsarchitectuur & Stedenbouw
Mathildeplein
BURO LUBBERS Landschapsarchitectuur & Stedenbouw
Westerpark
BURO LUBBERS Landschapsarchitectuur & Stedenbouw
Monnikenhuizen
BURO LUBBERS Landschapsarchitectuur & Stedenbouw
Toon alles
Andere Projecten
In ontwikkeling: IKC Strandeiland, Amsterdam
WEBO
Gorter op nieuwbouw sociale huurappartementen
Gorter Luiken BV
Prefab villa - Egmond aan Zee
Houthandel van Dam
Nieuwbouw poeliersbedrijf Van Berkel Kip
Ruys Groep
Nieuwbouw 107 appartementen Spoordok
Gorter Luiken BV
Appartementencomplex - Résidence Gooiland
Rodruza B.V.
Nieuwbouwwijk - Oosterparkkwartier
Rodruza B.V.
Nieuwbouwwijk - New Brooklyn
Rodruza B.V.
De Octaaf - Nijmegen
Houthandel van Dam
Tijdloos nieuwbouwproject – Haaksbergen
Joris Ide
JI NatureBlack - Tijdloos design, staalprestaties
Joris Ide
Netbeheer Den Haag | slim en duurzaam werken
Forbo Flooring
Ga naar het projecten-overzicht
Voor een optimale gebruikservaring plaatst Architectenweb functionele cookies. Wat de verschillende cookies precies doen leggen we uit in een
overzicht
. Cookies van social media kun je optioneel
aanzetten
.
Akkoord
Instellingen
Annuleren
OK
Sluiten
Doorgaan
Inloggen
Maak een gratis persoonlijk account aan
Feedback
Feedback
Wij horen graag jouw feedback. Laat je reactie achter en eventueel jouw e-mail adres.
Reactie
Verstuur