Abonneer je nu op onze nieuwsbrieven!
Abonneren
Nee, bedankt
Ja, denk met me mee rond de
materialisering van mijn project
Producten
Copyright: Lucas van der Wee
Copyright: Lucas van der Wee
Copyright: Lucas van der Wee
Copyright: Lucas van der Wee
Copyright: Lucas van der Wee
Copyright: Lucas van der Wee
Copyright: Lucas van der Wee
Copyright: Lucas van der Wee
Copyright: Lucas van der Wee
Copyright: Lucas van der Wee
Copyright: Lucas van der Wee
Copyright: cepezed
Copyright: cepezed
Copyright: cepezed
ProducttagsAANUIT

Renovatie Van Maelantlyceum

26 juni 2025
Het Van Maerlantlyceum in Eindhoven is een bijna 75-jarig rijksmonument. Na de recente renovatie is de school weer op en top toegerust op eigentijds onderwijs. Oude en nieuwe bouwdelen zijn duidelijk herkenbaar en vormen een elegant geheel. De oudbouw is vrij gesloten, de nieuwbouw juist open. De drie belangrijkste uitgangspunten voor de renovatie waren: het interieur ‘opschonen’, de routing verbeteren, en zo min mogelijk slopen. Het ontwerp is gericht op het tonen van de rijke diversiteit aan plekken - onderwijs als ontdekkingsreis

Het Van Maerlantlyceum in Eindhoven is een rijksmonument uit 1953. In de loop der jaren vonden verschillende verbouwingen plaats, want de onderwijswereld is dynamisch. Met de recente renovatie naar ontwerp van cepezed en cepezedinterieur komen de fraaie, naoorlogse karakteristieken en kunstwerken - onder meer glas-in-lood en muurschilderingen - van het gebouw weer mooi tot hun recht. Het gebouw is verregaand verduurzaamd, de akoestiek is verbeterd, en het nieuwe, daglichtrijke interieur, met veel planten en plekjes, zet de leerlingen aan tot onderzoek en samenwerking.

zo min mogelijk sloop
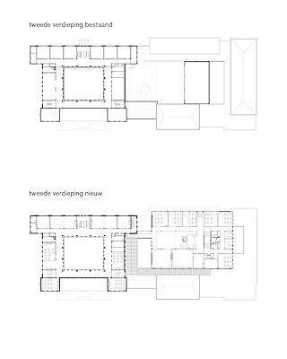
Door in te zetten op zo min mogelijk sloop werd meer van het bestaande gebouw behouden dan de uitvraag dicteerde en kreeg de bouwgeschiedenis een plek in het ontwerp. Bovendien zagen de buren in de woningen aan de overzijde van de straat hun uitzicht niet drastisch veranderen - het hogere, nieuwe bouwdeel is aan de achterzijde geplaatst. Voor de verbinding tussen de bestaande en de nieuwe bouwdelen was de structuur van het rijksmonument leidend. Verdiepingen, routes, functies en installaties vormen een zorgvuldig uitgekiend geheel en oude en nieuwe bouwdelen lopen vanzelfsprekend in elkaar over. De voormalige binnentuin werd een daglichtrijk atrium.

De school beschikt nu over ruimtes van verschillende grootte, met uiteenlopend uitzicht en diverse karakters, zodat er voor iedere gelegenheid een passende plek is - je kunt in het Van Maerlantlyceum rustig en stil studeren en het is er overzichtelijk en gezellig tijdens de pauzes. Het gebouw lag altijd al in een park, maar waar de oudbouw een vrij gesloten karakter had, opent de nieuwbouw zich juist naar het park en de langsstromende Dommel.

Voor de nieuwe entree is een blinde muur benut, waarbij het ritme van de bestaande ramen werd gevolgd. De entree sluit aan op de nieuwe multifunctionele ruimte. De oorspronkelijke entree blijft intact, maar is niet in gebruik als de primaire entree. Door de twee nieuwe, strategisch geplaatste trappen kun je voortaan kun je altijd rond lopen, al bevinden niet alle verdiepingsvloeren zich op dezelfde hoogte. Ook door functies anders te verdelen en lokalen samen te voegen herstelt cepezed de ruimtelijke structuur.

opgeruimd & opgewaardeerd
De monumentale halschool monument bleef volledig intact, maar werd ‘opgeruimd’ en opgewaardeerd. Zo komt de aula na de renovatie weer mooi tot zijn recht en verbeterde de akoestiek. De kunstwerken worden fraai aangelicht met een ledlijn en ook de naoorlogse details in het metselwerk, beton en de relingen krijgen door het lichtplan extra cachet. De twee verplaatsbare, houten tribunetrappen die cepezedinterieur ontwierp maken de aula geschikt voor meersoortig gebruik, al gaat de standaardopstelling net als voorheen uit van een functie als ontmoetingsruimte.

De architectuur van het nieuwe atrium refereert aan de aula, door ook hier balustrades te situeren en de kolommen tot aan de bovenste gaanderij voor die balustrades langs te laten lopen. Waar de fresco’s in de aula horizontaal zijn, kreeg het atrium een verticale wand voor kunst. Door de komst van het atrium, staan de voormalige buitengevels van de binnentuin nu binnen, net als de charmante, halfronde trap naar de ruimte boven de entree, die in de nieuwe situatie dienstdoet als mediatheek. Eyecatcher is de houten tribunetrap, compleet met theaterlampen en een gordijn.

Het kleurenpalet in het interieur is afgeleid van de kleuren in de bestaande muurschilderingen. Ook de nieuwe materialen die in de school zijn geïntroduceerd - houten balken, houten meubilair, kolommen van wit gecoat staal, trappen en plantenbakken van antracietkleurig aluminium - sluiten mooi aan bij de oudbouw: de nieuwe bouwdelen en interieurelementen zijn duidelijk nieuw, maar nergens opdringerig. Zelfs het hoge nieuwe bouwdeel aan de parkzijde drukt het monument niet weg. De matte, zilverig brons gekleurde aluminium gevelpanelen volgen de bestaande bouwgeleding en ritmes in de gevel.

diversiteit aan plekken
De nieuwe indeling van het gebouw voorziet in een diversiteit aan plekken, de leslokalen en andere ruimtes hebben uiteenlopende formaten, verschillend uitzicht en een eigen sfeer. Zo biedt de school voor iedere (leer)situatie een passende plek. Het nieuwe bouwdeel van drie verdiepingen biedt zicht op het park en de langsstromende Dommel. Hier zijn de lokalen voor creatieve en technische vakken gesitueerd. De glazen puien bieden vanuit het park zicht op wat er binnen gebeurt, de school heeft hier als het ware een etalage.

In alle ruimtes zorgde cepezed voor de inval van veel natuurlijk daglicht en een aangename akoestiek. De verdeling van de ruimtes sluit aan bij het huidige onderwijssysteem en speelt alvast in op toekomstige leermethoden, gericht op ‘van en met elkaar leren’. Binnen vind je gemakkelijk je weg door de transparante opzet en duidelijke functiescheiding.

Samen resulteren deze keuzes in een compact en efficiënt gebouw, dat leerlingen prikkelt om steeds meer te ontdekken en steeds nieuwe verbintenissen aan te gaan. Een school waarin leerlingen, docenten en ondersteunend personeel zich veilig en geborgen voelen, ofwel ‘het is een fijn gebouw met heel veel plekken waar je lekker kunt zitten en werken’, zoals enkele bovenbouwleerlingen het formuleren.
 

Stel jezelf kort voor! Dan weet het betreffende bedrijf wie hun model gedownload heeft.
Wil je niet bij elke download jouw gegevens in hoeven voeren?
Klik dan hier om in te loggen.

Heb je nog geen account? Maak dan hier een gratis account aan.
Voornaam
Achternaam
E-mailadres
Downloaden
Wanneer je modellen downloadt op Architectenweb.nl worden relevante gegevens van jou – zoals jouw naam en e-mailadres – met het betreffende bedrijf gedeeld. Meer hierover lees je in ons privacybeleid.

Locatie

Neem contact op met architectenbureau cepezed

Je bent momenteel niet ingelogd. Hierdoor is het alleen mogelijk om meer informatie per e-mail op te vragen. Wil je liever gebeld worden of documentatie per post ontvangen? Klik dan hier om in te loggen.
Heb je nog geen account? Maak dan hier een gratis account aan.
Voornaam
Achternaam
E-mailadres
Opmerkingen
Bij iedere aanvraag worden relevante gegevens van jou gedeeld met het betreffende bedrijf. Meer hierover lees je in ons privacybeleid.
Ja, denk met me mee rond de
materialisering van mijn project

Meer projecten van architectenbureau cepezed

architectenbureau cepezed
architectenbureau cepezed
architectenbureau cepezed
architectenbureau cepezed
architectenbureau cepezed
architectenbureau cepezed
architectenbureau cepezed
architectenbureau cepezed
architectenbureau cepezed
architectenbureau cepezed
architectenbureau cepezed
architectenbureau cepezed
architectenbureau cepezed
architectenbureau cepezed
architectenbureau cepezed
architectenbureau cepezed
architectenbureau cepezed
architectenbureau cepezed
architectenbureau cepezed
architectenbureau cepezed
architectenbureau cepezed
Toon alles

Gerelateerde producten

KUBUS | Specialist in Archicad
SAPA
Reynaers Aluminium Nederland
Jansen
SAB-profiel bv
Aliplast Aluminium Systems
Kingspan Light & Air
ALUCOBOND®
Caparol
Tarkett BV
Kawneer
Grohe Nederland B.V.
Malaysian Timber Council
OCS | Office Cabling Systems
Swisspearl Nederland
Forster Nederland N.V.
VELUX Commercial Benelux B.V.
Sempergreen
Houthandel van Dam
Aluprof Nederland BV
QbiQ Wall Systems
Forbo Flooring
Schüco Nederland
Cedral
Sto Isoned bv
Triflex bv
Gorter Luiken BV
wienerberger
DUCO Ventilation & Sun Control
BEWI IsoBouw
ROCKWOOL B.V.
Mview+
Rockfon (ROCKWOOL B.V.)
Gira Nederland B.V.
Kingspan Geïsoleerde Panelen
GEZE Benelux  B.V.
Renson
Metaglas Groep
ABB | Busch-Jaeger
Jung | Hateha B.V.
Knauf B.V.
Saint-Gobain Glass Benelux
Faay Vianen B.V.
objectflor
Boon Edam Nederland B.V.
Hunter Douglas Architectural
VOLA Nederland BV
Forbo Eurocol Nederland B.V.
EQUITONE gevelpanelen
Holonite B.V.
Kronospan
Tata Steel Colorcoat®
Architectenweb
Over ons
Contact

© 2002 - 2026 Architectenweb BV / Voorwaarden / Privacy / Disclaimer / Sitemap
Annuleren
OK
Sluiten
Doorgaan
Inloggen
Maak een gratis persoonlijk account aan