Abonneer je nu op onze nieuwsbrieven!
Abonneren
Nee, bedankt
Ja, denk met me mee rond de
materialisering van mijn project
Producten
De Uiterwaarden Deventer
Copyright: Studio Groen+Schild - Mike Bink fotografie
Houten gevel - Accoya
Copyright: Studio Groen+Schild - Mike Bink fotografie
Ontwerp landschap Buro Harro
Copyright: Studio Groen+Schild
Conceptschets
Copyright: Studio Groen+Schild
De Uiterwaarden Deventer
Copyright: Studio Groen+Schild - Mike Bink fotografie
Entree
Copyright: Studio Groen+Schild - Mike Bink fotografie
Vide bij entree
Copyright: Studio Groen+Schild - Mike Bink fotografie
Doorsneden
Copyright: Studio Groen+Schild
Trap en vide
Copyright: Studio Groen+Schild - Mike Bink fotografie
Detail trapleuning
Copyright: Studio Groen+Schild - Mike Bink fotografie
Tuinkamer
Copyright: Studio Groen+Schild - Mike Bink fotografie
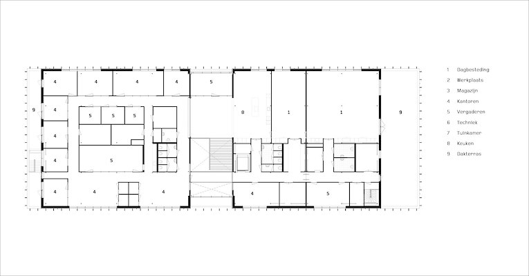
Plattegrond Begane grond
Copyright: Studio Groen+Schild
Plattegrond verdieping
Copyright: Studio Groen+Schild
Keuken
Copyright: Studio Groen+Schild - Mike Bink fotografie
Kastenwanden
Copyright: Studio Groen+Schild - Mike Bink fotografie
Vergaderruimte
Copyright: Studio Groen+Schild - Mike Bink fotografie
Dakterras
Copyright: Studio Groen+Schild - Mike Bink fotografie
De Uiterwaarden Deventer
Copyright: Studio Groen+Schild - Mike Bink fotografie
ProducttagsAANUIT

De Uiterwaarden Deventer

3 juni 2025
De Parabool ondersteunt kinderen, (jong)volwassenen en ouderen met een verstandelijke beperking. Vanuit kleinschalige woon-, werk- en dagbestedingslocaties in Zuidwest-Overijssel richt de organisatie zich op persoonlijke ontplooiing, het versterken van sociale contacten en volwaardige deelname aan de samenleving.

Voorheen waren het servicebureau en de dagbestedingslocaties verspreid over Deventer en Schalkhaar. De bestaande gebouwen voldeden echter niet meer aan de eisen van deze tijd; ze waren verouderd, lastig te onderhouden, niet duurzaam en sloten niet meer aan bij de visie en werkwijze van De Parabool.

Om toekomstgericht te kunnen blijven werken, koos De Parabool voor een bundeling van functies op één centrale locatie: de Uiterwaarden aan de Brederodelaan in Deventer. In dit nieuwe gebouw zijn het servicebureau en vier dagbestedingsgroepen ondergebracht - samen onder één dak. Deze centralisatie bevordert samenwerking, efficiënt ruimtegebruik en versterkt de onderlinge verbinding tussen medewerkers en cliënten.

Het nieuwe gebouw is ontworpen met de menselijke maat en een warme uitstraling als uitgangspunt. De houten gevel met verticale lamellen geeft het pand een gastvrije en natuurlijke uitstraling en sluit mooi aan bij de groene omgeving van het nabijgelegen park aan de Jan Luykenkolk.

Op het gebied van natuurinclusief bouwen zijn bewuste keuzes gemaakt: zo zijn in de architectuur nestkasten voor vogels en vleermuizen geïntegreerd, evenals schuilplekken voor egels. Daarmee draagt het gebouw actief bij aan de lokale biodiversiteit.

Het gebouw is functioneel ingedeeld, met duidelijke keuzes voor rust en activiteit: aan de voorzijde, de drukkere straatzijde, op de begane grond bevinden zich de meer gesloten facilitaire ruimtes. Aan de achterzijde zijn de dagbestedingsruimtes gesitueerd, grenzend aan een beschutte tuin die kan worden gebruikt voor de buitenactiviteiten.

Op de verdieping bevinden zich aan de ene kant de kantoren en vergaderruimtes; aan de andere kant de overige dagbestedingsruimtes. Hier is ook een ruim dakterras aanwezig, geschikt voor buitenactiviteiten. Dankzij de doorlopende lamellen ontstaat hier een beschutte ‘buitenkamer’.

Architectonisch bestaat het pand uit twee volumes, verbonden door een centrale tussenruimte, een soort intern straatje met de hoofdentree, een royale trap en een tuinkamer aan de achterzijde. De materialisering van deze tussenruimte sluit aan bij de rest van het gebouw - een gemetselde plint met houten gevelbekleding, buiten en binnen zijn met elkaar verbonden. De vloerafwerking die refereert aan straatklinkers versterkt dit.

Binnen valt direct de vaste inrichting op. Over de gehele lengte van het gebouw loopt een multifunctionele kastenwand. Deze is uitgevoerd in groen betonplex, een robuust en watervast materiaal. Deze wand herbergt pantry’s, compacte werkplekken en opslag voor de dagbesteding.

Op de eerste verdieping bevindt zich een keuken, eveneens uitgevoerd in groen betonplex. Deze keuken wordt dagelijks gebruikt door cliënten van de dagbesteding om onder andere lunches te bereiden voor medewerkers van het servicebureau. Dit creëert waardevolle leermomenten en versterkt de ontmoeting tussen de verschillende gebruikers van het gebouw.

Het resultaat is een duurzaam, eigentijds en uitnodigend gebouw dat ruimte biedt voor ontmoeting, ondersteuning en ontwikkeling. Een plek waar medewerkers prettig kunnen werken, cliënten zich veilig en welkom voelen, en bezoekers gastvrij worden ontvangen.

Fotografie: Mike Bink

Bouwteam
De Parabool, Studio Groen+Schild, Buro Harro, Constructieadvies WSP, Nikkels Bouwbedrijf, Loohuis Installatiegroep, Kleissen Bouwmanagement

Projectteam Studio Groen+Schild 
Ellen Schild, Arnold de Bruin, Marcel van der Kroef, Dyneke Kuiken


Stel jezelf kort voor! Dan weet het betreffende bedrijf wie hun model gedownload heeft.
Wil je niet bij elke download jouw gegevens in hoeven voeren?
Klik dan hier om in te loggen.

Heb je nog geen account? Maak dan hier een gratis account aan.
Voornaam
Achternaam
E-mailadres
Downloaden
Wanneer je modellen downloadt op Architectenweb.nl worden relevante gegevens van jou – zoals jouw naam en e-mailadres – met het betreffende bedrijf gedeeld. Meer hierover lees je in ons privacybeleid.

Locatie

Neem contact op met Studio Groen+Schild

Je bent momenteel niet ingelogd. Hierdoor is het alleen mogelijk om meer informatie per e-mail op te vragen. Wil je liever gebeld worden of documentatie per post ontvangen? Klik dan hier om in te loggen.
Heb je nog geen account? Maak dan hier een gratis account aan.
Voornaam
Achternaam
E-mailadres
Opmerkingen
Bij iedere aanvraag worden relevante gegevens van jou gedeeld met het betreffende bedrijf. Meer hierover lees je in ons privacybeleid.
Ja, denk met me mee rond de
materialisering van mijn project

Meer projecten van Studio Groen+Schild

Studio Groen+Schild
Studio Groen+Schild
Studio Groen+Schild
Studio Groen+Schild
Studio Groen+Schild
Studio Groen+Schild
Studio Groen+Schild
Studio Groen+Schild
Studio Groen+Schild
Studio Groen+Schild
Studio Groen+Schild
Studio Groen+Schild
Studio Groen+Schild
Toon alles
ATAG Nederland
KUBUS | Specialist in Archicad
SAPA
Reynaers Aluminium Nederland
Jansen
SAB-profiel bv
Aliplast Aluminium Systems
Kingspan Light & Air
ALUCOBOND®
Caparol
Tarkett BV
Kawneer
Grohe Nederland B.V.
Malaysian Timber Council
OCS | Office Cabling Systems
Swisspearl Nederland
Forster Nederland N.V.
VELUX Commercial Benelux B.V.
Sempergreen
Houthandel van Dam
Aluprof Nederland BV
QbiQ Wall Systems
Forbo Flooring
Schüco Nederland
Cedral
Sto Isoned bv
Triflex bv
Gorter Luiken BV
wienerberger
DUCO Ventilation & Sun Control
BEWI IsoBouw
ROCKWOOL B.V.
Mview+
Rockfon (ROCKWOOL B.V.)
Gira Nederland B.V.
Kingspan Geïsoleerde Panelen
GEZE Benelux  B.V.
Renson
Metaglas Groep
ABB | Busch-Jaeger
Jung | Hateha B.V.
Knauf B.V.
Saint-Gobain Glass Benelux
Faay Vianen B.V.
objectflor
Boon Edam Nederland B.V.
Hunter Douglas Architectural
VOLA Nederland BV
Forbo Eurocol Nederland B.V.
EQUITONE gevelpanelen
Holonite B.V.
Tata Steel Colorcoat®
Architectenweb
Over ons
Contact

© 2002 - 2026 Architectenweb BV / Voorwaarden / Privacy / Disclaimer / Sitemap
Annuleren
OK
Sluiten
Doorgaan
Inloggen
Maak een gratis persoonlijk account aan