Projecten
Producten
Bedrijven
Vacatures
Agenda
Awards
Podcasts
more_horiz
Videos
Magazine
Thema's
Favorieten
Profiel
Uitloggen
Abonneer je nu op onze nieuwsbrieven!
Abonneren
Nee, bedankt
Ja, denk met me mee rond de
materialisering van mijn project
Producten
Het Oversticht Zwolle
Copyright: Studio Groen+Schild - Mike Bink fotografie
Het Oversticht Zwolle
Copyright: Studio Groen+Schild - Mike Bink fotografie
Het Oversticht Zwolle
Copyright: Studio Groen+Schild - Mike Bink fotografie
Het Oversticht Zwolle
Copyright: Studio Groen+Schild - Mike Bink fotografie
Het Oversticht Zwolle
Copyright: Studio Groen+Schild - Mike Bink fotografie
Het Oversticht Zwolle
Copyright: Studio Groen+Schild - Mike Bink fotografie
Het Oversticht Zwolle
Copyright: Studio Groen+Schild - Mike Bink fotografie
Het Oversticht Zwolle
Copyright: Studio Groen+Schild - Mike Bink fotografie
Het Oversticht Zwolle
Copyright: Studio Groen+Schild
Het Oversticht Zwolle
Copyright: Studio Groen+Schild - Mike Bink fotografie
Het Oversticht Zwolle
Copyright: Studio Groen+Schild - Mike Bink fotografie
Plattegrond Begane grond
Copyright: Studio Groen+Schild
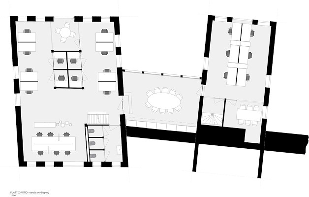
Plattegrond 1e verdieping
Copyright: Studio Groen+Schild
Plattegrond 2e verdieping
Copyright: Studio Groen+Schild
Producttags
AAN
UIT
Het Oversticht & Natuur en Milieu Overijssel
3 juni 2025
0
0
0
0
Het Oversticht adviseert over de ruimtelijke kwaliteit van onze leefomgeving met een focus op omgevingskwaliteit, erfgoed en duurzaamheid. De organisatie is gehuisvest in een tweetal prachtige, rijksmonumentale, pakhuizen in de binnenstad van Zwolle. Bouwkundig, installatietechnisch en op het gebied van duurzaamheid waren de panden verouderd en de werkomgeving voldeed niet meer aan de huidige wensen. Daarnaast heeft Het Oversticht minder ruimte nodig doordat er meer hybride wordt gewerkt. Natuur en Milieu Overijssel, een organisatie waar Het Oversticht veel mee samenwerkt, zocht kantoorruimte en is verhuist naar de pakhuizen.
Het werkveld van beide organisaties vroeg om een zorgvuldige verduurzaming van de panden. Het eindresultaat is een echt visitekaartje. De gevels en daken van de twee gebouwen zijn aan de binnenzijde geïsoleerd, de kozijnen zijn voorzien van achterzetramen. De gasgestookte cv is vervangen door een warmtepomp. Het verduurzamen van monumentale gebouwen is kostentechnisch en esthetisch een uitdaging. In een bouwteam, bestaande uit de opdrachtgever, aannemer, installateur en Studio Groen+Schild als architect, zijn diverse varianten onderzocht en oplossingen ontwikkeld die kwalitatief goed passen bij het rijksmonument en binnen budget gerealiseerd zijn.
Het werken in het pand is ook echt een visitekaartje. Op de begane grond staan interactie en samenwerken centraal. Een eet-werkcafé en vergaderruimtes staan in open verbinding met elkaar. Op de verdiepingen zijn werkplekken voor communicatie en concentratie gerealiseerd. Hoe hoger in het gebouw hoe rustiger het wordt. Op zolder zijn stiltewerkplekken in een bibliotheek met boeken van beide organisaties.
Bouwteam Het Oversticht: Studio Groen+Schild, Ingenieursbureau Gadella, Van Wijnen Zwolle, BITE Installatie
Stel jezelf kort voor! Dan weet het betreffende bedrijf wie hun model gedownload heeft.
Wil je niet bij elke download jouw gegevens in hoeven voeren?
Klik dan hier om in te loggen
.
Heb je nog geen account?
Maak dan hier een gratis account aan
.
Voornaam
Achternaam
E-mailadres
Downloaden
Wanneer je modellen downloadt op Architectenweb.nl worden relevante gegevens van jou – zoals jouw naam en e-mailadres – met het betreffende bedrijf gedeeld. Meer hierover lees je in ons
privacybeleid
.
Locatie
Trefwoorden
interieurarchitectuur
architectuur
het oversticht
verduurzaming
interieurontwerp
pakhuis
rjiksmonument
Studio Groen+Schild
Neem contact op
Projectdata
Staat van realisatie
Voltooid
Start ontwerpproces
2023
Start bouw
2024
Oplevering
2025
Ingebruikname
2024
Plaats
Zwolle
Bruto m
2
1500
Meewerkende partijen
Architect
Studio Groen+Schild
Interieurarchitect
Studio Groen+Schild
Aannemer
Van Wijnen Zwolle B.V.
Adviseurs installaties E & W
Ingenieursbureau Gadella, Bite installatie
Fotograaf
Mike Bink Fotografie
Leveranciers
Overig
Pet projectinrichters
Neem contact op met
Studio Groen+Schild
Je bent momenteel niet ingelogd. Hierdoor is het alleen mogelijk om meer informatie per e-mail op te vragen. Wil je liever gebeld worden of documentatie per post ontvangen?
Klik dan hier om in te loggen
.
Heb je nog geen account?
Maak dan hier een gratis account aan
.
Voornaam
Achternaam
E-mailadres
Opmerkingen
Bij iedere aanvraag worden relevante gegevens van jou gedeeld met het betreffende bedrijf. Meer hierover lees je in ons
privacybeleid
.
Ja, denk met me mee rond de
materialisering van mijn project
Meer projecten van Studio Groen+Schild
De Uiterwaarden Deventer
Studio Groen+Schild
Faculteit ITC Universiteit Twente
Studio Groen+Schild
Lab42 Universiteit van Amsterdam
Studio Groen+Schild
Herbestemming Pakhuis de Wereld
Studio Groen+Schild
Hogeschool Rotterdam Business School
Studio Groen+Schild
Interieur restaurant De Zwarte Silo Deventer
Studio Groen+Schild
Transformatie reinwaterkelder tot woning
Studio Groen+Schild
Turmac Cultuurfabriek
Studio Groen+Schild
Interieur Landal Greenparks
Studio Groen+Schild
Renovatie en interieur Huis van de Stad
Studio Groen+Schild
Uitbreiding en renovatie CKE Eindhoven
Studio Groen+Schild
Transformatie Grijze silo Deventer
Studio Groen+Schild
Renovatie stadswoning
Studio Groen+Schild
Kantoor Vreugdenhil
Studio Groen+Schild
Uitbouw woning
Studio Groen+Schild
Expositie in De Waag
Studio Groen+Schild
Radboud Docenten Academie
Studio Groen+Schild
Dimence Westerdok
Studio Groen+Schild
Transformatie pakhuis
Studio Groen+Schild
Kantoor Veiligheidsregio en GGD Drenthe
Studio Groen+Schild
Kantoor GGD Noord- en Oost Gelderland
Studio Groen+Schild
Kunst en Architectuur: Lucy Glxy
Studio Groen+Schild
Universiteit Twente
Studio Groen+Schild
Schuurwoning
Studio Groen+Schild
DAVO Havenkwartier
Studio Groen+Schild
Hoofdkantoor TenneT
Studio Groen+Schild
Grotiusgebouw Radboud Universiteit
Studio Groen+Schild
Verbouwing boerderij
Studio Groen+Schild
Hoogheemraadschap van Rijnland
Studio Groen+Schild
Energiebesparend woongebouw
Studio Groen+Schild
Renovatie en transformatie Kasteel Groeneveld
Studio Groen+Schild
LeasePlan WTC Carlton Almere
Studio Groen+Schild
Innovatief kantoor PA&O, Universiteit Twente
Studio Groen+Schild
Kantoor Waterschap Rijn en IJssel, Doetinchem
Studio Groen+Schild
Kantoor SNS REAAL en Beheer SNS REAAL
Studio Groen+Schild
Innovatief kantoor Draaijer+Partners, Groningen
Studio Groen+Schild
Restaurant Belastingdienst, Eindhoven
Studio Groen+Schild
Restaurant Merkelbach, Amsterdam
Studio Groen+Schild
Innovatief kantoor Belastingdienst, Zwolle
Studio Groen+Schild
Uitbreiding en verbouwing woning, Epse
Studio Groen+Schild
De Uiterwaarden Deventer
Studio Groen+Schild
Faculteit ITC Universiteit Twente
Studio Groen+Schild
Lab42 Universiteit van Amsterdam
Studio Groen+Schild
Herbestemming Pakhuis de Wereld
Studio Groen+Schild
Hogeschool Rotterdam Business School
Studio Groen+Schild
Interieur restaurant De Zwarte Silo Deventer
Studio Groen+Schild
Transformatie reinwaterkelder tot woning
Studio Groen+Schild
Turmac Cultuurfabriek
Studio Groen+Schild
Interieur Landal Greenparks
Studio Groen+Schild
Renovatie en interieur Huis van de Stad
Studio Groen+Schild
Uitbreiding en renovatie CKE Eindhoven
Studio Groen+Schild
Transformatie Grijze silo Deventer
Studio Groen+Schild
Renovatie stadswoning
Studio Groen+Schild
Kantoor Vreugdenhil
Studio Groen+Schild
Uitbouw woning
Studio Groen+Schild
Expositie in De Waag
Studio Groen+Schild
Radboud Docenten Academie
Studio Groen+Schild
Dimence Westerdok
Studio Groen+Schild
Transformatie pakhuis
Studio Groen+Schild
Kantoor Veiligheidsregio en GGD Drenthe
Studio Groen+Schild
Kantoor GGD Noord- en Oost Gelderland
Studio Groen+Schild
Kunst en Architectuur: Lucy Glxy
Studio Groen+Schild
Universiteit Twente
Studio Groen+Schild
Schuurwoning
Studio Groen+Schild
DAVO Havenkwartier
Studio Groen+Schild
Hoofdkantoor TenneT
Studio Groen+Schild
Grotiusgebouw Radboud Universiteit
Studio Groen+Schild
Verbouwing boerderij
Studio Groen+Schild
Hoogheemraadschap van Rijnland
Studio Groen+Schild
Energiebesparend woongebouw
Studio Groen+Schild
Renovatie en transformatie Kasteel Groeneveld
Studio Groen+Schild
LeasePlan WTC Carlton Almere
Studio Groen+Schild
Innovatief kantoor PA&O, Universiteit Twente
Studio Groen+Schild
Kantoor Waterschap Rijn en IJssel, Doetinchem
Studio Groen+Schild
Kantoor SNS REAAL en Beheer SNS REAAL
Studio Groen+Schild
Innovatief kantoor Draaijer+Partners, Groningen
Studio Groen+Schild
Restaurant Belastingdienst, Eindhoven
Studio Groen+Schild
Restaurant Merkelbach, Amsterdam
Studio Groen+Schild
Innovatief kantoor Belastingdienst, Zwolle
Studio Groen+Schild
Uitbreiding en verbouwing woning, Epse
Studio Groen+Schild
Toon alles
Andere Projecten
Complete buiteninrichting kantooromgeving
Falco B.V.
Vergroening Europakade Tolkamer
ACO BV
Hybride buitenruimte Catharinatoren Zaandam
Solarlux Nederland B.V.
Project Stadhuisplein - Retentie op het parkeerdek
Optigrün Benelux
Van brievenbus tot pakjesoplossing
Larob bv
Horecapaviljoen met dakterras
Zoontjens
Straatmeubilair verrijkt FOUR Frankfurt
Grijsen Park & Straatdesign
De Warren, Amsterdam
WEBO
Sentho maakt bakkerij HACCP-proof met FRP
Sentho B.V.
Een Centrum voor Iedereen MFA Ewijk
SSAB Swedish Steel BV
Residence Noordwijk
Van Bruchem Staircases
5Tracks - inspirerende atriums met JUNG
Jung | Hateha B.V.
Ga naar het projecten-overzicht
Voor een optimale gebruikservaring plaatst Architectenweb functionele cookies. Wat de verschillende cookies precies doen leggen we uit in een
overzicht
. Cookies van social media kun je optioneel
aanzetten
.
Akkoord
Instellingen
Annuleren
OK
Sluiten
Doorgaan
Inloggen
Maak een gratis persoonlijk account aan
Feedback
Feedback
Wij horen graag jouw feedback. Laat je reactie achter en eventueel jouw e-mail adres.
Reactie
Verstuur