Abonneer je nu op onze nieuwsbrieven!
Abonneren
Nee, bedankt
Ja, denk met me mee rond de
materialisering van mijn project
Producten
De Stoomkracht
Copyright: Anna Odulinska
De Stoomkracht
Copyright: Anna Odulinska
De Stoomkracht
Copyright: Anna Odulinska
Entreezone
Copyright: Anna Odulinska
Tuinzijde
Copyright: Anna Odulinska
Binnentuin
Copyright: Anna Odulinska
Trap naar verhoogde tuin
Copyright: Anna Odulinska
Trap naar verhoogde tuin
Copyright: Anna Odulinska
Toegang vanuit de verhoogde tuin
Copyright: Anna Odulinska
Binnentuin met trap
Copyright: Anna Odulinska
Leefgallerij
Copyright: Anna Odulinska
Leefgallerij
Copyright: Anna Odulinska
Interieur appartement
Copyright: Anna Odulinska
Interieur appartement
Copyright: Anna Odulinska
Interieur hoekappartement
Copyright: Anna Odulinska
Interieur hoekappartement
Copyright: Anna Odulinska
Gevel De Stoomkracht
Copyright: Anna Odulinska
Maquette ensemble Kavel 6
Copyright: HOH Architecten
Plattegrond ensemble Kavel 6
Copyright: HOH Architecten
Beplantingsplan binnentuin Kavel 6
Copyright: HOH Architecten
Plattegrond begane grond
Copyright: HOH Architecten
Plattegrond verdieping
Copyright: HOH Architecten
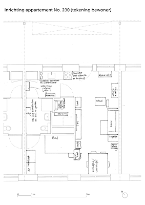
Inrichting appartement (tekening bewoner)
Copyright: HOH Architecten
Inrichting appartement (tekening bewoner)
Copyright: HOH Architecten
Inrichting appartement (tekening bewoner)
Copyright: HOH Architecten
ProducttagsAANUIT

De Stoomkracht – Een dubbelpand voor senioren

1 juni 2024
Kavel 6 Oostenburgereiland – Ensemble sociale woningbouw voor alle leeftijden rondom een collectieve binnentuin. Een dubbelpand voor senioren – De Stoomkracht.

Kavel 6 is een stedenbouwkundig ensemble met sociale huurwoningen dat bestaat uit 170 studio's voor jongeren en 30 appartementen voor senioren. Het maakt onderdeel uit van de grote stedelijke transformatie van het voormalige industrieterrein Oostenburgereiland, naar een nieuwbouwwijk met circa 1500 woningen in Amsterdam.

De studio's voor jongeren zijn opgenomen in woontoren 'De Stork', ontworpen door Next Architects en woonblokken 'De Sluis' en 'De Werkplaats', ontworpen door Urban Echoes. De appartementen voor senioren zijn opgenomen in het hoekgebouw 'De Stoomkracht', ontworpen door HOH Architecten. HOH was ook verantwoordelijk voor het ontwerp van het stedenbouwkundig ensemble en de binnentuin.

Het ensemble sluit nadrukkelijk aan op de stedenbouwkundige context van Oostenburgereiland en haar kenmerkende panden-structuur. Alle gebouwen hebben hun entree aan de hoofdstraat van het eiland, de Oostenburgermiddenstraat. Qua bebouwing is de woontoren het herkenningspunt vanaf het spoor aan de noordkant van het ensemble. Met het lange en smalle hoekgebouw aan de zuidkant sluit het ensemble aan op de robuuste schaal van het INIT-gebouw, het kantoorgebouw waarin o.a. De Volkskrant en de gemeentereinigingsdienst gehuisvest zijn.

Tegelijkertijd heeft Kavel 6 ook een intiem en eigen karakter in de vorm van de gemeenschappelijke binnentuin. Deze tuin vormt een groene oase van rust en ontmoeting voor de bewoners, jong en oud, midden in de hectiek van dit nieuwe en bruisende stadsdeel.

De tuin bevindt zich op twee niveaus met elk een eigen karakter en beplantingsplan: een schaduwrijke tuin met bomen in volle grond, en een zonnige tuin op het dak van een logistieke corridor die over de kavel loopt, bestemd voor de gemeentereinigingsdienst. De niveaus van de binnentuin worden met elkaar verbonden door een royale trap die voorzien is van plantenbakken waardoor de trap ook een onderdeel van de tuin wordt. De trap en de corridor zijn voorzien van een mat spiegelende beplating, waardoor de relatief kleine tuin optisch groter lijkt en het licht dat in de tuin valt zoveel mogelijk wordt weerkaatst.

Door het aangrenzende parkeerhuis te voorzien van begroeiing, wordt het parkeerhuis opgenomen in de binnentuin. Hiermee wordt de biodiversiteit, de uitstraling en de akoestiek in het hart van de kavel verhoogd, en worden met het beplantingsplan van de tuin de verschillende seizoenen beleefbaar gemaakt.

Het hoekgebouw vertaalt het stedenbouwkundige principe van de panden-stad naar architectonische uitgangspunten door het gebouw in functie en materialisatie op te splitsen in twee bouwdelen, waardoor er een dubbelpand ontstaat.

Eén bouwdeel van 3 meter breed dient als ruime entree voor het woongebouw, verticale circulatie, de buitenruimte en ontmoetingsplek voor de bewoners. Dit bouwdeel heeft een goudkleurig entreeportaal, een industriële uitstraling en wordt afgewerkt met een roestvrijstalen 'mesh' als doorvalbeveiliging, die aan de tuinzijde begroeid wordt met klimplanten, waardoor het één wordt met de begroeiing van de binnentuin.

Het andere bouwdeel, op de hoek van het ensemble, huisvest op de begane grond een open werkruimte en op de verdiepingen 30 appartementen voor senioren en is opgetrokken uit metselwerk van zwarte moduulstenen. De grote vierkante raamopeningen verspringen ten opzichte van elkaar binnen het strakke vierkante grid van de stenen, waardoor een zwaar gebouw toch speels wordt en de individuele woning meer opgaat in het collectieve geheel.

De compacte appartementen (gebruiksoppervlak 40m2) hebben een slimme indeling die gebruiksvriendelijk is voor ouderen die mogelijk later te maken krijgen met een beperkte mobiliteit. Een kern met badkamer, toilet, berging en installaties, is het centrale element van de woning waaromheen de bewoner vrij kan bewegen. De kern maakt zowel een flexibele indeling als een heldere scheiding met het privé-domein mogelijk, zonder dat dit ten koste gaat van de functionaliteit en ruimtelijkheid van het appartement.

Stel jezelf kort voor! Dan weet het betreffende bedrijf wie hun brochure gedownload heeft.
Wil je niet bij elke download jouw gegevens in hoeven voeren?
Klik dan hier om in te loggen. Heb je nog geen account? Maak dan hier een gratis account aan.
Voornaam
Achternaam
E-mailadres
Downloaden
Wanneer je brochures downloadt op Architectenweb.nl worden relevante gegevens van jou – zoals jouw naam en e-mailadres – met het betreffende bedrijf gedeeld. Meer hierover lees je in ons privacybeleid.
Wanneer je brochures downloadt op Architectenweb.nl worden relevante gegevens van jou – zoals jouw naam en e-mailadres – met het betreffende bedrijf gedeeld. Meer hierover lees je in ons privacybeleid.

Stel jezelf kort voor! Dan weet het betreffende bedrijf wie hun model gedownload heeft.
Wil je niet bij elke download jouw gegevens in hoeven voeren?
Klik dan hier om in te loggen.

Heb je nog geen account? Maak dan hier een gratis account aan.
Voornaam
Achternaam
E-mailadres
Downloaden
Wanneer je modellen downloadt op Architectenweb.nl worden relevante gegevens van jou – zoals jouw naam en e-mailadres – met het betreffende bedrijf gedeeld. Meer hierover lees je in ons privacybeleid.

Locatie

Neem contact op met HOH Architecten

Je bent momenteel niet ingelogd. Hierdoor is het alleen mogelijk om meer informatie per e-mail op te vragen. Wil je liever gebeld worden of documentatie per post ontvangen? Klik dan hier om in te loggen.
Heb je nog geen account? Maak dan hier een gratis account aan.
Voornaam
Achternaam
E-mailadres
Opmerkingen
Bij iedere aanvraag worden relevante gegevens van jou gedeeld met het betreffende bedrijf. Meer hierover lees je in ons privacybeleid.
Ja, denk met me mee rond de
materialisering van mijn project

Meer projecten van HOH Architecten

Gerelateerde producten

Carl Stahl Architectuur
ATAG Nederland
KUBUS | Specialist in Archicad
SAPA
Reynaers Aluminium Nederland
Jansen
SAB-profiel bv
Aliplast Aluminium Systems
Kingspan Light & Air
ALUCOBOND®
Caparol
Tarkett BV
Kawneer
Grohe Nederland B.V.
Malaysian Timber Council
OCS | Office Cabling Systems
Swisspearl Nederland
Forster Nederland N.V.
VELUX Commercial Benelux B.V.
Sempergreen
Houthandel van Dam
Aluprof Nederland BV
QbiQ Wall Systems
Forbo Flooring
Schüco Nederland
Cedral
Sto Isoned bv
Triflex bv
Gorter Luiken BV
wienerberger
DUCO Ventilation & Sun Control
BEWI IsoBouw
ROCKWOOL B.V.
Mview+
Rockfon (ROCKWOOL B.V.)
Gira Nederland B.V.
Kingspan Geïsoleerde Panelen
GEZE Benelux  B.V.
Renson
Metaglas Groep
ABB | Busch-Jaeger
Jung | Hateha B.V.
Knauf B.V.
Saint-Gobain Glass Benelux
Faay Vianen B.V.
objectflor
Boon Edam Nederland B.V.
Hunter Douglas Architectural
VOLA Nederland BV
Forbo Eurocol Nederland B.V.
EQUITONE gevelpanelen
Holonite B.V.
Tata Steel Colorcoat®
Architectenweb
Over ons
Contact

© 2002 - 2026 Architectenweb BV / Voorwaarden / Privacy / Disclaimer / Sitemap
Annuleren
OK
Sluiten
Doorgaan
Inloggen
Maak een gratis persoonlijk account aan