Projecten
Producten
Bedrijven
Vacatures
Agenda
Awards
Podcasts
more_horiz
Videos
Magazine
Favorieten
Profiel
Uitloggen
Abonneer je nu op onze nieuwsbrieven!
Abonneren
Nee, bedankt
Ja, denk met me mee rond de
materialisering van mijn project
Producten
Copyright: Thomas Latjes
Copyright: Thomas Latjes
Copyright: Thomas Latjes
axonometrie
Copyright: HP Architecten
historische foto
Copyright: HP Architecten
Copyright: Thomas Latjes
Copyright: Thomas Latjes
Copyright: Thomas Latjes
Copyright: Thomas Latjes
Copyright: Thomas Latjes
Copyright: Thomas Latjes
Copyright: Thomas Latjes
Copyright: Thomas Latjes
Copyright: Thomas Latjes
Copyright: Thomas Latjes
Copyright: Thomas Latjes
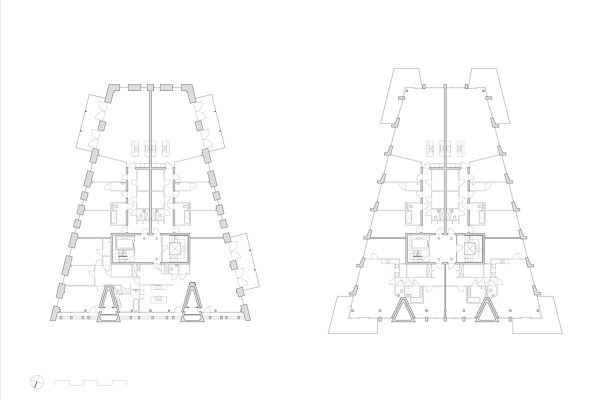
plattegronden
Copyright: HP Architecten
hergebruik van de oude mozaïeken
Copyright: HP Architecten
hergebruik van de oude mozaïeken
Copyright: HP Architecten
Producttags
AAN
UIT
Transformatie Fonteinkerk
20 maart 2024
2
0
0
0
De Fonteinkerk is een eigenwijs en robuust gemeentelijk monument uit de jaren vijftig. Na zeventig jaar is ze begonnen aan haar tweede leven. Van een in onbruik geraakt kerkgebouw is ze door HP architecten getransformeerd tot woongebouw met 19 appartementen.
Van huis voor de geest naar woning
De Fonteinkerk, naar een ontwerp van Albert van Essen, is in 1958 in gebruik genomen en kwam tot stand door een grote financiële actie voor een kerkgebouw in de wijk West in Voorburg. In 2014 was het eigenwijze en robuuste monument toe aan haar tweede leven. De Protestantse Gemeente Voorburg besloot het gebouw te verkopen en is er gezocht naar een koper die het gebouw een nieuwe functie wilde geven.
Het meest karakteristiek zijn de twee hoge betonnen klokkentorens en de glazen voorgevel. De ruwe baksteen gevel draagt een aantal grote balken waarop het dak rustte. Diezelfde balken dragen nu de drielaagse nieuwbouw die op het gemeentelijke monument is gestapeld. In beeld althans. De constructieve realiteit is dat er aan de binnenzijde een volledig nieuwe constructie is toegevoegd die de nieuwbouw draagt.
Verbindende vondst
De rigoureuze beslissing om het toe te voegen woningprogramma óp het gebouw te plaatsen in plaats van ernaast ontstond na een uitgebreide zoektocht. Het programma op de locatie bestond aanvankelijk uit twee delen: appartementen in de kerk en een vergelijkbaar woningaantal in een nieuw gebouw daarnaast. Dit programma bleek samen met de gevraagde hoeveelheid parkeerplaatsen nauwelijks op het terrein oplosbaar, het wrong aan meerdere kanten. Door het woonprogramma te stapelen op de te transformeren kerk ontstonden er ineens kansen en kwaliteiten. Het terrein rond het gebouw kon haar parkachtige opzet behouden, het parkeren paste ontspannen naast het gebouw en de volwassen bomen konden allemaal gespaard blijven.
Bovenstaande leest wellicht als een slimme vondst van de architect, maar het is veel meer dan dat. Het was de uitkomst van het bij elkaar brengen van de vele belangen, spanningen en wensen in een antwoord waarin alle partijen zich herkenden en aan meewerkten. Naast de klassieke rol van de architect als vormgever is bij een complexe opgave als deze het vermogen nodig om te durven handelen als regisseur of als formateur. Een rol waarbij je vanuit vertrouwen in de goede afloop met partijen in gesprek gaat, ze verbindt, hun overeenkomsten en verschillen durft te benoemen, politieke spanning durft te verbinden aan ruimtelijke mogelijkheden. Deze houding gaat niet uit van het klassieke “verdedigen” van je ontwerp, maar van luisteren en doorvragen. Bij de Fonteinkerk leverde het op dat er nu een iconisch project staat waar opdrachtgever, politiek, gemeente, provincie, kerkbestuur, monumentencommissie, welstand, bouwer en bewoners zich unaniem in herkennen.
Dance me to the moon
Oudbouw en nieuwbouw gaan samen als twee dansers. De een kan niet zonder de overgave van de ander. In structuur en karakter reageert de nieuwbouw op de bestaande kerk. Ook het ritme tussen de twee bouwdelen speelt een spannend spel, soms komen ze samen om elkaar daarna weer los te laten en verderop weer te ontmoeten. In de kloeke baksteenwanden van het bestaande gebouw zijn sleuven weggezaagd om voldoende daglicht binnen te laten stromen in de woningen. In kleur en toon sluit de nieuwbouw aan bij de bestaande baksteen en het warme beton. In materiaal en textuur vormt het een contrast: de aluminium gevelpanelen en geanodiseerde kozijnen vangen ieder moment van de dag anders licht. Een spel dat versterkt wordt door de kleine hoekverdraaiing in de gevelpanelen en in de verticale gevelpenanten. In dit spel van kleine verdraaiingen is er een dialoog tussen de oudbouw en de nieuwbouw. In de woningplattegronden komen de niet haakse ontmoetingen van de buitengevels het meest voelbaar terug in de woonkamers. Deze zijn altijd op de hoek gepositioneerd met uitzicht over Voorburg, Den Haag en wie op de bovenste woonverdiepingen ver over de Vliet kijkt, kan de skyline van Rotterdam herkennen.
Stel jezelf kort voor! Dan weet het betreffende bedrijf wie hun brochure gedownload heeft.
Wil je niet bij elke download jouw gegevens in hoeven voeren?
Klik dan hier om in te loggen
. Heb je nog geen account?
Maak dan hier een gratis account aan
.
Voornaam
Achternaam
E-mailadres
Downloaden
Wanneer je brochures downloadt op Architectenweb.nl worden relevante gegevens van jou – zoals jouw naam en e-mailadres – met het betreffende bedrijf gedeeld. Meer hierover lees je in ons
privacybeleid
.
Wanneer je brochures downloadt op Architectenweb.nl worden relevante gegevens van jou – zoals jouw naam en e-mailadres – met het betreffende bedrijf gedeeld. Meer hierover lees je in ons
privacybeleid
.
Brochure
Stel jezelf kort voor! Dan weet het betreffende bedrijf wie hun model gedownload heeft.
Wil je niet bij elke download jouw gegevens in hoeven voeren?
Klik dan hier om in te loggen
.
Heb je nog geen account?
Maak dan hier een gratis account aan
.
Voornaam
Achternaam
E-mailadres
Downloaden
Wanneer je modellen downloadt op Architectenweb.nl worden relevante gegevens van jou – zoals jouw naam en e-mailadres – met het betreffende bedrijf gedeeld. Meer hierover lees je in ons
privacybeleid
.
Locatie
Trefwoorden
kerk
hp architecten
transformatie
woningbouw
voorburg
HP Architecten
Neem contact op
Projectdata
Staat van realisatie
Voltooid
Start ontwerpproces
2017
Start bouw
2022
Oplevering
2023
Ingebruikname
2023
Plaats
Voorburg
Kosten
12975
Meewerkende partijen
Architect
HP Architecten
Projectarchitect
Pelle Poiesz, Thomas Latjes
Ontwerpteam
Jeroen Wassing, Marianne Boonekamp, Karolina Wrzosowska
Opdrachtgever
Wibaut, AIVM
Aannemer
Horsman en Co
Constructeur
Schaal Ingenieurs
Adviseurs installaties E & W
DGM technisch advies
Fotograaf
Thomas Latjes
Landschapsarchitect
Mark van der Heide
Leveranciers
Aluminium gevel
Metadecor
Hekwerken, Kolommen, Stalen kolommen
Wopereis Barendsen Staaltechniek
Prefab beton
Tricon BV
Aluminium kozijnen, Aluminium schuifsysteem
Kawneer
Isokorf
Schöck Nederland b.v
Neem contact op met
HP Architecten
Je bent momenteel niet ingelogd. Hierdoor is het alleen mogelijk om meer informatie per e-mail op te vragen. Wil je liever gebeld worden of documentatie per post ontvangen?
Klik dan hier om in te loggen
.
Heb je nog geen account?
Maak dan hier een gratis account aan
.
Voornaam
Achternaam
E-mailadres
Opmerkingen
Bij iedere aanvraag worden relevante gegevens van jou gedeeld met het betreffende bedrijf. Meer hierover lees je in ons
privacybeleid
.
Ja, denk met me mee rond de
materialisering van mijn project
Meer projecten van HP Architecten
Transformatie ABN-AMRO bankgebouw van Arthur Staal
HP Architecten
Markt, 's Hertogenbosch
HP Architecten
ESP Lab, Delft
HP Architecten
Ruivendwarsstraat
HP Architecten
Transformatie ABN-AMRO bankgebouw van Arthur Staal
HP Architecten
Markt, 's Hertogenbosch
HP Architecten
ESP Lab, Delft
HP Architecten
Ruivendwarsstraat
HP Architecten
Toon alles
Gerelateerde producten
MD Flack Gevelbekleding
Extreem vlakke panelen, geschikt voor veel verschillende toepassingen
Metadecor
RT 72 Reflex
Cradle to Cradle gecertificeerd aluminium raam- en deursysteem
Kawneer
AA 4110
Schuifpuien
Kawneer
Andere Projecten
Houtlook lamellen voor aantrekkelijke nieuwbouw
Renson
De Toerist in Breda
DUCO Ventilation & Sun Control
Solarlux vouwwanden - Zuidkade Scheveningen
Solarlux Nederland B.V.
Multifunctioneel gebouw met aluminium vliesgevel
Aliplast Aluminium Systems
Van gesloten gevel naar transparant visitekaartje
Rockpanel
Den Hartogh Basecamp (Video)
Schüco Nederland
Architectuur met een speels karakter
Caparol
Brandvertragende houten gevelbekleding Hortus Ludi
Foreco Houtproducten
Brouwerij Duvel Moortgat, Breendonk
Jansen
Orato Offices | Nederland
ALUCOBOND®
Onderhoud groene gevels zonder visuele impact
Aerial Access
TU Eindhoven: complete trappenhuizen
M.C. Kersten B.V.
Ga naar het projecten-overzicht
Voor een optimale gebruikservaring plaatst Architectenweb functionele cookies. Wat de verschillende cookies precies doen leggen we uit in een
overzicht
. Cookies van social media kun je optioneel
aanzetten
.
Akkoord
Instellingen
Annuleren
OK
Sluiten
Doorgaan
Inloggen
Maak een gratis persoonlijk account aan
Feedback
Feedback
Wij horen graag jouw feedback. Laat je reactie achter en eventueel jouw e-mail adres.
Reactie
Verstuur