Projecten
Producten
Bedrijven
Vacatures
Agenda
Awards
Podcasts
more_horiz
Videos
Magazine
Favorieten
Profiel
Uitloggen
Abonneer je nu op onze nieuwsbrieven!
Abonneren
Nee, bedankt
Ja, denk met me mee rond de
materialisering van mijn project
Producten
Copyright: Marten van Wijk
Copyright: Marten van Wijk
Copyright: Marten van Wijk
Copyright: Marten van Wijk
Copyright: Marten van Wijk
Copyright: Marten van Wijk
Copyright: Marten van Wijk
Copyright: Marten van Wijk
Copyright: Marten van Wijk
Copyright: Marten van Wijk
Copyright: Marten van Wijk
Copyright: Marten van Wijk
Copyright: Marten van Wijk
Copyright: Marten van Wijk
Copyright: Marten van Wijk
Copyright: Marten van Wijk
Copyright: Marten van Wijk
Copyright: Marten van Wijk
Copyright: Marten van Wijk
Copyright: Marten van Wijk
Copyright: Jaren '30 Architect
Producttags
AAN
UIT
Renovatie van jaren '30 woning in Amersfoort
18 november 2025
2
0
0
0
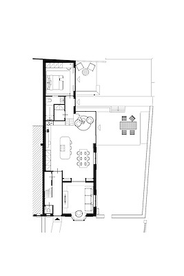
Deze jaren ’30-woning in Amersfoort is volledig gerenoveerd en uitgebreid. De nieuwe aanbouw met bronzen stalen kozijnen, houten gevelbekleding en een pergola vormt een krachtig contrast met de bestaande architectuur. Door het hoogteverschil in het perceel ontstond een duidelijke indeling met de keuken en eetruimte boven en de masterbedroom op het lagere niveau.
Binnen zijn de originele jaren-30 details zorgvuldig behouden. De hal met granito vloer en de kamer-en-suite sluiten weer aan op de oorspronkelijke indeling. De leefkeuken in bronstint vormt het hart van de woning, met veel licht en zichtlijnen naar de tuin. De masterbedroom heeft grote kozijnen en een open badkamer met daklicht.
Buiten zorgen de vergrijsde houten gevel en pergola voor een rustige aansluiting op het bestaande metselwerk. De bronzen stalen kozijnen geven de woning een luxe uitstraling.
Duurzaamheid is volledig geïntegreerd met isolatie, vloerverwarming, warmtepomp, ventilatie met warmteterugwinning en zonnepanelen. Zo combineert de woning karakter, comfort en toekomstbestendigheid.
Lees hier meer over dit project.
Stel jezelf kort voor! Dan weet het betreffende bedrijf wie hun brochure gedownload heeft.
Wil je niet bij elke download jouw gegevens in hoeven voeren?
Klik dan hier om in te loggen
. Heb je nog geen account?
Maak dan hier een gratis account aan
.
Voornaam
Achternaam
E-mailadres
Downloaden
Wanneer je brochures downloadt op Architectenweb.nl worden relevante gegevens van jou – zoals jouw naam en e-mailadres – met het betreffende bedrijf gedeeld. Meer hierover lees je in ons
privacybeleid
.
Wanneer je brochures downloadt op Architectenweb.nl worden relevante gegevens van jou – zoals jouw naam en e-mailadres – met het betreffende bedrijf gedeeld. Meer hierover lees je in ons
privacybeleid
.
Brochure
Stel jezelf kort voor! Dan weet het betreffende bedrijf wie hun model gedownload heeft.
Wil je niet bij elke download jouw gegevens in hoeven voeren?
Klik dan hier om in te loggen
.
Heb je nog geen account?
Maak dan hier een gratis account aan
.
Voornaam
Achternaam
E-mailadres
Downloaden
Wanneer je modellen downloadt op Architectenweb.nl worden relevante gegevens van jou – zoals jouw naam en e-mailadres – met het betreffende bedrijf gedeeld. Meer hierover lees je in ons
privacybeleid
.
Jaren '30 Architect
Neem contact op
Projectdata
Staat van realisatie
Voltooid
Start ontwerpproces
2022
Start bouw
2023
Oplevering
2023
Meewerkende partijen
Architect
Ernst Haagsman
Aannemer
Alfa Totaalbouw
Constructeur
ingenieursbureau de Linge
Leveranciers
Overig
velthuizen keukens, Kloosterziel kozijnen
Neem contact op met
Jaren '30 Architect
Je bent momenteel niet ingelogd. Hierdoor is het alleen mogelijk om meer informatie per e-mail op te vragen. Wil je liever gebeld worden of documentatie per post ontvangen?
Klik dan hier om in te loggen
.
Heb je nog geen account?
Maak dan hier een gratis account aan
.
Voornaam
Achternaam
E-mailadres
Opmerkingen
Bij iedere aanvraag worden relevante gegevens van jou gedeeld met het betreffende bedrijf. Meer hierover lees je in ons
privacybeleid
.
Ja, denk met me mee rond de
materialisering van mijn project
Meer projecten van Jaren '30 Architect
Hoge aanbouw met vide en tuingerichte woonkeuken
Jaren '30 Architect
Gemeentelijk monument verbouwen in Zeist
Jaren '30 Architect
Moderne renovatie jaren 50 tussenwoning
Jaren '30 Architect
Hoge aanbouw met vide en tuingerichte woonkeuken
Jaren '30 Architect
Gemeentelijk monument verbouwen in Zeist
Jaren '30 Architect
Moderne renovatie jaren 50 tussenwoning
Jaren '30 Architect
Toon alles
Andere Projecten
Pol Heeteren BV
Klöber
Akoestische ventilatieroosters woontoren Magnus
Storax
Klimaatinnovatie in houtbouw: Mandemaat 3
Halton Ventilation Systems
Canopy House
Malaysian Timber Council
Kliniek San Juan de Dios in Madrid
ULMA Architectural Solutions
Renovatie parkeergarage De Vest
Triflex bv
Vliesgevel screens Netceed kantoorgebouw
Renson
Kantoorinterieur Greenflux Amsterdam
Bureau Fraai
Nieuwbouw kinderdagverblijf Baakenhafen Hamburg
Sempergreen
CPO Vondelstaete Amersfoort: Passief Wonen
Sto Isoned bv
Nieuwbouw Oostvaarders krijgt Gorter op het dak
Gorter Luiken BV
BOW showroom in Amsterdam!
BOW Systems
Ga naar het projecten-overzicht
Voor een optimale gebruikservaring plaatst Architectenweb functionele cookies. Wat de verschillende cookies precies doen leggen we uit in een
overzicht
. Cookies van social media kun je optioneel
aanzetten
.
Akkoord
Instellingen
Annuleren
OK
Sluiten
Doorgaan
Inloggen
Maak een gratis persoonlijk account aan
Feedback
Feedback
Wij horen graag jouw feedback. Laat je reactie achter en eventueel jouw e-mail adres.
Reactie
Verstuur