Projecten
Producten
Bedrijven
Vacatures
Agenda
Awards
Podcasts
more_horiz
Videos
Magazine
Favorieten
Profiel
Uitloggen
Abonneer je nu op onze nieuwsbrieven!
Abonneren
Nee, bedankt
Ja, denk met me mee rond de
materialisering van mijn project
Producten
Copyright: Sebastian van Damme
Copyright: Sebastian van Damme
Copyright: Sebastian van Damme
Copyright: Sebastian van Damme
Copyright: Sebastian van Damme
Copyright: Sebastian van Damme
Copyright: Sebastian van Damme
Copyright: Sebastian van Damme
Copyright: Sebastian van Damme
Copyright: Sebastian van Damme
laag -1
Copyright: EVA
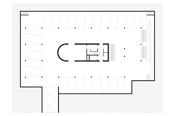
laag 0
Copyright: EVA
laag 1
Copyright: EVA
Copyright: EVA
Copyright: EVA
Copyright: Sebastian van Damme
Copyright: Sebastian van Damme
Copyright: Sebastian van Damme
Copyright: Sebastian van Damme
Copyright: Sebastian van Damme
Copyright: Sebastian van Damme
Producttags
AAN
UIT
Omega
8 februari 2024
0
0
0
0
Een circulair en energiepositief kantoorgebouw van hout is de nieuwe huisvesting van PCS gebouwautomatisering. De hoofdconstructie bestaat uit houten kolommen, liggers en CLT-vloeren. Stabiliteit wordt verkregen uit een betonnen kern. Rondom deze kern ontstaat een vrij indeelbare plattegrond, met in het hart een afsluitbaar podium met tribunetrap voor overleg en presentaties. Het gebouw is energiepositief: het wekt de volledige eigen energiebehoefte (inclusief het gebruikersdeel) op, plus een beetje meer.
Het gebouw is circulair en demontabel ontworpen. De hoofddraagconstructie, waterdichte schil, bouwkundige inrichting, installaties en alle toegepaste materialen kunnen van elkaar gescheiden worden waardoor ze gemakkelijk vervangen of hergebruikt kunnen worden. Om dit in de toekomst mogelijk te maken zijn alle materialen opgenomen in een materialenpaspoort. Materialen zoals PVC, lijm, kit en pur zijn vermeden en er zijn geen samengestelde producten toegepast.
Het gebouw is ontworpen als een tweelaags volume dat is opgetild van het maaiveld om parkeren onder het gebouw en uit het zicht mogelijk te maken. De parkeerkelder is het enige deel van het gebouw dat niet demontabel is. Het a-symmetrische opgetilde volume biedt ruimte aan een beschutte daktuin. Een herkenbare en overdekte entree is op de kop uit het volume gespaard. Door de introductie van een transparante gevel met ronde hoeken krijgt het gebouw een alzijdig karakter. Overkragende gevelbanden variëren in diepte afhankelijk van de oriëntatie en dienen hierdoor ook als zonwering en beperken de energievraag in de zomer. De bovenzijde van deze banden is voorzien van een speciaal samengestelde kruidenmix die bijen, vlinders en andere insecten aantrekt.
Stel jezelf kort voor! Dan weet het betreffende bedrijf wie hun brochure gedownload heeft.
Wil je niet bij elke download jouw gegevens in hoeven voeren?
Klik dan hier om in te loggen
. Heb je nog geen account?
Maak dan hier een gratis account aan
.
Voornaam
Achternaam
E-mailadres
Downloaden
Wanneer je brochures downloadt op Architectenweb.nl worden relevante gegevens van jou – zoals jouw naam en e-mailadres – met het betreffende bedrijf gedeeld. Meer hierover lees je in ons
privacybeleid
.
Wanneer je brochures downloadt op Architectenweb.nl worden relevante gegevens van jou – zoals jouw naam en e-mailadres – met het betreffende bedrijf gedeeld. Meer hierover lees je in ons
privacybeleid
.
Brochure
Stel jezelf kort voor! Dan weet het betreffende bedrijf wie hun model gedownload heeft.
Wil je niet bij elke download jouw gegevens in hoeven voeren?
Klik dan hier om in te loggen
.
Heb je nog geen account?
Maak dan hier een gratis account aan
.
Voornaam
Achternaam
E-mailadres
Downloaden
Wanneer je modellen downloadt op Architectenweb.nl worden relevante gegevens van jou – zoals jouw naam en e-mailadres – met het betreffende bedrijf gedeeld. Meer hierover lees je in ons
privacybeleid
.
Locatie
Trefwoorden
circulair
houtbouw
kantoor
eva
hout
duurzaamheid
EVA
Neem contact op
Projectdata
Staat van realisatie
Voltooid
Start ontwerpproces
2021
Start bouw
2023
Oplevering
2024
Ingebruikname
2024
Plaats
Hendrik-Ido-Ambacht
Kosten
4256
Meewerkende partijen
Architect
EVA architecten
Projectarchitect
Maarten Terberg
Ontwerpteam
Jasper van Uitert, Robin Wong, Daniel Biesheuvel
Opdrachtgever
PCS
Aannemer
van Baaren aannemers, Derix (houtconstructie)
Constructeur
WSP Nederland
Adviseurs installaties E & W
Klimaatservice Holland
Fotograaf
Sebastian van Damme
Visualisaties
Vivid Vision
Gebruiker
PCS
Adviseur bouwfysica
WSP Nederland
Adviseur brandveiligheid
WSP Nederland
Onderaannemer
Derix (houtconstructie)
Gevelbouwer
Rollecate
Installateur
Klimaatservice Holland
Directievoering
Jan van 't Westeinde
Leveranciers
Overig
W. u. J. Derix GmbH & Co.
Vliesgevels
Rollecate
Neem contact op met
EVA
Je bent momenteel niet ingelogd. Hierdoor is het alleen mogelijk om meer informatie per e-mail op te vragen. Wil je liever gebeld worden of documentatie per post ontvangen?
Klik dan hier om in te loggen
.
Heb je nog geen account?
Maak dan hier een gratis account aan
.
Voornaam
Achternaam
E-mailadres
Opmerkingen
Bij iedere aanvraag worden relevante gegevens van jou gedeeld met het betreffende bedrijf. Meer hierover lees je in ons
privacybeleid
.
Ja, denk met me mee rond de
materialisering van mijn project
Meer projecten van EVA
Totaalrenovatie SO Lux, Utrecht
EVA
Transformatie Cosun 1 naar appartementen
EVA
De Curve
EVA
De Drukkerij
EVA
Totaalrenovatie SO Lux, Utrecht
EVA
Transformatie Cosun 1 naar appartementen
EVA
De Curve
EVA
De Drukkerij
EVA
Toon alles
Andere Projecten
Tijdloos nieuwbouwproject – Haaksbergen
Joris Ide
JI NatureBlack - Tijdloos design, staalprestaties
Joris Ide
Nieuwbouwcomplex Elzenhof
Rodruza B.V.
MFC Feanwâlden
KHV Architecten B.V.
Parkeergarage De Caai in Eindhoven
Alucol
Lichtstad Architecten: bouwen aan blijvende ideeën
KUBUS | Specialist in Archicad
Horecapaviljoen Vakantiepark Eigen Wijze
KHV Architecten B.V.
Ontwikkeling Kornputkwartier
KHV Architecten B.V.
IKEA Restaurant, Frankfurt
objectflor
Gevelsteen vormt monumentaal ontwerp
Steenbakkerij Vande Moortel
Nieuw kantoorgebouw
SAPA
Kindcentrum Kampen
Holonite B.V.
Ga naar het projecten-overzicht
Voor een optimale gebruikservaring plaatst Architectenweb functionele cookies. Wat de verschillende cookies precies doen leggen we uit in een
overzicht
. Cookies van social media kun je optioneel
aanzetten
.
Akkoord
Instellingen
Annuleren
OK
Sluiten
Doorgaan
Inloggen
Maak een gratis persoonlijk account aan
Feedback
Feedback
Wij horen graag jouw feedback. Laat je reactie achter en eventueel jouw e-mail adres.
Reactie
Verstuur