Projecten
Producten
Bedrijven
Vacatures
Agenda
Awards
Podcasts
more_horiz
Videos
Magazine
Thema's
Favorieten
Profiel
Uitloggen
Abonneer je nu op onze nieuwsbrieven!
Abonneren
Nee, bedankt
Ja, denk met me mee rond de
materialisering van mijn project
Producten
Copyright: Luuk Kramer
Copyright: Luuk Kramer
Copyright: Luuk Kramer
Copyright: Luuk Kramer
Copyright: Luuk Kramer
Copyright: Luuk Kramer
Copyright: Luuk Kramer
Copyright: Luuk Kramer
Copyright: Luuk Kramer
Copyright: Luuk Kramer
Copyright: Luuk Kramer
Copyright: Luuk Kramer
Copyright: Luuk Kramer
Producttags
AAN
UIT
De Drukkerij
16 augustus 2018
0
0
0
0
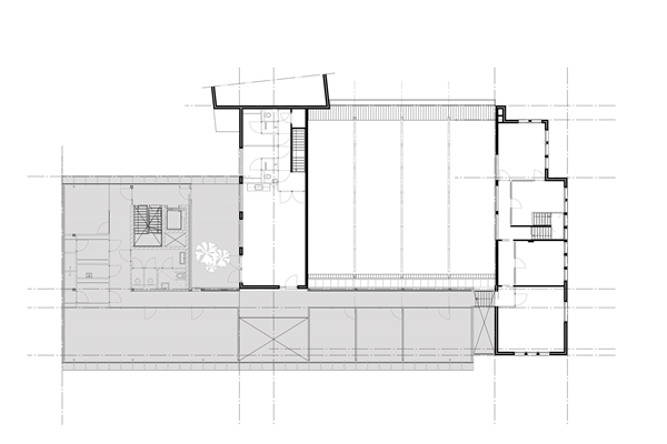
De Nederlandse Provincie der Jezuïeten heeft sinds jaar en dag een woon-, zorg- en verpleeghuis in Nijmegen. Omdat de populatie slinkt werd het gebouw te groot en werd er op zoek gegaan naar vervanging. 700 meter verderop, in de Kloostertuin, werd er een nieuw woongebouw opgericht. In datzelfde park stond een voormalige drukkerij uit de jaren 30 met intact gebleven industriële uitstraling. Deze werd aangekocht en hier zijn alle functies ondergebracht die het woongebouw moeten ondersteunen: refter (restaurant), kantoren en archief. Bovendien werd er een restaurant voor “externen” gerealiseerd. Het totale plan is ontworpen in een ontwerpteam, waarbij Diederendirrix het woongebouw voor zijn rekening nam, Kees Tolk het ontwerp voor de tuin en EVA de drukkerij en uitbreiding daarvan. De gang die gebouwen en tuin verbindt werd in samenspraak ontworpen.
De drukkerij werd gewaardeerd op historische waarde, waarbij bleek dat de latere uitbreidingen weinig tot geen toegevoegde architectonische, ruimtelijke of functionele waarde hadden. Deze zijn er dan ook vanaf “gepeld” tot de eerste bouwfase plus éen latere uitbreiding over bleven. Hier werd vervolgens een nieuw deel aangebouwd waarbij duidelijk af te lezen is wat oud en nieuw is. De begane grond kreeg een zo transparant mogelijk karakter om daglichttoetreding en zicht op het park te maximaliseren. De verdieping is als een alzijdig element geplaatst dat ook binnen afleesbaar is en zowel binnen als buiten laat zien waar oud en nieuw in elkaar over gaan. Hier bevinden zich de kantoren en zo zijn alle functies herkenbaar in hun vormgeving en materialisatie. Door met ritmiek en open/dicht te spelen ontstaat er een alzijdige dynamiek. De geanodiseerde bronskleur komt terug in de kozijnen van het woongebouw en deze kleur is weer afgestemd op het metselwerk van genoemde gebouwen. Op de dichte kopwand op de verdieping is een kunstwerk gerealiseerd van Marc Ruygrok. Een tekst uit “
Handorakel en kunst van de voorzichtigheid”
door Balthasar Gracian (een Jezuïet uit de renaissance) werd geabstraheerd en aangebracht op de gevel. Door de bronzen kleur lijkt dit op een drukplaat en wordt op subtiele manier verwezen naar het verleden van het gebouw. Doordat de tekst een metafoor gebruikt over eten en geschreven is door een Jezuïet wordt ook verwezen naar de nieuwe functie en gebruiker.
Stel jezelf kort voor! Dan weet het betreffende bedrijf wie hun brochure gedownload heeft.
Wil je niet bij elke download jouw gegevens in hoeven voeren?
Klik dan hier om in te loggen
. Heb je nog geen account?
Maak dan hier een gratis account aan
.
Voornaam
Achternaam
E-mailadres
Downloaden
Wanneer je brochures downloadt op Architectenweb.nl worden relevante gegevens van jou – zoals jouw naam en e-mailadres – met het betreffende bedrijf gedeeld. Meer hierover lees je in ons
privacybeleid
.
Wanneer je brochures downloadt op Architectenweb.nl worden relevante gegevens van jou – zoals jouw naam en e-mailadres – met het betreffende bedrijf gedeeld. Meer hierover lees je in ons
privacybeleid
.
Brochure
Stel jezelf kort voor! Dan weet het betreffende bedrijf wie hun model gedownload heeft.
Wil je niet bij elke download jouw gegevens in hoeven voeren?
Klik dan hier om in te loggen
.
Heb je nog geen account?
Maak dan hier een gratis account aan
.
Voornaam
Achternaam
E-mailadres
Downloaden
Wanneer je modellen downloadt op Architectenweb.nl worden relevante gegevens van jou – zoals jouw naam en e-mailadres – met het betreffende bedrijf gedeeld. Meer hierover lees je in ons
privacybeleid
.
Locatie
Trefwoorden
nijmegen
transformatie
drukkerij
duurzaamheid
eva
EVA
Neem contact op
Projectdata
Staat van realisatie
Voltooid
Start bouw
2017
Plaats
Nijmegen
Kosten
3000000
Bruto m
2
1500
m
3
4500
Leveranciers
Overig
Jansen
Neem contact op met
EVA
Je bent momenteel niet ingelogd. Hierdoor is het alleen mogelijk om meer informatie per e-mail op te vragen. Wil je liever gebeld worden of documentatie per post ontvangen?
Klik dan hier om in te loggen
.
Heb je nog geen account?
Maak dan hier een gratis account aan
.
Voornaam
Achternaam
E-mailadres
Opmerkingen
Bij iedere aanvraag worden relevante gegevens van jou gedeeld met het betreffende bedrijf. Meer hierover lees je in ons
privacybeleid
.
Ja, denk met me mee rond de
materialisering van mijn project
Meer projecten van EVA
Totaalrenovatie SO Lux, Utrecht
EVA
Transformatie Cosun 1 naar appartementen
EVA
Omega
EVA
De Curve
EVA
Totaalrenovatie SO Lux, Utrecht
EVA
Transformatie Cosun 1 naar appartementen
EVA
Omega
EVA
De Curve
EVA
Toon alles
Andere Projecten
Huis van de Gemeente Voorst
Kawneer
Rumah Kechik, Malacca
Malaysian Timber Council
Plus Ultra III - EUROLACKE Poedercoatings
EUROLACKE
Energiezuinig gebouwd IKC 's-Heer Arendskerke
wienerberger
Duurzame houten gevelbekleding woning in Sappemeer
Foreco Houtproducten
BDO kantoor Breda
ULMA Architectural Solutions
L-founders of loyalty | Germany
Plan Effect Systeemwanden
Almere Havenkom
HOSPER landschapsarchitectuur
Architects in Motion over abdijrenovatie
KUBUS | Specialist in Archicad
Sentho realiseert hygiënische upgrade
Sentho B.V.
Berflobeek, Hengelo
Bosch Beton
Renovatie vloercontactdozen TU Eindhoven – Vertigo
HPL Systems BV
Ga naar het projecten-overzicht
Voor een optimale gebruikservaring plaatst Architectenweb functionele cookies. Wat de verschillende cookies precies doen leggen we uit in een
overzicht
. Cookies van social media kun je optioneel
aanzetten
.
Akkoord
Instellingen
Annuleren
OK
Sluiten
Doorgaan
Inloggen
Maak een gratis persoonlijk account aan
Feedback
Feedback
Wij horen graag jouw feedback. Laat je reactie achter en eventueel jouw e-mail adres.
Reactie
Verstuur