Projecten
Producten
Bedrijven
Vacatures
Agenda
Awards
Podcasts
more_horiz
Videos
Magazine
Favorieten
Profiel
Uitloggen
Abonneer je nu op onze nieuwsbrieven!
Abonneren
Nee, bedankt
Ja, denk met me mee rond de
materialisering van mijn project
Producten
Energieneutraal sportcomplex Sports Building EUR
Copyright: Ossip van Duivenbode
Het complex is energie-neutraal en het interieur is uitgevoerd in circulair geoogste materialen
Copyright: Ossip van Duivenbode
De binnenstraat is de fysieke en sociale verbinder; licht, hoog, groen, met trappen en loopbruggen
Copyright: Ossip van Duivenbode
De ‘sport boxen’ vormen twee volumes, verbonden door de publieke kern van het complex.
Copyright: Ossip van Duivenbode
een trainings- en wedstrijd- centrum voor meer dan vijftig sporten en 25 verenigingen
Copyright: Ossip van Duivenbode
Het openbare interieur is uitgevoerd in bouwmaterialen die zijn geoogst bij circulaire sloop.
Copyright: Ossip van Duivenbode
11.000 studenten, medewerkers en topsporters maken gebruik van de accommodaties
Copyright: Ossip van Duivenbode
De centrale as door het gebouw fungeert als route én bestemming en verbindt mensen en plekken.
Copyright: Ossip van Duivenbode
Transparante en uitnodigende plint met de horeca en fitness
Copyright: Ossip van Duivenbode
Transparante en uitnodigende plint met de horeca en fitness
Copyright: Ossip van Duivenbode
Sports Building heeft façades van glas en aluminium
Copyright: Ossip van Duivenbode
De hoek van de licht gebogen oostgevel van de centrale doorgang met glazen puien over de volle hoogt
Copyright: Ossip van Duivenbode
De gevel is horizontaal geleed en met verticale vinnen in meerdere ritmes.
Copyright: Ossip van Duivenbode
Sports Building heeft geïntegreerde voorzieningen voor water en zonne-energie
Copyright: Ossip van Duivenbode
Sports Building is van meet af aan als energieneutraal complex ontworpen.
Copyright: Ossip van Duivenbode
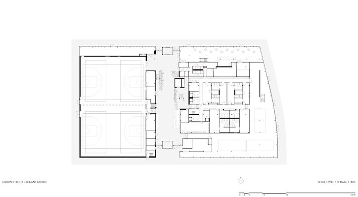
Begane grond van Sports Building EUR
Copyright: VenhoevenCS architecture+urbanism
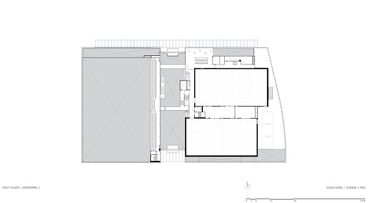
1e verdieping van Sports Building EUR
Copyright: VenhoevenCS architecture+urbanism
2e verdieping van Sports Building EUR
Copyright: VenhoevenCS architecture+urbanism
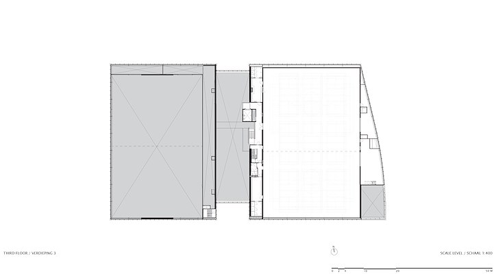
3e verdieping van Sports Building EUR
Copyright: VenhoevenCS architecture+urbanism
Sectie van Sports Building EUR
Copyright: VenhoevenCS architecture+urbanism
Noordgevel van Sports Building EUR
Copyright: VenhoevenCS architecture+urbanism
Situatietekening van Sports Building EUR
Copyright: VenhoevenCS architecture+urbanism
Slimme stapeling van sportzalen
Copyright: VenhoevenCS architecture+urbanism
Producttags
AAN
UIT
Sports Building EUR
15 mei 2023
0
0
0
0
Sports Building activeert een gezond en sociaal studentenleven op de campus van de Erasmus Universiteit Rotterdam. Het sportcomplex is ontworpen voor maar liefst vijftig sporten door de sportzalen slim te stapelen op een compact plot. Het complex is energie-neutraal en het publiek interieur is uitgevoerd in circulair geoogste, hergebruikte materialen. De centrale as door het gebouw fungeert als route én bestemming en verbindt mensen en plekken.
Game on!
Het nieuwe Sports Buildingvan de Erasmus Universiteit Rotterdam is een trainings- en wedstrijd centrum voor meer dan vijftig sporten en 25 verenigingen. 11.000 studenten, medewerkers en topsporters zullen gebruik gaan maken van de accommodatie. Aan de oostelijke entree van de stadscampus zijn op een compact kavel vijf zalen in ‘sport boxen’ constructief slim gestapeld en vervolgens iets opgetild. Hierdoor ontstaat een transparante en uitnodigende plint met de horeca en fitness. De ‘sport boxen’ vormen twee volumes, verbonden door de publieke kern van het complex. Deze gemeenschappelijke ruimte verbindt functies, sport en atleten, en vormt de connectie tussen beide zijden van de campus.
Transparantie en ritme
Sports Building heeft façades van glas en aluminium, horizontaal geleed en met verticale vinnen in meerdere ritmes. De hoek van de licht gebogen oostgevel en beide einduiteinden van de centrale doorgang kregen glazen puien over de volle hoogte. Deze transparantie markeert de levendige plekken: de publieke functies, op straatniveau en daarboven, plus de sportactiviteiten waarvoor geen gesloten zaal nodig is.
Herstel ecosystemen
In lijn met de ambities van VenhoevenCS en de Erasmus Universiteit Rotterdam is Sports Building van meet af aan als energieneutraal complex ontworpen - anno 2022 essentieel. Daartoe zijn voorzieningen geïntegreerd om water en zonne-energie op te vangen, vast te houden, uit te wisselen en te hergebruiken, en het gebruik ervan te minimaliseren.
In Sports Building is bovendien het openbare interieur uitgevoerd in bouwmaterialen die zijn geoogst bij circulair sloop. Zo fungeren metalen panelen van een voormalig detentiecentrum in Zeist opnieuw als plafond en kreeg 1.100 m2 houten vloerdelen van het TU Eindhoven-paviljoen een nieuw leven als sfeerbepalende gevel van de binnenstraat. Kwalitatief hoogstaand hergebruik inspireert de maatschappelijk betrokken en omvangrijke groep gebruikers van Sports Building om bij te dragen aan de circulaire economie.
Stel jezelf kort voor! Dan weet het betreffende bedrijf wie hun model gedownload heeft.
Wil je niet bij elke download jouw gegevens in hoeven voeren?
Klik dan hier om in te loggen
.
Heb je nog geen account?
Maak dan hier een gratis account aan
.
Voornaam
Achternaam
E-mailadres
Downloaden
Wanneer je modellen downloadt op Architectenweb.nl worden relevante gegevens van jou – zoals jouw naam en e-mailadres – met het betreffende bedrijf gedeeld. Meer hierover lees je in ons
privacybeleid
.
Locatie
Trefwoorden
energie-neutraal
circulair
sport
duurzaam
rotterdam
sportcomplex
sporthal
VenhoevenCS architecture+urbanism
Neem contact op
Projectdata
Staat van realisatie
Voltooid
Start ontwerpproces
2018
Start bouw
2021
Oplevering
2022
Ingebruikname
2022
Plaats
Rotterdam
Netto m
2
8800
Meewerkende partijen
Architect
VenhoevenCS architecture+urbanism
Projectarchitect
Manfred Wansink
Ontwerpteam
Manfred Wansink, Jos-Willem van Oorschot, Martijn Tjassens Keiser, Peter Rugebregt, Grzegorz Balinski, Martin Radner, Piotr Gierek
Opdrachtgever
Erasmus Universiteit Rotterdam
Aannemer
Bouwbedrijf Remmers B.V.
Constructeur
Verhoeven en Leenders
Adviseurs installaties E & W
Nelissen Ingenieursbureau
Fotograaf
Ossip van Duivenbode
Adviseur bouwfysica
Nelissen Ingenieursbureau
Installateur
Hoppenbrouwers
Leveranciers
Circulaire metalen plafondpanelen
Van Liempd
Circulaire geoogste houten vloerdelen
Mining Groep
Neem contact op met
VenhoevenCS architecture+urbanism
Je bent momenteel niet ingelogd. Hierdoor is het alleen mogelijk om meer informatie per e-mail op te vragen. Wil je liever gebeld worden of documentatie per post ontvangen?
Klik dan hier om in te loggen
.
Heb je nog geen account?
Maak dan hier een gratis account aan
.
Voornaam
Achternaam
E-mailadres
Opmerkingen
Bij iedere aanvraag worden relevante gegevens van jou gedeeld met het betreffende bedrijf. Meer hierover lees je in ons
privacybeleid
.
Ja, denk met me mee rond de
materialisering van mijn project
Meer projecten van VenhoevenCS architecture+urbanism
Merwede – Cix City en Cix Theatre
VenhoevenCS architecture+urbanism
Haven – TU/e studentenwoningen
VenhoevenCS architecture+urbanism
AMST
VenhoevenCS architecture+urbanism
Fietsenstalling IJboulevard
VenhoevenCS architecture+urbanism
Het Platform
VenhoevenCS architecture+urbanism
Zilveren Zwaan
VenhoevenCS architecture+urbanism
Brandweerkazerne
VenhoevenCS architecture+urbanism
De Drie Bouwmeesters in Geuzenveld door Venhoeven CS
VenhoevenCS architecture+urbanism
Brede school ‘Forum ’t Zand’
VenhoevenCS architecture+urbanism
Merwede – Cix City en Cix Theatre
VenhoevenCS architecture+urbanism
Haven – TU/e studentenwoningen
VenhoevenCS architecture+urbanism
AMST
VenhoevenCS architecture+urbanism
Fietsenstalling IJboulevard
VenhoevenCS architecture+urbanism
Het Platform
VenhoevenCS architecture+urbanism
Zilveren Zwaan
VenhoevenCS architecture+urbanism
Brandweerkazerne
VenhoevenCS architecture+urbanism
De Drie Bouwmeesters in Geuzenveld door Venhoeven CS
VenhoevenCS architecture+urbanism
Brede school ‘Forum ’t Zand’
VenhoevenCS architecture+urbanism
Toon alles
Andere Projecten
Gebouw 50 – Slimme, duurzame geveloptimalisatie
EQUITONE gevelpanelen
Schaalbaar honderden modulaire woningen bouwen?
Buro De Haan
Eigentijds wonen met concept Ankum
Innoblox
Nieuwbouw kantoorpand
Knauf B.V.
woningbouw poortmeesters delft
VYA architectuur en stedenbouw
Onderwijsgebouw Aurora, Wageningen
WEBO
Sandwichpanelenwand hygiënische afbouw
Sentho B.V.
Transformeerbare vergaderruimtes in HNK Amsterdam
BREEDVELD mobiele wandsystemen
Complete buiteninrichting kantooromgeving
Falco B.V.
TopAccess Dakluik bij Porsche Service Factory
Staka Dakluiken
Nieuwbouw villa Tegenbosch, Eindhoven, Noord-Braba
van Os Architecten
Moderne villa Alkmaar
BNLA architecten
Ga naar het projecten-overzicht
Voor een optimale gebruikservaring plaatst Architectenweb functionele cookies. Wat de verschillende cookies precies doen leggen we uit in een
overzicht
. Cookies van social media kun je optioneel
aanzetten
.
Akkoord
Instellingen
Annuleren
OK
Sluiten
Doorgaan
Inloggen
Maak een gratis persoonlijk account aan
Feedback
Feedback
Wij horen graag jouw feedback. Laat je reactie achter en eventueel jouw e-mail adres.
Reactie
Verstuur