Abonneer je nu op onze nieuwsbrieven!
Abonneren
Nee, bedankt
Ja, denk met me mee rond de
materialisering van mijn project
Producten
Zijaanzicht perspectief
Copyright: Egbert de Boer
Dakaanzicht perspectief
Copyright: Egbert de Boer
Context
Copyright: Egbert de Boer
Trappen en de haard
Copyright: Jeroen Musch
Entree
Copyright: Jeroen Musch
Terras
Copyright: Jeroen Musch
Detail dak
Copyright: Jeroen Musch
Privacy buiten
Copyright: Jeroen Musch
Entree -1
Copyright: mojo/architecten
Begane grond
Copyright: mojo/architecten
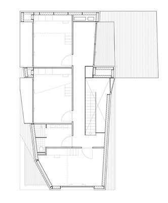
Verdieping 1
Copyright: mojo/architecten
Verdieping 2
Copyright: mojo/architecten
Langsdoorsnede
Copyright: mojo/architecten
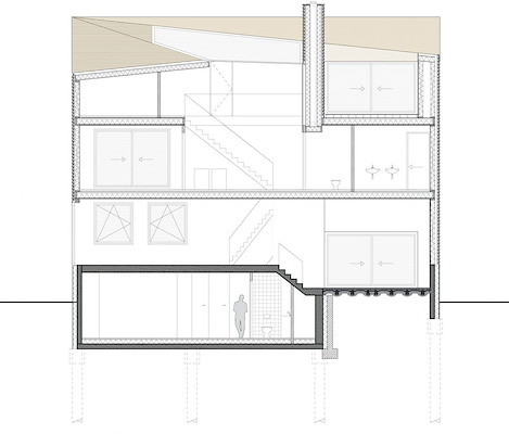
Dwarsdoorsnede
Copyright: mojo/architecten
ProducttagsAANUIT

Villa Prinsenbolwerk / Haarlem

2 november 2022
Haarlem is een parel rijker. In het groen van het Prinsen Bolwerk staat een modern vormgegeven villa, die contrasteert in stijl, maar harmonieert in kleur met de omgeving. Vanwege de historische ondergrond is Joep Mollink van nu mojo/architecten binnen de fundamenten van de afgebroken school gebleven. De verdiepingen erboven volgen de richting van de perceelgrens. De diverse oriëntaties in de plattegronden resulteren in een dynamische ruimtelijkheid.

Bolwerken
Aan de noordrand van het centrum van Haarlem zijn nog steeds de zes bolwerken herkenbaar die aan het einde van de 17e eeuw zijn aangelegd ter verdediging van de uitbreidingswijk Nieuwstad. Nadat de bolwerken hun functie verloren, is hier in de twintiger jaren van de 19e eeuw een stadspark aangelegd naar een ontwerp van J.D. Zocher jr. Het park in Engelse landschapsstijl wordt gekenmerkt door glooiingen en gebogen wandelpaden langs de singel. Tussen 1864 en 1870 verrijzen er 11 statige villa’s in het park op de bolwerken.

In een van die villa’s op het Prinsen Bolwerk, wordt in 1919 een school gevestigd, die rond 1930 wordt uitgebreid met bijgebouwen. Na vertrek van de school in 2005 komt er enkele jaren een jongerencentrum in de bijgebouwen en verloedert de leegstaande villa. In 2012 besluit de gemeente om de villa en de aangrenzende percelen van de te slopen bijgebouwen te verkopen.

Herontwikkelingsplan 2013
In 2013 presenteert Joep Mollink (nu mojo/architecten) een plan voor de herontwikkeling van de vrijgekomen locatie voor een combinatie van zorg en wonen, waarbij de neoclassicistische villa op het terrein wordt gerestaureerd en twee gebouwen nieuw gebouwd worden in het groen. Mollink: ‘We zetten het glooiende  landschap door op de nieuwe bouwpercelen, waardoor de begane grond zich als het ware in de aarde bevindt.’ Dat plan wint de gunning van de percelen aan een consortium bestaande uit Rossence B.V.,

Stichting Gebouwenfonds Therapeuticum Haarlem en een particulier. Rossence heeft de villa aangekocht, gerestaureerd en verbouwd tot woonzorgvoorziening voor ouderen. De bouw van het Therapeuticum, een ontwerp van negen graden architectuur, is in juni 2017 gestart. De particulier die een perceel wist te bemachtigen, is de familie Euverman, die in 2006 op IJburg door Joep Mollink een huis heeft laten ontwerpen. Door de goede klik tussen opdrachtgever en architect, willen ze in Haarlem ook met elkaar aan de slag.

Inpassing in context
Mollink reageert met zijn ontwerp op de historische en huidige stedenbouwkundige context. Uit zijn eerdere verkavelingsstudie uit 2013 neemt Mollink over dat de onderste laag gedeeltelijk in de aarde ligt. Het basement met de entree van de woning voegt zich binnen de oude fundamenten van de school zodat er geen historische artefacten in de grond worden geroerd, en dus geen archeologisch onderzoek moest worden verricht.

De richting van de school is hierdoor nog leesbaar in de plattegrond en in de dakvorm van het nieuwe huis. Op de verdiepingen is de villa tegen de noordoostelijke perceelgrens aangebouwd, met open gevels richting de privé buitenruimte (zuidwest) en meer gesloten gevels richting de openbare wandelpaden. Om tegenwicht te bieden tegen de buurvilla is het huis hoog en breed. De moderne en abstracte vormgeving van de nieuwbouw contrasteert met de neoclassicistische villa, terwijl de kleur er juist aangenaam bij past.

Hout en keramiek
De villa is gebouwd met een houtskeletbouw constructie. ‘Houtskeletbouw is licht, en zo konden we de oude fundering gebruiken, wat het ook betaalbaarder maakte.’ verklaart Mollink zijn keuze. De gevels en het dak zijn bekleed met gemêleerde gele keramische elementen. Mollink: ‘We hebben gekozen voor het element Cover, een variant op de Kolumba van Petersen Tegl. De Cover heeft Petersen jaren terug ontwikkeld met Jetty Min, voor haar huis in Bergen aan Zee (ArchitectuurNL 1/2010) en is sindsdien in de collectie.

We hebben speciaal voor het huis in Haarlem een variant met een opening op de Cover laten maken bij Petersen, dat is een primeur. Hiermee maken we een soort kijkgaten in de gevel, zodat je meer privacy binnen hebt. Het was de bedoeling dat die ad random verspreid aangebracht zouden worden voor de ramen, maar de timmerman met een vrije geest heeft er toch een soort patronen in gemaakt. Deze actie hebben we omarmt.’

Open plattegrond
Door de verschillende richtingen in de plattegronden ontstaat een dynamische ruimtelijkheid. In het souterrain is een grote open entreeruimte met chill-/speelplek. Tegen de achterwand zijn bergruimten voor jassen, sportkleding, de hond en de was. Een schuine trap loopt naar de keuken op de begane grond. Een open haard ligt centraal tussen woonkamer en eetkeuken. Samen met de schuine trap naar de verdieping vormt de haard een sculptuur die de verder open woonvloer breekt. Vanuit de eetkeuken kan men langs twee kanten de woonkamer betreden, via een luie of een gewone trap.

‘Die open plattegrond en een centrale open haard was een expliciete wens van de opdrachtgevers. Ook in het eerste huis dat we voor deze opdrachtgevers ontwierpen in IJburg hebben we dat toegepast. En in beide huizen zoeken we een contrast met de omgeving: in IJburg een grote gebogen rieten kap tussen alle rechthoekige nieuwbouw in beton en baksteen. In Haarlem juist strakke vormen in keramiek tussen de gestucte eclectische villa’s.’ Op de eerste verdieping bevinden zich de ouderslaapkamer met eigen badkamer en walk-in closet en een werkkamer met balkon. Op de bovenste verdieping zijn de kinderkamers, een prinsessenbalkon en een gezamenlijke badkamer.

Tekst: Jacqueline Knudsen
Fotografie: Jeroen Musch en Jacqueline Knudsen
Dit artikel is gepubliceerd in ArchitectuurNL nummer 4 van 2017

Stel jezelf kort voor! Dan weet het betreffende bedrijf wie hun model gedownload heeft.
Wil je niet bij elke download jouw gegevens in hoeven voeren?
Klik dan hier om in te loggen.

Heb je nog geen account? Maak dan hier een gratis account aan.
Voornaam
Achternaam
E-mailadres
Downloaden
Wanneer je modellen downloadt op Architectenweb.nl worden relevante gegevens van jou – zoals jouw naam en e-mailadres – met het betreffende bedrijf gedeeld. Meer hierover lees je in ons privacybeleid.

Locatie

Neem contact op met mojo/architecten

Je bent momenteel niet ingelogd. Hierdoor is het alleen mogelijk om meer informatie per e-mail op te vragen. Wil je liever gebeld worden of documentatie per post ontvangen? Klik dan hier om in te loggen.
Heb je nog geen account? Maak dan hier een gratis account aan.
Voornaam
Achternaam
E-mailadres
Opmerkingen
Bij iedere aanvraag worden relevante gegevens van jou gedeeld met het betreffende bedrijf. Meer hierover lees je in ons privacybeleid.
Ja, denk met me mee rond de
materialisering van mijn project

Meer projecten van mojo/architecten

ATAG Nederland
KUBUS | Specialist in Archicad
SAPA
Reynaers Aluminium Nederland
Jansen
SAB-profiel bv
Aliplast Aluminium Systems
Kingspan Light & Air
ALUCOBOND®
Caparol
Tarkett BV
Kawneer
Grohe Nederland B.V.
Malaysian Timber Council
OCS | Office Cabling Systems
Swisspearl Nederland
Forster Nederland N.V.
VELUX Commercial Benelux B.V.
Sempergreen
Houthandel van Dam
Aluprof Nederland BV
QbiQ Wall Systems
Forbo Flooring
Schüco Nederland
Cedral
Sto Isoned bv
Triflex bv
Gorter Luiken BV
wienerberger
DUCO Ventilation & Sun Control
BEWI IsoBouw
ROCKWOOL B.V.
Mview+
Rockfon (ROCKWOOL B.V.)
Gira Nederland B.V.
Kingspan Geïsoleerde Panelen
GEZE Benelux  B.V.
Renson
Metaglas Groep
ABB | Busch-Jaeger
Jung | Hateha B.V.
Knauf B.V.
Saint-Gobain Glass Benelux
Faay Vianen B.V.
objectflor
Boon Edam Nederland B.V.
Hunter Douglas Architectural
VOLA Nederland BV
Forbo Eurocol Nederland B.V.
EQUITONE gevelpanelen
Holonite B.V.
Tata Steel Colorcoat®
Architectenweb
Over ons
Contact

© 2002 - 2026 Architectenweb BV / Voorwaarden / Privacy / Disclaimer / Sitemap
Annuleren
OK
Sluiten
Doorgaan
Inloggen
Maak een gratis persoonlijk account aan