Projecten
Producten
Bedrijven
Vacatures
Agenda
Awards
Podcasts
more_horiz
Videos
Magazine
Thema's
Favorieten
Profiel
Uitloggen
Abonneer je nu op onze nieuwsbrieven!
Abonneren
Nee, bedankt
Ja, denk met me mee rond de
materialisering van mijn project
Producten
Rooswijck offices, Amsterdam
Copyright: DAMAST architects
Rooswijck offices, Amsterdam
Copyright: DAMAST architects
Rooswijck offices, Amsterdam
Copyright: DAMAST architects
Rooswijck offices, Amsterdam
Copyright: DAMAST architects
Rooswijck offices, Amsterdam
Copyright: DAMAST architects
Rooswijck offices, Amsterdam
Copyright: DAMAST architects
Rooswijck offices, Amsterdam
Copyright: DAMAST architects
Rooswijck offices, Amsterdam
Copyright: DAMAST architects
Rooswijck offices, Amsterdam
Copyright: DAMAST architects
Producttags
AAN
UIT
CLT kantoor Buitenveldert, Amsterdam
1 september 2022
0
0
0
0
Licht, lucht en ruimte. DAMAST architects ontwierp een chique houten kantoorgebouw in de Amsterdamse wijk Buitenveldert. Het gebouw is schatplichtig aan het functionalistische gedachtengoed van Cornelis van Eesteren en brengt op overtuigende wijze een ode aan het modernisme.
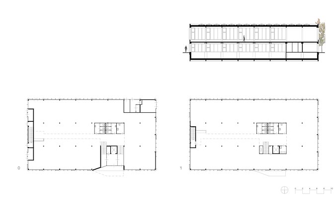
Multifunctioneel en flexibel
Dit rechthoekige gebouw leent zich voor een invulling met 1.280m2 aan kantoor- en/of bedrijfsfuncties. Door nieuw te bouwen boven op een bestaande betonnen souterrainvloer creëerde DAMAST architects twee extra hoge verdiepingen die vrij indeelbaar zijn. Beide verdiepingen fungeren zelfstandig en delen een uitnodigende entreepartij. “Superflexibiliteit en hoge ruimtes zijn essentieel voor een modern kantoor. Het zorgt voor een comfortabele, toekomstbestendige werkomgeving die eenvoudig aangepast kan worden bij veranderende wensen”, vertelt architect Daniël Peters.
Duurzaam en gezond bouwen
De architect en opdrachtgever Kroonenberg Groep deelden de overtuiging het gebouw in CLT op te trekken; “hout ademt een warme sfeer, wat zorgt voor een gezonde werkomgeving”, zegt Peters. Prefab gelamineerde houten balken, kolommen en vloeren zijn ecologisch verantwoord en 100% circulair. Bovendien zorgen ze voor een hoge bouwsnelheid. Het nieuwe pand is zeer energiezuinig en heeft een gasloze luchtbehandelingsinstallatie die het gebouw verwarmt en verkoelt. Zonnepanelen op het dak leveren er de energiebehoefte voor. De computervloeren (verhoogde vloeren op stalen vijzels) bieden volop flexibiliteit aan de installaties.
Licht, lucht en ruimte
Buitenveldert is onderdeel van het Algemeen Uitbreidingsplan (AUP) uit 1935 van Cornelis van Eesteren. Een naoorlogse wijk met rechthoekige stratenpatronen, riant groen en ingetogen architectuur. Licht, lucht en ruimte waren destijds het adagium voor de stedenbouw en architectuur van het Nieuwe Bouwen. Dat dit credo aan actualiteit niet heeft ingeboet bewijst dit ontwerp; de kantoren met alzijdige glazen gevels van vloer tot plafond baden in natuurlijk licht.
Stedelijk en verfijnd
Kenmerkende ritmische gebouwstructuren van Buitenveldert vormden de inspiratiebron voor het gevelontwerp. Stoere zwarte aluminium panelen maken de achterliggende constructie leesbaar. Daarbinnen tekenen gevelvinnen met een fijne belijning de menselijke schaal. Geperforeerde panelen maskeren de draairamen en wie goed kijkt herkent een isometrie van het AUP. Deze bijzondere details en de strakke architectuur geven het gebouw betekenis en identiteit.
Stel jezelf kort voor! Dan weet het betreffende bedrijf wie hun brochure gedownload heeft.
Wil je niet bij elke download jouw gegevens in hoeven voeren?
Klik dan hier om in te loggen
. Heb je nog geen account?
Maak dan hier een gratis account aan
.
Voornaam
Achternaam
E-mailadres
Downloaden
Wanneer je brochures downloadt op Architectenweb.nl worden relevante gegevens van jou – zoals jouw naam en e-mailadres – met het betreffende bedrijf gedeeld. Meer hierover lees je in ons
privacybeleid
.
Wanneer je brochures downloadt op Architectenweb.nl worden relevante gegevens van jou – zoals jouw naam en e-mailadres – met het betreffende bedrijf gedeeld. Meer hierover lees je in ons
privacybeleid
.
Brochure
Stel jezelf kort voor! Dan weet het betreffende bedrijf wie hun model gedownload heeft.
Wil je niet bij elke download jouw gegevens in hoeven voeren?
Klik dan hier om in te loggen
.
Heb je nog geen account?
Maak dan hier een gratis account aan
.
Voornaam
Achternaam
E-mailadres
Downloaden
Wanneer je modellen downloadt op Architectenweb.nl worden relevante gegevens van jou – zoals jouw naam en e-mailadres – met het betreffende bedrijf gedeeld. Meer hierover lees je in ons
privacybeleid
.
Locatie
Trefwoorden
houtbouw
flexibel
kantoorgebouw
damast architects
duurzaam
buitenveldert
cornelis van eesteren
daniël peters
kantoor
herontwikkeling
clt
damast
multifunctioneel
DAMAST architects
Neem contact op
Projectdata
Staat van realisatie
Voltooid
Start ontwerpproces
2020
Start bouw
2021
Oplevering
2023
Plaats
Amsterdam
Bruto m
2
1450
Netto m
2
1280
Meewerkende partijen
Architect
DAMAST architects
Projectarchitect
Daniël Peters, Steven van Raan
Ontwerpteam
Julian Hoyos, Mike van der Kroon, Thomas van der Kolk
Opdrachtgever
Kroonenberg Groep
Aannemer
J.P. van Eesteren
Constructeur
Duyts Bouwconstructies bv
Adviseurs installaties E & W
M3E Groep
Fotograaf
Kees Hummel
Leveranciers
Liften
Astralift
CLT constructie en houten kanaalplaatvloeren
De Groot Vroomshoop Groep
Gevelbekleding
VPT Versteeg
Aluminium gevelkozijnen
Kawneer
Stalen gevelkozijnen
Jansen
Isolatie
Isovlas Oisterwijk B.V.
Neem contact op met
DAMAST architects
Je bent momenteel niet ingelogd. Hierdoor is het alleen mogelijk om meer informatie per e-mail op te vragen. Wil je liever gebeld worden of documentatie per post ontvangen?
Klik dan hier om in te loggen
.
Heb je nog geen account?
Maak dan hier een gratis account aan
.
Voornaam
Achternaam
E-mailadres
Opmerkingen
Bij iedere aanvraag worden relevante gegevens van jou gedeeld met het betreffende bedrijf. Meer hierover lees je in ons
privacybeleid
.
Ja, denk met me mee rond de
materialisering van mijn project
Meer projecten van DAMAST architects
Woongebouw Buiksloterham, Amsterdam
DAMAST architects
Modulair woon-werkgebouw, Vlissingen
DAMAST architects
Stadsdeelkantoor Buikslotermeerplein, Amsterdam
DAMAST architects
Woongebouw Buiksloterham, Amsterdam
DAMAST architects
Modulair woon-werkgebouw, Vlissingen
DAMAST architects
Stadsdeelkantoor Buikslotermeerplein, Amsterdam
DAMAST architects
Toon alles
Andere Projecten
Twee woningconcepten, één samenhangend straatbeeld
Innoblox
Opvallende rondschuifdeuren in Gare de Mons
GEZE Benelux B.V.
Flexibel bedrijfsgebouw met modulaire kantoorunit
Buro De Haan
BDO kantoor Breda
ULMA Architectural Solutions
Campus Sportief Besteed Groep — Wubben.Chan
Wubben.Chan architecten
Toegangscontrole op een dynamisch terrein
Heras
Biobased bouwen naast Natura 2000-gebied
KUBUS | Specialist in Archicad
5Tracks - inspirerende atriums met JUNG
Jung | Hateha B.V.
Totaalrealisatie nieuwe kantoorlocatie A. Vogel
Intermontage B.V.
Sweco Wonderwoods — Duurzame kantoorinrichting
Hal2
Gare Maritime, Brussel
WEBO
De transformatie van de Lintveldebrink
Grohe Nederland B.V.
Ga naar het projecten-overzicht
Voor een optimale gebruikservaring plaatst Architectenweb functionele cookies. Wat de verschillende cookies precies doen leggen we uit in een
overzicht
. Cookies van social media kun je optioneel
aanzetten
.
Akkoord
Instellingen
Annuleren
OK
Sluiten
Doorgaan
Inloggen
Maak een gratis persoonlijk account aan
Feedback
Feedback
Wij horen graag jouw feedback. Laat je reactie achter en eventueel jouw e-mail adres.
Reactie
Verstuur