Projecten
Producten
Bedrijven
Vacatures
Agenda
Awards
Podcasts
more_horiz
Videos
Magazine
Thema's
Favorieten
Profiel
Uitloggen
Abonneer je nu op onze nieuwsbrieven!
Abonneren
Nee, bedankt
Ja, denk met me mee rond de
materialisering van mijn project
Producten
Stadsdeelkantoor Buikslotermeerplein Restaurant
Copyright: DAMAST architects
Stadsdeelkantoor Buikslotermeerplein Restaurant
Copyright: DAMAST architects
Stadsdeelkantoor Buikslotermeerplein Restaurant
Copyright: DAMAST architects
Stadsdeelkantoor Buikslotermeerplein Restaurant
Copyright: DAMAST architects
Stadsdeelkantoor Buikslotermeerplein Restaurant
Copyright: DAMAST architects
Stadsdeelkantoor Buikslotermeerplein Detail
Copyright: DAMAST architects
Stadsdeelkantoor Buikslotermeerplein Offices
Copyright: DAMAST architects
Stadsdeelkantoor Buikslotermeerplein Offices
Copyright: DAMAST architects
Stadsdeelkantoor Buikslotermeerplein Offices
Copyright: DAMAST architects
Stadsdeelkantoor Buikslotermeerplein Detail
Copyright: DAMAST architects
Stadsdeelkantoor Buikslotermeerplein Restaurant
Copyright: DAMAST architects
Stadsdeelkantoor Buikslotermeerplein Offices
Copyright: DAMAST architects
Producttags
AAN
UIT
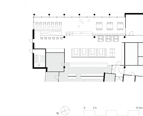
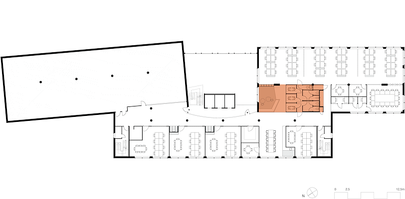
Stadsdeelkantoor Buikslotermeerplein, Amsterdam
25 juli 2019
2
0
0
0
In opdracht van de Gemeente Amsterdam ontwierp
DAMAST architects
het nieuwe interieur van Stadsdeelkantoor Buikslotermeerplein. Het betreft een circulair ontwerp voor 1200m2 superflexkantoor en een nieuw restaurant dat in het najaar wordt opgeleverd.
Efficiënt en comfortabel
De transformatie is onderdeel van de nieuwe gemeentelijke huisvestingsvisie voor ambtenaren. Door flexibel, projectmatig en gebiedsgericht werken mogelijk te maken wordt het pand beter benut. In het superflexkantoor bevinden zich comfortabel uitgeruste werk- en loungeplekken met flexibele ruimtes voor projectmatig werken. Het restaurant wordt een Plaza, een groene huiskamer waar men ook kan vergaderen.
Maken
“Voor het concept hebben we ons laten inspireren door het unieke karakter van Amsterdam-Noord waar ‘Maken’ centraal staat”, aldus architect Daniël Peters. "Waar men vroeger op de scheepswerven werkte, wordt er nu geëxperimenteerd met stadslandbouw het 3D-printen van huizen en bruggen. Die initiatieven hebben Amsterdam-Noord op de kaart gezet." Het stadsdeelkantoor is het kloppende hart van de grootschalige gebiedsontwikkelingen en de creatieve ontwikkelingen in Noord. Met basale middelen zoals constructiehout, grondverf, gerecyclede PET-flessen en veel planten creëert Peters er een inspirerende werkomgeving voor de ambtenaren.
Circulair interieur
Amsterdam-Noord bouwt aan een duurzame metropool. Het minimaal gebruik van grondstoffen en het zoveel mogelijk hergebruiken daarvan is één van de grootste uitdagingen die de komende jaren op de bouwsector afkomt. Door alleen gerecyclede, recyclebare en biobased materialen te gebruiken sluit het ontwerp van DAMAST aan bij de transitie naar een duurzaam model van 'verminderen, hergebruiken en recyclen'.
Stel jezelf kort voor! Dan weet het betreffende bedrijf wie hun brochure gedownload heeft.
Wil je niet bij elke download jouw gegevens in hoeven voeren?
Klik dan hier om in te loggen
. Heb je nog geen account?
Maak dan hier een gratis account aan
.
Voornaam
Achternaam
E-mailadres
Downloaden
Wanneer je brochures downloadt op Architectenweb.nl worden relevante gegevens van jou – zoals jouw naam en e-mailadres – met het betreffende bedrijf gedeeld. Meer hierover lees je in ons
privacybeleid
.
Wanneer je brochures downloadt op Architectenweb.nl worden relevante gegevens van jou – zoals jouw naam en e-mailadres – met het betreffende bedrijf gedeeld. Meer hierover lees je in ons
privacybeleid
.
Brochure
Stel jezelf kort voor! Dan weet het betreffende bedrijf wie hun model gedownload heeft.
Wil je niet bij elke download jouw gegevens in hoeven voeren?
Klik dan hier om in te loggen
.
Heb je nog geen account?
Maak dan hier een gratis account aan
.
Voornaam
Achternaam
E-mailadres
Downloaden
Wanneer je modellen downloadt op Architectenweb.nl worden relevante gegevens van jou – zoals jouw naam en e-mailadres – met het betreffende bedrijf gedeeld. Meer hierover lees je in ons
privacybeleid
.
Locatie
Trefwoorden
buikslotermeerplein
stadsdeelkantoor
restaurant
amsterdam-noord
gemeentehuis
bedrijfskantine
circulair
biobased
duurzaam
daniel peters
DAMAST architects
Neem contact op
Projectdata
Staat van realisatie
Voltooid
Start ontwerpproces
2019
Start bouw
2019
Oplevering
2019
Ingebruikname
2019
Plaats
Amsterdam
Netto m
2
1200
m
3
3700
Meewerkende partijen
Architect
DAMAST architects
Interieurarchitect
DAMAST architects
Projectarchitect
Daniel Peters, Steven van Raan
Ontwerpteam
Fabian Holman, Vera Verweij, Julian Hoyos
Opdrachtgever
Gemeente Amsterdam
Aannemer
Databouw icm Painting Holland Groep
Fotograaf
Peter Tijhuis
Leveranciers
Plaatmateriaal
Pure Glue Plywood
Interieurbouw
Databouw
Vloerafwerkingen
Bael Mortex
Los inventaris
De-Vorm
Stoffering
Interface®
Overig
Tonone
Verlichting
DLS
Neem contact op met
DAMAST architects
Je bent momenteel niet ingelogd. Hierdoor is het alleen mogelijk om meer informatie per e-mail op te vragen. Wil je liever gebeld worden of documentatie per post ontvangen?
Klik dan hier om in te loggen
.
Heb je nog geen account?
Maak dan hier een gratis account aan
.
Voornaam
Achternaam
E-mailadres
Opmerkingen
Bij iedere aanvraag worden relevante gegevens van jou gedeeld met het betreffende bedrijf. Meer hierover lees je in ons
privacybeleid
.
Ja, denk met me mee rond de
materialisering van mijn project
Meer projecten van DAMAST architects
Woongebouw Buiksloterham, Amsterdam
DAMAST architects
Modulair woon-werkgebouw, Vlissingen
DAMAST architects
CLT kantoor Buitenveldert, Amsterdam
DAMAST architects
Woongebouw Buiksloterham, Amsterdam
DAMAST architects
Modulair woon-werkgebouw, Vlissingen
DAMAST architects
CLT kantoor Buitenveldert, Amsterdam
DAMAST architects
Toon alles
Andere Projecten
Woonhart Zoetermeer
Houthandel van Dam
Villa aan het water
Houthandel van Dam
Kooi stadion - SC Cambuur
Houthandel van Dam
Veilige daktoegang voor Aan de Molenwerf
Gorter Luiken BV
Veilige daktoegang voor nieuw gemeentehuis
Gorter Luiken BV
Ziekenhuiscomplex Rijeka in Susak, Kroatië
ULMA Architectural Solutions
Luxe Vingui Noir houten uitbouw
Houthandel van Dam
BMV Heerlerbaan - Heerlen
Houthandel van Dam
Watervilla's in de haven van Kortenhoef
Houthandel van Dam
Beatrixhof
Houthandel van Dam
Madonna Antwerpen - Akoestiek als smaakmaker
OWA Benelux - Akoestiek & Design
Renovatie zorginstelling dementie en alzheimer
Storax
Ga naar het projecten-overzicht
Voor een optimale gebruikservaring plaatst Architectenweb functionele cookies. Wat de verschillende cookies precies doen leggen we uit in een
overzicht
. Cookies van social media kun je optioneel
aanzetten
.
Akkoord
Instellingen
Annuleren
OK
Sluiten
Doorgaan
Inloggen
Maak een gratis persoonlijk account aan
Feedback
Feedback
Wij horen graag jouw feedback. Laat je reactie achter en eventueel jouw e-mail adres.
Reactie
Verstuur