Projecten
Producten
Bedrijven
Vacatures
Agenda
Awards
Podcasts
more_horiz
Videos
Magazine
Favorieten
Profiel
Uitloggen
Abonneer je nu op onze nieuwsbrieven!
Abonneren
Nee, bedankt
Ja, denk met me mee rond de
materialisering van mijn project
Producten
zijgevel met luifel
Copyright: Renzo Gerritsen
achtergevel
Copyright: Renzo Gerritsen
zijgevel met berging
Copyright: Renzo Gerritsen
woonkamer met schoorsteen
Copyright: Renzo Gerritsen
detail gevelopeningen
Copyright: Renzo Gerritsen
beeld leefruimten bij binnenkomst
Copyright: Renzo Gerritsen
woonkamer met toonkast
Copyright: Renzo Gerritsen
eetkamer
Copyright: Renzo Gerritsen
voorgevel
Copyright: Renzo Gerritsen
situatietekening
Copyright: j2o Architectuur
dakaanzicht
Copyright: j2o Architectuur
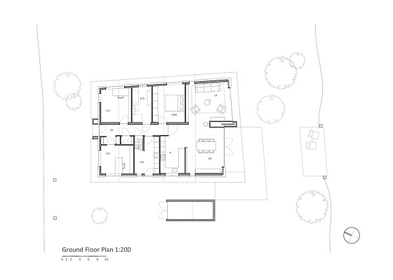
plattegrond begane grond
Copyright: j2o Architectuur
zijgevel aanzicht
Copyright: j2o Architectuur
langsdoorsnede
Copyright: j2o Architectuur
Producttags
AAN
UIT
Huis8020
29 juni 2021
0
0
0
0
In de polder bij Maassluis wordt razendsnel gebouwd. Waar vroeger de wind over de gewassen blies waait nu een wind van verandering. Met een strenge welstand commissie en een stijlhandboek wordt de woonsfeer klassiek Hollands gehouden. Maar 1 huis springt daar opvallend tussenuit: Huis8020 met haar dubbele zadeldak en brede gemetselde schoorsteen en portaal verwijzen naar de prairystyle in een modern jasje.
Dit jasje is een dik geïsoleerde gevel rondom. De energieneutrale woning verwarmt zich met een grondwarmtepomp die door de in de kilgoot tussen de 2 zadels van het dak verborgen zonnepanelen van stroom voorzien wordt. De layout is eenvoudig en gericht op het schitterende uitzicht over de tuin op het zuiden. Een centrale gang ontsluit de verschillende kamers en komt uit tussen keuken, eetkamer en woonkamer. De markante schoorsteen in het midden van de achtergevel scheidt met de haard de woonkamer ruimtelijk van de eetkamer. Op het hoogste punt van het dak boven de woonkamer is een bijzondere boekenkast ontworpen met houten toonvakken in een verder rustig wit grid van planken en staanders.
Details zijn zorgvuldig ontworpen en uitgevoerd. Binnen vind je verdiepte plinten in de gang ten behoeve van de taatsdeur en rondom de deurkozijnen. Buiten correspondeert het gemetselde entree portaal in dikte en uitvoering met de schoorsteen aan de achtergevel. Zij doorsnijden en verbinden het stoere zadeldak. Het dak loopt rondom door in een bijzondere luifel die de woning op zuid van de benodigde schaduw voorziet en bij de zijgevels een spannend spel speelt met de verdiepte kozijnen. Het warme western red cedar hout contrasteert met het witte stucwerk van de gevels en het antraciete aluminium van de boeiborden en de strake daktegels. Ook de berging is meegenomen in dezelfde vormentaal en met hetzelfde hoogwaardige materiaal. Het groene sedumdak sluit aan bij de verankering van de woning in de groene omgeving.
Stel jezelf kort voor! Dan weet het betreffende bedrijf wie hun model gedownload heeft.
Wil je niet bij elke download jouw gegevens in hoeven voeren?
Klik dan hier om in te loggen
.
Heb je nog geen account?
Maak dan hier een gratis account aan
.
Voornaam
Achternaam
E-mailadres
Downloaden
Wanneer je modellen downloadt op Architectenweb.nl worden relevante gegevens van jou – zoals jouw naam en e-mailadres – met het betreffende bedrijf gedeeld. Meer hierover lees je in ons
privacybeleid
.
Locatie
Trefwoorden
energieneutrale woning
open houten gevelbekleding
design luifel
buitengevelisolatie
verborgen zonnepanelen
hellend sedumdak
assymetrische zadeldak
aluminium bekleding
prairystyle
gevelstucwerk
j2o Architectuur
Neem contact op
Projectdata
Staat van realisatie
Voltooid
Start ontwerpproces
2019
Start bouw
2020
Oplevering
2020
Ingebruikname
2021
Plaats
Maassluis
Bruto m
2
208
Netto m
2
175
m
3
750
Meewerkende partijen
Architect
j2o Architectuur
Interieurarchitect
j2o Architectuur
Projectarchitect
Joost Hillen
Opdrachtgever
particulier
Aannemer
Bouwbedrijf JJ de Haas
Constructeur
Cosntructiebureau de Heer
Adviseurs installaties E & W
Modus Architectuur
Fotograaf
Renzo Gerritsen
Interieurontwerper
Boheemen Ontwerp
Ontwerper
Jesse van Boheemen
Leveranciers
Vloertegels
Mosa.
Overig
GDS Keramiek, Strikolith B.V.
Raam- en deursystemen / kozijnen
Reynaers Aluminium Nederland
Dakisolatie
Kingspan Unidek B.V.
Neem contact op met
j2o Architectuur
Je bent momenteel niet ingelogd. Hierdoor is het alleen mogelijk om meer informatie per e-mail op te vragen. Wil je liever gebeld worden of documentatie per post ontvangen?
Klik dan hier om in te loggen
.
Heb je nog geen account?
Maak dan hier een gratis account aan
.
Voornaam
Achternaam
E-mailadres
Opmerkingen
Bij iedere aanvraag worden relevante gegevens van jou gedeeld met het betreffende bedrijf. Meer hierover lees je in ons
privacybeleid
.
Ja, denk met me mee rond de
materialisering van mijn project
Meer projecten van j2o Architectuur
MFA de Beets Heemstede
j2o Architectuur
Appartementengebouw De Groene Trappen
j2o Architectuur
Transformatie smidse tot woning Utrecht
j2o Architectuur
Uitbreiding basisschool Den Haag
j2o Architectuur
Nieuwbouw woning New Zealand
j2o Architectuur
Realisatie kinderdagverblijf Rotterdam
j2o Architectuur
MFA de Beets Heemstede
j2o Architectuur
Appartementengebouw De Groene Trappen
j2o Architectuur
Transformatie smidse tot woning Utrecht
j2o Architectuur
Uitbreiding basisschool Den Haag
j2o Architectuur
Nieuwbouw woning New Zealand
j2o Architectuur
Realisatie kinderdagverblijf Rotterdam
j2o Architectuur
Toon alles
Gerelateerde producten
Unidek Aero
Constructief isolerend alles-in-1 dakelement
Kingspan Unidek B.V.
Ultraslank raam- en deursysteem SlimLine 38 (SL 38)
Licht, elegantie en comfort
Reynaers Aluminium Nederland
Andere Projecten
De Toerist in Breda
DUCO Ventilation & Sun Control
In ontwikkeling: IKC Strandeiland, Amsterdam
WEBO
Gorter op nieuwbouw sociale huurappartementen
Gorter Luiken BV
Prefab villa - Egmond aan Zee
Houthandel van Dam
Nieuwbouw poeliersbedrijf Van Berkel Kip
Ruys Groep
Nieuwbouw 107 appartementen Spoordok
Gorter Luiken BV
Appartementencomplex - Résidence Gooiland
Rodruza B.V.
Nieuwbouwwijk - Oosterparkkwartier
Rodruza B.V.
Nieuwbouwwijk - New Brooklyn
Rodruza B.V.
De Octaaf - Nijmegen
Houthandel van Dam
Tijdloos nieuwbouwproject – Haaksbergen
Joris Ide
JI NatureBlack - Tijdloos design, staalprestaties
Joris Ide
Ga naar het projecten-overzicht
Voor een optimale gebruikservaring plaatst Architectenweb functionele cookies. Wat de verschillende cookies precies doen leggen we uit in een
overzicht
. Cookies van social media kun je optioneel
aanzetten
.
Akkoord
Instellingen
Annuleren
OK
Sluiten
Doorgaan
Inloggen
Maak een gratis persoonlijk account aan
Feedback
Feedback
Wij horen graag jouw feedback. Laat je reactie achter en eventueel jouw e-mail adres.
Reactie
Verstuur