Projecten
Producten
Bedrijven
Vacatures
Agenda
Awards
Podcasts
more_horiz
Videos
Magazine
Thema's
Favorieten
Profiel
Uitloggen
Abonneer je nu op onze nieuwsbrieven!
Abonneren
Nee, bedankt
Ja, denk met me mee rond de
materialisering van mijn project
Producten
Multifunctionele tribunetrap met grote daklichten op het noorden.
Copyright: Gerard van Beek Fotografie
Copyright: Gerard van Beek Fotografie
Verhoogde entree
Copyright: Gerard van Beek Fotografie
Copyright: Gerard van Beek Fotografie
Uitzicht vanuit kantine
Copyright: Gerard van Beek Fotografie
Copyright: Gerard van Beek Fotografie
Copyright: Gerard van Beek Fotografie
Het afgeschuinde groene dak vloeit natuurlijk over in de groene voorzone.
Copyright: Gerard van Beek Fotografie
Copyright: BDG Architecten
Copyright: BDG Architecten
Copyright: BDG Architecten
Producttags
AAN
UIT
Bedrijfsgebouw Hanzestrohm Zwolle
1 juni 2021
1
0
0
0
Een gebouw dat laat zien wie Hanzestrohm is. Een stimulerende werk- en leefomgeving. Met een open uitstraling en goed passend in de omgeving. Een plek waar kantoor en logistiek optimaal kunnen samenwerken. En bovendien duurzaam en energiezuinig. Dat waren de uitgangspunten voor het ontwerp voor het nieuwe kantoorgebouw met bedrijfshal van Hanzestrohm (voorheen Hemmink Groep). Een Zwols familiebedrijf dat innovatieve concepten en (elektrotechnische) oplossingen biedt voor (woning)bouw, utiliteit en industrie.
krachtig kantoorgebouw
BDG Architecten ontwierp het kantoorgebouw in een diamantvorm. De krachtige uitstraling weerspiegelt de identiteit van Hanzestrohm: high tech, warm en herkenbaar. Het afgeschuinde groene dak aan de noordwestkant vloeit natuurlijk over in de groene zone van de aangrenzende Nieuwe Wetering. Het kantoorgebouw is opgetild en verhoogd gebouwd op een talud. Door de iets verhoogde ligging en de transparante gevel is er vanuit het gebouw een mooi uitzicht op de uiterwaarden en het water. De grote raampartijen maken vanuit het gehele kantoor de relatie met buiten duidelijk voelbaar. Verscholen achter het talud is onder het pand plek voor autoparkeren, een fietsenstalling en een technische ruimte. Aansluitend op de groene voorzone realiseerde BDG om het kantoor een prettig buitenruimte met hoge belevingswaarde. Hoogteverschillen in het maaiveld markeren de route naar de opgetilde entree.
mix aan werkplekken
De open en uitnodigende uitstraling van het exterieur wordt weerspiegeld in het interieur. De nieuwbouw faciliteert samenwerking en ontmoeting. De plattegronden van het kantoorgebouw zijn in nauwe samenwerking met de medewerkers en afgestemd op de onderlinge relaties van afdelingen ontworpen. Er is, gebaseerd op het principe van Activiteit Gerelateerd Werken, een diversiteit aan open en gesloten overleg- en werkplekken. Van kantoortuin tot concentratieplekken, van aanlandplekken en informele zitjes tot (grote) vergader- en trainingsruimten. Het interieur is in samenwerking met ZwaagInterieur zorgvuldig uitgewerkt met aandacht voor details. De inrichting markeert functie, de gekozen materialen zijn uitnodigend en comfortabel. Groene afscheidingen en glazen tussenwanden verbinden de ruimtes en reguleren de akoestiek. Want in het ontwerp is veel aandacht besteed aan een gezonde, vitale en duurzame werk- en leefomgeving. Voor een optimaal werkklimaat kan het balansventilatiesysteem per ruimte naar wens worden ingesteld.
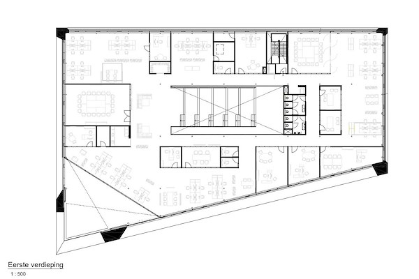
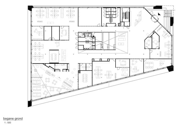
multifunctionele tribunetrap
Hanzestrohm hecht veel waarde aan ontmoeting en kennisuitwisseling met opdrachtgevers en stakeholders. Achter de receptiefunctie is de begane grond ontworpen als klantvriendelijke ruimte. Bij binnenkomst springt de brede tribunetrap bekleed met essenhout direct in het oog. Dit multifunctionele element is met een varia aan zitjes een fijne plek voor informeel overleg evenals grote bijeenkomsten en presentaties. Het element verbindt de centrale ruimte met de verdieping en zorgt voor verbinding tussen de afdelingen. Boven de tribunetrap brengen lichtstraten op het noorden het daglicht diep het gebouw in.
bijzonder duurzaam
PV-panelen, een gevel van triple glas en hoogwaardige isolatie maken het gasloze gebouw bijzonder duurzaam. Het kantoor wordt actief verwarmd en gekoeld middels een warmtepomp.
Stel jezelf kort voor! Dan weet het betreffende bedrijf wie hun model gedownload heeft.
Wil je niet bij elke download jouw gegevens in hoeven voeren?
Klik dan hier om in te loggen
.
Heb je nog geen account?
Maak dan hier een gratis account aan
.
Voornaam
Achternaam
E-mailadres
Downloaden
Wanneer je modellen downloadt op Architectenweb.nl worden relevante gegevens van jou – zoals jouw naam en e-mailadres – met het betreffende bedrijf gedeeld. Meer hierover lees je in ons
privacybeleid
.
Locatie
Trefwoorden
duurzaam
activiteit gerelateerd werken
kantoor
gezond gebouw
BDG Architecten
Neem contact op
Projectdata
Staat van realisatie
Voltooid
Start bouw
2019
Oplevering
2020
Ingebruikname
2020
Plaats
Zwolle
Bruto m
2
96552
Meewerkende partijen
Architect
BDG Architecten
Opdrachtgever
Hanzestrohm, Jansen Vastgoed
Aannemer
Replan engineering, Bouwbedrijf Aan de Stegge Twello
Fotograaf
Gerard van Beek Fotografie
Interieurontwerper
ZwaagInterieur
Leveranciers
Overig
Gerard van Beek Fotografie
Neem contact op met
BDG Architecten
Je bent momenteel niet ingelogd. Hierdoor is het alleen mogelijk om meer informatie per e-mail op te vragen. Wil je liever gebeld worden of documentatie per post ontvangen?
Klik dan hier om in te loggen
.
Heb je nog geen account?
Maak dan hier een gratis account aan
.
Voornaam
Achternaam
E-mailadres
Opmerkingen
Bij iedere aanvraag worden relevante gegevens van jou gedeeld met het betreffende bedrijf. Meer hierover lees je in ons
privacybeleid
.
Ja, denk met me mee rond de
materialisering van mijn project
Meer projecten van BDG Architecten
Uitbreiding en renovatie Norbertus Lyceum
BDG Architecten
Lassus Campus Zwolle
BDG Architecten
Esdal College Borger
BDG Architecten
Woningen Deurningerstraat Enschede
BDG Architecten
Kindcentrum Leeuwesteyn Utrecht
BDG Architecten
MKC De Schatkaart Amsterdam
BDG Architecten
Het Open Venster Rotterdam
BDG Architecten
Fridtjof Nansenschool Rotterdam
BDG Architecten
Kop van Hoog
BDG Architecten
Uitbreiding Montessori Lyceum
BDG Architecten
Aeres Hogeschool Almere
BDG Architecten
Spinoza20first en sporthal Bajeskwartier Amsterdam
BDG Architecten
Woningen Kraanbolwerk
BDG Architecten
Gomarus College
BDG Architecten
Woningen Ebbingekwartier
BDG Architecten
PlantXperience Schoneveld Breeding
BDG Architecten
Vernieuwbouw Simon van Hasseltschool
BDG Architecten
Innovatie hotspot World Horti Center
BDG Architecten
Prikkelende 2College Jozefmavo
BDG Architecten
Energieleverende stadsdeelwerf Amsterdam-Zuid
BDG Architecten
Unieke zonwering in MFA Groene Borg
BDG Architecten
Prins Claus Conservatorium Groningen
BDG Architecten
Twente Milieu
BDG Architecten
Brede School SOM Coevorden
BDG Architecten
Integraal Kindcentrum Het Festival
BDG Architecten
Brandweerkazerne Leeuwarden
BDG Architecten
Stoas Hogeschool Wageningen
BDG Architecten
Brandweerkazerne Emmen
BDG Architecten
Brandweerkazerne Weert
BDG Architecten
Christelijke Agrarische Hogeschool (CAH)
BDG Architecten
MFA Veluvine
BDG Architecten
Uitbreiding en renovatie Norbertus Lyceum
BDG Architecten
Lassus Campus Zwolle
BDG Architecten
Esdal College Borger
BDG Architecten
Woningen Deurningerstraat Enschede
BDG Architecten
Kindcentrum Leeuwesteyn Utrecht
BDG Architecten
MKC De Schatkaart Amsterdam
BDG Architecten
Het Open Venster Rotterdam
BDG Architecten
Fridtjof Nansenschool Rotterdam
BDG Architecten
Kop van Hoog
BDG Architecten
Uitbreiding Montessori Lyceum
BDG Architecten
Aeres Hogeschool Almere
BDG Architecten
Spinoza20first en sporthal Bajeskwartier Amsterdam
BDG Architecten
Woningen Kraanbolwerk
BDG Architecten
Gomarus College
BDG Architecten
Woningen Ebbingekwartier
BDG Architecten
PlantXperience Schoneveld Breeding
BDG Architecten
Vernieuwbouw Simon van Hasseltschool
BDG Architecten
Innovatie hotspot World Horti Center
BDG Architecten
Prikkelende 2College Jozefmavo
BDG Architecten
Energieleverende stadsdeelwerf Amsterdam-Zuid
BDG Architecten
Unieke zonwering in MFA Groene Borg
BDG Architecten
Prins Claus Conservatorium Groningen
BDG Architecten
Twente Milieu
BDG Architecten
Brede School SOM Coevorden
BDG Architecten
Integraal Kindcentrum Het Festival
BDG Architecten
Brandweerkazerne Leeuwarden
BDG Architecten
Stoas Hogeschool Wageningen
BDG Architecten
Brandweerkazerne Emmen
BDG Architecten
Brandweerkazerne Weert
BDG Architecten
Christelijke Agrarische Hogeschool (CAH)
BDG Architecten
MFA Veluvine
BDG Architecten
Toon alles
Andere Projecten
Kooi stadion - SC Cambuur
Houthandel van Dam
Veilige daktoegang voor Aan de Molenwerf
Gorter Luiken BV
Veilige daktoegang voor nieuw gemeentehuis
Gorter Luiken BV
Ziekenhuiscomplex Rijeka in Susak, Kroatië
ULMA Architectural Solutions
Luxe Vingui Noir houten uitbouw
Houthandel van Dam
BMV Heerlerbaan - Heerlen
Houthandel van Dam
Watervilla's in de haven van Kortenhoef
Houthandel van Dam
Beatrixhof
Houthandel van Dam
Madonna Antwerpen - Akoestiek als smaakmaker
OWA Benelux - Akoestiek & Design
Renovatie zorginstelling dementie en alzheimer
Storax
Ontwikkeling van Circulair Energielandschap
Buro De Haan
ROCKWOOL LM Klima: efficiënter isoleren bij Xplore
ROCKWOOL B.V.
Ga naar het projecten-overzicht
Voor een optimale gebruikservaring plaatst Architectenweb functionele cookies. Wat de verschillende cookies precies doen leggen we uit in een
overzicht
. Cookies van social media kun je optioneel
aanzetten
.
Akkoord
Instellingen
Annuleren
OK
Sluiten
Doorgaan
Inloggen
Maak een gratis persoonlijk account aan
Feedback
Feedback
Wij horen graag jouw feedback. Laat je reactie achter en eventueel jouw e-mail adres.
Reactie
Verstuur