Projecten
Producten
Bedrijven
Vacatures
Agenda
Awards
Podcasts
more_horiz
Videos
Magazine
Thema's
Favorieten
Profiel
Uitloggen
Abonneer je nu op onze nieuwsbrieven!
Abonneren
Nee, bedankt
Ja, denk met me mee rond de
materialisering van mijn project
Producten
Achtergevel
Copyright: John van Groenedaal
Terras en patio
Copyright: John van Groenedaal
Achtergevel
Copyright: John van Groenedaal
Terras en patio
Copyright: John van Groenedaal
Achtergeveldetail
Copyright: John van Groenedaal
Achtergevel
Copyright: John van Groenedaal
Detail
Copyright: John van Groenedaal
Voorgevel
Copyright: John van Groenedaal
Kantoor
Copyright: John van Groenedaal
Detail
Copyright: John van Groenedaal
Voorgevel
Copyright: John van Groenedaal
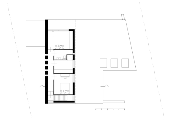
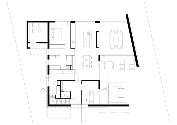
Begane grond
Copyright: Joris Verhoeven Architectuur
Verdieping
Copyright: Joris Verhoeven Architectuur
Doorsnede
Copyright: Joris Verhoeven Architectuur
Producttags
AAN
UIT
Villa de Kraan
10 september 2019
2
0
0
0
Deze moderne woning staat in een ruim opgezette uitbreidingswijk te Berkel-Enschot. Een rustige plek die wordt omringd door open weides en akkers in de luwte van Tilburg. Voor de opdrachtgevers was het belangrijk dat het terras de favoriete plek moest worden, dit was ook het uitgangspunt bij het ontwerp. Het resultaat is een omlijsting met rondlopende witte kaders van stucwerk die zijn ingekleed met hout.
De oriëntatie van het kavel was leidend in het ontwerp. Aangezien de voorzijde van de woning tevens de westzijde is, zou dit namelijk betekenen dat het gewenste terras op de straat zou uitkijken. Door het terugleggen van het terras ten opzicht van de voorgevel en het introduceren van twee gemetselde wanden is er een semi-open patio ontstaan. Zo is de privacy op het terras gewaarborgd.
De bakstenen van de gemetselde wanden vormen met de robuuste uitstraling een groot contrast met het strakke stucwerk en met hun horizontale belijning geven zij tegenwicht aan de statische verticaliteit van het hout. De donkere ambachtelijke handvormstenen bevatten soms nuances in lichtbruin die overeenkomen met de kleur van het hout.
De sculpturale zwevende belijning van het stucwerk wordt versterkt door de ingetogen detaillering. De nuances met de natuurlijke materialen metselwerk en hout zorgen voor contact met de aarde en ondanks het asymmetrisch lijnenspel vormt het geheel hierdoor een rustig beeld.
Het programma van de woning is levensloopbestendig. De begane grond bevat het gehele woonprogramma benodigd voor een tweepersoons huishouden. Op de verdieping bevinden zich nog drie slaap- en logeerkamers en een extra badkamer.
Stel jezelf kort voor! Dan weet het betreffende bedrijf wie hun brochure gedownload heeft.
Wil je niet bij elke download jouw gegevens in hoeven voeren?
Klik dan hier om in te loggen
. Heb je nog geen account?
Maak dan hier een gratis account aan
.
Voornaam
Achternaam
E-mailadres
Downloaden
Wanneer je brochures downloadt op Architectenweb.nl worden relevante gegevens van jou – zoals jouw naam en e-mailadres – met het betreffende bedrijf gedeeld. Meer hierover lees je in ons
privacybeleid
.
Wanneer je brochures downloadt op Architectenweb.nl worden relevante gegevens van jou – zoals jouw naam en e-mailadres – met het betreffende bedrijf gedeeld. Meer hierover lees je in ons
privacybeleid
.
Brochure
Stel jezelf kort voor! Dan weet het betreffende bedrijf wie hun model gedownload heeft.
Wil je niet bij elke download jouw gegevens in hoeven voeren?
Klik dan hier om in te loggen
.
Heb je nog geen account?
Maak dan hier een gratis account aan
.
Voornaam
Achternaam
E-mailadres
Downloaden
Wanneer je modellen downloadt op Architectenweb.nl worden relevante gegevens van jou – zoals jouw naam en e-mailadres – met het betreffende bedrijf gedeeld. Meer hierover lees je in ons
privacybeleid
.
Locatie
Trefwoorden
villa
woonhuis
architect
nieuwbouw
tilburg
modern
energieneutraal
duurzaam
Joris Verhoeven Architectuur
Neem contact op
Projectdata
Staat van realisatie
Voltooid
Start bouw
2017
Oplevering
2018
Plaats
Berkel-Enschot
Meewerkende partijen
Architect
Joris Verhoeven Architectuur
Aannemer
Cloïn Totaalbouw
Fotograaf
John van Groenedaal
Leveranciers
Overig
Steenbakkerij Vande Moortel
, Profel, Strikotherm B.V.
Neem contact op met
Joris Verhoeven Architectuur
Je bent momenteel niet ingelogd. Hierdoor is het alleen mogelijk om meer informatie per e-mail op te vragen. Wil je liever gebeld worden of documentatie per post ontvangen?
Klik dan hier om in te loggen
.
Heb je nog geen account?
Maak dan hier een gratis account aan
.
Voornaam
Achternaam
E-mailadres
Opmerkingen
Bij iedere aanvraag worden relevante gegevens van jou gedeeld met het betreffende bedrijf. Meer hierover lees je in ons
privacybeleid
.
Ja, denk met me mee rond de
materialisering van mijn project
Meer projecten van Joris Verhoeven Architectuur
A-typical house
Joris Verhoeven Architectuur
Andere Projecten
Campus Sportief Besteed Groep — Wubben.Chan
Wubben.Chan architecten
BDO kantoor Breda
ULMA Architectural Solutions
Toegangscontrole op een dynamisch terrein
Heras
Biobased bouwen naast Natura 2000-gebied
KUBUS | Specialist in Archicad
5Tracks - inspirerende atriums met JUNG
Jung | Hateha B.V.
Totaalrealisatie nieuwe kantoorlocatie A. Vogel
Intermontage B.V.
Sweco Wonderwoods — Duurzame kantoorinrichting
Hal2
Gare Maritime, Brussel
WEBO
De transformatie van de Lintveldebrink
Grohe Nederland B.V.
Sweco WTC Den Haag — Duurzame kantoorinrichting
Hal2
Uitbreiding Hotel Martin's Klooster, Leuven
OWA Benelux - Akoestiek & Design
RVS plinten kantoor Moore DRV
Storax
Ga naar het projecten-overzicht
Voor een optimale gebruikservaring plaatst Architectenweb functionele cookies. Wat de verschillende cookies precies doen leggen we uit in een
overzicht
. Cookies van social media kun je optioneel
aanzetten
.
Akkoord
Instellingen
Annuleren
OK
Sluiten
Doorgaan
Inloggen
Maak een gratis persoonlijk account aan
Feedback
Feedback
Wij horen graag jouw feedback. Laat je reactie achter en eventueel jouw e-mail adres.
Reactie
Verstuur