Projecten
Producten
Bedrijven
Vacatures
Agenda
Awards
Podcasts
more_horiz
Videos
Magazine
Thema's
Favorieten
Profiel
Uitloggen
Abonneer je nu op onze nieuwsbrieven!
Abonneren
Nee, bedankt
Ja, denk met me mee rond de
materialisering van mijn project
Producten
Copyright: VIA hotels
Copyright: VIA hotels
Copyright: VIA hotels
Copyright: VIA hotels
Copyright: VIA hotels
Copyright: VIA hotels
Copyright: VIA hotels
Copyright: VIA hotels
Copyright: VIA hotels
Copyright: VIA hotels
Copyright: VIA hotels
Copyright: VIA hotels
Copyright: VIA hotels
Copyright: VIA hotels
Copyright: VIA hotels
Producttags
AAN
UIT
VIA Work, Diemen
21 juni 2019
0
0
0
0
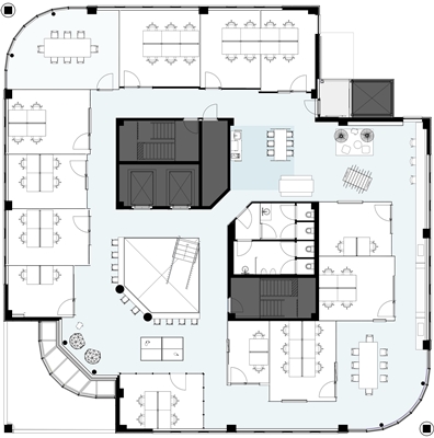
VIA Work is dé co-work space van de VIA community in Diemen en biedt flexibele werkplekken, vergaderruimten, ontmoetingsplekken en een ontvangstruimte met balie en bar op de begane grond. APTO architecten was verantwoordelijk voor zowel de conceptontwikkeling als het ontwerp waarbij alleen de twee oude kernen behouden zijn gebleven. De rest werd geheel vernieuwd, met nieuwe installaties en datakabels.
Ontworpen als een klein dorp, waarbij verschillende straten samenkomen op een centraal plein. De daaraan verbonden gangen functioneren als ontmoetingsruimte met tafels en krukken om aan te werken. ‘Straten’ waaraan te huren ruimtes en bureaus liggen, als kleine huisjes die flexibel in te delen zijn door modulaire wanden. Wandelend door de straten ontmoet je andere inspirerende professionals. Op de twee bovengelegen verdiepingen bevinden zich suites, zodat je naast werken, ook kunt blijven slapen.
Samen met het VIA Hotel biedt VIA Work niet alleen een plek om te werken en voor organiseren van evenementen, maar ook voor een langer verblijf. Dit maakt VIA Village tot een full service business village. Een locatie waar je alle benodigde functies op een plek hebt, zodat je VIA village niet meer hoeft te verlaten. Een plek waar mensen elkaar kennen en waar bedrijven en millennials worden gestimuleerd elkaar op te zoeken. Een smeltkroes van nieuwe ideeën.
Naast het VIA Hotel en VIA Work is ook het naastgelegen VIA42 in ontwikkeling. Een full service office locatie om VIA Village compleet te maken. APTO is hier verantwoordelijk voor zowel conceptontwikkeling als ontwerp.
Stel jezelf kort voor! Dan weet het betreffende bedrijf wie hun model gedownload heeft.
Wil je niet bij elke download jouw gegevens in hoeven voeren?
Klik dan hier om in te loggen
.
Heb je nog geen account?
Maak dan hier een gratis account aan
.
Voornaam
Achternaam
E-mailadres
Downloaden
Wanneer je modellen downloadt op Architectenweb.nl worden relevante gegevens van jou – zoals jouw naam en e-mailadres – met het betreffende bedrijf gedeeld. Meer hierover lees je in ons
privacybeleid
.
Locatie
Trefwoorden
hospitality
co-working
transformatie
co-work
hotel
interieurarchitectuur
Apto Architects
Neem contact op
Projectdata
Staat van realisatie
Voltooid
Start bouw
2018
Oplevering
2019
Ingebruikname
2019
Plaats
Diemen
Netto m
2
5000
Meewerkende partijen
Interieurarchitect
Apto Architects
Opdrachtgever
VIA Hotels
Aannemer
Van Wijnen
Constructeur
Van Wijnen
Neem contact op met
Apto Architects
Je bent momenteel niet ingelogd. Hierdoor is het alleen mogelijk om meer informatie per e-mail op te vragen. Wil je liever gebeld worden of documentatie per post ontvangen?
Klik dan hier om in te loggen
.
Heb je nog geen account?
Maak dan hier een gratis account aan
.
Voornaam
Achternaam
E-mailadres
Opmerkingen
Bij iedere aanvraag worden relevante gegevens van jou gedeeld met het betreffende bedrijf. Meer hierover lees je in ons
privacybeleid
.
Ja, denk met me mee rond de
materialisering van mijn project
Meer projecten van Apto Architects
Kokomo circulaire hotspot voor de buurt
Apto Architects
Creating Chemistry
Apto Architects
SHV Energy
Apto Architects
Eden Hotel Amsterdam
Apto Architects
Moxy London Heathrow Airport Interior
Apto Architects
Moxy London Heathrow Facade
Apto Architects
Grab & Fly
Apto Architects
Moxy Milan Malpensa
Apto Architects
De Insulinde fabriek
Apto Architects
X Meeting Point
Apto Architects
Kokomo circulaire hotspot voor de buurt
Apto Architects
Creating Chemistry
Apto Architects
SHV Energy
Apto Architects
Eden Hotel Amsterdam
Apto Architects
Moxy London Heathrow Airport Interior
Apto Architects
Moxy London Heathrow Facade
Apto Architects
Grab & Fly
Apto Architects
Moxy Milan Malpensa
Apto Architects
De Insulinde fabriek
Apto Architects
X Meeting Point
Apto Architects
Toon alles
Andere Projecten
Woningen Viladomat in Barcelona, Spanje
ULMA Architectural Solutions
Vergroening Europakade Tolkamer
ACO BV
Frigo-Trans GmbH Mezzaninevloer voor logistiek
Nolte Mezzanine
Antwerpen Kievit
HOSPER landschapsarchitectuur
Luxe wonen in Hamptons stijl
Holonite B.V.
ABB-technologie verlicht de Burj Khalifa
ABB | Busch-Jaeger
Hybride buitenruimte Catharinatoren Zaandam
Solarlux Nederland B.V.
Vijf keer Gorter op Jullensblok
Gorter Luiken BV
TU Delft Stadsklimaatbos
HOSPER landschapsarchitectuur
Hilversum Nieuw Zuid
HOSPER landschapsarchitectuur
Full service voor logistiek bedrijfspand
Buro De Haan
Maatwerk vanuit een concpetwoning
Innoblox
Ga naar het projecten-overzicht
Voor een optimale gebruikservaring plaatst Architectenweb functionele cookies. Wat de verschillende cookies precies doen leggen we uit in een
overzicht
. Cookies van social media kun je optioneel
aanzetten
.
Akkoord
Instellingen
Annuleren
OK
Sluiten
Doorgaan
Inloggen
Maak een gratis persoonlijk account aan
Feedback
Feedback
Wij horen graag jouw feedback. Laat je reactie achter en eventueel jouw e-mail adres.
Reactie
Verstuur