Abonneer je nu op onze nieuwsbrieven!
Abonneren
Nee, bedankt
Ja, denk met me mee rond de
materialisering van mijn project
Producten
Copyright: Ilya Ivanov
Copyright: Ilya Ivanov
Copyright: Ilya Ivanov
Copyright: Ilya Ivanov
Copyright: Ilya Ivanov
Copyright: Ilya Ivanov
Copyright: Ilya Ivanov
Copyright: Ilya Ivanov
Copyright: Ilya Ivanov
Copyright: Ilya Ivanov
Copyright: Ilya Ivanov
Copyright: Ilya Ivanov
Copyright: Ilya Ivanov
Copyright: Ilya Ivanov
Copyright: Ilya Ivanov
Copyright: Ilya Ivanov
Copyright: Ilya Ivanov
ProducttagsAANUIT

Appartementencomplex Dutch House

7 juni 2019
Team Paul de Vroom + Sputnik voltooit Dutch House: appartementencomplex in Moskou.

In Wellton Park, een wijk in Moskou met een zeer hoge dichtheid, heeft Team Paul de Vroom + Sputnik twee appartementengebouwen opgeleverd met uitgesproken vormgegeven metselwerkgevels. De opdrachtgever Krost vroeg om “Hollandse” architectuur. In het ontwerp hebben de architecten van Team Paul de Vroom + Sputnik zich laten inspireren door de Amsterdamse School.

Toelichting

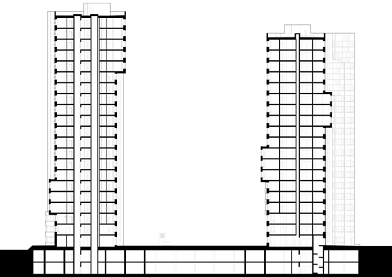
Het project ‘Dutch House’ maakt onderdeel uit van de herontwikkeling van de wijk District 75 in het westen van Moskou. Met de nieuwe naam Wellton Park is de wijk in een periode van 20 jaar, door het Russische bouw- en industrieel bedrijf KROST, getransformeerd tot een luxe woonwijk met een zeer hoge dichtheid en een met zorg aangelegd maaiveld. Te midden van de witte of lichtgrijze woongebouwen springt Dutch House in het oog door zijn opvallende rode baksteenkleur. De twee gebouwen van 75m en 60m hoog bevatten 360 appartementen bovenop een tweelaagse ondergrondse parkeergarage.

De condities voor het project Dutch House zijn uitzonderlijk. De rechthoekige kavel wordt aan vier zijden omsloten door woongebouwen die over het algemeen hoger zijn dan de twee nieuwe blokken. Dit geeft de locatie het karakter van een grote, gesloten binnenkamer met alleen spaarzame openingen waardoorheen uitzicht wordt geboden. Er was daarom een sterk concept nodig dat het wonen in de nieuwe appartementen aangenaam maakt.

In het ontwerp voor Dutch House wordt de locatie opgevat als een toneel met daarop twee acteurs: de gebouwen. Om goed te kunnen optreden, zullen deze acteurs een specifieke identiteit moeten hebben en vooral in goede harmonie moeten verkeren met elkaar en met het ‘theater’ eromheen. Daarom zijn de gebouwen en de context in nauwe samenhang met elkaar ontworpen.

De positie van de beide gebouwen lijkt willekeurig, maar is in feite het directe resultaat van de toepassing van de Russische regels omtrent bezonning. Sleutelwoord voor het ontwerp van de publieke ruimte is verbinding. Door een ‘verbindend tapijt’ te introduceren, was het mogelijk om alle uiteenlopende richtingen, de beide gebouwen en de buitenactiviteiten in onderlinge samenhang te brengen.

De opdrachtgever vroeg expliciet om Nederlandse architectuur. Met begrippen als identiteit en samenhang in gedachten, is een hedendaagse architectonische vormgeving ontwikkeld, gebaseerd op het idioom van de Amsterdamse School: expressieve plasticiteit met bij voorkeur ronde vormen, een ritmische herhaling van volumes, verticale articulatie en repeterende, vierkante ramen. Verder kenmerkt de Amsterdamse School zich door afgewogen gebruik van de materialen baksteen, hout, glas, natuursteen, beton en metaal, in combinatie met monumentale houten ingangspartijen en uitzonderlijke details.

De kenmerken van de Amsterdamse School zijn getransformeerd in moderne ontwerpinstrumenten, zoals de ritmiek van de zaagtandgevel, de getrapte afgeronde erkers en het abstracte patroon van kleine vierkante ramen. Met deze strategie was het mogelijk om het ensemble Dutch House een spectaculaire architectonische verschijning te geven. Door het spel van licht en schaduw wordt vanuit iedere hoek het samenspel van de twee gebouwen anders ervaren.

Bij de materiaalkeuze en detaillering van Dutch House is hetzelfde principe gevolgd. De gevels zijn opgetrokken in Hollandse, oranjegekleurde bakstenen, in de ronde erkers zit gebogen glas en de zware entreedeuren zijn monumentaal door hun houten profilering,

De gemeenschappelijke ruimtes binnen de gebouwen worden gekenmerkt door rijk materiaalgebruik en verfijnde detaillering. De zaagtand-structuur is ook hier kenmerkend. Door in de vormgeving de verticale lijnen te benadrukken ademen de ruimtes een prettige sfeer. Zo zijn er geen lichtarmaturen aan de plafonds in de corridors maar zijn er enkel verticale lichtlijnen die de wanden aanlichten. Op elke verdieping is op een aantal wanden een driedimensionaal tulpenpatroon aangebracht. In de entree-lobby’s zijn aan de Amsterdamse School verwante materialen zichtbaar, zoals messing, diep donker hout en natuursteen, in combinatie met hedendaagse elementen als de driedimensionale, abstracte tulpenpatronen en lichtplafonds.

Stel jezelf kort voor! Dan weet het betreffende bedrijf wie hun brochure gedownload heeft.
Wil je niet bij elke download jouw gegevens in hoeven voeren?
Klik dan hier om in te loggen. Heb je nog geen account? Maak dan hier een gratis account aan.
Voornaam
Achternaam
E-mailadres
Downloaden
Wanneer je brochures downloadt op Architectenweb.nl worden relevante gegevens van jou – zoals jouw naam en e-mailadres – met het betreffende bedrijf gedeeld. Meer hierover lees je in ons privacybeleid.
Wanneer je brochures downloadt op Architectenweb.nl worden relevante gegevens van jou – zoals jouw naam en e-mailadres – met het betreffende bedrijf gedeeld. Meer hierover lees je in ons privacybeleid.

Stel jezelf kort voor! Dan weet het betreffende bedrijf wie hun model gedownload heeft.
Wil je niet bij elke download jouw gegevens in hoeven voeren?
Klik dan hier om in te loggen.

Heb je nog geen account? Maak dan hier een gratis account aan.
Voornaam
Achternaam
E-mailadres
Downloaden
Wanneer je modellen downloadt op Architectenweb.nl worden relevante gegevens van jou – zoals jouw naam en e-mailadres – met het betreffende bedrijf gedeeld. Meer hierover lees je in ons privacybeleid.

Locatie

Neem contact op met Team Paul de Vroom + Sputnik

Je bent momenteel niet ingelogd. Hierdoor is het alleen mogelijk om meer informatie per e-mail op te vragen. Wil je liever gebeld worden of documentatie per post ontvangen? Klik dan hier om in te loggen.
Heb je nog geen account? Maak dan hier een gratis account aan.
Voornaam
Achternaam
E-mailadres
Opmerkingen
Bij iedere aanvraag worden relevante gegevens van jou gedeeld met het betreffende bedrijf. Meer hierover lees je in ons privacybeleid.
Ja, denk met me mee rond de
materialisering van mijn project

Meer projecten van Team Paul de Vroom + Sputnik

Toon alles
ATAG Nederland
KUBUS | Specialist in Archicad
SAPA
Reynaers Aluminium Nederland
Jansen
SAB-profiel bv
Aliplast Aluminium Systems
Kingspan Light & Air
ALUCOBOND®
Caparol
Tarkett BV
Kawneer
Grohe Nederland B.V.
Malaysian Timber Council
OCS | Office Cabling Systems
Swisspearl Nederland
Forster Nederland N.V.
VELUX Commercial Benelux B.V.
Sempergreen
Houthandel van Dam
Aluprof Nederland BV
QbiQ Wall Systems
Forbo Flooring
Schüco Nederland
Cedral
Sto Isoned bv
Triflex bv
Gorter Luiken BV
wienerberger
DUCO Ventilation & Sun Control
BEWI IsoBouw
ROCKWOOL B.V.
Mview+
Rockfon (ROCKWOOL B.V.)
Gira Nederland B.V.
Kingspan Geïsoleerde Panelen
GEZE Benelux  B.V.
Renson
Metaglas Groep
ABB | Busch-Jaeger
Jung | Hateha B.V.
Knauf B.V.
Saint-Gobain Glass Benelux
Faay Vianen B.V.
objectflor
Boon Edam Nederland B.V.
Hunter Douglas Architectural
VOLA Nederland BV
Forbo Eurocol Nederland B.V.
EQUITONE gevelpanelen
Holonite B.V.
Tata Steel Colorcoat®
Architectenweb
Over ons
Contact

© 2002 - 2026 Architectenweb BV / Voorwaarden / Privacy / Disclaimer / Sitemap
Annuleren
OK
Sluiten
Doorgaan
Inloggen
Maak een gratis persoonlijk account aan