Projecten
Producten
Bedrijven
Vacatures
Agenda
Awards
Podcasts
more_horiz
Videos
Magazine
Favorieten
Profiel
Uitloggen
Abonneer je nu op onze nieuwsbrieven!
Abonneren
Nee, bedankt
Ja, denk met me mee rond de
materialisering van mijn project
Producten
Woongebouw met supermarkt en parkeergarage
Copyright: Peter de Ruig
'Poort' Badhuisstraat
Copyright: Peter de Ruig
Zonwerende schuifschermen
Copyright: Romano van den Dool
Gevel met natuurlijke kleuren
Copyright: Peter de Ruig
Daktuin
Copyright: Peter de Ruig
Daktuin en omgeving
Copyright: Peter de Ruig
Badhuisstraat
Copyright: Peter de Ruig
Werkruimte Limor
Copyright: Peter de Ruig
Galerij met daklichten en vides
Copyright: Peter de Ruig
Woonunit
Copyright: Peter de Ruig
Gemeenschappelijke ruimte Limor
Copyright: Peter de Ruig
Trappenhuis parkeergarage
Copyright: Peter de Ruig
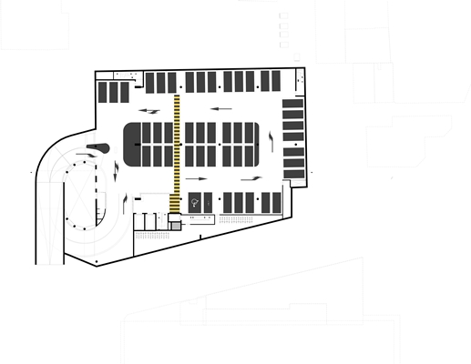
Parkeergarage
Copyright: Peter de Ruig
Wisselend gevelbeeld
Copyright: Peter de Ruig
Gevel Badhuisstraat
Copyright: Studio Leon Thier
Parkeergarage -1
Copyright: Studio Leon Thier
Begane grond supermarkt
Copyright: Studio Leon Thier
Woonverdieping
Copyright: Studio Leon Thier
Doorsnede
Copyright: Studio Leon Thier
Producttags
AAN
UIT
Nieuwbouw Badhuisstraat
16 augustus 2018
0
0
0
0
Vroeger, wanneer je vanuit Den Haag via het Scheveningse Bos naar Scheveningen reisde, kwam je uit op het plein waaraan Scheveningen Dorp lag. Van dat historische plein was onlangs niet veel meer over dan een chaotisch verkeersknooppunt. Onze ambitie was om Scheveningen een plein terug te geven en de hoek van de Badhuisstraat een mooi nieuw gebouw dat samen met het voormalige GAK-gebouw de poort naar de Badhuisstraat vormt.
Het nieuwe bouwvolume volgt de rooilijnen van de bestaande bebouwing in de Hoge Prins Willemstraat en de Badhuisstraat. Door afronding van de hoeken van het hoofdvolume komt het gebouw vrij te staan van de bestaande bebouwing. Zo neemt het gebouw een markante positie in aan het plein, maar past het tegelijkertijd naadloos in het bestaande stedelijke weefsel. Vanuit dezelfde gedachte is het bouwdeel aan de Badhuisstraat vormgegeven als een rij ‘klassieke’ panden passend in het beschermde stadsgezicht van de Badhuisstraat. De entree van de ondergrondse parkeergarage ligt aan het plein parallel aan de Hoge Prins Willemstraat.
De gebouwplint biedt ruimte voor een Hoogvliet-supermarkt en deze draagt zo bij aan de levendigheid van het plein. De parkeergarage bestaat uit twee ondergrondse parkeerlagen en biedt bezoekers van de supermarkt en medewerkers voldoende parkeergelegenheid. Op de verdiepingen boven de supermarkt zijn zesenzestig wooneenheden gerealiseerd. De wooneenheden worden beheerd door stichting LIMOR en zijn bedoeld voor mensen die behoefte hebben aan een beschermde leefomgeving die er onder begeleiding kunnen wonen. Diverse ondersteunende functies, zoals een gemeenschappelijke ruimte en werkruimten voor stichting LIMOR en een gemeenschappelijke ruimte voor de medewerkers van de supermarkt, zijn geplaatst op de verdieping van het bouwdeel aan de Badhuisstraat. De plint van dit bouwdeel biedt ruimte voor de expeditie-ingang van de supermarkt. De besloten ‘hof’ aan de achterzijde van de bouwvolumes is open voor alle gebruikers en geeft hen de mogelijkheid om te genieten van rust en groen midden in de stad.
De gevel van de supermarkt op de begane grond is typisch ‘Haags’ bekleed met natuursteen dat op diverse plekken is voorzien van het wapen van Scheveningen. Het metselwerk van de daarboven gelegen verdiepingen is opgetrokken in een zandkleurige steen, waarmee een link wordt gelegd naar de kleur van de nabij gelegen duinen en het strand. De gevels van de woningen hebben aan de woon- en slaapkamer een ‘frans balkon’ met grote vensters. Hierdoor is er vanuit de woningen een mooi zicht op het plein, op Scheveningen en op de zee! Schuifbare zonweringspanelen completeren het gevelbeeld. Bewoners kunnen de schermen naar eigen inzicht verschuiven en zo de mate van zonlichttoetreding en privacy in hun woonruimten regelen. Deze gebruikersvrijheid zorgt zo voor het afwisselende gevelbeeld. Daglicht dringt door tot diep in het gebouw dankzij de langgerekte lichtstraat en de open vides in de middenzone van het gebouw. Het bouwdeel aan de Badhuisstraat is ontworpen als een rij ‘klassieke’ panden passend in het beschermde dorpsgezicht van de Badhuisstraat. Het bouwdeel is opgetrokken in donkerrood metselwerk en wordt gekenmerkt door hoge vensters.
“Hoogvliet Beheer vond een markante locatie en Studio Leon Thier ontwierp een markant gebouw: een wisselend gevelbeeld op een levendig plein.”
Cor-Jan Schreuder,
directeur Hoogvliet Beheer
Stel jezelf kort voor! Dan weet het betreffende bedrijf wie hun brochure gedownload heeft.
Wil je niet bij elke download jouw gegevens in hoeven voeren?
Klik dan hier om in te loggen
. Heb je nog geen account?
Maak dan hier een gratis account aan
.
Voornaam
Achternaam
E-mailadres
Downloaden
Wanneer je brochures downloadt op Architectenweb.nl worden relevante gegevens van jou – zoals jouw naam en e-mailadres – met het betreffende bedrijf gedeeld. Meer hierover lees je in ons
privacybeleid
.
Wanneer je brochures downloadt op Architectenweb.nl worden relevante gegevens van jou – zoals jouw naam en e-mailadres – met het betreffende bedrijf gedeeld. Meer hierover lees je in ons
privacybeleid
.
Brochure
Stel jezelf kort voor! Dan weet het betreffende bedrijf wie hun model gedownload heeft.
Wil je niet bij elke download jouw gegevens in hoeven voeren?
Klik dan hier om in te loggen
.
Heb je nog geen account?
Maak dan hier een gratis account aan
.
Voornaam
Achternaam
E-mailadres
Downloaden
Wanneer je modellen downloadt op Architectenweb.nl worden relevante gegevens van jou – zoals jouw naam en e-mailadres – met het betreffende bedrijf gedeeld. Meer hierover lees je in ons
privacybeleid
.
Locatie
Trefwoorden
appartementen
woongebouw
badhuisstraat
scheveningen
parkeergarage
limor
den haag
supermarkt
hoogvliet
zorgwoningen
Studio Leon Thier
Neem contact op
Projectdata
Staat van realisatie
Voltooid
Start bouw
2017
Plaats
Den Haag
Bruto m
2
11643
Neem contact op met
Studio Leon Thier
Je bent momenteel niet ingelogd. Hierdoor is het alleen mogelijk om meer informatie per e-mail op te vragen. Wil je liever gebeld worden of documentatie per post ontvangen?
Klik dan hier om in te loggen
.
Heb je nog geen account?
Maak dan hier een gratis account aan
.
Voornaam
Achternaam
E-mailadres
Opmerkingen
Bij iedere aanvraag worden relevante gegevens van jou gedeeld met het betreffende bedrijf. Meer hierover lees je in ons
privacybeleid
.
Ja, denk met me mee rond de
materialisering van mijn project
Meer projecten van Studio Leon Thier
VMBO Herbert Vissers College
Studio Leon Thier
Campus Den Haag, Universiteit Leiden
Studio Leon Thier
Nieuwbouw Augustinianum
Studio Leon Thier
VMBO Herbert Vissers College
Studio Leon Thier
Campus Den Haag, Universiteit Leiden
Studio Leon Thier
Nieuwbouw Augustinianum
Studio Leon Thier
Toon alles
Andere Projecten
Onderwijsgebouw Aurora, Wageningen
WEBO
Sandwichpanelenwand hygiënische afbouw
Sentho B.V.
Transformeerbare vergaderruimtes in HNK Amsterdam
BREEDVELD mobiele wandsystemen
Complete buiteninrichting kantooromgeving
Falco B.V.
TopAccess Dakluik bij Porsche Service Factory
Staka Dakluiken
Nieuwbouw villa Tegenbosch, Eindhoven, Noord-Braba
van Os Architecten
Moderne villa Alkmaar
BNLA architecten
Appartementencomplex in Purmerend
SSAB Swedish Steel BV
Office Winhov over project Pulse met Archicad
KUBUS | Specialist in Archicad
Nieuwbouw moderne bungalow, Prinsenbeek, Noord-Bra
van Os Architecten
Verbouwing villa Ruitersbos, Breda, Noord-Brabant
van Os Architecten
Nieuwbouw schuurwoning, Oosterhout, Noord-Brabant
van Os Architecten
Ga naar het projecten-overzicht
Voor een optimale gebruikservaring plaatst Architectenweb functionele cookies. Wat de verschillende cookies precies doen leggen we uit in een
overzicht
. Cookies van social media kun je optioneel
aanzetten
.
Akkoord
Instellingen
Annuleren
OK
Sluiten
Doorgaan
Inloggen
Maak een gratis persoonlijk account aan
Feedback
Feedback
Wij horen graag jouw feedback. Laat je reactie achter en eventueel jouw e-mail adres.
Reactie
Verstuur