Projecten
Producten
Bedrijven
Vacatures
Agenda
Awards
Podcasts
more_horiz
Videos
Magazine
Favorieten
Profiel
Uitloggen
Abonneer je nu op onze nieuwsbrieven!
Abonneren
Nee, bedankt
Ja, denk met me mee rond de
materialisering van mijn project
Producten
Agora
Copyright: Base Photography
Een compact schoolgebouw
Copyright: Base Photography
Lichte gangen
Copyright: Base Photography
Agora in de pauze
Copyright: Base Photography
Tribunetrap in de Agora
Copyright: Base Photography
X-trap
Copyright: Base Photography
Projectruimte met zicht op de Agora
Copyright: Base Photography
Buitenpodium
Copyright: Base Photography
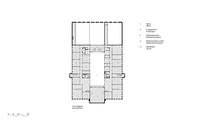
Mediatheek
Copyright: Base Photography
De gymzaal wordt gedragen door een constructie van betonnen A's
Copyright: Base Photography
De portzaal
Copyright: Base Photography
Geveldetail
Copyright: Base Photography
Entree
Copyright: Base Photography
Entree
Copyright: Base Photography
Situatietekening
Copyright: architecten|en|en & Studio Leon Thier
Begane grond
Copyright: architecten|en|en & Studio Leon Thier
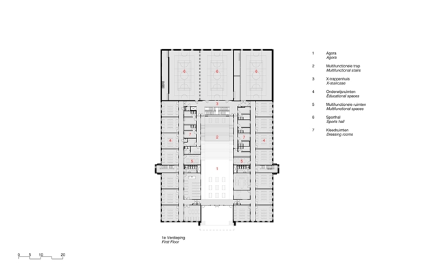
1e verdieping
Copyright: architecten|en|en & Studio Leon Thier
2e verdieping
Copyright: architecten|en|en & Studio Leon Thier
Zuidgevel
Copyright: architecten|en|en & Studio Leon Thier
Westgevel
Copyright: architecten|en|en & Studio Leon Thier
Noordgevel
Copyright: architecten|en|en & Studio Leon Thier
Oostgevel
Copyright: architecten|en|en & Studio Leon Thier
Doorsnede over de Agora, dramalokaal, fietsenstalling en sportzaal
Copyright: architecten|en|en & Studio Leon Thier
Doorsnede over x-trap en onderwijsruimten
Copyright: architecten|en|en & Studio Leon Thier
Doorsnede over Agora, x-trappenhuis en onderwijsruimten
Copyright: architecten|en|en & Studio Leon Thier
Producttags
AAN
UIT
Nieuwbouw Augustinianum
30 juli 2018
0
0
0
0
Creativiteit en ontmoeting staan centraal in het nieuwe schoolgebouw van het Augustinianum.
De ambitie van de school is om naast gedegen onderwijs ook sport, drama en popmuziek te stimuleren en in te zetten als beeldmerk: een school die uitstraalt waar hij voor staat en inhoud geeft aan het lesprogramma.
De huisvesting van het Augustinianum bleek niet meer geschikt voor de eisen van de huidige tijd. Besloten werd om een compacte nieuwbouw te realiseren met als centraal ontwerpidee de Agora, het symbool voor ontmoeting in het hart van de school. Rondom dit bijzonder leer- en pauzelandschap liggen de mediatheek en op verschillende verdiepingen de diverse ‘Vakdomeinen’ gericht op alfa, bèta en gamma.
Het ontwerp past bij de sportieve en culturele ambities van de school. De inrichting is geheel afgestemd op het creatieve onderwijs binnen het Augustinianum. Onder de oplopende tribune van de Agora, bevindt zich op de begane grond de ‘underground’ met ruimten voor drama, muziek, kunst en cultuur. Vanuit de opgetilde sportzalen kijkt men via grote vensters uit over de sportvelden.
Door de klaslokalen en stafruimten aan de buitengevels te leggen, ontstaat rondom de Agora een flexibele zone met allerlei functies. Deze flexibiliteit is bereikt door een slimme flexibele constructie van een dragende buitengevel, een gevel van dragende elementen aan de Agora en dragende elementen in één van de twee gangwanden. De transparante binnenwanden zorgen voor een ruimtelijke ervaring waarbij ontmoeting en inspiratie gestimuleerd wordt.
De Agoravloer loopt in terrassen op tot de eerste verdieping, waardoor een leer- en pauzelandschap ontstaat dat ook kan dienen als tribune bij voorstellingen.
Het podium voor deze tribune loopt van binnen naar buiten door, slechts gescheiden door een groot theaterraam met uitzicht op het groen. In dit venster is het fraaie glas-in-loodraam met een afbeelding van St. Augustinus uit het oude schoolgebouw opnieuw opgenomen. Boven het podium ligt de centrale Mediatheek, een mooie hoge studieruimte.
Een opgetild dak boven de Agora zorgt voor veel daglicht in de centraal gelegen Agora en de aangrenzende ruimten. Het daglicht wordt gefilterd door toepassing van translucente panelen. Doordat daglicht op deze wijze tot in het hart van het gebouw kan door dringen, ontstaat een prettig gebouw, met een zeer efficiënte opzet, die een grote mate van flexibiliteit in zich draagt.
Aan de buitenzijde biedt de mediatheek samen met het Buitenpodium een kenmerkend beeld richting de groene Geldropseweg. De Agora en het podium zijn in het dagelijkse leven van de school een geliefde plek voor de pauze. Bij mooi weer is er rondom de school tevens voldoende pauzegelegenheid in het groen. In de zomermaanden wordt het buitenpodium ingezet voor open lucht voorstellingen.
In de gevel verwijzen A-vormige prefab elementen naar de A van Augustinianum en de gevelelementen in het oorspronkelijke gebouw uit de jaren ’50.
“De architecten creëren met hoofd, buik en hart waardoor het ontwerp bij je past en raakt.”
Maarten de Veth, rector
Stel jezelf kort voor! Dan weet het betreffende bedrijf wie hun brochure gedownload heeft.
Wil je niet bij elke download jouw gegevens in hoeven voeren?
Klik dan hier om in te loggen
. Heb je nog geen account?
Maak dan hier een gratis account aan
.
Voornaam
Achternaam
E-mailadres
Downloaden
Wanneer je brochures downloadt op Architectenweb.nl worden relevante gegevens van jou – zoals jouw naam en e-mailadres – met het betreffende bedrijf gedeeld. Meer hierover lees je in ons
privacybeleid
.
Wanneer je brochures downloadt op Architectenweb.nl worden relevante gegevens van jou – zoals jouw naam en e-mailadres – met het betreffende bedrijf gedeeld. Meer hierover lees je in ons
privacybeleid
.
Brochure
Stel jezelf kort voor! Dan weet het betreffende bedrijf wie hun model gedownload heeft.
Wil je niet bij elke download jouw gegevens in hoeven voeren?
Klik dan hier om in te loggen
.
Heb je nog geen account?
Maak dan hier een gratis account aan
.
Voornaam
Achternaam
E-mailadres
Downloaden
Wanneer je modellen downloadt op Architectenweb.nl worden relevante gegevens van jou – zoals jouw naam en e-mailadres – met het betreffende bedrijf gedeeld. Meer hierover lees je in ons
privacybeleid
.
Locatie
Trefwoorden
middelbare school
nieuwbouw
augustinianum
eindhoven
Studio Leon Thier
Neem contact op
Projectdata
Staat van realisatie
Voltooid
Start bouw
2017
Plaats
Eindhoven
Bruto m
2
9545
Neem contact op met
Studio Leon Thier
Je bent momenteel niet ingelogd. Hierdoor is het alleen mogelijk om meer informatie per e-mail op te vragen. Wil je liever gebeld worden of documentatie per post ontvangen?
Klik dan hier om in te loggen
.
Heb je nog geen account?
Maak dan hier een gratis account aan
.
Voornaam
Achternaam
E-mailadres
Opmerkingen
Bij iedere aanvraag worden relevante gegevens van jou gedeeld met het betreffende bedrijf. Meer hierover lees je in ons
privacybeleid
.
Ja, denk met me mee rond de
materialisering van mijn project
Meer projecten van Studio Leon Thier
Nieuwbouw Badhuisstraat
Studio Leon Thier
VMBO Herbert Vissers College
Studio Leon Thier
Campus Den Haag, Universiteit Leiden
Studio Leon Thier
Nieuwbouw Badhuisstraat
Studio Leon Thier
VMBO Herbert Vissers College
Studio Leon Thier
Campus Den Haag, Universiteit Leiden
Studio Leon Thier
Toon alles
Andere Projecten
Onderwijsgebouw Aurora, Wageningen
WEBO
Sandwichpanelenwand hygiënische afbouw
Sentho B.V.
Transformeerbare vergaderruimtes in HNK Amsterdam
BREEDVELD mobiele wandsystemen
Complete buiteninrichting kantooromgeving
Falco B.V.
TopAccess Dakluik bij Porsche Service Factory
Staka Dakluiken
Nieuwbouw villa Tegenbosch, Eindhoven, Noord-Braba
van Os Architecten
Moderne villa Alkmaar
BNLA architecten
Appartementencomplex in Purmerend
SSAB Swedish Steel BV
Office Winhov over project Pulse met Archicad
KUBUS | Specialist in Archicad
Nieuwbouw moderne bungalow, Prinsenbeek, Noord-Bra
van Os Architecten
Verbouwing villa Ruitersbos, Breda, Noord-Brabant
van Os Architecten
Nieuwbouw schuurwoning, Oosterhout, Noord-Brabant
van Os Architecten
Ga naar het projecten-overzicht
Voor een optimale gebruikservaring plaatst Architectenweb functionele cookies. Wat de verschillende cookies precies doen leggen we uit in een
overzicht
. Cookies van social media kun je optioneel
aanzetten
.
Akkoord
Instellingen
Annuleren
OK
Sluiten
Doorgaan
Inloggen
Maak een gratis persoonlijk account aan
Feedback
Feedback
Wij horen graag jouw feedback. Laat je reactie achter en eventueel jouw e-mail adres.
Reactie
Verstuur