Abonneer je nu op onze nieuwsbrieven!
Abonneren
Nee, bedankt
Ja, denk met me mee rond de
materialisering van mijn project
Producten
De intieme sfeer van de clubruimte
Copyright: Ossip van Duivenbode
Grote glasvlakken verbinden clubruimte met het complex
Copyright: Ossip van Duivenbode
Het houtenlattenplafond met LED-lijnen op de kniklijnen van het dak
Copyright: Ossip van Duivenbode
De entree ligt halfweg de twee gebouwniveau's
Copyright: Ossip van Duivenbode
Een metselwerkreliëf met logo accentueert de entree
Copyright: Ossip van Duivenbode
Het clubhuis ligt als een paviljoen centraal in het sportcomplex
Copyright: Ossip van Duivenbode
Terrassen en tribune hebben een directe realtie tot het clubhuis
Copyright: Ossip van Duivenbode
De knikkende daklijn geeft het gebouw een eigen expressie
Copyright: Ossip van Duivenbode
Het clubgebouw ligt half-verdiept in een groen landschap
Copyright: Ossip van Duivenbode
De verschillende niveau's zijn soepel met alkaar verbonden
Copyright: Ossip van Duivenbode
's Avonds is het clubhuis een baken in het hart van het sportcomplex
Copyright: Ossip van Duivenbode
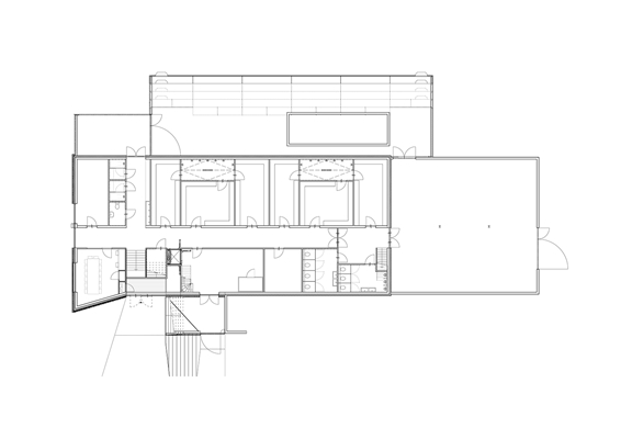
Plattegrond van het souterrain (niveau 0)
Copyright: Architéma Architectuurstudio
Plattegrond van de beletage (niveau 1)
Copyright: Architéma Architectuurstudio
Concept-tekeing van de dakvorm
Copyright: Architéma Architectuurstudio
ProducttagsAANUIT

Hockey Combinatie Schiedam (HCS)

5 september 2017
Het nieuwe clubgebouw voor de Hockey Combinatie Schiedam (HCS) brengt twee Schiedamse hockeyclubs samen onder één dak. Het dak vormt ook het leidmotief in het ontwerp, maar is meer dan alleen een architectonisch object: zowel bouwfysisch als bouwtechnisch is het een ingenieus integraal ontwerp.  

Het ontwerp is ontstaan ten tijde van het fusietraject van de hockeyverenigingen Asvion en Spirit. Deze clubs - beiden opgericht in 1936 – besloten na 80 jaar rivaliteit samen verder te gaan op een nieuw complex. Een fusie is, als elk proces van verandering, een uitstekende katalysator voor polarisatie. Dit besef ligt ten grondslag aan het ontwerp van het clubgebouw, dat dient als een instrument om interne samenhang te creëren onder de banier van één herkenbare, nieuwe identiteitsdrager. Als zodanig speelt het ontwerp met de idee van het bundelen van progressieve en conservatieve krachten, als apotheose van een nieuw te vormen clubcultuur. Het dak speelt een centrale rol in deze benadering. De vorm is een fusie van twee dakvormen met duidelijke associaties: de herkenbaarheid en vriendelijkheid van een zadeldak, gecombineerd met de meer dynamische en moderne uitstraling van een dubbel lessenaarsdak. De resulterende hoofdvorm bestaat uit vier gekoppelde driehoekige dakvlakken en toont zich vanuit elke hoek anders aan de beschouwer.  

Het gebouw functioneert als een paviljoen met een alzijdige oriëntatie in het hart van het complex, ingebed in een groen landschap met flinke terrassen, een tribune en taluds, waar verschillende niveaus moeiteloos in elkaar overgaan. De dakvorm is cruciaal in de soepele verbinding tussen binnen en buiten. Onder het uitkragende dak richting de terrassen en velden zijn er veranda-achtige tussenruimtes die in alle weersomstandigheden gebruikskwaliteit toevoegen. Een opgaande lijn in het dak en een subtiele hoekverdraaiing in de gevel - voorzien van een metselwerkreliëf - markeren de entree, die halfweg de twee etages is gesitueerd. Door een half verdiepte aanleg verdwijnt de onderste etage grotendeels in het landschap. Hier bevinden zich kleedruimtes, ondersteunende functies en bergingen. Boven is de clubruimte, waar grote glasvlakken contact leggen naar de omliggende velden en terrassen. De dakvorm faciliteert deze extraversie, maar is ook bepalend voor de intieme sfeer. De knikken in het dak worden geaccentueerd door de geïntegreerde LED-lijnen die, net als het houten plafond, van binnen naar buiten doorlopen. De uitkragende daken richting terras en tribune geven het gebouw, ondanks een relatief bescheiden omvang, een grote ruimtelijke impact op de omgeving.  

Low-tech duurzame kwaliteit
Het dak speelt niet enkel esthetisch en ruimtelijk de hoofdrol, maar vervult ook nadrukkelijk een rol in het technisch functioneren van het gebouw. De centrale gedachte is een gebouw dat op een eenvoudige en betaalbare, low-tech manier hoogwaardige gebouwkwaliteiten realiseert. Duurzaamheid en ontwerp zijn in deze geen antagonisten, maar liggen in elkaars verlengde – ze faciliteren elkaar. Het dak is geconstrueerd in staal en stalen dakplaten. Deze industriële bouwtechniek is verhoudingsgewijs economisch, wat budget creëerde voor extra kwaliteit. De grote overstekende dakvlakken zijn aan de zuid- en westgevel gesitueerd, en beperken als zodanig de zonlast op de gevel, wat grote glasvlakken en onbelemmerd zicht richting de velden mogelijk maakt. Het gehele dak is licht gekanteld, zodat de twee bakgoten tussen dakvlakken het water van 700 m2 dak concentreren op één punt. Een spuwer stort het water hier uit in een rotstuin die, via een natuurlijke buffer, de bron vormt voor de besproeiing van de vier watervelden. Dit eenvoudige circulaire systeem levert een forse waterbesparing op. De onderzijde van het dak is overal afgewerkt met een open houten latten plafond, wat resulteert in een goede akoestiek. Op de kniklijnen van de dakvlakken zijn LED-lijnen geïntegreerd. Deze functioneren als hoofdverlichting, maar kunnen bij bijzondere gelegenheden ook worden gebruikt als verkleurende feestverlichting.  

De traditionele visuele vervuiling van ventilatiebuizen – de resultante van de forse vereiste debieten - is in dit gebouw volkomen vervangen door een veel eenvoudiger systeem. De afzuiginstallatie van de keuken is gecombineerd met een CO2-vraaggestuurd systeem, dat naar behoefte de clubruimte vanuit de keuken afzuigt. De aanvoer van verse lucht vindt plaats via zelfregelende roosters in de gevel, die vlak onder het plafond zijn weggewerkt. Dit systeem is economisch, goed te onderhouden en bovendien zelfregelend. De integratie van de onderste verdieping in het landschap is nog een simpel voorbeeld van het samengaan van ontwerp en low-tech duurzaamheid. De taluds isoleren het gebouw extra en functioneren als warmtebuffer in extreme weersomstandigheden. Deze bijzondere ingrepen zijn gecombineerd met meer standaard duurzame technieken zoals een pellet-kachel verwarmingsinstallatie, laag temperatuur vloerverwarming, hoge isolatiewaarden en uitsluitend LED-verlichting.

Stel jezelf kort voor! Dan weet het betreffende bedrijf wie hun model gedownload heeft.
Wil je niet bij elke download jouw gegevens in hoeven voeren?
Klik dan hier om in te loggen.

Heb je nog geen account? Maak dan hier een gratis account aan.
Voornaam
Achternaam
E-mailadres
Downloaden
Wanneer je modellen downloadt op Architectenweb.nl worden relevante gegevens van jou – zoals jouw naam en e-mailadres – met het betreffende bedrijf gedeeld. Meer hierover lees je in ons privacybeleid.

Locatie

Neem contact op met STATS Architecten

Je bent momenteel niet ingelogd. Hierdoor is het alleen mogelijk om meer informatie per e-mail op te vragen. Wil je liever gebeld worden of documentatie per post ontvangen? Klik dan hier om in te loggen.
Heb je nog geen account? Maak dan hier een gratis account aan.
Voornaam
Achternaam
E-mailadres
Opmerkingen
Bij iedere aanvraag worden relevante gegevens van jou gedeeld met het betreffende bedrijf. Meer hierover lees je in ons privacybeleid.
Ja, denk met me mee rond de
materialisering van mijn project

Meer projecten van STATS Architecten

STATS Architecten
STATS Architecten
STATS Architecten
STATS Architecten
STATS Architecten
Toon alles
KUBUS | Specialist in Archicad
SAPA
Reynaers Aluminium Nederland
Jansen
SAB-profiel bv
Aliplast Aluminium Systems
Kingspan Light & Air
ALUCOBOND®
Caparol
Tarkett BV
Kawneer
Grohe Nederland B.V.
Malaysian Timber Council
OCS | Office Cabling Systems
Swisspearl Nederland
Forster Nederland N.V.
VELUX Commercial Benelux B.V.
Sempergreen
Houthandel van Dam
Aluprof Nederland BV
QbiQ Wall Systems
Forbo Flooring
Schüco Nederland
Cedral
Sto Isoned bv
Triflex bv
Gorter Luiken BV
wienerberger
DUCO Ventilation & Sun Control
BEWI IsoBouw
ROCKWOOL B.V.
Mview+
Rockfon (ROCKWOOL B.V.)
Gira Nederland B.V.
Kingspan Geïsoleerde Panelen
GEZE Benelux  B.V.
Renson
Metaglas Groep
ABB | Busch-Jaeger
Jung | Hateha B.V.
Knauf B.V.
Saint-Gobain Glass Benelux
Faay Vianen B.V.
objectflor
Boon Edam Nederland B.V.
Hunter Douglas Architectural
VOLA Nederland BV
Forbo Eurocol Nederland B.V.
EQUITONE gevelpanelen
Holonite B.V.
Kronospan
Tata Steel Colorcoat®
Architectenweb
Over ons
Contact

© 2002 - 2026 Architectenweb BV / Voorwaarden / Privacy / Disclaimer / Sitemap
Annuleren
OK
Sluiten
Doorgaan
Inloggen
Maak een gratis persoonlijk account aan