Projecten
Producten
Bedrijven
Vacatures
Agenda
Awards
Podcasts
more_horiz
Videos
Magazine
Favorieten
Profiel
Uitloggen
Abonneer je nu op onze nieuwsbrieven!
Abonneren
Nee, bedankt
Ja, denk met me mee rond de
materialisering van mijn project
Producten
Producttags
AAN
UIT
Appartementengebouw Morsweg
10 juli 2014
0
0
0
0
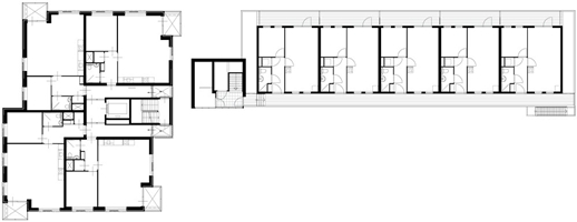
In opdracht van SHWJ maakten we een ontwerp voor een nieuwbouwtoren met 34 wooneenheden, en voor 12 wooneenheden in de plint en nieuwe opbouw van het bestaande gebouw. De bestaande bouw en nieuwbouw worden met elkaar verbonden door een gemeenschappelijk erf en een gelijke materialisering van de bovenste verdiepingen. De wooneenheden zijn bestemd voor werkende jongeren in de regio Leiden. Bijzonder aan dit project is dat de bouwteampartners werken in een BIM-model, een virtueel prototype van het gebouw waarbij de informatie voor alle partijen beschikbaar en actueel is. Hierdoor kan op een integrale manier worden samengewerkt en worden eventuele bouwfouten in een vroeg stadium uitgesloten.
Stel jezelf kort voor! Dan weet het betreffende bedrijf wie hun model gedownload heeft.
Wil je niet bij elke download jouw gegevens in hoeven voeren?
Klik dan hier om in te loggen
.
Heb je nog geen account?
Maak dan hier een gratis account aan
.
Voornaam
Achternaam
E-mailadres
Downloaden
Wanneer je modellen downloadt op Architectenweb.nl worden relevante gegevens van jou – zoals jouw naam en e-mailadres – met het betreffende bedrijf gedeeld. Meer hierover lees je in ons
privacybeleid
.
Locatie
Mulderblauw architecten
Neem contact op
Projectdata
Staat van realisatie
Voltooid
Start bouw
2013
Plaats
Leiden
Neem contact op met
Mulderblauw architecten
Je bent momenteel niet ingelogd. Hierdoor is het alleen mogelijk om meer informatie per e-mail op te vragen. Wil je liever gebeld worden of documentatie per post ontvangen?
Klik dan hier om in te loggen
.
Heb je nog geen account?
Maak dan hier een gratis account aan
.
Voornaam
Achternaam
E-mailadres
Opmerkingen
Bij iedere aanvraag worden relevante gegevens van jou gedeeld met het betreffende bedrijf. Meer hierover lees je in ons
privacybeleid
.
Ja, denk met me mee rond de
materialisering van mijn project
Meer projecten van Mulderblauw architecten
The niu Fender
Mulderblauw architecten
Amsterdam City Harbour Hotel
Mulderblauw architecten
Renaissance Amsterdam Schiphol Airport
Mulderblauw architecten
Boetiekkantoor Hert
Mulderblauw architecten
Hoofdkantoor, showroom en DC fonQ
Mulderblauw architecten
Stack & Duet
Mulderblauw architecten
DC Het Klooster
Mulderblauw architecten
The niu Dairy
Mulderblauw architecten
QO Amsterdam
Mulderblauw architecten
Staybridge Suites The Hague - Parliament
Mulderblauw architecten
Domus Medica
Mulderblauw architecten
OAK Building Apeldoorn
Mulderblauw architecten
Luchtruim Eindhoven
Mulderblauw architecten
Novotel Amsterdam Schiphol Airport
Mulderblauw architecten
Distributiecentrum Almere
Mulderblauw architecten
Distributiecentrum Schiphol
Mulderblauw architecten
Holiday Inn Express Rotterdam Central Station
Mulderblauw architecten
Holiday Inn & Holiday Inn Express Arena Towers Amsterdam
Mulderblauw architecten
Keynes club Hogehilweg Amsterdam
Mulderblauw architecten
Tweelinghuis
Mulderblauw architecten
Wijhof
Mulderblauw architecten
The niu Fender
Mulderblauw architecten
Amsterdam City Harbour Hotel
Mulderblauw architecten
Renaissance Amsterdam Schiphol Airport
Mulderblauw architecten
Boetiekkantoor Hert
Mulderblauw architecten
Hoofdkantoor, showroom en DC fonQ
Mulderblauw architecten
Stack & Duet
Mulderblauw architecten
DC Het Klooster
Mulderblauw architecten
The niu Dairy
Mulderblauw architecten
QO Amsterdam
Mulderblauw architecten
Staybridge Suites The Hague - Parliament
Mulderblauw architecten
Domus Medica
Mulderblauw architecten
OAK Building Apeldoorn
Mulderblauw architecten
Luchtruim Eindhoven
Mulderblauw architecten
Novotel Amsterdam Schiphol Airport
Mulderblauw architecten
Distributiecentrum Almere
Mulderblauw architecten
Distributiecentrum Schiphol
Mulderblauw architecten
Holiday Inn Express Rotterdam Central Station
Mulderblauw architecten
Holiday Inn & Holiday Inn Express Arena Towers Amsterdam
Mulderblauw architecten
Keynes club Hogehilweg Amsterdam
Mulderblauw architecten
Tweelinghuis
Mulderblauw architecten
Wijhof
Mulderblauw architecten
Toon alles
Andere Projecten
De Toerist in Breda
DUCO Ventilation & Sun Control
In ontwikkeling: IKC Strandeiland, Amsterdam
WEBO
Gorter op nieuwbouw sociale huurappartementen
Gorter Luiken BV
Prefab villa - Egmond aan Zee
Houthandel van Dam
Nieuwbouw poeliersbedrijf Van Berkel Kip
Ruys Groep
Nieuwbouw 107 appartementen Spoordok
Gorter Luiken BV
Appartementencomplex - Résidence Gooiland
Rodruza B.V.
Nieuwbouwwijk - Oosterparkkwartier
Rodruza B.V.
Nieuwbouwwijk - New Brooklyn
Rodruza B.V.
De Octaaf - Nijmegen
Houthandel van Dam
Tijdloos nieuwbouwproject – Haaksbergen
Joris Ide
JI NatureBlack - Tijdloos design, staalprestaties
Joris Ide
Ga naar het projecten-overzicht
Voor een optimale gebruikservaring plaatst Architectenweb functionele cookies. Wat de verschillende cookies precies doen leggen we uit in een
overzicht
. Cookies van social media kun je optioneel
aanzetten
.
Akkoord
Instellingen
Annuleren
OK
Sluiten
Doorgaan
Inloggen
Maak een gratis persoonlijk account aan
Feedback
Feedback
Wij horen graag jouw feedback. Laat je reactie achter en eventueel jouw e-mail adres.
Reactie
Verstuur