Projecten
Producten
Bedrijven
Vacatures
Agenda
Awards
Podcasts
more_horiz
Videos
Magazine
Thema's
Favorieten
Profiel
Uitloggen
Producten
Producttags
AAN
UIT
Holiday Inn & Holiday Inn Express Arena Towers Amsterdam
10 juli 2014
0
0
0
0
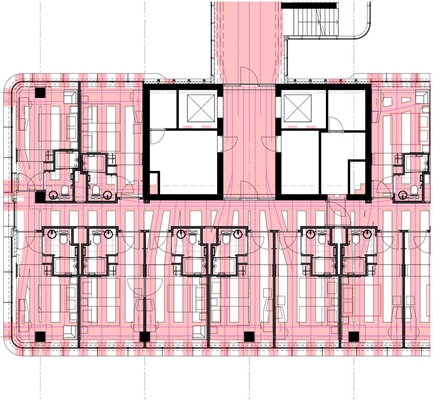
In opdracht van The Vincent Hotel Group maakten we het ontwerp voor de transformatie van kantoor naar hotel voor dit 17 verdiepingen tellende gebouw. In het bestaande kantoorgebouw Arena Towers in Amsterdam brachten we twee hotelformules onder: Holiday Inn en Holiday Inn Express. Als gevolg van de combinatie van de twee deels boven elkaar gesitueerde hotelformules in één gebouw, was dit een complexe technische en ruimtelijke opgave. Naast het boven elkaar positioneren van de formules met afwijkende beukmaten, diende er ook oplossingen gevonden te worden om de schachten buiten de grote hoeveelheid voorspanwapening in de vloer te positioneren.
Vanuit de gedeelde entree bereikt de gast de receptie van de Holiday Inn op de begane grond of de Holiday Inn Express op de tweede verdieping. De Holiday Inn heeft ruime vergaderfaciliteiten en heeft als één van de eerste hotels het
open lobby concept
van Intercontinental Hotels Group toegepast. Onderdeel van dit concept is een
full service
restaurant en een koffiebar waar Starbucks koffie serveert. Het interieur van de publieke ruimte van de Holiday Inn Express ontwierpen we als lichte, hedendaagse ruimte met kleurrijke accenten. Hiermee is een duidelijk onderscheid gemaakt met de luxere en huiselijker vormgegeven publieke ruimte van de Holiday Inn. Het hotel bevat in totaal 443 kamers waarvan 120 Holiday Inn kamers. Dankzij de vorm van het bestaande gebouw heeft het hotel een aanzienlijk aantal spectaculaire kamers met een weids uitzicht in de ronde koppen van het gebouw. Het gevelontwerp is van ZZDP, het interieur voor de Holiday Inn is in samenwerking met Horecare ontworpen.
Stel jezelf kort voor! Dan weet het betreffende bedrijf wie hun model gedownload heeft.
Wil je niet bij elke download jouw gegevens in hoeven voeren?
Klik dan hier om in te loggen
.
Heb je nog geen account?
Maak dan hier een gratis account aan
.
Voornaam
Achternaam
E-mailadres
Downloaden
Wanneer je modellen downloadt op Architectenweb.nl worden relevante gegevens van jou – zoals jouw naam en e-mailadres – met het betreffende bedrijf gedeeld. Meer hierover lees je in ons
privacybeleid
.
Locatie
Mulderblauw architecten
Neem contact op
Projectdata
Staat van realisatie
Voltooid
Start bouw
2014
Plaats
Amsterdam
Leveranciers
Hang- en sluitwerk
Hotek Hospitality Group
Neem contact op met
Mulderblauw architecten
Je bent momenteel niet ingelogd. Hierdoor is het alleen mogelijk om meer informatie per e-mail op te vragen. Wil je liever gebeld worden of documentatie per post ontvangen?
Klik dan hier om in te loggen
.
Heb je nog geen account?
Maak dan hier een gratis account aan
.
Voornaam
Achternaam
E-mailadres
Opmerkingen
Bij iedere aanvraag worden relevante gegevens van jou gedeeld met het betreffende bedrijf. Meer hierover lees je in ons
privacybeleid
.
Ja, denk met me mee rond de
materialisering van mijn project
Meer projecten van Mulderblauw architecten
The niu Fender
Mulderblauw architecten
Amsterdam City Harbour Hotel
Mulderblauw architecten
Renaissance Amsterdam Schiphol Airport
Mulderblauw architecten
Boetiekkantoor Hert
Mulderblauw architecten
Hoofdkantoor, showroom en DC fonQ
Mulderblauw architecten
Stack & Duet
Mulderblauw architecten
DC Het Klooster
Mulderblauw architecten
The niu Dairy
Mulderblauw architecten
QO Amsterdam
Mulderblauw architecten
Staybridge Suites The Hague - Parliament
Mulderblauw architecten
Domus Medica
Mulderblauw architecten
OAK Building Apeldoorn
Mulderblauw architecten
Luchtruim Eindhoven
Mulderblauw architecten
Novotel Amsterdam Schiphol Airport
Mulderblauw architecten
Distributiecentrum Almere
Mulderblauw architecten
Appartementengebouw Morsweg
Mulderblauw architecten
Distributiecentrum Schiphol
Mulderblauw architecten
Holiday Inn Express Rotterdam Central Station
Mulderblauw architecten
Keynes club Hogehilweg Amsterdam
Mulderblauw architecten
Tweelinghuis
Mulderblauw architecten
Wijhof
Mulderblauw architecten
The niu Fender
Mulderblauw architecten
Amsterdam City Harbour Hotel
Mulderblauw architecten
Renaissance Amsterdam Schiphol Airport
Mulderblauw architecten
Boetiekkantoor Hert
Mulderblauw architecten
Hoofdkantoor, showroom en DC fonQ
Mulderblauw architecten
Stack & Duet
Mulderblauw architecten
DC Het Klooster
Mulderblauw architecten
The niu Dairy
Mulderblauw architecten
QO Amsterdam
Mulderblauw architecten
Staybridge Suites The Hague - Parliament
Mulderblauw architecten
Domus Medica
Mulderblauw architecten
OAK Building Apeldoorn
Mulderblauw architecten
Luchtruim Eindhoven
Mulderblauw architecten
Novotel Amsterdam Schiphol Airport
Mulderblauw architecten
Distributiecentrum Almere
Mulderblauw architecten
Appartementengebouw Morsweg
Mulderblauw architecten
Distributiecentrum Schiphol
Mulderblauw architecten
Holiday Inn Express Rotterdam Central Station
Mulderblauw architecten
Keynes club Hogehilweg Amsterdam
Mulderblauw architecten
Tweelinghuis
Mulderblauw architecten
Wijhof
Mulderblauw architecten
Toon alles
Andere Projecten
Havensuites in de Nederlandse Hamptons
Jung | Hateha B.V.
Adient Saarlouis Ltd & Co. KG
Nolte Mezzanine
Geluidsuitdaging opgelost met Silent Air schermen
Mview+
Timbr
de Architekten Cie.
Smart Lighting voor kantoorcampus Tripolis Park
TRILUX - Simplify Your Light
Nieuw expertisecentrum voor Ipse de Bruggen
Gortemaker Algra Feenstra architects
Duurzame modernisering met EcoBrick gevelstenen
wienerberger
700 modulaire lichtstraten gebruikt Icône kantoor
VELUX Commercial Benelux B.V.
RVS Staalkabelnetten voor Parel in de Polder
Jansen Staalkabels
Renovatie parkeergarage WTC Beursplein, Rotterdam
Cushman & Wakefield
Buitenzonwering Cartesius Solo
Serge Ferrari
Duurzaam logistiek centrum vol daglicht
VELUX Commercial Benelux B.V.
Ga naar het projecten-overzicht
Voor een optimale gebruikservaring plaatst Architectenweb functionele cookies. Wat de verschillende cookies precies doen leggen we uit in een
overzicht
. Cookies van social media kun je optioneel
aanzetten
.
Akkoord
Instellingen
Annuleren
OK
Sluiten
Doorgaan
Inloggen
Maak een gratis persoonlijk account aan
Feedback
Feedback
Wij horen graag jouw feedback. Laat je reactie achter en eventueel jouw e-mail adres.
Reactie
Verstuur