Projecten
Producten
Bedrijven
Vacatures
Agenda
Awards
Podcasts
more_horiz
Videos
Magazine
Favorieten
Profiel
Uitloggen
Abonneer je nu op onze nieuwsbrieven!
Abonneren
Nee, bedankt
Ja, denk met me mee rond de
materialisering van mijn project
Producten
Producttags
AAN
UIT
herbestemming Synagoge
23 november 2011
0
0
0
0
De opgave betreft de herbestemming van een synagoge tot een woonhuis. De synagoge is gebouwd in de Bossche school, architect die er toendertijd voor tekende was Jos Bijnen. De status van de synagoge is gemeentelijk monument. Het complex heeft architectuurhistorische waarde als goed voorbeeld van een synagoge uit de Wederopbouwperiode. Ook heeft het werk sterke invloed ondergaan van de theorieën van Dom van der Laan.
De synagoge is voorzien van een nieuwe cv en een nieuwe geïsoleerde betonvloer in de gebedsruimte. Al het enkel glas is vervangen voor dubbel glas in de bestaande stalen stoeltjesprofielen. Bij het glas-in-lood is gekozen voor voorzetglas. Al het betonrot is verwijderd en de gevel is gereinigd. De bestaande daken zijn van boven geïsoleerd en voorzien van nieuw bitumen. De betonnen dakrand van het Fusée dak is deels ingepakt in zink. Alle hemelwaterafvoeren zijn vervangen voor zink met nieuwe vergaarbakken. Ook de horizontale dakrand van de ontvangstruimte is vervangen door zink. De plafonds in de ontvangstruimte zijn afgewerkt met blanke eiken latten.
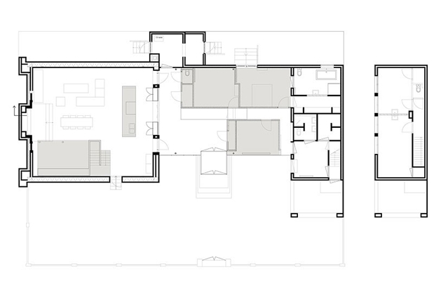
Om het gebouw geschikt te maken tot woning volgden een 3-tal interventies:
1 Het afbakenen van ruimtes
In de grote ruimtes zijn lichte moderne dozen geplaatst met daarin de verschillende slaapkamers. In de gebedsruimte is een entresolvloer geplaatst. Hieronder ontstond ruimte voor een bibliotheek en erboven een bijzonder uitzicht naar buiten en over het interieur.
Door de positie van de verschillende “nieuwe dozen” ontstaat een meer dynamische ruimte met een menselijke maat. Centraal in de gebedsruimte is de keuken geplaatst, met een 4.5 meter in het werk gestort kookeiland. Door de positie van de dozen ontstond een centrale as door het gebouw die de verschillende ruimtes met elkaar verbindt. Deuren in deze as zijn in glas uitgevoerd.
2 Het maken van openingen
In de achtergevel zijn diverse openingen gemaakt om de buitenruimte te kunnen bereiken en om de slaapkamer van voldoende licht te voorzien. Tevens is in het platte dak een lichtstraat geplaatst om de gangzone van daglicht te voorzien.
3 Het creëren van samenhang
Qua materialisatie is gezocht naar een heldere scheiding tussen modern en oud, waarbij de oude materialen zo veel mogelijk intact werden gelaten, zoals de oude vol gemetselde grijze binnenwanden. Ook de oude Joodse decoraties zijn intact gelaten. De leistenen tegels die buiten op de binnenplaats lagen zijn hergebruik in de vloer van het interieur.
Stel jezelf kort voor! Dan weet het betreffende bedrijf wie hun brochure gedownload heeft.
Wil je niet bij elke download jouw gegevens in hoeven voeren?
Klik dan hier om in te loggen
. Heb je nog geen account?
Maak dan hier een gratis account aan
.
Voornaam
Achternaam
E-mailadres
Downloaden
Wanneer je brochures downloadt op Architectenweb.nl worden relevante gegevens van jou – zoals jouw naam en e-mailadres – met het betreffende bedrijf gedeeld. Meer hierover lees je in ons
privacybeleid
.
Wanneer je brochures downloadt op Architectenweb.nl worden relevante gegevens van jou – zoals jouw naam en e-mailadres – met het betreffende bedrijf gedeeld. Meer hierover lees je in ons
privacybeleid
.
Brochure
Stel jezelf kort voor! Dan weet het betreffende bedrijf wie hun model gedownload heeft.
Wil je niet bij elke download jouw gegevens in hoeven voeren?
Klik dan hier om in te loggen
.
Heb je nog geen account?
Maak dan hier een gratis account aan
.
Voornaam
Achternaam
E-mailadres
Downloaden
Wanneer je modellen downloadt op Architectenweb.nl worden relevante gegevens van jou – zoals jouw naam en e-mailadres – met het betreffende bedrijf gedeeld. Meer hierover lees je in ons
privacybeleid
.
Locatie
Tom Valks Architecten bna
Neem contact op
Projectdata
Staat van realisatie
Voltooid
Start bouw
2011
Plaats
Oss
Bruto m
2
650
m
3
800
Neem contact op met
Tom Valks Architecten bna
Je bent momenteel niet ingelogd. Hierdoor is het alleen mogelijk om meer informatie per e-mail op te vragen. Wil je liever gebeld worden of documentatie per post ontvangen?
Klik dan hier om in te loggen
.
Heb je nog geen account?
Maak dan hier een gratis account aan
.
Voornaam
Achternaam
E-mailadres
Opmerkingen
Bij iedere aanvraag worden relevante gegevens van jou gedeeld met het betreffende bedrijf. Meer hierover lees je in ons
privacybeleid
.
Ja, denk met me mee rond de
materialisering van mijn project
Meer projecten van Tom Valks Architecten bna
verbouwing Stolpboerderij
Tom Valks Architecten bna
Demiville Fashion Group
Tom Valks Architecten bna
Barrestaurant
Tom Valks Architecten bna
villa van den Berg
Tom Valks Architecten bna
verbouwing Stolpboerderij
Tom Valks Architecten bna
Demiville Fashion Group
Tom Valks Architecten bna
Barrestaurant
Tom Valks Architecten bna
villa van den Berg
Tom Valks Architecten bna
Toon alles
Andere Projecten
Heger en Veldwijk Automotive in Harderwijk
FALK®
Kant & Klaar Hagen verminderen luchtvervuiling
Mobilane
Koelmalaan, Alkmaar – Houtbouw wooncomplex
Sto Isoned bv
Ballast Nedam
OTH architecten
WTC | Almere
Plan Effect Systeemwanden
Paviljoens Vleuterweide in Utrecht
SSAB Swedish Steel BV
Berghaus Plaza in Amsterdam
Alucol
Zwaarlast deksels voor betonputten in Swifterbant
Van den Berg Afvoerputten BV
Hooihuisboerderij, Landsmeer
Bastiaan Jongerius Architecten
Six Degrees Café
Malaysian Timber Council
Open vloergootsysteem voor The CubeHouse Amsterdam
HPL Systems BV
Almere De Laren
Schippers Architecten
Ga naar het projecten-overzicht
Voor een optimale gebruikservaring plaatst Architectenweb functionele cookies. Wat de verschillende cookies precies doen leggen we uit in een
overzicht
. Cookies van social media kun je optioneel
aanzetten
.
Akkoord
Instellingen
Annuleren
OK
Sluiten
Doorgaan
Inloggen
Maak een gratis persoonlijk account aan
Feedback
Feedback
Wij horen graag jouw feedback. Laat je reactie achter en eventueel jouw e-mail adres.
Reactie
Verstuur