Projecten
Producten
Bedrijven
Vacatures
Agenda
Awards
Podcasts
more_horiz
Videos
Magazine
Favorieten
Profiel
Uitloggen
Abonneer je nu op onze nieuwsbrieven!
Abonneren
Nee, bedankt
Ja, denk met me mee rond de
materialisering van mijn project
Producten
Producttags
AAN
UIT
verbouwing Stolpboerderij
28 november 2011
0
0
0
0
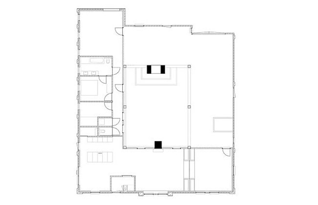
Na 90 jaar dienst gedaan te hebben als boerderij, is deze functie met het verhuizen van de vorige bewoners komen te vervallen. Het betreft een Noord Hollandse stolpboerderij met dubbel vierkant van 18x 20 meter, en het eigen woonhuis van Angeline en Tom Valks.
Ontwerp:
Besloten is de bestaande indeling zo veel mogelijk intact te houden, de hooiberg blijft een grote open ruimte. De woning cirkelt in L-vormige volumes om de hooiberg heen. Deze twee volumes zijn aan de einden middels trappen met elkaar verbonden. Hierdoor onstaan een woning met een continu looplijn. Door openingen te maken in de binnengevels onstaan doorzichten door de hooiberg naar de andere delen van de woning. De woning wordt in verschillende fases uitgevoerd; momenteel is het eerste L-vormige volume afgerond.
Stel jezelf kort voor! Dan weet het betreffende bedrijf wie hun brochure gedownload heeft.
Wil je niet bij elke download jouw gegevens in hoeven voeren?
Klik dan hier om in te loggen
. Heb je nog geen account?
Maak dan hier een gratis account aan
.
Voornaam
Achternaam
E-mailadres
Downloaden
Wanneer je brochures downloadt op Architectenweb.nl worden relevante gegevens van jou – zoals jouw naam en e-mailadres – met het betreffende bedrijf gedeeld. Meer hierover lees je in ons
privacybeleid
.
Wanneer je brochures downloadt op Architectenweb.nl worden relevante gegevens van jou – zoals jouw naam en e-mailadres – met het betreffende bedrijf gedeeld. Meer hierover lees je in ons
privacybeleid
.
Brochure
Stel jezelf kort voor! Dan weet het betreffende bedrijf wie hun model gedownload heeft.
Wil je niet bij elke download jouw gegevens in hoeven voeren?
Klik dan hier om in te loggen
.
Heb je nog geen account?
Maak dan hier een gratis account aan
.
Voornaam
Achternaam
E-mailadres
Downloaden
Wanneer je modellen downloadt op Architectenweb.nl worden relevante gegevens van jou – zoals jouw naam en e-mailadres – met het betreffende bedrijf gedeeld. Meer hierover lees je in ons
privacybeleid
.
Locatie
Tom Valks Architecten bna
Neem contact op
Projectdata
Staat van realisatie
Voltooid
Start bouw
2010
Plaats
Oosterblokker
Bruto m
2
360
m
3
1000
Neem contact op met
Tom Valks Architecten bna
Je bent momenteel niet ingelogd. Hierdoor is het alleen mogelijk om meer informatie per e-mail op te vragen. Wil je liever gebeld worden of documentatie per post ontvangen?
Klik dan hier om in te loggen
.
Heb je nog geen account?
Maak dan hier een gratis account aan
.
Voornaam
Achternaam
E-mailadres
Opmerkingen
Bij iedere aanvraag worden relevante gegevens van jou gedeeld met het betreffende bedrijf. Meer hierover lees je in ons
privacybeleid
.
Ja, denk met me mee rond de
materialisering van mijn project
Meer projecten van Tom Valks Architecten bna
herbestemming Synagoge
Tom Valks Architecten bna
Demiville Fashion Group
Tom Valks Architecten bna
Barrestaurant
Tom Valks Architecten bna
villa van den Berg
Tom Valks Architecten bna
herbestemming Synagoge
Tom Valks Architecten bna
Demiville Fashion Group
Tom Valks Architecten bna
Barrestaurant
Tom Valks Architecten bna
villa van den Berg
Tom Valks Architecten bna
Toon alles
Andere Projecten
Koelmalaan, Alkmaar – Houtbouw wooncomplex
Sto Isoned bv
WTC | Almere
Plan Effect Systeemwanden
Ballast Nedam
OTH architecten
Berghaus Plaza in Amsterdam
Alucol
Paviljoens Vleuterweide in Utrecht
SSAB Swedish Steel BV
Zwaarlast deksels voor betonputten in Swifterbant
Van den Berg Afvoerputten BV
Hooihuisboerderij, Landsmeer
Bastiaan Jongerius Architecten
Six Degrees Café
Malaysian Timber Council
Open vloergootsysteem voor The CubeHouse Amsterdam
HPL Systems BV
Almere De Laren
Schippers Architecten
Wooncomplex Lariks in Houthaven
Mapro
Nieuwe kantoorinrichting BDO Brabant
Kronospan
Ga naar het projecten-overzicht
Voor een optimale gebruikservaring plaatst Architectenweb functionele cookies. Wat de verschillende cookies precies doen leggen we uit in een
overzicht
. Cookies van social media kun je optioneel
aanzetten
.
Akkoord
Instellingen
Annuleren
OK
Sluiten
Doorgaan
Inloggen
Maak een gratis persoonlijk account aan
Feedback
Feedback
Wij horen graag jouw feedback. Laat je reactie achter en eventueel jouw e-mail adres.
Reactie
Verstuur