Projecten
Producten
Bedrijven
Vacatures
Agenda
Awards
Podcasts
more_horiz
Videos
Magazine
Thema's
Favorieten
Profiel
Uitloggen
Abonneer je nu op onze nieuwsbrieven!
Abonneren
Nee, bedankt
Ja, denk met me mee rond de
materialisering van mijn project
Panno prototype, Team Panno School en Team 3Cycle
Copyright: Team Panno School en Team 3Cycle
Panno prototype, Team Panno School en Team 3Cycle
Copyright: Team Panno School en Team 3Cycle
Panno prototype, Team Panno School en Team 3Cycle
Copyright: Team Panno School en Team 3Cycle
Visie op productie van het paviljoen, Team Panno School en Team 3Cycle
Copyright: Team Panno School en Team 3Cycle
Schema duurzaamheid, Team Panno School en Team 3Cycle
Copyright: Team Panno School en Team 3Cycle
Oekraïense patronen als gevelornamenten, Team Panno School en Team 3Cycle
Copyright: Team Panno School en Team 3Cycle
Visie op levenduur van het paviljoen, Team Panno School en Team 3Cycle
Copyright: Team Panno School en Team 3Cycle
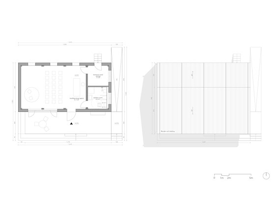
Plattegrond Panno prototype, Team Panno School en Team 3Cycle
Copyright: Team Panno School en Team 3Cycle
Aanzicht Panno prototype, Team Panno School en Team 3Cycle
Copyright: Team Panno School en Team 3Cycle
Scale-up van school en kleuterschool, Team Panno School en Team 3Cycle
Copyright: Team Panno School en Team 3Cycle
Scale-up van medische post, Team Panno School en Team 3Cycle
Copyright: Team Panno School en Team 3Cycle
Team van Nederlandse en Oekraïense architecten ontwikkelt open-source bouwsysteem voor publieke voorzieningen in Oekraïne
18 februari, 13:57
Een team van
Orange Architects
,
NOVA
en
ReThink
heeft onder de naam Panno-School-team een schaalbaar, open-source bouwsysteem voor publieke voorzieningen in Oekraïne ontwikkeld. Daarbij is samengewerkt met het team 3Cycle dat wordt gevormd door verschillende vastgoed- en productontwikkelaars op het gebied van modulair bouwen.
Het bouwsysteem Panno Prototype speelt in op de groeiende vraag naar duurzame, hoogwaardige en efficiënte oplossingen voor onderwijs, gezondheidszorg en gemeenschapsinfrastructuur in de wederopbouw van het land. Het is een hoopgevend initiatief voor een land in oorlog dat vooralsnog vooral door verwoesting wordt geteisterd.
Samenwerkende teams
Het Panno-School-team bestaat uit Orange Architects (NL), NOVA – New Office of Vital Architecture (UA) en ReThink (UA). Samen richten zij zich op de ontwikkeling en opschaling van onderwijsomgevingen die architectonische kwaliteit, ruimtelijk comfort en publieke waarde op de lange termijn combineren.
Het 3Cycle-team bestaat uit
MEE Modular
(NL),
Creatomus Solutions
(EE) en
AGStudios Architects
(UA). Dit laatste team ontwikkelde een open-source modulair houtbouwsysteem dat al succesvol is toegepast in meerdere gerealiseerde projecten. Het is gebaseerd op een flexibele, architectonisch aantrekkelijke benadering van bouwen, waarbij digitale coördinatie en lokale productie mogelijk worden gemaakt.
De samenwerking tussen Panno-School en 3Cycle wordt gedreven door een gedeelde ambitie. Die is om verder te gaan dan eenmalige projecten en tijdelijke oplossingen. Panno-School en 3Cycle ontwikkelden daarom een generiek bouwsysteem dat schaalbaar en efficiënt is. Het moet consistente kwaliteit bieden en tegelijkertijd ruimte laten voor lokale context, cultuur en tradities.
Lokaal
Het bouwsysteem is bewust generiek van opzet omdat dit efficiëntie en schaalbaarheid mogelijk maakt. Elke toepassing biedt overigens wel ruimte voor unieke, locatie-specifieke en cultureel verankerde oplossingen. Elk gebouw kan dus wel worden aangepast aan lokale klimaatomstandigheden, bouwtradities, vakmanschap en de omliggende stedelijke context. Dit moet volgens de initiatiefnemers gaan resulteren in architectuur die zowel onderscheidend is, als ook geworteld is in de omgeving waar een gebouw komt te staan. In het geval van Oekraïne zullen de lokale of regionale condities en bouwtradities het resultaat dus op een andere wijze gaan kleuren dan in een andere context.
Het tekent de ideële ambities van de betrokkenen dat men door het project ook hoopt lokale economieën te versterken en vakmanschap en bouwcapaciteit te stimuleren. De verwachting wordt uitgesproken dat nieuwe gebouwen zo steviger verankerd zullen zijn in hun sociale en culturele omgeving. Met het bouwsysteem Panno Prototype wil men innovatie combineren met lokale kennis om zo gebouwen te laten ontstaan die zowel toekomstgericht zijn als contextueel ingebed. Dit principe wordt vooralsnog in de Oekraïense context getest, maar is dus ook toepasbaar in andere gebieden en landen.
Wederopbouw
Als volgende stap is een full scale testcase in Oekraïne voorzien. Die vindt plaats binnen het Nederlandse
SBIR Innovatieprogramma
en wordt ondersteund en gefinancierd door
RVO Nederland
. De architecten en vastgoed- en productontwikkelaars spreken de hoop uit dat het realiseren van het prototype een cruciale stap richting grootschalige toepassing zal zijn. Men hoopt zo een rol te kunnen gaan spelen bij de wederopbouw van Oekraïne.Het aanstaande prototype wordt overigens niet opgevat als een definitief gebouw, maar als een test- en implementatieplatform.
Duurzaam
Het prototype heeft als doel om het modulaire systeem op toegevoegde waarde te kunnen inschatten en de energieprestaties te testen. Dat laatste gebeurt aan de hand van de principes van passief bouwen. Bij het prototype worden verder circulaire en biobased materialen toegepast. Zo worden de mogelijkheden voor lokale productie en samenwerking met regionale partners verder verkend.
Het laat zien dat duurzaamheid integraal wordt benaderd. Het open-source bouwsysteem is ontworpen om Paris Proof te zijn. Dat betreft zowel de materiaalgebonden emissies via biobased productie, als het operationele energiegebruik volgens passiefhuisprincipes. Daarmee moet het systeem gaan voldoen aan internationale, publieke financierings- en aanbestedingskaders.
Volgende stappen
Na afronding van het conceptontwerp gaan Panno-School en 3Cycle op zoek naar partners voor de volgende stap in het project. Dit omvat het vinden van een geschikte pilotlocatie en het betrekken van een bouw- en houtpartner om het concept verder uit te werken tot een uitvoerbaar ontwerp. Daarnaast worden publieke en institutionele partners gezocht om toekomstige fasen en de opschaling van het systeem op de lange termijn te ondersteunen.
Trefwoorden
oekraine
rethink architects
open source
modulair bouwsysteem
panno school
orange architects
prototype
mee modular
agstudios architects
creatomus solutions
nova new office for vital architecture
3cycle
Locatie
Best gelezen
1
Architect Oliver Thill op 55-jarige leeftijd overleden
donderdag, 5 maart
2
André Kempe: ‘Het ging Oliver Thill om het geven van betekenis’
vrijdag, 6 maart
3
BureauVanEig ontwerpt sluishuisje bij oudste sluis binnenstad 's-Hertogenbosch
woensdag, 4 maart
4
Eerste school die is gerealiseerd volgens Circlewood-systeem voltooid
woensdag, 4 maart
5
Werkstatt gaat verder zonder medeoprichter Niels Groeneveld
vrijdag, 6 maart
Gerelateerde nieuwsberichten
MVRDV en Orange Architects ontwerpen vooruitlopend op de wederopbouw van Oekraïne
29 november 2023
Kosten wederopbouw Oekraïne lopen op tot 588 miljard dollar
25 februari
Programma over wederopbouw Oekraïne in Pakhuis de Zwijger
1 februari 2024
Ministerie van OCW geeft subsidie aan Panorama Oekraïne
14 december 2023
Oekraïense en Nederlandse ruimtelijke professionals bouwen netwerk voor wederopbouw Oekraïne
15 november 2022
Floris Alkemade schenkt geld Maaskantprijs aan ontwerpend onderzoek Oekraïne
24 februari 2023
MVRDV en Orange Architects ontwerpen vooruitlopend op de wederopbouw van Oekraïne
29 november 2023
Kosten wederopbouw Oekraïne lopen op tot 588 miljard dollar
25 februari
Programma over wederopbouw Oekraïne in Pakhuis de Zwijger
1 februari 2024
Ministerie van OCW geeft subsidie aan Panorama Oekraïne
14 december 2023
Oekraïense en Nederlandse ruimtelijke professionals bouwen netwerk voor wederopbouw Oekraïne
15 november 2022
Floris Alkemade schenkt geld Maaskantprijs aan ontwerpend onderzoek Oekraïne
24 februari 2023
Toon alles
Andere nieuwsberichten
PLNLstudio interpreteert hoofdvorm van eerder getransformeerde opslagtank
Gisteren, 15:48
PLNLstudio heeft het interieur ontworpen van een appartement in het wooncomplex Trommel dat Bjarne Mastenbroek, onder de vlag van de Architectengroep, eind jaren '90 in Amsterdam West ontwierp.
Woongebouw door van Bergen Kolpa vormt nieuwe markering langs bocht Rotte
Gisteren, 13:56
In het Oude Noorden van Rotterdam is onlangs woongebouw De Hartenrust opgeleverd. Het door van Bergen Kolpa Architecten gebouw bestaat uit 36 sociale huurwoningen.
Gerenoveerd Valkhof Museum heropent deuren op 6 juni
Gisteren, 10:41
Het uit 1999 stammende gebouw onderging de afgelopen jaren een ingrijpende renovatie. De oorspronkelijke architect van het museum, UNStudio, verzorgde ook het ontwerp voor de opknapbeurt van het gebouw in Nijmegen.
Martin Tenpierik pleit bij intreerede TU Delft voor gebouwen die met klimaat meebewegen
9 maart, 4:00
In de intreerede van Martin Tenpierik als professor bouwfysica aan de TU Delft, Faculteit Bouwkunde stonden de noodzaak en kansen van klimaatresponsieve gebouwen centraal.
CBS: uitstoot gestegen in 2025, klimaatdoelen verder uit zicht
1 uur geleden
Vorig jaar werd er 0,8 procent meer broeikasgassen uitgestoten dan in 2024.
Renovatie Belgisch Justitiepaleis loopt op tot zeshonderd miljoen euro
Gisteren, 14:33
Het Justitiepaleis in Brussel is ruim 140 jaar oud en staat al meer dan veertig jaar in de steigers.
Zuid-Holland stemt in met bouwplannen 285.000 huizen tot 2036
Gisteren, 12:12
Het college van Gedeputeerde Staten stemde in met 2333 ingediende plannen, omdat ze voldoen aan de provinciale regels in het omgevingsbeleid.
Fors meer omzet bouwbedrijf Dura Vermeer door grote vraag
Gisteren, 09:48
Volgens het familiebedrijf uit Rotterdam steeg de jaaromzet met 24 procent tot 2,6 miljard euro.
Limburg houdt vast aan ‘nee’ tegen nieuwe IJzeren Rijn-spoorlijn
9 maart, 5:05
De provincie en andere Limburgse overheden vinden dat de lasten voor omwonenden en de natuur niet opwegen tegen de baten.
Meer elektriciteit uit fossiele bronnen na jarenlange daling
9 maart, 1:57
Vergeleken met 2024 werd er ongeveer tien procent meer elektriciteit opgewekt.
Ga naar het nieuws-archief
0
0
0
0
Voor een optimale gebruikservaring plaatst Architectenweb functionele cookies. Wat de verschillende cookies precies doen leggen we uit in een
overzicht
. Cookies van social media kun je optioneel
aanzetten
.
Akkoord
Instellingen
Annuleren
OK
Sluiten
Doorgaan
Inloggen
Maak een gratis persoonlijk account aan
Feedback
Feedback
Wij horen graag jouw feedback. Laat je reactie achter en eventueel jouw e-mail adres.
Reactie
Verstuur