Projecten
Producten
Bedrijven
Vacatures
Agenda
Awards
Podcasts
more_horiz
Videos
Magazine
Thema's
Favorieten
Profiel
Uitloggen
Abonneer je nu op onze nieuwsbrieven!
Abonneren
Nee, bedankt
Ja, denk met me mee rond de
materialisering van mijn project
Copyright: Riccardo De Vecchi
Copyright: Riccardo De Vecchi
Copyright: Riccardo De Vecchi
Copyright: Riccardo De Vecchi
Copyright: Riccardo De Vecchi
Copyright: Riccardo De Vecchi
Copyright: Riccardo De Vecchi
Copyright: Riccardo De Vecchi
Copyright: Riccardo De Vecchi
Copyright: Riccardo De Vecchi
Copyright: Riccardo De Vecchi
Copyright: Riccardo De Vecchi
Copyright: Riccardo De Vecchi
Copyright: Riccardo De Vecchi
Copyright: Riccardo De Vecchi
Copyright: Riccardo De Vecchi
Copyright: Riccardo De Vecchi
Copyright: Riccardo De Vecchi
Copyright: Riccardo De Vecchi
Copyright: Riccardo De Vecchi
Copyright: Riccardo De Vecchi
Copyright: Riccardo De Vecchi
Copyright: Riccardo De Vecchi
Copyright: Riccardo De Vecchi
Copyright: Riccardo De Vecchi
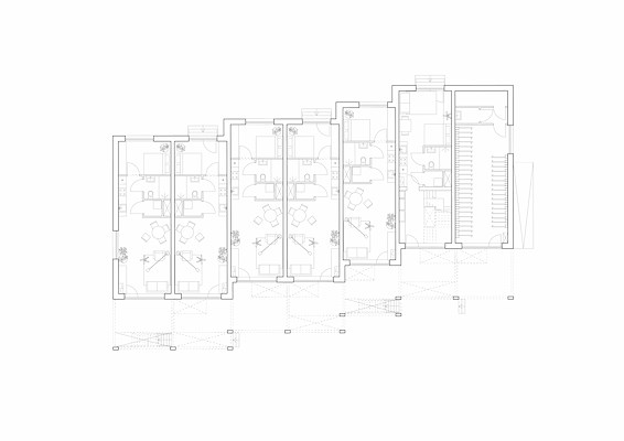
Situatie
Copyright: Space&Matter
Concept
Copyright: Space&Matter
Concept
Copyright: Space&Matter
Appartementen vrije sector
Copyright: Space&Matter
Geschakelde woningen
Copyright: Space&Matter
Geschakelde woningen
Copyright: Space&Matter
Appartementen sociale sector
Copyright: Space&Matter
Parkvilla, begane grond
Copyright: Space&Matter
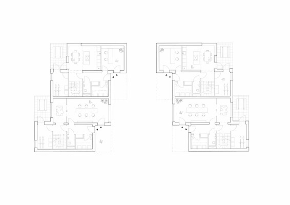
Geschakelde woningen, type C1 (begane grond)
Copyright: Space&Matter
Villa en retraite
Copyright: Space&Matter
Geschakelde woningen, type C1 (eerste verdieping)
Copyright: Space&Matter
Geschakelde woningen, type C1 (tweede verdieping)
Copyright: Space&Matter
Geschakelde woningen, type C1 (dak)
Copyright: Space&Matter
Houten woonbuurt in bos bij Amersfoort opgeleverd
30 januari, 15:35
Aan de rand van het Nimmerdor-bos in Amersfoort is woningbouwproject Common Woods opgeleverd. Het buurtje bestaat uit 56 woningen, die grotendeels uit hout zijn opgetrokken.
Space&Matter
ontwierp het stedenbouwkundig plan en de gebouwen, het landschapsontwerp komt van
DELVA Lanscape Architecture | Urbanism
.
Common Woods is gebouwd in het bosgebied van het historische landgoed Nimmerdor, aan de zuidkant van Amersfoort. De buurt is opgezet als een compact cluster, omringd door bos en groen dat tussen de gebouwen is gerealiseerd. Het woonprogramma behelst villa’s, twee-onder-een-kapwoningen en appartementen binnen de sociale huur, het middensegment en de vrije sector.
Niet alleen met het hoofdmateriaal hout refereren de gebouwen aan het bos, ook qua uitstraling zijn ze afgestemd op deze omgeving. De gebouwen zijn voorzien van aardse roodtonen, rokerige zwartnuances en zandkleurig beige, zoals de architecten het omschrijven. Aan zowel de massaopbouw als de gevelarchitectuur ligt een modulair systeem ten grondslag.
De verticale en horizontale geleding volgt direct uit de prefab constructie en creëert een leesbare ritmiek binnen het plan. Zo ontstaat een samenhangende familie van gebouwen, met ruimte voor differentiatie tussen villa’s, appartementen en collectieve voorzieningen, stellen de architecten. De woningen zijn hoofdzakelijk opgebouwd uit CLT. De gebouwen zijn demontabel en aanpasbaar voor veranderend gebruik ontworpen.
In het hart van de wijk vormen een gemeenschappelijk plein en een kas het sociale middelpunt. Om de openbare ruimte te activeren en de overgang van bos naar stad te begeleiden, is binnen het plan een opeenvolging van overgangen gerealiseerd, waaronder terrassen, balkons en binnenstraten.
De buurt is volledig gasloos en maakt gebruik van warmtepompen met warmte-koudeopslag. Een grijswatersysteem met helofytenfilter zorgt voor waterbesparing en regenwater wordt opgevangen voor gebruik in de buurtkas en tuinen.
Trefwoorden
space&matter
clt
common woods
houtbouw
amersfoort
woningbouw
delva landscape architecture | urbanism
Locatie
Best gelezen
1
Luxe appartementengebouw naast klooster Etten-Leur door Studio AAAN klaar
donderdag, 19 maart
2
Houten Stelthuis van Woonpioniers is aardbevings- en klimaatbestendig
woensdag, 18 maart
3
BureauVanEig verbetert uitstraling Haagse rijtjeswoningen bij verduurzaming
dinsdag, 17 maart
4
PSV presenteert plannen voor uitbreiding Philips Stadion
vrijdag, 20 maart
5
De nieuwe kleren van de keizer
dinsdag, 17 maart
Gerelateerde nieuwsberichten
Bouw duurzame wijk Common Woods in Amersfoort gestart
4 juli 2023
Lidia Egorova en Bart Nicolaas benoemd tot partner bij Space&Matter
21 januari
Space&Matter, Common City en Zenzo winnen tender voor een van de laatste kavels van Centrumeiland in Amsterdam
16 januari
DELVA en De Ceuvel presenteren toekomstplan voor terrein van de Ceuvel Volharding
10 februari
Gemeente Haarlemmermeer kiest plan Ons Erf voor deelgebied Lincolnpark Hoofddorp
3 december 2025
Space&Matter ontwerpt ingetogen houten paviljoen voor BSO in Zeist
21 november 2025
Bouw van The Circle op plek café De Omval gaat van start
23 oktober 2025
Bouw duurzame wijk Common Woods in Amersfoort gestart
4 juli 2023
Lidia Egorova en Bart Nicolaas benoemd tot partner bij Space&Matter
21 januari
Space&Matter, Common City en Zenzo winnen tender voor een van de laatste kavels van Centrumeiland in Amsterdam
16 januari
DELVA en De Ceuvel presenteren toekomstplan voor terrein van de Ceuvel Volharding
10 februari
Gemeente Haarlemmermeer kiest plan Ons Erf voor deelgebied Lincolnpark Hoofddorp
3 december 2025
Space&Matter ontwerpt ingetogen houten paviljoen voor BSO in Zeist
21 november 2025
Bouw van The Circle op plek café De Omval gaat van start
23 oktober 2025
Toon alles
Andere nieuwsberichten
PSV presenteert plannen voor uitbreiding Philips Stadion
20 maart, 3:37
De Eindhovense club wil de capaciteit van zijn onderkomen opschroeven met maximaal 25.000 bezoekers. Om dit te bewerkstelligen, komt er een nieuwe schil rond het stadion waarin een derde ring is opgenomen.
Rijkswaterstaat staakt renovatie markante houten Krùsrak-brug in Sneek
20 maart, 11:32
Tijdens de renovatie werd duidelijk dat de constructieve veiligheid van de brug niet langer kan worden verzekerd, laat RWS weten. De uit 2008 stammende Krúsrak-brug over de rijksweg 7 is ontworpen door Onix en Archterbosch Architecten.
KAAN Architecten en De Zwarte Hond winnen tender voor Area 19 TU Eindhoven
20 maart, 10:35
De opdracht omvat het ontwerp van een nieuw onderzoeks- en onderwijsgebouw en de stedenbouwkundige ontwikkeling van een nieuw campusgebied.
Projecten gezocht voor vijfde Adriaan Dessingprijs
19 maart, 2:42
De tweejaarlijkse architectuurprijs vestigt de aandacht op bijzondere, gerealiseerde plannen in de Zuid-Hollandse gemeenten Westland en Midden-Delfland. Het kan gaan om nieuwbouw, restauratie of landschappelijke projecten.
Friesland brengt duizenden karakteristieke boerderijen in kaart
20 maart, 2:16
Door alle informatie over de voor het landschap kenmerkende gebouwen op één plek te brengen, moet het makkelijker worden om ze te behouden.
ING: bijna de helft van de huiseigenaren stelt verduurzaming uit
20 maart, 12:18
De meeste mensen vinden dat de overheid te weinig doet om dit te stimuleren.
Rekenkamer kraakt resultaten EU-innovatiefonds voor verduurzaming
20 maart, 9:25
Het Innovatiefonds van de Europese Unie levert veel minder resultaat op dan verwacht op het gebied van verduurzaming en innovatie.
Provincie schrapt beoogde locaties windturbines in Groene Hart
19 maart, 1:35
De provincie had twaalf plekken op het oog, maar dat leidde tot maatschappelijk en politiek verzet.
Staten Utrecht willen netcongestie versneld aanpakken
19 maart, 9:44
De fracties wezen op de noodzaak van het zo snel mogelijk realiseren van een hoogspanningsstation dat essentieel is voor het opsplitsen van het elektriciteitsnetwerk tussen de Flevopolder, Gelderland en Utrecht.
Rotterdam wil woningbouw versnellen met pilot ‘Ontwikkelaar aan Zet’
18 maart, 4:33
De gemeente Rotterdam start een pilot waarbij projectontwikkelaars een grotere rol krijgen bij de voorbereiding van woningbouwprojecten.
Ga naar het nieuws-archief
Ronnie Weessies
Redacteur
2
0
0
0
Voor een optimale gebruikservaring plaatst Architectenweb functionele cookies. Wat de verschillende cookies precies doen leggen we uit in een
overzicht
. Cookies van social media kun je optioneel
aanzetten
.
Akkoord
Instellingen
Annuleren
OK
Sluiten
Doorgaan
Inloggen
Maak een gratis persoonlijk account aan
Feedback
Feedback
Wij horen graag jouw feedback. Laat je reactie achter en eventueel jouw e-mail adres.
Reactie
Verstuur