Projecten
Producten
Bedrijven
Vacatures
Agenda
Awards
Podcasts
more_horiz
Videos
Magazine
Thema's
Favorieten
Profiel
Uitloggen
Abonneer je nu op onze nieuwsbrieven!
Abonneren
Nee, bedankt
Ja, denk met me mee rond de
materialisering van mijn project
De Louise, Amsterdam, De Zwarte Hond
Copyright: Eva Bloem i.o.v. De Zwarte Hond
De Louise, Amsterdam, De Zwarte Hond
Copyright: Eva Bloem i.o.v. De Zwarte Hond
De Louise, Amsterdam, De Zwarte Hond
Copyright: Eva Bloem i.o.v. De Zwarte Hond
De Louise, Amsterdam, De Zwarte Hond
Copyright: Eva Bloem i.o.v. De Zwarte Hond
De Louise, Amsterdam, De Zwarte Hond
Copyright: Eva Bloem i.o.v. De Zwarte Hond
De Louise, Amsterdam, De Zwarte Hond
Copyright: Eva Bloem i.o.v. De Zwarte Hond
De Louise, Amsterdam, De Zwarte Hond
Copyright: Eva Bloem i.o.v. De Zwarte Hond
De Louise, Amsterdam, De Zwarte Hond
Copyright: Eva Bloem i.o.v. De Zwarte Hond
De Louise, Amsterdam, De Zwarte Hond
Copyright: Eva Bloem i.o.v. De Zwarte Hond
De Louise, Amsterdam, De Zwarte Hond, situatie
Copyright: De Zwarte Hond
De Louise, Amsterdam, De Zwarte Hond, doorsnede
Copyright: De Zwarte Hond
De Louise, Amsterdam, De Zwarte Hond, woningtypologieën
Copyright: De Zwarte Hond
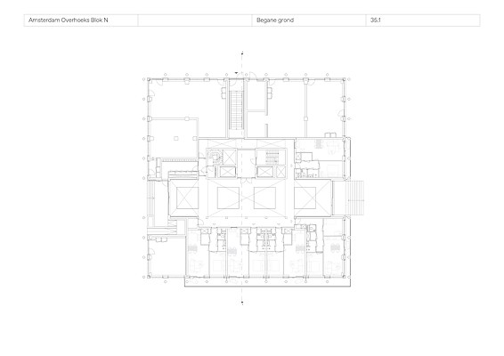
De Louise, Amsterdam, De Zwarte Hond, plattegrond begane grond
Copyright: De Zwarte Hond
De Louise, Amsterdam, De Zwarte Hond, plattegrond tweede verdieping
Copyright: De Zwarte Hond
De Louise, Amsterdam, De Zwarte Hond, plattegrond zesde verdieping
Copyright: De Zwarte Hond
De Louise, Amsterdam, De Zwarte Hond, plattegrond tiende verdieping
Copyright: De Zwarte Hond
De Louise van De Zwarte Hond combineert sociale woningbouw met kwaliteit en duurzaamheid
20 oktober 2025, 13:42
In de wijk Overhoeks in Amsterdam Noord is het sociale woningbouwproject De Louise opgeleverd. Het gebouw is ontworpen door
De Zwarte Hond
in opdracht van woningcorporatie
Ymere
. Het project biedt plaats aan 113 compacte, sociale huurwoningen. Daarbij is door de architect en de corporatie nadrukkelijk gestreefd naar een hoge woonkwaliteit. Het blok bevindt zich op de hoek van de Grasweg en de Docklandsweg, direct naast de brug naar een bestaande woonwijk die vrijwel 100 jaar geleden gereed kwam.
Woningmarkt
In de vele politieke discussies in de aanloop naar de verkiezingen voor de Tweede Kamer is het thema wonen door een aantal partijen prominent op de agenda geplaatst. Niet vreemd gezien de voortdurende zoektocht naar concrete en kansrijke oplossingen om de vastgelopen woningmarkt weer op gang te krijgen. Dat vastlopen zorgt voor een tekort in bepaalde woningbouwcategorieën en -locaties, wat weer een ongewenste prijsstijging van woningen tot gevolg heeft. Meer bouwen om die oververhitte woningmarkt af te koelen en huizen weer betaalbaar te maken voor starters is daarbij een vaak herhaald mantra. Meer en betaalbaar bouwen, maar zonder te veel in te boeten aan kwaliteit is een nuancering die wat vaker dan gemiddeld uit het ontwerpende vakgebied klinkt.
Went
Het project is daarom heel passend vernoemd naar
Louise Went
(1865-1951). Went was een belangrijke figuur in de begindagen van de volkshuisvesting en het maatschappelijk werk. Ze vervulde in haar werkzame leven de nodige betekenisvolle functies. Niet verwonderlijk was ze daarbij vaak de eerste en/of enige vrouw in die functie. Zo was Went lid van de Gezondheidscommissie van Amsterdam, lid van de Vereeniging Amsterdamsch Bouwfonds en lid van de onderzoekscommissie van de Nationale Woningraad. Ze was tevens gedurende een groot deel van haar leven directrice van de N.V. Bouwonderneming Jordaan. Louise Went was daarnaast getrouwd met architect Jan Ernst van der Pek die eveneens veel betekende voor de volkshuisvesting in Amsterdam en naamgever is van de naastgelegen wijk.
Integrale samenwerking
Met De Louise willen De Zwarte Hond en Ymere, samen met andere betrokken partijen, aantonen dat versnelling in de woningbouw wel degelijk mogelijk is zonder al te veel concessies aan de kwaliteit of duurzaamheid. Dat doel is bereikt door het geloof in het toepassen van integrale samenwerking en het omarmen van industrieel bouwen.Ondanks het relatief kleine formaat van de woningen is geprobeerd om de woonkwaliteit op een hoog niveau te houden. De benodigde ruimte in het bouwbudget werd gevonden door een integrale aanpak en nauwe samenwerking tussen opdrachtgever, architect, aannemer en fabrikanten. Zo kon een efficiënt en betaalbaar casco worden gerealiseerd in, bovendien, een korte bouwtijd.
Dura Vermeer
trad bij het project op als bouwkundig aannemer.
Extra’s
Die integraliteit en efficiëntie boden vervolgens ‘bouwbudgettaire ruimte’ om de woningen te voorzien van een aantal kwaliteitverhogende elementen. Daartoe behoren slimme plattegronden, veel daglichttoetreding en royale binnen-buitenverbindingen via brede, doorlopende balkons met uitzicht over het kanaal en de laagbouw van de bestaande Van der Pekbuurt. Dankzij een goed doordacht ontwerp beschikt elke woning bovendien over een privé buitenruimte. Met gepaste trots wordt er door de architecten op gewezen dat deze laatste kwaliteit niet volgens het bouwbesluit vereist is, maar hier (dus) bewust is toegevoegd.
Ontmoeting
De woningen zijn efficiënt gestapeld rond een ruim atrium. Dat is met zichtlijnen en doorgangen verbonden met het water van het naastgelegen Buiksloterkanaal en een groot dakterras. Het atrium in bedoeld als collectieve ruimte die ontmoeting tussen bewoners moet stimuleren. Het ontmoeten van bewoners en sociale interactie waren ook de reden om bij het indelen van de woningen het keukenraam op de gang en het atrium te laten uitkijken. In de hoge, flexibele plint is ruimte voor buurtfuncties. De Louise versterkt zo de sociale cohesie tussen bewoners en draagt tevens bij aan de levendigheid en voorzieningen in de nieuwe wijk Overhoeks.
Bijzondere details
Doordat de gevel in een vroeg stadium en in nauwe samenwerking met de producent werd ontworpen, kon veel aandacht worden besteed aan de detaillering. Binnen een prefab systeem werd zo een bijzondere vorm gerealiseerd. De ondiepe balkons hebben een gekromd plafond gekregen dat gedragen wordt door ranke, kruisvormige kolommen. Samen met een klassiek-strenge vormgeving van de balkonhekken geven deze details het gebouw karakter. Een herkenbare ambitie in een stadswijk waar vrijwel met elk gebouw gestreefd wordt naar een passende, maar toch ook voldoende onderscheidende uitstraling. Door de lichte, beige kleur van het beton wordt juist weer aansluiting gezocht bij de tinten van die omliggende gebouwen.
Trefwoorden
de zwarte hond
ymere
amsterdam
overhoeks
dura vermeer
louise went
Locatie
Best gelezen
1
PSV presenteert plannen voor uitbreiding Philips Stadion
vrijdag, 20 maart
2
Luxe appartementengebouw naast klooster Etten-Leur door Studio AAAN klaar
donderdag, 19 maart
3
Houten Stelthuis van Woonpioniers is aardbevings- en klimaatbestendig
woensdag, 18 maart
4
BureauVanEig verbetert uitstraling Haagse rijtjeswoningen bij verduurzaming
dinsdag, 17 maart
5
KAAN Architecten en De Zwarte Hond winnen tender voor Area 19 TU Eindhoven
vrijdag, 20 maart
Gerelateerde nieuwsberichten
Nominaties Woongebouw van het Jaar 2025 bekend
3 september 2025
Tentoonstelling Optimistic Activism van De Zwarte Hond opent bij Aedes in Berlijn
23 oktober 2025
Realisatie houtbouw The Ark in woonwijk Overhoeks van start
10 februari
Met ontwerp van IKC De Brug sluit De Zwarte Hond aan bij dorpskarakter
17 juni 2025
Fors meer omzet bouwbedrijf Dura Vermeer door grote vraag
10 maart
Meerstemmigheid staat centraal op Avond met De Zwarte Hond
26 mei 2025
De Zwarte Hond ontwerpt ‘industriële’ leeromgeving voor Gilde Vakcollege
4 april 2025
De Zwarte Hond is Architect van het Jaar 2024
6 november 2024
Orange Architects voltooit The Bow
24 september 2025
De August: sociale woningbouw met luxe uitstraling in Overhoeks
5 augustus 2025
Binnentuin speelt belangrijke rol in woongebouw BuitenBuren Almere
27 februari
Nominaties Woongebouw van het Jaar 2025 bekend
3 september 2025
Tentoonstelling Optimistic Activism van De Zwarte Hond opent bij Aedes in Berlijn
23 oktober 2025
Realisatie houtbouw The Ark in woonwijk Overhoeks van start
10 februari
Met ontwerp van IKC De Brug sluit De Zwarte Hond aan bij dorpskarakter
17 juni 2025
Fors meer omzet bouwbedrijf Dura Vermeer door grote vraag
10 maart
Meerstemmigheid staat centraal op Avond met De Zwarte Hond
26 mei 2025
De Zwarte Hond ontwerpt ‘industriële’ leeromgeving voor Gilde Vakcollege
4 april 2025
De Zwarte Hond is Architect van het Jaar 2024
6 november 2024
Orange Architects voltooit The Bow
24 september 2025
De August: sociale woningbouw met luxe uitstraling in Overhoeks
5 augustus 2025
Binnentuin speelt belangrijke rol in woongebouw BuitenBuren Almere
27 februari
Toon alles
Gerelateerde bedrijven
De Zwarte Hond
Architectuur Stedenbouw Strategie
Andere nieuwsberichten
Vernieuwde Welstandsnota Rotterdam staat in teken van Omgevingswet, duurzaamheid en gebruiksgemak
29 minuten geleden
De Rotterdamse Welstandsnota uit 2012 is geactualiseerd. Daarbij waren nieuwe inzichten en regelgeving, alsmede het gebruiksgemak voor gemeente en aanvragers bepalend.
PSV presenteert plannen voor uitbreiding Philips Stadion
20 maart, 3:37
De Eindhovense club wil de capaciteit van zijn onderkomen opschroeven met maximaal 25.000 bezoekers. Om dit te bewerkstelligen, komt er een nieuwe schil rond het stadion waarin een derde ring is opgenomen.
Rijkswaterstaat staakt renovatie markante houten Krùsrak-brug in Sneek
20 maart, 11:32
Tijdens de renovatie werd duidelijk dat de constructieve veiligheid van de brug niet langer kan worden verzekerd, laat RWS weten. De uit 2008 stammende Krúsrak-brug over de rijksweg 7 is ontworpen door Onix en Archterbosch Architecten.
KAAN Architecten en De Zwarte Hond winnen tender voor Area 19 TU Eindhoven
20 maart, 10:35
De opdracht omvat het ontwerp van een nieuw onderzoeks- en onderwijsgebouw en de stedenbouwkundige ontwikkeling van een nieuw campusgebied.
Friesland brengt duizenden karakteristieke boerderijen in kaart
20 maart, 2:16
Door alle informatie over de voor het landschap kenmerkende gebouwen op één plek te brengen, moet het makkelijker worden om ze te behouden.
ING: bijna de helft van de huiseigenaren stelt verduurzaming uit
20 maart, 12:18
De meeste mensen vinden dat de overheid te weinig doet om dit te stimuleren.
Rekenkamer kraakt resultaten EU-innovatiefonds voor verduurzaming
20 maart, 9:25
Het Innovatiefonds van de Europese Unie levert veel minder resultaat op dan verwacht op het gebied van verduurzaming en innovatie.
Provincie schrapt beoogde locaties windturbines in Groene Hart
19 maart, 1:35
De provincie had twaalf plekken op het oog, maar dat leidde tot maatschappelijk en politiek verzet.
Staten Utrecht willen netcongestie versneld aanpakken
19 maart, 9:44
De fracties wezen op de noodzaak van het zo snel mogelijk realiseren van een hoogspanningsstation dat essentieel is voor het opsplitsen van het elektriciteitsnetwerk tussen de Flevopolder, Gelderland en Utrecht.
Rotterdam wil woningbouw versnellen met pilot ‘Ontwikkelaar aan Zet’
18 maart, 4:33
De gemeente Rotterdam start een pilot waarbij projectontwikkelaars een grotere rol krijgen bij de voorbereiding van woningbouwprojecten.
Ga naar het nieuws-archief
JaapJan Berg
Redacteur
0
0
0
0
Voor een optimale gebruikservaring plaatst Architectenweb functionele cookies. Wat de verschillende cookies precies doen leggen we uit in een
overzicht
. Cookies van social media kun je optioneel
aanzetten
.
Akkoord
Instellingen
Annuleren
OK
Sluiten
Doorgaan
Inloggen
Maak een gratis persoonlijk account aan
Feedback
Feedback
Wij horen graag jouw feedback. Laat je reactie achter en eventueel jouw e-mail adres.
Reactie
Verstuur