Projecten
Producten
Bedrijven
Vacatures
Agenda
Awards
Podcasts
more_horiz
Videos
Magazine
Thema's
Favorieten
Profiel
Uitloggen
Nieuw
Populair
Toon alles
Architectenweb magazine #14
Architectenweb magazine #13
Publieke gebouwen
Architectenweb magazine #12
Kantoren
Architectenweb magazine #11
Scholen
Architectenweb magazine #10
Zorg
Architectenweb magazine #14
Architectenweb magazine #10
Zorg
Architectenweb magazine #12
Kantoren
Architectenweb magazine #13
Publieke gebouwen
Architectenweb magazine #6
Transformatie en Renovatie
Om direct naar je favorieten te kunnen gaan is het nodig om eerst in te loggen.
Nieuw
Architectenweb Awards 2025
Architectenweb Awards 2024
Architectenweb Awards 2023
Architectenweb Awards 2022
Architectenweb Awards 2021
Architectenweb Awards 2020
Architectenweb Awards 2019
Architectenweb Awards 2018
Om direct naar je favorieten te kunnen gaan is het nodig om eerst in te loggen.
Nieuw
Populair
Favorieten
Toon alles
Vakwerk Architecten
Nominatie voor de prijs voor Architect van het Jaar 2025
Sanne van Manen
Nominatie voor de prijs voor Architect van het Jaar 2025
KSA
Nominatie voor de prijs voor Architect van het Jaar 2025
KRFT
Nominatie voor de prijs voor Architect van het Jaar 2025
Joost Ector
Nominatie voor de prijs voor Architect van het Jaar 2025
Prijsuitreiking Architectenweb Awards 2024
Impressie van een feestelijke avond
Martens, Willems & Humblé Architecten
Nominatie voor de prijs voor Architect van het Jaar 2024
Uitreiking van Architectenweb Awards 2020
Impressie van de prijsuitreiking via Zoom
De Zwarte Hond
Nominatie voor de prijs voor Architect van het Jaar 2024
Avond met De Zwarte Hond
Symposium
Om direct naar je favorieten te kunnen gaan is het nodig om eerst in te loggen.
Nieuw
Populair
Categorieën
Favorieten
Toon alles
ST1centrum
Dé specialist op het gebied van gevelstenen en dakpannen met showrooms in Amsterdam en Meppel
Studio Massimo
Architecture & Nature
Brandpreventie Academy BV
HoutPro+
Cay Circulaire Keukens
Circulaire keukens en pantry's
Studio Kirsten Reith
Interieurontwerp
Interior & Co
Studio175
Interieuradvies in regio Utrecht
Cay Circulaire Keukens
Circulaire keukens en pantry's
Orange Automatic Doors
Studio Kirsten Reith
Interieurontwerp
Brandpreventie Academy BV
Architecten
Architectuur
Mobiliteit en infrastructuur
Stedenbouw en landschapsarchitectuur
Leveranciers
Gevels
Daken
Ramen en deuren
Trappen, liften en balustrades
Binnenwanden
Vloeren
Plafonds
Verlichting
Sanitair
Projectinrichting
Installaties
Constructies
Buitenruimte
Software
Adviseurs
Bestekschrijvers
Bouwmanagement
Installatie adviseurs E
Bouwfysica
Calculators
Installatie adviseurs G/W
Bouwkundig tekenwerk
Constructeurs
Lichtadviseurs
Adviseur beveiliging
Juristen
Intermediairs, Payrolling
Aannemers
Overig
Presentatie
Instellingen / onderwijs
Overig
Om direct naar je favorieten te kunnen gaan is het nodig om eerst in te loggen.
Nieuw
Populair
Favorieten
Toon alles
Gesprek met Stephan Sliepenbeek over hoogbouw in Amstel III
Gesprek met Ellen van Bueren over gebiedsontwikkeling en hoogbouw
Gesprek met Ma Yansong over ontwerpen die emotie oproepen
Gesprek met Paul de Ruiter over innovatieve en duurzame hoogbouw
Gesprek met Pi de Bruijn over zijn ontwerpen voor de Tweede Kamer toen en nu
Gesprek met Ellen van Bueren over gebiedsontwikkeling en hoogbouw
Gesprek met Oresti Sarafopoulos over het ontwerpen van een kantoorgebouw met bijna geen installaties
Gesprek met Stijn Steenbakkers over verdichting en hoogbouw in Eindhoven
Gesprek met Pi de Bruijn over zijn ontwerpen voor de Tweede Kamer toen en nu
Gesprek met Paul de Ruiter over innovatieve en duurzame hoogbouw
Om direct naar je favorieten te kunnen gaan is het nodig om eerst in te loggen.
Nieuw
Populair
Categorieën
Favorieten
Toon alles
Smart Lighting voor kantoorcampus Tripolis Park
Duurzame modernisering met EcoBrick gevelstenen
Nieuw expertisecentrum voor Ipse de Bruggen
Duurzaam logistiek centrum vol daglicht
Renovatie parkeergarage WTC Beursplein, Rotterdam
Boekweitkamp, Den Haag
Exclusieve wooneenheden
De Grote Zwaan, Nijmegen
Villa van Hout
Renovatieproject Ockenburghstraat
Architectuur
Woningbouw
Zorg
Hotels
Restaurants en café’s
Winkels
Sportgebouwen
Culturele gebouwen
Overheidsgebouwen
Scholen
Kantoren
Bedrijfsgebouwen
Paviljoens en kunst
Overig
Mobiliteit en infrastructuur
Trein- en metrostations
Luchthavens
Busstations
Parkeergarages
Fietsparkeren
Wegen
Bruggen
Water
Energie
Tankstations en laadstations
Waterzuivering en afvalverwerking
Overig
Stedenbouw en landschapsarchitectuur
Regionale visies
Gebiedsvisies
Plannen stedelijk weefsel
Amusementsparken en dierentuinen
Lichtontwerpen
Openbare ruimte
Pleinen
Parken
Tuinen
Speelplaatsen
Uitkijktorens
Overige (bijv. begraafplaatsen)
Om direct naar je favorieten te kunnen gaan is het nodig om eerst in te loggen.
Nieuw
Populair
Categorieën
Favorieten
Toon alles
DINrail Zigbee dimmer
Centrale dimoplossing voor slimme verlichting
De nieuwe Gira G1.
Sneller. Groter. Sterker.
HomeComfort
Create your ambiance in a touch
Next Generation USB C opladers
De Next Generation USB C opladers: snel, compact and efficiënt
D31TDV- en D31TDH IP-video deurintercom systemen
Innovatie voor appartementencomplexen en grote gebouwen
StoTherm Wood: cementvrij gevelsysteem met houtvezelisolatie
Biobased gevelisolatie met natuurlijke prestaties
StoTherm Wood: cementvrij gevelsysteem met houtvezelisolatie
Biobased gevelisolatie met natuurlijke prestaties
StoTherm Wood: cementvrij gevelsysteem met houtvezelisolatie
Biobased gevelisolatie met natuurlijke prestaties
Akoestisch kussen.
Ervaar de ultime natuurlijke oplossing voor akoestiek problemen.
Akoestisch kussen.
Ervaar de ultime natuurlijke oplossing voor akoestiek problemen.
Akoestisch kussen.
Ervaar de ultime natuurlijke oplossing voor akoestiek problemen.
Knauf MaxSpace
Minder wand, méér ruimte. Het ideale profiel voor meer winst per m²
Knauf MaxSpace
Minder wand, méér ruimte. Het ideale profiel voor meer winst per m²
Knauf MaxSpace
Minder wand, méér ruimte. Het ideale profiel voor meer winst per m²
Lumiglaze – Het vlakglas van VELUX Commercial
Een nieuw tijdperk in daglichtontwerp – minimalistisch, functioneel en klaar voor de toekomst.
Lumiglaze – Het vlakglas van VELUX Commercial
Een nieuw tijdperk in daglichtontwerp – minimalistisch, functioneel en klaar voor de toekomst.
Lumiglaze – Het vlakglas van VELUX Commercial
Een nieuw tijdperk in daglichtontwerp – minimalistisch, functioneel en klaar voor de toekomst.
Veelzijdig straatmeubilair
Van openbare ruimte naar (be)leefomgeving
Veelzijdig straatmeubilair
Van openbare ruimte naar (be)leefomgeving
Veelzijdig straatmeubilair
Van openbare ruimte naar (be)leefomgeving
Gevels
Gevelbekleding
Vliesgevels
Zonwering buiten
Isolatie
Gevelconstructies
Signing
Overig
Daken
Dakafwerkingen
Dakisolatie
Dakconstructies
Dakranden, dakgoten en HWA's
Dakramen
Lichtkoepels
Lichtstraten
Schoorstenen
Overig
Dakluiken
Ramen en deuren
Raam- en deursystemen / kozijnen
Vliesgevels
Hang- en sluitwerk
Beveiliging en luiken
Dorpels en vensterbanken
Lateien
Roosters
Glas
Dakramen
Dakkoepels
Lichtstraten
Zonwering buiten
Zonwering binnen
Buitendeuren
Binnendeuren
Postvakken en brievenbussen
Overig
Dakluiken
Trappen, liften en balustrades
Trappen
Roltrappen
Liften
Balustrades en hekwerken
Galerijen
Binnenwanden
Binnenwanden
Wandafwerking
Vloeren
Constructieve vloeren
Verhoogde vloeren
Vloerafwerkingen
Overig
Plafonds
Tegels
Lineair
Grill
Open en roosters
Naadloos
Eilanden en baffles
Plafondafwerkingen
Ophangsystemen
Overig
Klimaatplafonds
Verlichting
Binnenverlichting
Buitenverlichting
Sanitair
Kranen en douchesets
Wastafels
Douchewanden en douchebakken
Baden
Waterclosets
Accessoires
Overig
Projectinrichting
Stoelen
Banken
Tafels
Kasten
Balies
Vrijstaande wanden
Keukens
Accessoires
Overig
Cabines
Interieurbeplanting
Stoffering
Installaties
Verwarming, koeling en ventilatie
Elektrotechnische installaties
Schakelmateriaal
Domotica
Deurcommunicatie
Beveiliging
Liften
Onderhoudsinstallaties
Overig
Brandbeveiliging
Constructies
Draagconstructies
Funderingen en kelders
Overig
Brandbeveiliging
Buitenruimte
Bestratingen en verhardingen
Afwateringen
Terreinafscheidingen en geluidsschermen
Buitenmeubilair
Fietsparkeren
Terrassen
Terrasoverkappingen
Bruggen
Accessoires
Overig
Beplanting
Sport- en speeltoestellen
Software
Tekenen 2D
Modelleren 3D / BIM
Visualisatie / rendering
Parametrisch ontwerpen
Bouwfysica
Draagconstructie
Overig
Virtual Reality
Cloudoplossingen
Om direct naar je favorieten te kunnen gaan is het nodig om eerst in te loggen.
Nieuw
Populair
Favorieten
Toon alles
Prefab beurs - 7 t/m 9 oktober 2025
Brabanthallen 's-Hertogenbosch
Boekpresentatie en panelgesprek met Floor Milikowsky
Prins Hendrikkade 600, 1011 VX Amsterdam
Architects Table ’25: Lunch & Inspiratie in HAUT Amsterdam
ATAG LIVE – HAUT gebouw, Spaklerweg 10F, 1096 BA Amsterdam (tegenover metrostation Spaklerweg)
Inspiratiedag @ Sempergreen – Gevelgroen
Defensieweg 1, 3984 LR Odijk
Architectenweb symposium: klein maar fijn wonen?
Pakhuis de Zwijger
Ontdek het seminarieprogramma van Architect@Work Amsterdam
De Kromhouthal, Gedempt Hamerkanaal 231, Amsterdam
Prefab beurs - 7 t/m 9 oktober 2025
Brabanthallen 's-Hertogenbosch
Architects Table ’25: Lunch & Inspiratie in HAUT Amsterdam
ATAG LIVE – HAUT gebouw, Spaklerweg 10F, 1096 BA Amsterdam (tegenover metrostation Spaklerweg)
DigiBouw 2025 – hét event voor digitalisering in de bouwsector
Expozaal van het Beatrixgebouw in Utrecht
Boekpresentatie en panelgesprek met Floor Milikowsky
Prins Hendrikkade 600, 1011 VX Amsterdam
Om direct naar je favorieten te kunnen gaan is het nodig om eerst in te loggen.
Nieuw
Toon alles
Design
Duurzaamheid
Gevel
Infrastructuur
Interieur
Kantoren
Leisure
Openbare ruimte
Publieke gebouwen
Scholen
Transformatie en Renovatie
Woningbouw
Zorg
Om direct naar je favorieten te kunnen gaan is het nodig om eerst in te loggen.
Nieuw
Populair
Toon alles
Medior Architect
Assistent Ontwerper (Junior Architect)
Ervaren Bouwkundig Tekenaar
9graden architectuur Amersfoort zoekt een bouwkundig modelleur
SVP zoekt bureauondersteuner
SVP zoekt medior stedenbouwkundige
Junior Architect (NL/EN)
De Academie van Bouwkunst Amsterdam zoekt twee onderzoekers voor lectoraat
Architect
Site Practice zoekt medior architect met 4-6 jaar ervaring (Amsterdam)
Junior Ontwerper
Studio Nauta zoekt projectleider
Om direct naar je favorieten te kunnen gaan is het nodig om eerst in te loggen.
Copyright: 19 het atelier architecten
Copyright: 19 het atelier architecten
Copyright: 19 het atelier architecten
Copyright: 19 het atelier architecten
Copyright: 19 het atelier architecten
Copyright: 19 het atelier architecten
Copyright: 19 het atelier architecten
Copyright: 19 het atelier architecten
Copyright: 19 het atelier architecten
Copyright: 19 het atelier architecten
Copyright: 19 het atelier architecten
Copyright: 19 het atelier architecten
Copyright: 19 het atelier architecten
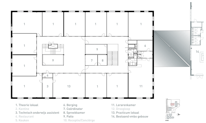
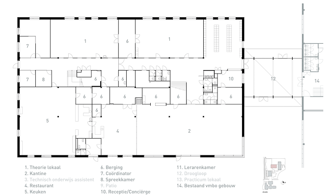
19 het atelier schept eenheid bij verscheidenheid voor onderwijscampus Winkler Prins
24 augustus 2022, 9:02
Twee nieuwe gebouwen, renovatie van het bestaande hoofdgebouw en de inrichting van het terrein zorgen voor een complete vernieuwing van onderwijscampus Winkler Prins in Veendam. Daarbij heeft
19 het atelier architecten
gezorgd voor verscheidenheid en eenheid op verschillende niveaus.
Winkler Prins is een openbare school voor voortgezet onderwijs in de gemeente Veendam. De school biedt alle vormen van voortgezet onderwijs, van praktijkschool tot en met gymnasium. In opdracht van de gemeente Veendam heeft 19 het atelier een aantal vernieuwingen voor de onderwijscampus ontworpen, die gefaseerd worden opgeleverd.
Eigen plek
Ten eerste ontwierp het bureau twee nieuwe gebouwen voor de scholengemeenschap, waarin het brugklasjaar en het kader-basis-onderwijs een plek vinden. De gebouwen zijn duidelijk familie van elkaar, maar toch verschillend. Dit past bij het motto van de school ‘samen verschillend’, vertelt 19 het atelier.
Door opdeling van de gevel heeft het architectenbureau het aanzicht van meerdere ‘pandjes’ bereikt. Verschillende metselwerkpatronen in Groninger rode baksteen en diverse dakvormen benadrukken deze uitstraling en zorgen voor een speels beeld. De schuine daken zijn geschikt voor de toepassing van zonnepanelen en daklichten; dat laatste zorgt voor veel daglicht in het interieur.
Maatwerk
Al het maatwerk van het interieur is een afgeleide van de gebouwen, legt het architectenbureau uit. In alle verscheidenheid zijn de interieurelementen wel dusdanig op elkaar afgestemd dat ze een eenheid vormen; wederom ‘samen verschillend’. De opdeling en variaties zorgen voor een schaal die past bij de kinderen en een geborgen gevoel.
De verschillende leerjaren en richtingen zijn vertaald naar een eigen kleurgebruik. Daarbij is alles vormgegeven met ‘een sportief karakter’. Onderwijscampus Winkler Prins legt namelijk een sterke nadruk op sport.
Gefaseerd
De nieuwbouw van het brugklasjaar en kader-basis, samen goed voor 5.500 m
2
bvo, is in het najaar van 2021 opgeleverd. Na de zomer- en herfstvakantie betraden de leerlingen hun nieuwe schoolgebouwen.
Dit hopelijk tot hun vreugde, maar zeker tot blijdschap van Ineke Jager, deelschooldirecteur brugjaar: “We zijn blij dat we een eigen gebouw voor het brugjaar konden realiseren. Het is voor deze leerlingen belangrijk om zich geborgen te voelen. De overgang van groep 8 naar de 1e klas ís immers al zo groot.”
Naast de twee nieuwe gebouwen heeft 19 het atelier de renovatie van het bestaande hoofdgebouw en de inrichting van de onderwijscampus ontworpen. De renovatie van het hoofdgebouw, hetgeen circa 3.000 m
2
bvo betreft is in volle gang; dat geldt ook voor de gymzaal. De verwachte oplevering is in het najaar van 2022.
Ook wordt de laatste hand gelegd aan de inrichting van het campusterrein. Het landschapsontwerp van de parkachtige campus is gemaakt door
Buro Mien Ruys
.
Trefwoorden
19 het atelier architecten
onderwijscampus
veendam
scholencampus
schoolgebouw
buro mien ruys
metselwerk
scholenbouw
Locatie
Best gelezen
1
Plan Spot belooft Lelystad bruisend centrumgebied
vrijdag, 3 oktober
2
‘NDSM-werf en Buiksloterham zijn júíst inspirerende voorbeelden voor de stad van morgen’
vrijdag, 3 oktober
3
Nominaties Publiek gebouw van het Jaar 2025 bekend
woensdag, 8 oktober
4
Realisatieovereenkomst voor hoogbouwcomplex De Sax op Wilhelminapier getekend
maandag, 6 oktober
5
We verdienen betere pers
dinsdag, 7 oktober
Gerelateerde nieuwsberichten
Ontwerp van 19 het atelier voor brandweerkazerne op Urk goedgekeurd
10 januari 2022
19 het atelier wint architectenselectie Kindcentrum Marnix in Kampen
11 november 2021
Sara van Popta en Marc Eijkelkamp treden toe tot directie 19 het atelier
8 juni 2023
Jurgen Reichard en Rob Moritz in nieuwe Xchange Ideas podcasts
28 oktober 2021
Triflex
Rob Moritz treedt terug als directeur 19 het atelier
20 februari 2024
19 het atelier wint Design & Build-opdracht in Emmeloord
22 september 2020
Buitendijkse nieuwbouw Alluance Group opgetild voor beter uitzicht
4 september 2020
Woningen in monumentaal schoolensemble in Meppel
3 augustus 2020
Opwaardering en uitbreiding van waterlaboratorium afgerond
31 januari 2019
Architecten|en|en ontwerpt nieuwbouw voor breed onderwijsaanbod
20 juni 2022
Basisschool in Gilze heeft zones met verschillende dynamiek
13 oktober 2021
Ruimtelijk en flexibel schoolgebouw voor dorpse omgeving
30 maart 2021
Meer uitstraling voor Podium Oost na verbouwing door 19 het atelier
29 maart 2024
Architecten|en|en realiseert schoolgebouw als driedelig maatpak
16 december 2020
Grootschalig onderwijsproject van bkvv architecten in Oeganda opgeleverd
1 augustus 2022
Vernieuwd onderkomen Rudolf Steiner School en College in gebruik genomen
21 juni 2022
BDP ontwerpt kindcentrum voor Houtwijk in Den Haag
7 juni 2022
Een hellingbaan door de school voor vertrouwen en kracht
4 juli 2023
19 het atelier ontwerpt Leer- en Ontwikkelcentrum Schiermonnikoog
23 februari 2023
Ontwerp van 19 het atelier voor brandweerkazerne op Urk goedgekeurd
10 januari 2022
19 het atelier wint architectenselectie Kindcentrum Marnix in Kampen
11 november 2021
Sara van Popta en Marc Eijkelkamp treden toe tot directie 19 het atelier
8 juni 2023
Jurgen Reichard en Rob Moritz in nieuwe Xchange Ideas podcasts
28 oktober 2021
Triflex
Rob Moritz treedt terug als directeur 19 het atelier
20 februari 2024
19 het atelier wint Design & Build-opdracht in Emmeloord
22 september 2020
Buitendijkse nieuwbouw Alluance Group opgetild voor beter uitzicht
4 september 2020
Woningen in monumentaal schoolensemble in Meppel
3 augustus 2020
Opwaardering en uitbreiding van waterlaboratorium afgerond
31 januari 2019
Architecten|en|en ontwerpt nieuwbouw voor breed onderwijsaanbod
20 juni 2022
Basisschool in Gilze heeft zones met verschillende dynamiek
13 oktober 2021
Ruimtelijk en flexibel schoolgebouw voor dorpse omgeving
30 maart 2021
Meer uitstraling voor Podium Oost na verbouwing door 19 het atelier
29 maart 2024
Architecten|en|en realiseert schoolgebouw als driedelig maatpak
16 december 2020
Grootschalig onderwijsproject van bkvv architecten in Oeganda opgeleverd
1 augustus 2022
Vernieuwd onderkomen Rudolf Steiner School en College in gebruik genomen
21 juni 2022
BDP ontwerpt kindcentrum voor Houtwijk in Den Haag
7 juni 2022
Een hellingbaan door de school voor vertrouwen en kracht
4 juli 2023
19 het atelier ontwerpt Leer- en Ontwikkelcentrum Schiermonnikoog
23 februari 2023
Toon alles
Andere nieuwsberichten
Nog twee dagen om jouw stem uit te brengen voor de Architect van het Jaar 2025!
2 uur geleden
De nominaties voor de prijs voor Architect van het Jaar 2025 zijn: Joost Ector, KSA, KRFT, Sanne van Manen en Vakwerk Architecten. Bekijk nu de video’s waarin de genomineerden zich voorstellen en breng jouw stem uit!
bureau SLA ontdekt, transformeert en gebruikt rijksmonumentale werkplaats
3 uur geleden
Woon-werkruimte op Hembrugterrein in Zaandam toont radicale vernieuwing in erfgoedbeheer en duurzame bouw
Zoetmulder vernieuwt Maastrichts herenhuis met eigentijdse uitbouw
Gisteren, 15:07
In Maastricht heeft Zoetmulder een herenhuis verbouwd en uitgebreid met een uitbouw. Waar de gevel aan de voorzijde in de originele staat is behouden om het huis te blijven laten passen in het straatbeeld, is de achterzijde geheel vernieuwd.
Vier genomineerden voor de Abe Bonnema Architectuurprijs 2025
Gisteren, 13:00
Volgens de jury zijn de nominaties een toonbeeld van het jaarthema ‘ambitie’ en leveren zij een inspirerende bijdrage aan de ontwikkeling van een nieuwe bouwcultuur.
Onderzoek: over tien jaar zijn veel bestaande middenhuurwoningen verkocht
1 uur geleden
Tegelijkertijd komen er weer nieuwgebouwde middenhuurwoningen bij, staat in een rapport dat in opdracht van het kabinet is uitgevoerd.
Do Janne Vermeulen verzorgt Rietveldlezing 2025
Gisteren, 11:28
De medeoprichter en directeur van Team V Architectuur spreekt op 13 november over de (houten) stad van morgen.
Eneco onderzoekt verkoop warmtenetten om nieuwe wet
Gisteren, 10:41
Door een eerder dit jaar aangenomen wet is het voor het bedrijf onzeker of investeringen zich nog terugverdienen.
Uitwerking van plannen voor Nedersaksenlijn kan beginnen
7 oktober, 12:17
Maandag is het startsein gegeven voor de eerste onderzoeken die uiteindelijk moeten leiden tot de spoorlijn die Groningen en Twente met elkaar verbindt.
Mona Keijzer lonkt naar investeerders op vastgoedbeurs in München
7 oktober, 10:02
"We moeten 1,6 miljoen woningen bouwen. Daarvoor hebben we buitenlandse investeerders nodig", stelt de demissionair minister.
Jongeren debatteren in het Nieuwe Instituut met Kamerleden over wonen
6 oktober, 2:26
Tot de thema’s die worden besproken, behoren betaalbaarheid, het creëren van meer woningen en de betrokkenheid van jongeren bij deze plannen.
Ga naar het nieuws-archief
Robert Muis
Redacteur
0
0
0
0
Voor een optimale gebruikservaring plaatst Architectenweb functionele cookies. Wat de verschillende cookies precies doen leggen we uit in een
overzicht
. Cookies van social media kun je optioneel
aanzetten
.
Akkoord
Instellingen
Annuleren
OK
Sluiten
Doorgaan
Inloggen
Maak een gratis persoonlijk account aan
Feedback
Feedback
Wij horen graag jouw feedback. Laat je reactie achter en eventueel jouw e-mail adres.
Reactie
Verstuur