Projecten
Producten
Bedrijven
Vacatures
Agenda
Awards
Podcasts
more_horiz
Videos
Magazine
Thema's
Favorieten
Profiel
Uitloggen
Copyright: Olmo Peeters
Copyright: Olmo Peeters
Copyright: Olmo Peeters
Copyright: Gion von Albertini
Copyright: Olmo Peeters
Copyright: Gion von Albertini
Copyright: Gion von Albertini
Copyright: Gion von Albertini
Copyright: Gion von Albertini
Copyright: Olmo Peeters
Copyright: Olmo Peeters
Copyright: Olmo Peeters
Copyright: Olmo Peeters
Copyright: Kristof Vrancken
Gevel
Copyright: Francesca Torzo
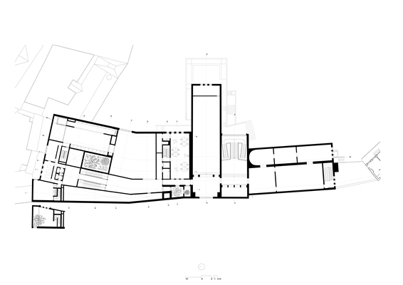
Begane grond
Copyright: Francesca Torzo
Tussenniveau
Copyright: Francesca Torzo
Eerste verdieping
Copyright: Francesca Torzo
Situatie
Copyright: Francesca Torzo
Nieuwbouw voor Z33 biedt waaier aan ruimtelijke ervaringen
30 maart 2020, 15:03
Het kunstencentrum
Z33
in Hasselt, België, beschikt sinds kort over een nieuw tentoonstellingsgebouw: Vleugel 19. Zorgvuldig ingepast in de context voegde de Italiaanse architecte
Francesca Torzo
een ‘onspectaculair’ gebouw toe, met een uitdagend interieur. Het kunstencentrum toont zich bijzonder tevreden.
Voor Z33, Huis voor Actuele Kunst, Design & Wereldarchitectuur, is sinds 2002 gevestigd in een voormalig begijnhof in het centrum van Hasselt en een aansluitende tentoonstellingsruimte, die in 1958-1959 werd gerealiseerd. Hoewel de locatie uitstekend beviel, constateerde de instelling rond 2010 dat ze sterk behoefte had aan nieuwe ruimte.
De opslag- of productieruimte en de expositieruimten waren niet altijd geschikt voor grootschalige installaties, video’s of ruimte-specifieke werken, de oude begijnhuisjes voldeden niet langer aan de verwachtingen van hedendaags bezoekerscomfort, aldus Z33. Echter, het gehele begijnhof en de resten van de oude kerk in de tuin moesten bewaard blijven en Vleugel 58 beschikte over mooie zalen met veel daglicht.
Inpassing
Z33 koos voor uitbreiding van de bestaande tentoonstellingsvleugel op hetzelfde perceel. Specifiek koos het kunstencentrum voor het voorstel van Francesca Torzo, die een concept had ontwikkeld waarbij de nieuwbouw onlosmakelijk was verbonden met Vleugel 58, het begijnhof en het omringende (middeleeuwse) stadsweefsel.
Meest in het oog springend is de lange, nagenoeg ononderbroken muur aan de Bonnefantenstraat. De muur is volledig dicht, op een enkele kleine insnijding na: de nieuwe hoofdingang van Z33. Met deze keuze versterkt Torzo het karakter van het driehoekige bouwblok, dat zich aan elke zijde toont met een gesloten baksteenwand.
Ook voor de nieuwe wand heeft Torzo baksteen gebruikt, maar in een ongebruikelijke ruitvorm. De dieppaarse, roodachtige kleurschakeringen van de bakstenen heeft de architecte bepaald na een studie naar de geschiedenis van baksteengebruik in de regio.
Binnentuinen
De nieuwbouw valt, aldus Z33, als een puzzelstukje op zijn plaats tussen Vleugel 58, het begijnhof, het jenevermuseum en de huizen verderop in de straat. Aan de tuinzijde toont zich eenzelfde zorgvuldige inpassing, waar de nieuwe Vleugel 19 een extra binnentuin creëert.
Een ritmisch patroon van hoge, smalle ramen sluit aan deze kant aan op de vormgeving van Vleugel 58. In het midden doorbreekt een hoog geplaatst, imposant raam het patroon en geeft Vleugel 19 een eigen gezicht.
Ook in het interieur komen Torzo’s zorgvuldige bestudering van de geschiedenis en architectuur van de plek tot uitdrukking. De geborgenheid van de begijnhofhuisjes – met de opeenvolging van ruimten, afgesloten van de stad door een dichte muur, wordt weerspiegeld in de nieuwbouw. Het begijnhof als een plek van verstilling binnen het stedelijk weefsel vindt een pendant in Vleugel 19.
Verscheidenheid aan ruimten
Na het betreden van het gebouw wordt de bezoeker geleidelijk, via een patio met een boom en een fontein, weg van de drukte van de stad naar een plek voor vertraging en aandacht geleid. Net als in het bestaande tentoonstellingsgebouw biedt Vleugel 19 compleet verschillende ruimten – met of zonder daglicht, groot, klein, langwerpig of met een ronding.
Naast een indeling die bekend is van Vleugel 58, heeft Torzo ook volumes toegevoegd die Z33 nog niet had: een hoge toren, een brede zaal en een hoge passage. De twee gebouwdelen zijn daardoor verschillend, maar vullen elkaar aan en vormen een duidelijk geheel, aldus de kunstinstelling.
Op de begane grond volgt de variatie in ruimten elkaar op met bovendien verrassende overgangen. Opvallend is het diamantvormige reliëf in de plafonds, dat niet alleen decoratief is, maar ook moet bijdragen aan een betere akoestiek. Op de etage van de nieuwbouw bevindt zich één grote zaal, met ver doorzicht naar de bestaande vleugel. Tevens biedt de grootste zaal zicht op de binnentuin.
Onspectaculair
Vleugel 19 biedt de bezoeker een verbazingwekkende waaier aan ruimtelijke ervaringen, meldt Z33. Daarnaast zal het gebouw met de dwingende tentoonstellingsruimten een uitdaging zijn voor curatoren en kunstenaars.
“Het druist in tegen de stijl van recente gebouwen die aan de buitenkant spectaculair ogen maar binnenin de eigenlijke tentoonstellingsruimten erg als witte dozen poneren”, aldus de kunstinstelling. Van buitenaf gezien is dit gebouw onspectaculair: niet opzichtig of onbegrijpelijk in zijn bouwkundige logica, wat volgens de Z33 vaak het geval is bij recente (museum)gebouwen.
“Door de opvallende afwezigheid van spectaculaire kenmerken kun je je afvragen waar de architectuur in schuilt”, stelt Z33. “Die is er dus niet, als je gelooft dat architectuur bestaat bij gratie van wild gesticuleren. Maar als je architectuur begrijpt als een gebaar dat verschillen op een dwingende manier in de wereld zet, dan is dit gebouw een extreem voorbeeld van architectuur.”
Trefwoorden
interieur
hasselt (belgië)
expositieruimte
z33
tentoonstellingsruimte
kunstencentrum
francesca torzo
belgië
hasselt
Locatie
Best gelezen
1
Den Bosch 'pauzeert' aanbesteding voor ontwerp gebiedsontwikkeling Citadelpoort
maandag, 17 november
2
Expositie in Kunsthal belicht eerdere toeristische periode Rotterdam
dinsdag, 18 november
3
Zelfsluitende Vlotterkering in Steyl vormt tevens 'balkon aan de Maas'
dinsdag, 18 november
4
Kleurrijk atrium vormt hart van nieuw internationaal hoofdkantoor NXP
maandag, 17 november
5
Het streven naar nieuw is ouderwets
donderdag, 20 november
Gerelateerde nieuwsberichten
Architectuurteam voor Hasselts museum gekozen
17 september 2012
TALKS about architecture organiseert twee lezingen in januari
12 december 2024
Doorkijkkerk voor landschap Borgloon
9 september 2011
Museumuitbreiding met sculpturaal monolithisch gebouw
9 september 2020
Oproep voor opmaak ontwikkelingsvisie Health campus Zuid
22 april 2021
Zeven finalisten EU Mies van der Rohe Award 2022 bekend
17 februari 2022
Expositie over ‘Verloren Ontwerpen’ in Hasselt
15 mei 2017
Veelomvattende solotentoonstelling Grcic in Z33
13 januari 2015
Ruimtelijke tape-installatie bij Z33
4 december 2012
Sotheby's New York verbouwt naar ontwerp OMA
26 februari 2019
Museum met ondergrondse expositieruimte voor Helsinki
29 augustus 2018
Ranke woongebouwen als schepen aan de kade
10 februari 2021
Een galerie waar wonen en tentoonstellen in elkaar overvloeien
10 april
Expositieruimte als coulissenlandschap
7 maart 2018
Een expositieruimte met een zilverkleurige toef
4 december 2017
Woongebouw met ruime wintertuinen in historisch Herkenrode
3 januari 2024
OMA realiseert evenementenruimte voor kunstzinnig Dubai
16 maart 2017
Uitwaaien in het klein
15 juni 2020
Evenement Brussels Design September zoekt het dichterbij
5 augustus 2020
WonderWoods Utrecht krijgt ruimte voor digitale kunst
25 augustus 2020
Ontwerper gezocht voor inrichting entreegebied Z33 in Hasselt
22 februari 2022
VenhoevenCS presenteert masterplan uitbreiding Corda Campus Hasselt
25 februari 2022
Belgen trekken stekker uit tramlijn Hasselt-Maastricht
24 mei 2022
Architectuurteam voor Hasselts museum gekozen
17 september 2012
TALKS about architecture organiseert twee lezingen in januari
12 december 2024
Doorkijkkerk voor landschap Borgloon
9 september 2011
Museumuitbreiding met sculpturaal monolithisch gebouw
9 september 2020
Oproep voor opmaak ontwikkelingsvisie Health campus Zuid
22 april 2021
Zeven finalisten EU Mies van der Rohe Award 2022 bekend
17 februari 2022
Expositie over ‘Verloren Ontwerpen’ in Hasselt
15 mei 2017
Veelomvattende solotentoonstelling Grcic in Z33
13 januari 2015
Ruimtelijke tape-installatie bij Z33
4 december 2012
Sotheby's New York verbouwt naar ontwerp OMA
26 februari 2019
Museum met ondergrondse expositieruimte voor Helsinki
29 augustus 2018
Ranke woongebouwen als schepen aan de kade
10 februari 2021
Een galerie waar wonen en tentoonstellen in elkaar overvloeien
10 april
Expositieruimte als coulissenlandschap
7 maart 2018
Een expositieruimte met een zilverkleurige toef
4 december 2017
Woongebouw met ruime wintertuinen in historisch Herkenrode
3 januari 2024
OMA realiseert evenementenruimte voor kunstzinnig Dubai
16 maart 2017
Uitwaaien in het klein
15 juni 2020
Evenement Brussels Design September zoekt het dichterbij
5 augustus 2020
WonderWoods Utrecht krijgt ruimte voor digitale kunst
25 augustus 2020
Ontwerper gezocht voor inrichting entreegebied Z33 in Hasselt
22 februari 2022
VenhoevenCS presenteert masterplan uitbreiding Corda Campus Hasselt
25 februari 2022
Belgen trekken stekker uit tramlijn Hasselt-Maastricht
24 mei 2022
Toon alles
Andere nieuwsberichten
Space&Matter ontwerpt ingetogen houten paviljoen voor BSO in Zeist
4 uur geleden
Aan de rand van het dorpscentrum van Zeist, in een door woningen omzoomd binnengebied, ontwerpt Space&Matter een nieuwe buitenschoolse opvang (BSO) en gymzaal.
MoederscheimMoonen Architects benoemt vijf associates
4 uur geleden
Om de basis van het groeiende bureau richting de toekomst te versterken heeft het nu vijf associates benoemd: Aldo Trim, Boy Hoffs, Maarten de Roij, Mike Pennings en Romano van den Dool.
ECHO Urban Design en RoosRos Architecten winnen tender Machinewerf Vlissingen
Gisteren, 16:30
ECHO Urban Design en RoosRos Architecten zijn samen met partners Leyten, Fullhouse, depart en Steenvlinder door de gemeente Vlissingen geselecteerd als winnende partner voor de ontwikkeling van locatie de Machinewerf in het Scheldekwartier.
The Rock Weespertrekvaart door Atelier PUUUR in gebruik genomen
Gisteren, 14:00
Nieuw huurcomplex van Atelier PUUUR in Amsterdam omvat appartementen, jongerenwoningen en ruimte voor jeugdhulp en jeugdgezondheidszorg.
Vervoersregio's Rotterdam, Den Haag en Amsterdam willen miljard extra voor OV
2 uur geleden
Volgens burgemeester Jan van Zanen van Den Haag is 500 miljoen euro extra nodig "om niet achteruit te gaan door indexering en bezuinigingen". En nog eens 500 miljoen euro is nodig "om het OV mee te laten groeien met het aantal inwoners.
Mogelijke proef zelfrijdende pendelbussen tussen station Hoofddorp en Schiphol Trade Park
Gisteren, 14:15
De provincie Noord-Holland onderzoekt of het zelfrijdende pendelbussen zonder chauffeur kan laten rijden in de buurt van Schiphol. Als dit qua veiligheid en techniek haalbaar is, wil de provincie in 2027 een proef starten.
Fietsflat bij Amsterdam Centraal wordt na 25 jaar gesloopt
Gisteren, 13:45
Voor de door VMX Architects ontworpen fietsenstalling is geen nieuwe plek gevonden. Daarom wordt de 'fietsflat' nu gesloopt.
Maastricht grootste stijger op lijst van beste steden om te wonen
Gisteren, 13:15
Op de ranglijst van de Atlas voor Gemeenten steeg Maastricht de afgelopen tien jaar van de 40e naar de 34e plek. Amsterdam staat stevig op de 1e plek van de lijst.
Minder infraprojecten gaan door na bezuinigingen Prinsjesdag
Gisteren, 10:40
Minder infrastructuurprojecten kunnen doorgaan door bezuinigingen die met Prinsjesdag zijn doorgevoerd. Dat staat in antwoorden op Kamervragen over de begroting van het Mobiliteitsfonds.
Om malafide grondspeculatie tegen te gaan, overweegt het kabinet een bedenktijd voor kopers van grond
Gisteren, 09:00
Grondhandelaren splitsen landbouwgrond vaker op in kleine stukjes en verkopen die dan door aan particulieren. De kopers kunnen dan ten onrechte denken dat de gemeente op de grond wil bouwen, terwijl dat niet zo is.
Ga naar het nieuws-archief
Robert Muis
Redacteur
0
0
0
0
Voor een optimale gebruikservaring plaatst Architectenweb functionele cookies. Wat de verschillende cookies precies doen leggen we uit in een
overzicht
. Cookies van social media kun je optioneel
aanzetten
.
Akkoord
Instellingen
Annuleren
OK
Sluiten
Doorgaan
Inloggen
Maak een gratis persoonlijk account aan
Feedback
Feedback
Wij horen graag jouw feedback. Laat je reactie achter en eventueel jouw e-mail adres.
Reactie
Verstuur