Projecten
Producten
Bedrijven
Vacatures
Agenda
Awards
Podcasts
more_horiz
Videos
Magazine
Thema's
Favorieten
Profiel
Uitloggen
Nieuw
Populair
Toon alles
Architectenweb magazine #14
Architectenweb magazine #13
Publieke gebouwen
Architectenweb magazine #12
Kantoren
Architectenweb magazine #11
Scholen
Architectenweb magazine #10
Zorg
Architectenweb magazine #14
Architectenweb magazine #10
Zorg
Architectenweb magazine #12
Kantoren
Architectenweb magazine #13
Publieke gebouwen
Architectenweb magazine #6
Transformatie en Renovatie
Om direct naar je favorieten te kunnen gaan is het nodig om eerst in te loggen.
Nieuw
Architectenweb Awards 2025
Architectenweb Awards 2024
Architectenweb Awards 2023
Architectenweb Awards 2022
Architectenweb Awards 2021
Architectenweb Awards 2020
Architectenweb Awards 2019
Architectenweb Awards 2018
Om direct naar je favorieten te kunnen gaan is het nodig om eerst in te loggen.
Nieuw
Populair
Favorieten
Toon alles
Vakwerk Architecten
Nominatie voor de prijs voor Architect van het Jaar 2025
Sanne van Manen
Nominatie voor de prijs voor Architect van het Jaar 2025
KSA
Nominatie voor de prijs voor Architect van het Jaar 2025
KRFT
Nominatie voor de prijs voor Architect van het Jaar 2025
Joost Ector
Nominatie voor de prijs voor Architect van het Jaar 2025
Prijsuitreiking Architectenweb Awards 2024
Impressie van een feestelijke avond
Martens, Willems & Humblé Architecten
Nominatie voor de prijs voor Architect van het Jaar 2024
Uitreiking van Architectenweb Awards 2020
Impressie van de prijsuitreiking via Zoom
De Zwarte Hond
Nominatie voor de prijs voor Architect van het Jaar 2024
Avond met De Zwarte Hond
Symposium
Om direct naar je favorieten te kunnen gaan is het nodig om eerst in te loggen.
Nieuw
Populair
Categorieën
Favorieten
Toon alles
ST1centrum
Dé specialist op het gebied van gevelstenen en dakpannen met showrooms in Amsterdam en Meppel
Studio Massimo
Architecture & Nature
Brandpreventie Academy BV
HoutPro+
Cay Circulaire Keukens
Circulaire keukens en pantry's
Studio Kirsten Reith
Interieurontwerp
Interior & Co
Cay Circulaire Keukens
Circulaire keukens en pantry's
Orange Automatic Doors
Studio175
Interieuradvies in regio Utrecht
Studio Kirsten Reith
Interieurontwerp
Brandpreventie Academy BV
Architecten
Architectuur
Mobiliteit en infrastructuur
Stedenbouw en landschapsarchitectuur
Leveranciers
Gevels
Daken
Ramen en deuren
Trappen, liften en balustrades
Binnenwanden
Vloeren
Plafonds
Verlichting
Sanitair
Projectinrichting
Installaties
Constructies
Buitenruimte
Software
Adviseurs
Bestekschrijvers
Bouwmanagement
Installatie adviseurs E
Bouwfysica
Calculators
Installatie adviseurs G/W
Bouwkundig tekenwerk
Constructeurs
Lichtadviseurs
Adviseur beveiliging
Juristen
Intermediairs, Payrolling
Aannemers
Overig
Presentatie
Instellingen / onderwijs
Overig
Om direct naar je favorieten te kunnen gaan is het nodig om eerst in te loggen.
Nieuw
Populair
Favorieten
Toon alles
Gesprek met Stephan Sliepenbeek over hoogbouw in Amstel III
Gesprek met Ellen van Bueren over gebiedsontwikkeling en hoogbouw
Gesprek met Ma Yansong over ontwerpen die emotie oproepen
Gesprek met Paul de Ruiter over innovatieve en duurzame hoogbouw
Gesprek met Pi de Bruijn over zijn ontwerpen voor de Tweede Kamer toen en nu
Gesprek met Ellen van Bueren over gebiedsontwikkeling en hoogbouw
Gesprek met Oresti Sarafopoulos over het ontwerpen van een kantoorgebouw met bijna geen installaties
Gesprek met Stijn Steenbakkers over verdichting en hoogbouw in Eindhoven
Gesprek met Pi de Bruijn over zijn ontwerpen voor de Tweede Kamer toen en nu
Gesprek met Paul de Ruiter over innovatieve en duurzame hoogbouw
Om direct naar je favorieten te kunnen gaan is het nodig om eerst in te loggen.
Nieuw
Populair
Categorieën
Favorieten
Toon alles
MBO-school Firda in stadion van Cambuur
Hoofdkantoor We Enable Climbers
Renovatie met respect voor oorspronkelijke ontwerp
Øbro-Hallen
ITO Toren Amsterdam
Boekweitkamp, Den Haag
Renovatieproject Ockenburghstraat
Exclusieve wooneenheden
De Grote Zwaan, Nijmegen
ASML Gebouw 3
Architectuur
Woningbouw
Zorg
Hotels
Restaurants en café’s
Winkels
Sportgebouwen
Culturele gebouwen
Overheidsgebouwen
Scholen
Kantoren
Bedrijfsgebouwen
Paviljoens en kunst
Overig
Mobiliteit en infrastructuur
Trein- en metrostations
Luchthavens
Busstations
Parkeergarages
Fietsparkeren
Wegen
Bruggen
Water
Energie
Tankstations en laadstations
Waterzuivering en afvalverwerking
Overig
Stedenbouw en landschapsarchitectuur
Regionale visies
Gebiedsvisies
Plannen stedelijk weefsel
Amusementsparken en dierentuinen
Lichtontwerpen
Openbare ruimte
Pleinen
Parken
Tuinen
Speelplaatsen
Uitkijktorens
Overige (bijv. begraafplaatsen)
Om direct naar je favorieten te kunnen gaan is het nodig om eerst in te loggen.
Nieuw
Populair
Categorieën
Favorieten
Toon alles
Circulaire ReCarp vloer
ReCarp: Circulaire Tapijttegels Herdefiniëren Design en Duurzaamheid
Niko Rocker en Niko Toggle
Niko introduceert twee nieuwe opvallende designschakelaars
Colorcoat Prisma Textured
Nieuwe structuurafwerking toegevoegd aan Tata Steel's Colorcoat Prisma® portfolio
Compact sectionaaldeur voor showrooms
Praktisch én mooi
Kvadrat Acoustics introduces Baffle
A pioneering acoustic concept for ceilings.
StoTherm Wood: cementvrij gevelsysteem met houtvezelisolatie
Biobased gevelisolatie met natuurlijke prestaties
Akoestisch kussen.
Ervaar de ultime natuurlijke oplossing voor akoestiek problemen.
Lumiglaze – Het vlakglas van VELUX Commercial
Een nieuw tijdperk in daglichtontwerp – minimalistisch, functioneel en klaar voor de toekomst.
Knauf MaxSpace
Minder wand, méér ruimte. Het ideale profiel voor meer winst per m²
Veelzijdig straatmeubilair
Van openbare ruimte naar (be)leefomgeving
Gevels
Gevelbekleding
Vliesgevels
Zonwering buiten
Isolatie
Gevelconstructies
Signing
Overig
Daken
Dakafwerkingen
Dakisolatie
Dakconstructies
Dakranden, dakgoten en HWA's
Dakramen
Lichtkoepels
Lichtstraten
Schoorstenen
Overig
Dakluiken
Ramen en deuren
Raam- en deursystemen / kozijnen
Vliesgevels
Hang- en sluitwerk
Beveiliging en luiken
Dorpels en vensterbanken
Lateien
Roosters
Glas
Dakramen
Dakkoepels
Lichtstraten
Zonwering buiten
Zonwering binnen
Buitendeuren
Binnendeuren
Postvakken en brievenbussen
Overig
Dakluiken
Trappen, liften en balustrades
Trappen
Roltrappen
Liften
Balustrades en hekwerken
Galerijen
Binnenwanden
Binnenwanden
Wandafwerking
Vloeren
Constructieve vloeren
Verhoogde vloeren
Vloerafwerkingen
Overig
Plafonds
Tegels
Lineair
Grill
Open en roosters
Naadloos
Eilanden en baffles
Plafondafwerkingen
Ophangsystemen
Overig
Klimaatplafonds
Verlichting
Binnenverlichting
Buitenverlichting
Sanitair
Kranen en douchesets
Wastafels
Douchewanden en douchebakken
Baden
Waterclosets
Accessoires
Overig
Projectinrichting
Stoelen
Banken
Tafels
Kasten
Balies
Vrijstaande wanden
Keukens
Accessoires
Overig
Cabines
Interieurbeplanting
Stoffering
Installaties
Verwarming, koeling en ventilatie
Elektrotechnische installaties
Schakelmateriaal
Domotica
Deurcommunicatie
Beveiliging
Liften
Onderhoudsinstallaties
Overig
Brandbeveiliging
Constructies
Draagconstructies
Funderingen en kelders
Overig
Brandbeveiliging
Buitenruimte
Bestratingen en verhardingen
Afwateringen
Terreinafscheidingen en geluidsschermen
Buitenmeubilair
Fietsparkeren
Terrassen
Terrasoverkappingen
Bruggen
Accessoires
Overig
Beplanting
Sport- en speeltoestellen
Software
Tekenen 2D
Modelleren 3D / BIM
Visualisatie / rendering
Parametrisch ontwerpen
Bouwfysica
Draagconstructie
Overig
Virtual Reality
Cloudoplossingen
Om direct naar je favorieten te kunnen gaan is het nodig om eerst in te loggen.
Nieuw
Populair
Favorieten
Toon alles
Prefab beurs - 7 t/m 9 oktober 2025
Brabanthallen 's-Hertogenbosch
Boekpresentatie en panelgesprek met Floor Milikowsky
Prins Hendrikkade 600, 1011 VX Amsterdam
Architects Table ’25: Lunch & Inspiratie in HAUT Amsterdam
ATAG LIVE – HAUT gebouw, Spaklerweg 10F, 1096 BA Amsterdam (tegenover metrostation Spaklerweg)
Inspiratiedag @ Sempergreen – Gevelgroen
Defensieweg 1, 3984 LR Odijk
Architectenweb symposium: klein maar fijn wonen?
Pakhuis de Zwijger
Ontdek het seminarieprogramma van Architect@Work Amsterdam
De Kromhouthal, Gedempt Hamerkanaal 231, Amsterdam
Architects Table ’25: Lunch & Inspiratie in HAUT Amsterdam
ATAG LIVE – HAUT gebouw, Spaklerweg 10F, 1096 BA Amsterdam (tegenover metrostation Spaklerweg)
Prefab beurs - 7 t/m 9 oktober 2025
Brabanthallen 's-Hertogenbosch
DigiBouw 2025 – hét event voor digitalisering in de bouwsector
Expozaal van het Beatrixgebouw in Utrecht
Architectenweb symposium: klein maar fijn wonen?
Pakhuis de Zwijger
Om direct naar je favorieten te kunnen gaan is het nodig om eerst in te loggen.
Nieuw
Toon alles
Design
Duurzaamheid
Gevel
Infrastructuur
Interieur
Kantoren
Leisure
Openbare ruimte
Publieke gebouwen
Scholen
Transformatie en Renovatie
Woningbouw
Zorg
Om direct naar je favorieten te kunnen gaan is het nodig om eerst in te loggen.
Nieuw
Populair
Toon alles
Medior Architect
Assistent Ontwerper (Junior Architect)
Ervaren Bouwkundig Tekenaar
9graden architectuur Amersfoort zoekt een bouwkundig modelleur
SVP zoekt bureauondersteuner
SVP zoekt medior stedenbouwkundige
Junior Architect (NL/EN)
De Academie van Bouwkunst Amsterdam zoekt twee onderzoekers voor lectoraat
Architect
Site Practice zoekt medior architect met 4-6 jaar ervaring (Amsterdam)
Junior Ontwerper
Studio Nauta zoekt projectleider
Om direct naar je favorieten te kunnen gaan is het nodig om eerst in te loggen.
Copyright: Marcel van der Burg
Copyright: Marcel van der Burg
Copyright: Marcel van der Burg
Copyright: Marcel van der Burg
Copyright: Marcel van der Burg
Copyright: Marcel van der Burg
Copyright: Marcel van der Burg
Copyright: Bob Ronday / Finbarr McComb
Woonark met open gevels en tribune
11 juli 2019, 14:06
Voor een particuliere opdrachtgever in Broek in Waterland hebben de architecten
Bob Ronday
en
Finbarr McComb
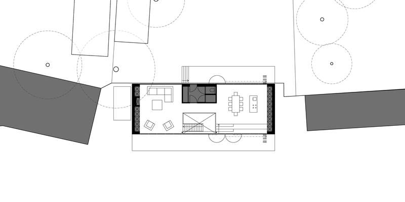
een woonark ontworpen. Doordat de ark aan de overkant van de vaart ligt en enkel toegankelijk is met een veerpontje, konden beide lange zijden van het bouwwerk bijna volledig open worden gemaakt.
Beide kopgevels zijn gesloten en kaderen ze de uitzichten over het oer-Hollandse landschap in. De plattegrond is in drie zones verdeeld: de woonkamer, het entreeblok met vide en de keuken. De keuken staat via een ruimte trap in verbinding met de vlonder. Als de grote harmonicapuien worden opengeschoven, ontstaat er een open tribune van zes bij drie meter aan het water.
De betonnen bak waar de boot op drijft zorgt voor een gelijkmatige temperatuur in de vertrekken beneden. De bovenverdieping is zo licht mogelijk uitgevoerd, met hoogwaardig glas dat isoleert en de zon tegenhoudt. De gevelbekleding is van onbehandeld western red cedar. Strakke aluminium vloer en dakranden maken het beeld compleet.
Trefwoorden
bob ronday
finbarr mccomb
woonboot
woonark
broek in waterland
Locatie
Best gelezen
1
Architectenweb symposium: klein maar fijn wonen?
donderdag, 2 oktober
2
Plan Spot belooft Lelystad bruisend centrumgebied
vrijdag, 3 oktober
3
‘NDSM-werf en Buiksloterham zijn júÃst inspirerende voorbeelden voor de stad van morgen’
vrijdag, 3 oktober
4
Realisatieovereenkomst voor hoogbouwcomplex De Sax op Wilhelminapier getekend
maandag, 6 oktober
5
We verdienen betere pers
dinsdag, 7 oktober
Gerelateerde nieuwsberichten
Villa met historisch voorkomen in hergebruikt hout
8 november 2022
Hedendaagse woningen met Zaandijks karakter
17 mei 2022
Winnaars Rotterdam Architectuurprijs 2015 bekend
16 december 2015
Gerenoveerde Nieuwe Margriet geopend
15 juni 2015
Multifunctionele uitbreiding voor kerk Groesbeek
19 mei 2015
Woonark met façade als een filmframe
23 februari 2016
Parkark verbindt privacy en uitzicht
13 mei 2014
Transparante woonboot om mee te cruisen
5 maart 2019
Vrachtschip verbouwd tot woonschip
14 september 2017
Villa met historisch voorkomen in hergebruikt hout
8 november 2022
Hedendaagse woningen met Zaandijks karakter
17 mei 2022
Winnaars Rotterdam Architectuurprijs 2015 bekend
16 december 2015
Gerenoveerde Nieuwe Margriet geopend
15 juni 2015
Multifunctionele uitbreiding voor kerk Groesbeek
19 mei 2015
Woonark met façade als een filmframe
23 februari 2016
Parkark verbindt privacy en uitzicht
13 mei 2014
Transparante woonboot om mee te cruisen
5 maart 2019
Vrachtschip verbouwd tot woonschip
14 september 2017
Toon alles
Andere nieuwsberichten
Zoetmulder vernieuwt Maastrichts herenhuis met eigentijdse uitbouw
4 uur geleden
In Maastricht heeft Zoetmulder een herenhuis verbouwd en uitgebreid met een uitbouw. Waar de gevel aan de voorzijde in de originele staat is behouden om het huis te blijven laten passen in het straatbeeld, is de achterzijde geheel vernieuwd.
Vier genomineerden voor de Abe Bonnema Architectuurprijs 2025
Vandaag, 13:00
Volgens de jury zijn de nominaties een toonbeeld van het jaarthema ‘ambitie’ en leveren zij een inspirerende bijdrage aan de ontwikkeling van een nieuwe bouwcultuur.
Nominaties Publiek gebouw van het Jaar 2025 bekend
Vandaag, 09:00
Als onderdeel van de Architectenweb Awards 2025 wordt begin november de prijs voor Publiek gebouw van het Jaar 2025 uitgereikt. Uit de vijfentwintig inzendingen voor deze prijs heeft de jury vier projecten genomineerd.
Door Gortemaker Feenstra Algra ontworpen Institut Roi Albert II in Brussel officieel geopend
Gisteren, 14:53
In dit centrum voor oncologie en hematologie is alle zorg op deze gebieden van het universitair ziekenhuis Saint-Luc op één locatie ondergebracht. Het H-vormige gebouw kenmerkt zich door een houten lamellengevel, afgewisseld met glas.
Do Janne Vermeulen verzorgt Rietveldlezing 2025
Vandaag, 11:28
De medeoprichter en directeur van Team V Architectuur spreekt op 13 november over de (houten) stad van morgen.
Eneco onderzoekt verkoop warmtenetten om nieuwe wet
Vandaag, 10:41
Door een eerder dit jaar aangenomen wet is het voor het bedrijf onzeker of investeringen zich nog terugverdienen.
Uitwerking van plannen voor Nedersaksenlijn kan beginnen
Gisteren, 12:17
Maandag is het startsein gegeven voor de eerste onderzoeken die uiteindelijk moeten leiden tot de spoorlijn die Groningen en Twente met elkaar verbindt.
Mona Keijzer lonkt naar investeerders op vastgoedbeurs in München
Gisteren, 10:02
"We moeten 1,6 miljoen woningen bouwen. Daarvoor hebben we buitenlandse investeerders nodig", stelt de demissionair minister.
Jongeren debatteren in het Nieuwe Instituut met Kamerleden over wonen
6 oktober, 2:26
Tot de thema’s die worden besproken, behoren betaalbaarheid, het creëren van meer woningen en de betrokkenheid van jongeren bij deze plannen.
GL-PvdA wil komende tien jaar 36 miljard uitgeven aan woningbouw
6 oktober, 10:10
Het grootste deel van het geld, 33 miljard euro, moet gaan naar publieke investeringen in de woningbouw.
Ga naar het nieuws-archief
Ronnie Weessies
Redacteur
1
0
0
0
Voor een optimale gebruikservaring plaatst Architectenweb functionele cookies. Wat de verschillende cookies precies doen leggen we uit in een
overzicht
. Cookies van social media kun je optioneel
aanzetten
.
Akkoord
Instellingen
Annuleren
OK
Sluiten
Doorgaan
Inloggen
Maak een gratis persoonlijk account aan
Feedback
Feedback
Wij horen graag jouw feedback. Laat je reactie achter en eventueel jouw e-mail adres.
Reactie
Verstuur