Projecten
Producten
Bedrijven
Vacatures
Agenda
Awards
Podcasts
more_horiz
Videos
Magazine
Thema's
Favorieten
Profiel
Uitloggen
Nieuw
Populair
Toon alles
Architectenweb magazine #14
Architectenweb magazine #13
Publieke gebouwen
Architectenweb magazine #12
Kantoren
Architectenweb magazine #11
Scholen
Architectenweb magazine #10
Zorg
Architectenweb magazine #14
Architectenweb magazine #10
Zorg
Architectenweb magazine #12
Kantoren
Architectenweb magazine #13
Publieke gebouwen
Architectenweb magazine #6
Transformatie en Renovatie
Om direct naar je favorieten te kunnen gaan is het nodig om eerst in te loggen.
Nieuw
Architectenweb Awards 2025
Architectenweb Awards 2024
Architectenweb Awards 2023
Architectenweb Awards 2022
Architectenweb Awards 2021
Architectenweb Awards 2020
Architectenweb Awards 2019
Architectenweb Awards 2018
Om direct naar je favorieten te kunnen gaan is het nodig om eerst in te loggen.
Nieuw
Populair
Favorieten
Toon alles
Vakwerk Architecten
Nominatie voor de prijs voor Architect van het Jaar 2025
Sanne van Manen
Nominatie voor de prijs voor Architect van het Jaar 2025
KSA
Nominatie voor de prijs voor Architect van het Jaar 2025
KRFT
Nominatie voor de prijs voor Architect van het Jaar 2025
Joost Ector
Nominatie voor de prijs voor Architect van het Jaar 2025
Prijsuitreiking Architectenweb Awards 2024
Impressie van een feestelijke avond
Martens, Willems & Humblé Architecten
Nominatie voor de prijs voor Architect van het Jaar 2024
Uitreiking van Architectenweb Awards 2020
Impressie van de prijsuitreiking via Zoom
De Zwarte Hond
Nominatie voor de prijs voor Architect van het Jaar 2024
Avond met De Zwarte Hond
Symposium
Om direct naar je favorieten te kunnen gaan is het nodig om eerst in te loggen.
Nieuw
Populair
Categorieën
Favorieten
Toon alles
ST1centrum
Dé specialist op het gebied van gevelstenen en dakpannen met showrooms in Amsterdam en Meppel
Studio Massimo
Architecture & Nature
Brandpreventie Academy BV
HoutPro+
Cay Circulaire Keukens
Circulaire keukens en pantry's
Studio Kirsten Reith
Interieurontwerp
Interior & Co
Studio175
Interieuradvies in regio Utrecht
Cay Circulaire Keukens
Circulaire keukens en pantry's
Studio Kirsten Reith
Interieurontwerp
Orange Automatic Doors
Brandpreventie Academy BV
Architecten
Architectuur
Mobiliteit en infrastructuur
Stedenbouw en landschapsarchitectuur
Leveranciers
Gevels
Daken
Ramen en deuren
Trappen, liften en balustrades
Binnenwanden
Vloeren
Plafonds
Verlichting
Sanitair
Projectinrichting
Installaties
Constructies
Buitenruimte
Software
Adviseurs
Bestekschrijvers
Bouwmanagement
Installatie adviseurs E
Bouwfysica
Calculators
Installatie adviseurs G/W
Bouwkundig tekenwerk
Constructeurs
Lichtadviseurs
Adviseur beveiliging
Juristen
Intermediairs, Payrolling
Aannemers
Overig
Presentatie
Instellingen / onderwijs
Overig
Om direct naar je favorieten te kunnen gaan is het nodig om eerst in te loggen.
Nieuw
Populair
Favorieten
Toon alles
Gesprek met Stephan Sliepenbeek over hoogbouw in Amstel III
Gesprek met Ellen van Bueren over gebiedsontwikkeling en hoogbouw
Gesprek met Ma Yansong over ontwerpen die emotie oproepen
Gesprek met Paul de Ruiter over innovatieve en duurzame hoogbouw
Gesprek met Pi de Bruijn over zijn ontwerpen voor de Tweede Kamer toen en nu
Gesprek met Ellen van Bueren over gebiedsontwikkeling en hoogbouw
Gesprek met Oresti Sarafopoulos over het ontwerpen van een kantoorgebouw met bijna geen installaties
Gesprek met Stijn Steenbakkers over verdichting en hoogbouw in Eindhoven
Gesprek met Pi de Bruijn over zijn ontwerpen voor de Tweede Kamer toen en nu
Gesprek met Paul de Ruiter over innovatieve en duurzame hoogbouw
Om direct naar je favorieten te kunnen gaan is het nodig om eerst in te loggen.
Nieuw
Populair
Categorieën
Favorieten
Toon alles
Smart Lighting voor kantoorcampus Tripolis Park
700 modulaire lichtstraten gebruikt Icône kantoor
Duurzaam logistiek centrum vol daglicht
Renovatie parkeergarage WTC Beursplein, Rotterdam
MBO-school Firda in stadion van Cambuur
Boekweitkamp, Den Haag
Exclusieve wooneenheden
De Grote Zwaan, Nijmegen
Renovatieproject Ockenburghstraat
ASML Gebouw 3
Architectuur
Woningbouw
Zorg
Hotels
Restaurants en café’s
Winkels
Sportgebouwen
Culturele gebouwen
Overheidsgebouwen
Scholen
Kantoren
Bedrijfsgebouwen
Paviljoens en kunst
Overig
Mobiliteit en infrastructuur
Trein- en metrostations
Luchthavens
Busstations
Parkeergarages
Fietsparkeren
Wegen
Bruggen
Water
Energie
Tankstations en laadstations
Waterzuivering en afvalverwerking
Overig
Stedenbouw en landschapsarchitectuur
Regionale visies
Gebiedsvisies
Plannen stedelijk weefsel
Amusementsparken en dierentuinen
Lichtontwerpen
Openbare ruimte
Pleinen
Parken
Tuinen
Speelplaatsen
Uitkijktorens
Overige (bijv. begraafplaatsen)
Om direct naar je favorieten te kunnen gaan is het nodig om eerst in te loggen.
Nieuw
Populair
Categorieën
Favorieten
Toon alles
DINrail Zigbee dimmer
Centrale dimoplossing voor slimme verlichting
De nieuwe Gira G1.
Sneller. Groter. Sterker.
HomeComfort
Create your ambiance in a touch
Next Generation USB C opladers
De Next Generation USB C opladers: snel, compact and efficiënt
D31TDV- en D31TDH IP-video deurintercom systemen
Innovatie voor appartementencomplexen en grote gebouwen
StoTherm Wood: cementvrij gevelsysteem met houtvezelisolatie
Biobased gevelisolatie met natuurlijke prestaties
StoTherm Wood: cementvrij gevelsysteem met houtvezelisolatie
Biobased gevelisolatie met natuurlijke prestaties
StoTherm Wood: cementvrij gevelsysteem met houtvezelisolatie
Biobased gevelisolatie met natuurlijke prestaties
Akoestisch kussen.
Ervaar de ultime natuurlijke oplossing voor akoestiek problemen.
Akoestisch kussen.
Ervaar de ultime natuurlijke oplossing voor akoestiek problemen.
Akoestisch kussen.
Ervaar de ultime natuurlijke oplossing voor akoestiek problemen.
Knauf MaxSpace
Minder wand, méér ruimte. Het ideale profiel voor meer winst per m²
Knauf MaxSpace
Minder wand, méér ruimte. Het ideale profiel voor meer winst per m²
Knauf MaxSpace
Minder wand, méér ruimte. Het ideale profiel voor meer winst per m²
Lumiglaze – Het vlakglas van VELUX Commercial
Een nieuw tijdperk in daglichtontwerp – minimalistisch, functioneel en klaar voor de toekomst.
Lumiglaze – Het vlakglas van VELUX Commercial
Een nieuw tijdperk in daglichtontwerp – minimalistisch, functioneel en klaar voor de toekomst.
Lumiglaze – Het vlakglas van VELUX Commercial
Een nieuw tijdperk in daglichtontwerp – minimalistisch, functioneel en klaar voor de toekomst.
Veelzijdig straatmeubilair
Van openbare ruimte naar (be)leefomgeving
Veelzijdig straatmeubilair
Van openbare ruimte naar (be)leefomgeving
Veelzijdig straatmeubilair
Van openbare ruimte naar (be)leefomgeving
Gevels
Gevelbekleding
Vliesgevels
Zonwering buiten
Isolatie
Gevelconstructies
Signing
Overig
Daken
Dakafwerkingen
Dakisolatie
Dakconstructies
Dakranden, dakgoten en HWA's
Dakramen
Lichtkoepels
Lichtstraten
Schoorstenen
Overig
Dakluiken
Ramen en deuren
Raam- en deursystemen / kozijnen
Vliesgevels
Hang- en sluitwerk
Beveiliging en luiken
Dorpels en vensterbanken
Lateien
Roosters
Glas
Dakramen
Dakkoepels
Lichtstraten
Zonwering buiten
Zonwering binnen
Buitendeuren
Binnendeuren
Postvakken en brievenbussen
Overig
Dakluiken
Trappen, liften en balustrades
Trappen
Roltrappen
Liften
Balustrades en hekwerken
Galerijen
Binnenwanden
Binnenwanden
Wandafwerking
Vloeren
Constructieve vloeren
Verhoogde vloeren
Vloerafwerkingen
Overig
Plafonds
Tegels
Lineair
Grill
Open en roosters
Naadloos
Eilanden en baffles
Plafondafwerkingen
Ophangsystemen
Overig
Klimaatplafonds
Verlichting
Binnenverlichting
Buitenverlichting
Sanitair
Kranen en douchesets
Wastafels
Douchewanden en douchebakken
Baden
Waterclosets
Accessoires
Overig
Projectinrichting
Stoelen
Banken
Tafels
Kasten
Balies
Vrijstaande wanden
Keukens
Accessoires
Overig
Cabines
Interieurbeplanting
Stoffering
Installaties
Verwarming, koeling en ventilatie
Elektrotechnische installaties
Schakelmateriaal
Domotica
Deurcommunicatie
Beveiliging
Liften
Onderhoudsinstallaties
Overig
Brandbeveiliging
Constructies
Draagconstructies
Funderingen en kelders
Overig
Brandbeveiliging
Buitenruimte
Bestratingen en verhardingen
Afwateringen
Terreinafscheidingen en geluidsschermen
Buitenmeubilair
Fietsparkeren
Terrassen
Terrasoverkappingen
Bruggen
Accessoires
Overig
Beplanting
Sport- en speeltoestellen
Software
Tekenen 2D
Modelleren 3D / BIM
Visualisatie / rendering
Parametrisch ontwerpen
Bouwfysica
Draagconstructie
Overig
Virtual Reality
Cloudoplossingen
Om direct naar je favorieten te kunnen gaan is het nodig om eerst in te loggen.
Nieuw
Populair
Favorieten
Toon alles
Prefab beurs - 7 t/m 9 oktober 2025
Brabanthallen 's-Hertogenbosch
Boekpresentatie en panelgesprek met Floor Milikowsky
Prins Hendrikkade 600, 1011 VX Amsterdam
Architects Table ’25: Lunch & Inspiratie in HAUT Amsterdam
ATAG LIVE – HAUT gebouw, Spaklerweg 10F, 1096 BA Amsterdam (tegenover metrostation Spaklerweg)
Inspiratiedag @ Sempergreen – Gevelgroen
Defensieweg 1, 3984 LR Odijk
Architectenweb symposium: klein maar fijn wonen?
Pakhuis de Zwijger
Ontdek het seminarieprogramma van Architect@Work Amsterdam
De Kromhouthal, Gedempt Hamerkanaal 231, Amsterdam
Prefab beurs - 7 t/m 9 oktober 2025
Brabanthallen 's-Hertogenbosch
Architects Table ’25: Lunch & Inspiratie in HAUT Amsterdam
ATAG LIVE – HAUT gebouw, Spaklerweg 10F, 1096 BA Amsterdam (tegenover metrostation Spaklerweg)
DigiBouw 2025 – hét event voor digitalisering in de bouwsector
Expozaal van het Beatrixgebouw in Utrecht
Boekpresentatie en panelgesprek met Floor Milikowsky
Prins Hendrikkade 600, 1011 VX Amsterdam
Om direct naar je favorieten te kunnen gaan is het nodig om eerst in te loggen.
Nieuw
Toon alles
Design
Duurzaamheid
Gevel
Infrastructuur
Interieur
Kantoren
Leisure
Openbare ruimte
Publieke gebouwen
Scholen
Transformatie en Renovatie
Woningbouw
Zorg
Om direct naar je favorieten te kunnen gaan is het nodig om eerst in te loggen.
Nieuw
Populair
Toon alles
Medior Architect
Assistent Ontwerper (Junior Architect)
Ervaren Bouwkundig Tekenaar
9graden architectuur Amersfoort zoekt een bouwkundig modelleur
SVP zoekt bureauondersteuner
SVP zoekt medior stedenbouwkundige
Junior Architect (NL/EN)
De Academie van Bouwkunst Amsterdam zoekt twee onderzoekers voor lectoraat
Architect
Site Practice zoekt medior architect met 4-6 jaar ervaring (Amsterdam)
Junior Ontwerper
Studio Nauta zoekt projectleider
Om direct naar je favorieten te kunnen gaan is het nodig om eerst in te loggen.
Copyright: Iwan Baan
Copyright: Iwan Baan
Copyright: Iwan Baan
Copyright: Iwan Baan
Copyright: Iwan Baan
Copyright: Iwan Baan
Copyright: Iwan Baan
Copyright: Iwan Baan
Copyright: Iwan Baan
Copyright: Iwan Baan
Copyright: Heatherwick Studio
Copyright: Heatherwick Studio
Copyright: Heatherwick Studio
Copyright: Heatherwick Studio
Copyright: Heatherwick Studio
Copyright: Heatherwick Studio
Museum 'uitgehakt' in oud silocomplex Kaapstad
15 september 2017, 13:52
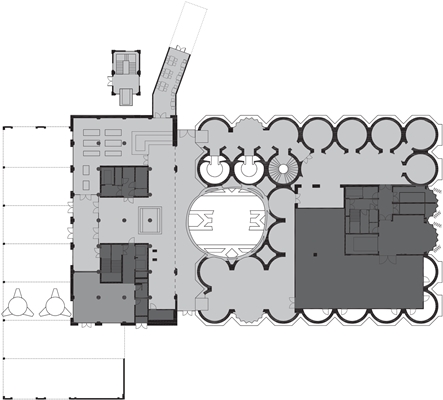
In Kaapstad wordt over een week het Zeitz Museum voor hedendaagse Afrikaanse kunst (MOCAA) geopend. Naar ontwerp van
Heatherwick Studio
is een voormalig graansilocomplex omgebouwd tot een multifunctioneel museumcomplex. Het museum is ‘uitgehakt’ in de silobuizen van het markante gebouw.
Het exterieur van het monumentale complex, dat eens het hoogste gebouw van Zuid-Afrika is geweest, is op de ramen na intact gelaten. De 42 buizen in het gebouw, waarvan de binnenkant in het verleden logischerwijs niet zichtbaar waren, zijn opengewerkt. In de ontstane ruimtes zijn expositieruimtes en de centrale verkeersruimte van het MOCAA gerealiseerd.
De volumes van de 33 meter hoge buizen (met een doorsnede van 5,5 meter) zijn in het interieur niet meer te ervaren. Wel dienen delen van enkele buizen als decoratief onderdeel van het centrale atrium, waar alle museumruimtes omheen zijn gegroepeerd. Het museum is 9.500 vierkante meter groot, telt negen verdiepingen en tachtig tentoonstellingszalen.
Het MOCAA omvat de grootste collectie Afrikaanse kunst en kunst uit de Afrikaanse diaspora ter wereld. Behalve het museum zijn er centra voor onder andere fotografie in het complex ondergebracht. Tot de overige functies behoren een restaurant, een boekwinkel, een beeldentuin op het dak en leeszalen. Het gebouw staat in het toeristische hart van Kaapstad, V&A Waterfront.
Met de realisatie van het MOCAA was omgerekend een kleine 32 miljoen euro gemoeid. Het museum is een initiatief van V&A Waterfront en de voormalige Puma-topman Jochen Zeitz. De kunstcollectie van laatstgenoemde wordt de meest uitgebreide en representatieve collectie hedendaagse Afrikaanse kunst genoemd.
Trefwoorden
transformatie
kaapstad
museum
heatherwick studio
zuid-afrika
Best gelezen
1
Architectenweb symposium: klein maar fijn wonen?
donderdag, 2 oktober
2
Plan Spot belooft Lelystad bruisend centrumgebied
vrijdag, 3 oktober
3
‘NDSM-werf en Buiksloterham zijn júÃst inspirerende voorbeelden voor de stad van morgen’
vrijdag, 3 oktober
4
Nominaties Publiek gebouw van het Jaar 2025 bekend
woensdag, 8 oktober
5
Realisatieovereenkomst voor hoogbouwcomplex De Sax op Wilhelminapier getekend
maandag, 6 oktober
Gerelateerde nieuwsberichten
Moderne appartementen in een industrieel geraamte
1 maart 2018
Plan voor hotel op silo's CHV-terrein Veghel
2 februari 2018
Project Londense ‘parkbrug’ afgeblazen
14 augustus 2017
Expo 2010: het Britse paviljoen
4 mei 2010
Heatherwick ontwerpt Afrikaans museum in silo’s
4 maart 2014
Bouwstart in Benin van groot conferentieoord naar ontwerp Moke Architecten
8 april 2021
Moderne appartementen in een industrieel geraamte
1 maart 2018
Plan voor hotel op silo's CHV-terrein Veghel
2 februari 2018
Project Londense ‘parkbrug’ afgeblazen
14 augustus 2017
Expo 2010: het Britse paviljoen
4 mei 2010
Heatherwick ontwerpt Afrikaans museum in silo’s
4 maart 2014
Bouwstart in Benin van groot conferentieoord naar ontwerp Moke Architecten
8 april 2021
Toon alles
Andere nieuwsberichten
Nog twee dagen om jouw stem uit te brengen voor de Architect van het Jaar 2025!
1 uur geleden
De nominaties voor de prijs voor Architect van het Jaar 2025 zijn: Joost Ector, KSA, KRFT, Sanne van Manen en Vakwerk Architecten. Bekijk nu de video’s waarin de genomineerden zich voorstellen en breng jouw stem uit!
bureau SLA ontdekt, transformeert en gebruikt rijksmonumentale werkplaats
2 uur geleden
Woon-werkruimte op Hembrugterrein in Zaandam toont radicale vernieuwing in erfgoedbeheer en duurzame bouw
Zoetmulder vernieuwt Maastrichts herenhuis met eigentijdse uitbouw
Gisteren, 15:07
In Maastricht heeft Zoetmulder een herenhuis verbouwd en uitgebreid met een uitbouw. Waar de gevel aan de voorzijde in de originele staat is behouden om het huis te blijven laten passen in het straatbeeld, is de achterzijde geheel vernieuwd.
Vier genomineerden voor de Abe Bonnema Architectuurprijs 2025
Gisteren, 13:00
Volgens de jury zijn de nominaties een toonbeeld van het jaarthema ‘ambitie’ en leveren zij een inspirerende bijdrage aan de ontwikkeling van een nieuwe bouwcultuur.
Do Janne Vermeulen verzorgt Rietveldlezing 2025
Gisteren, 11:28
De medeoprichter en directeur van Team V Architectuur spreekt op 13 november over de (houten) stad van morgen.
Eneco onderzoekt verkoop warmtenetten om nieuwe wet
Gisteren, 10:41
Door een eerder dit jaar aangenomen wet is het voor het bedrijf onzeker of investeringen zich nog terugverdienen.
Uitwerking van plannen voor Nedersaksenlijn kan beginnen
7 oktober, 12:17
Maandag is het startsein gegeven voor de eerste onderzoeken die uiteindelijk moeten leiden tot de spoorlijn die Groningen en Twente met elkaar verbindt.
Mona Keijzer lonkt naar investeerders op vastgoedbeurs in München
7 oktober, 10:02
"We moeten 1,6 miljoen woningen bouwen. Daarvoor hebben we buitenlandse investeerders nodig", stelt de demissionair minister.
Jongeren debatteren in het Nieuwe Instituut met Kamerleden over wonen
6 oktober, 2:26
Tot de thema’s die worden besproken, behoren betaalbaarheid, het creëren van meer woningen en de betrokkenheid van jongeren bij deze plannen.
GL-PvdA wil komende tien jaar 36 miljard uitgeven aan woningbouw
6 oktober, 10:10
Het grootste deel van het geld, 33 miljard euro, moet gaan naar publieke investeringen in de woningbouw.
Ga naar het nieuws-archief
Ronnie Weessies
Redacteur
0
0
0
0
Voor een optimale gebruikservaring plaatst Architectenweb functionele cookies. Wat de verschillende cookies precies doen leggen we uit in een
overzicht
. Cookies van social media kun je optioneel
aanzetten
.
Akkoord
Instellingen
Annuleren
OK
Sluiten
Doorgaan
Inloggen
Maak een gratis persoonlijk account aan
Feedback
Feedback
Wij horen graag jouw feedback. Laat je reactie achter en eventueel jouw e-mail adres.
Reactie
Verstuur