Projecten
Producten
Bedrijven
Vacatures
Agenda
Awards
Podcasts
more_horiz
Videos
Magazine
Favorieten
Profiel
Uitloggen
Abonneer je nu op onze nieuwsbrieven!
Abonneren
Nee, bedankt
Ja, denk met me mee rond de
materialisering van mijn project
Copyright: 3D Studio Prins
Copyright: 3D Studio Prins
Copyright: 3D Studio Prins
Copyright: 3D Studio Prins
Copyright: 3D Studio Prins
Copyright: 3D Studio Prins
Copyright: 3D Studio Prins
Copyright: 3D Studio Prins
Copyright: 3D Studio Prins
Copyright: 3D Studio Prins
Copyright: 3D Studio Prins
Copyright: 3D Studio Prins
Copyright: 3D Studio Prins
Copyright: 3D Studio Prins
Bouw LocHal Tilburg van start gegaan
22 mei 2017, 15:18
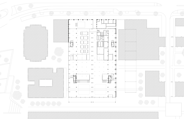
Afgelopen vrijdag is de bouw van de LocHal in Tilburg van start gegaan. De monumentale voormalige treinwerkplaats van de Nederlandse Spoorwegen wordt het nieuwe onderkomen van een bibliotheek en instellingen die gelieerd zijn aan kunst, cultuur, kennisontwikkeling en ondernemerschap. Binnen de contouren van de industriële locomotiefloods worden onder andere een stadshal, werkplekken en expositieruimtes gerealiseerd.
Dat heeft het team
Civic Architects
/The Cloud Collective,
Braaksma & Roos Architectenbureau
,
Arup
en
Inside Oudside - Petra Blaisse
bekendgemaakt. Dit samenwerkingsverband is verantwoordelijk voor het ontwerp van de transformatie van het gebouw. Mecanoo architecten is aangetrokken voor
het interieur van de bibliotheek
, zo werd eerder deze maand bekend.
Naast de bibliotheek krijgen het brabants kenniscentrum kunst en cultuur, de Kunstbalie en seats2meet (een bedrijf dat werkplekken en vergaderruimtes aanbiedt voor bedrijven en particulieren) een plaats in het gebouw. Het gebouw moet een pioniersfunctie in de ontwikkeling van de Spoorzone vervullen en zal aan alle vier zijden publieke routes en plekken activeren en verbinden.
Het ruimtelijk ontwerp sluit aan bij het idee van een open en productieve werkplaatsen, zo laten de betrokken ontwerpers weten. Het traplandschap, de publieke werkplaatsen en de ateliers ondersteunen het concept van ‘kennis halen, kennis maken en co-creatie’. De ateliers, met alle een geheel eigen sfeer, liggen verspreid door het gehele gebouw en organiseren het functioneren van de instellingen, collectie en exposities.
Om het gebouw geschikt te maken voor divers gebruik en klimaatcomfort te bieden voor de gebruikers, wordt plaatselijk en adaptief ingegrepen. De open stadshal krijgt een tussenklimaat dat past bij diens functie als overdekt forum. Zitplekken op de trap worden verwarmd en gekoeld en kantoren hebben een eigen subklimaat.
Naar verwachting wordt de LocHal in juli volgend jaar geopend voor publiek.
Trefwoorden
spoorzone
spoorzone tilburg
lochal
tilburg
Best gelezen
1
44 woningen op bosrijke locatie in Driebergen
vrijdag, 15 mei
2
Parkeerplein naast Tilburgse schouwburg maakt plaats voor multifunctionele gebouwen
woensdag, 13 mei
3
Neprom-prijs 2026 toegekend aan De Groene Loper Maastricht
maandag, 11 mei
4
Vandersalm Architecten herinterpreteert historisch erf bij Zwolse stadsboerderij
maandag, 11 mei
5
Woningbouwproject Switi trekt 'verloren strook' alsnog bij de omgeving
maandag, 11 mei
Gerelateerde nieuwsberichten
Tilburgse LocHal is ruimtelijke ontmoetings- en werkplek
21 januari 2019
Video en nieuwe foto's van LocHal Tilburg
25 april 2019
Boek over 'verweven stad' Tilburg gepresenteerd
12 december 2018
Groeseind Tilburg 'fris en groen' na herstructurering
12 februari 2018
Herbestemming van de Polygonale Loods in Tilburg voltooid
12 december 2017
Mecanoo ontwerpt interieur bibliotheek LocHal
15 mei 2017
Samenwerking Tilburg en Brabant in Spoorzone
6 juli 2016
Bouw Clarissenhof Spoorzone Tilburg van start
24 maart 2016
Groen licht voor renovatie LocHal Tilburg
3 februari 2016
Tilburg koopt glazen zaal Beurs van Berlage
30 januari 2015
Tilburgse LocHal is ruimtelijke ontmoetings- en werkplek
21 januari 2019
Video en nieuwe foto's van LocHal Tilburg
25 april 2019
Boek over 'verweven stad' Tilburg gepresenteerd
12 december 2018
Groeseind Tilburg 'fris en groen' na herstructurering
12 februari 2018
Herbestemming van de Polygonale Loods in Tilburg voltooid
12 december 2017
Mecanoo ontwerpt interieur bibliotheek LocHal
15 mei 2017
Samenwerking Tilburg en Brabant in Spoorzone
6 juli 2016
Bouw Clarissenhof Spoorzone Tilburg van start
24 maart 2016
Groen licht voor renovatie LocHal Tilburg
3 februari 2016
Tilburg koopt glazen zaal Beurs van Berlage
30 januari 2015
Toon alles
Andere nieuwsberichten
Tien nominaties voor NRP Gulden Feniks 2026
15 mei, 2:20
In november wijst de jury een aantal winnaars aan uit deze selectie voor de nationale prijs voor renovatie en transformatie van de gebouwde omgeving.
Nieuwe Instituut brengt rijkscollectie architectuur en stedenbouw tot leven in Collection Gallery
15 mei, 1:17
Op donderdag 18 juni opent het Nieuwe Instituut de zogeheten Collection Gallery. In deze nieuwe interactieve ruimte wil de instelling in Rotterdam de Rijkscollectie voor Nederlandse Architectuur en Stedenbouw tot leven brengen.
44 woningen op bosrijke locatie in Driebergen
15 mei, 9:26
De gemeente Utrechtse Heuvelrug selecteerde het plan Bosrand Heidestein. Het team dat het ontwerp en de realisatie verzorgt, bestaat uit KRKTR Projectontwikkeling, Reuvers Ontwik-keling en Bouw, MIX architectuur, MAAK space, Merosch en Kwirkey.
Vijf finalisten voor Heuvelinkprijs 2026
13 mei, 3:06
De finalisten voor de Heuvelinkprijs 2026 zijn bekend. Vijf projecten komen in aanmerking voor deze editie van de tweejaarlijkse Arnhemse nieuwbouwprijs.
ITA Ensemble speelt 'De Architect' van sterregisseur Rebecca Frecknall
15 mei, 3:11
De voorstelling is een hedendaagse bewerking van Henirik Ibsens 'Bouwmeester Solness'.
Commissie: milieustudie Schiphol schiet tekort voor omwonenden
15 mei, 12:08
De Commissie voor de milieueffectrapportage stelt zelfs dat het rapport herzien zou moeten worden.
Koen Pörtzgen benoemd tot partner bij Zecc Architecten
15 mei, 10:15
Samen met Marnix van der Meer (54) en Bart Kellerhuis (47) vormt de 39-jarige Pörtzgen vanaf dit jaar de directie van het Utrechtse bureau.
Consortium met RxDomi en TU/e ontwikkelt netbewuste woning
13 mei, 2:56
In het project CoLiBRIE ontwikkelt een consortium, met onder meer RxDomi en TU/e, een nieuw type woning die comfortabel, duurzaam en betaalbaar is, zonder het energienet extra te belasten.
Minimaal half miljard extra nodig voor verbreding A27
13 mei, 1:38
Op het traject van 47 kilometer moeten extra rijbanen komen om de dagelijkse files te verlichten. Ook worden bruggen vervangen.
RVO constateert laagste groei windenergie op land in jaren
13 mei, 10:02
De uitbreiding van windenergie op land in Nederland is op een historisch laag niveau.
Ga naar het nieuws-archief
Ronnie Weessies
Redacteur
1
0
0
0
Voor een optimale gebruikservaring plaatst Architectenweb functionele cookies. Wat de verschillende cookies precies doen leggen we uit in een
overzicht
. Cookies van social media kun je optioneel
aanzetten
.
Akkoord
Instellingen
Annuleren
OK
Sluiten
Doorgaan
Inloggen
Maak een gratis persoonlijk account aan
Feedback
Feedback
Wij horen graag jouw feedback. Laat je reactie achter en eventueel jouw e-mail adres.
Reactie
Verstuur