Projecten
Producten
Bedrijven
Vacatures
Agenda
Awards
Podcasts
more_horiz
Videos
Magazine
Thema's
Favorieten
Profiel
Uitloggen
Abonneer je nu op onze nieuwsbrieven!
Abonneren
Nee, bedankt
Ja, denk met me mee rond de
materialisering van mijn project
Copyright: Jannes Linders
Copyright: Jannes Linders
Copyright: Jannes Linders
Copyright: Jannes Linders
Copyright: Jannes Linders
Copyright: Jannes Linders
Copyright: Jannes Linders
Copyright: Jannes Linders
Copyright: Jannes Linders
Copyright: Jannes Linders
Copyright: Jannes Linders
Copyright: Jannes Linders
Copyright: Jannes Linders
Copyright: Greiner Van Goor Huijten Architecten
Copyright: Jannes Linders
Copyright: Jannes Linders
Copyright: Jannes Linders
Copyright: Jannes Linders
Copyright: Begane grond, bestaande situatie. Greiner Van Goor Huijten Architecten
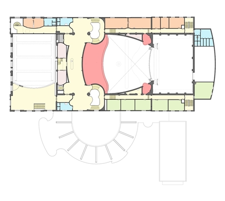
Copyright: Begane grond, nieuwe situatie. Greiner Van Goor Huijten Architecten
Copyright: Verdieping, bestaande situatie. Greiner Van Goor Huijten Architecten
Copyright: Verdieping, nieuwe situatie. Greiner Van Goor Huijten Architecten
Copyright: Doorsnede BB, bestaande situatie. Greiner Van Goor Huijten Architecten
Copyright: Doorsnede BB, nieuwe situatie. Greiner Van Goor Huijten Architecten
Grootscheepse restauratie Kunstmin afgerond
17 december 2014, 11:30
Theatergebouw Kunstmin in Dordrecht is na een grootscheepse restauratie onlangs heropend. Het gebouw voldoet nu aan de huidige eisen, waarbij
Greiner Van Goor Huijten Architecten
respectvol is omgegaan met de bijzondere, functionalistische en toch barokke architectuur van Sybold van Ravensteyn. Martien van Goor leidde Architectenweb rond door het gebouw.
door Robert Muis
Het negentiende-eeuwse theatergebouw heeft in de jaren negentig nog een verbouwing ondergaan, maar die heeft de exploitatie van de Kunstmin in Dordrecht niet kunnen verbeteren. "Gelukkig is besloten om het gebouw te behouden en geschikt te maken voor de komende decennia", zegt Martien van Goor, architect-directeur bij Greiner Van Goor Huijten Architecten. " De Kunstmin is diep verankerd in Dordrecht."
Het architectenbureau kreeg vier jaar geleden de opdracht voor de restauratie van de Kunstmin, die onlangs is afgerond. Geen eenvoudige restauratie, want het voldoen aan de huidige toneeltechnische en ruimtelijke eisen vroeg om ingrijpende aanpassingen. "Daarbij maak je soms moeilijke afwegingen", legt Van Goor uit, "Omdat de monumentale kwaliteit en het bijzondere karakter van Van Ravensteyns architectuur moeten worden behouden."
Akoestische problemen
"Schouwburg Kunstmin in de vorm zoals wij die kennen is in 1890 geopend", vertelt Van Goor. "Een streng, neorenaissancistisch gebouw, ontworpen door de Rotterdammer Jan Verheul. De ingang zat netjes in het midden van de voorgevel. Er was een grote concertzaal met een toneel. Er werd steeds meer theater geprogrammeerd, maar daar was de zaal akoestisch eigenlijk niet geschikt voor. Men heeft men dat nog geprobeerd op te lossen met een inventief naar voren verrijdbaar toneel, maar stemmen bleven slecht hoorbaar." In 1937 kregen akoesticus Professor Zwikker en de architect Sybold van Ravensteyn de opdracht voor een renovatie.
Van Ravensteyn heeft de zaal ingekort en een balkon geïntroduceerd om toch het gewenste aantal van 750 zitplaatsen te bereiken. De ruimte die vrijkwam – bij de oorspronkelijke ingang aan de voorzijde – heeft hij gebruikt voor een feestzaal. Als nieuwe entree ontwierp hij een paviljoenachtige foyer.
"Van Ravensteyns architectuur kenmerkt zich door een functionalistisch ontwerp, duidelijk aansluitend bij het Nieuwe Bouwen, in combinatie met barokke vormen in bijvoorbeeld de trappen en beeldhouwwerken." Het theatergebouw werd in 1940 heropend. Herhaaldelijk volgden verbouwingen en uitbreidingen; in de jaren negentig werd de feestzaal een 'black box' en werd een achtertoneel toegevoegd.
Luciferdoosje
Voor de huidige restauratie gold een Plan van Eisen, dat (deels) is gebaseerd op adviezen van het bureau Theateradvies. De kleedkamers aan weerszijden van de toneelvloer zijn weggenomen, waardoor het toneel nu over de volle breedte van het gebouw loopt. Tevens is het toneel verlaagd tot het laad- en losniveau voor vrachtwagens. Het toneelhuis is verhoogd. "De toneeltoren hebben we als een luciferdoosje uit de bestaande toren geschoven", vertelt Van Goor.
De uitbreiding naar boven is bekleed met wit gecoat glas, wat zorgt voor een fascinerend effect. Het glas lijkt te veranderen van kleur naar gelang de weersomstandigheden. Soms valt de uitbreiding weg tegen de lucht, zoals de architect ook beoogde. De bestaande vensters in het gemetselde deel van de toren heeft de architect ingevuld met hetzelfde glas, wat het 'luciferdoosje'-effect versterkt.
Het restaureren van het monumentale gebouw betekende ook het herstellen van de fundering – hetgeen circa een jaar in beslag heeft genomen – en het dichten van scheuren in de gevel; verder zijn installaties vervangen en interieuronderdelen, zoals de plafonds in de grote zaal, gerestaureerd. Tevens is onderzoek gedaan oorspronkelijke kleuren en decoraties.
Uitbreidingen die na Van Ravensteyns ingrepen zijn toegevoegd, heeft Greiner Van Goor Huijten Architecten gesloopt. Het bureau heeft nieuwbouw in de lijn van het oorspronkelijke gebouw ontworpen. "Het is nu één volume; oud- en nieuwbouw zijn in ramen en metselwerk familie, maar hebben een andere detaillering en steensoort", zegt Van Goor. De trappenhuizen bevinden zich achter een glazen strook tussen de oudbouw en de nieuwe uitbreiding. De nieuwbouw bevat de expeditie, het achtertoneel, de kleedkamers, de artiestenfoyer en kantoren.
Zalen
In de zaal heeft het architectenbureau de toneelopening met loges behouden. Het toneel is niet alleen 92 centimeter verlaagd, tevens is het een vlakke vloer geworden. Bijgevolg moest ook de zaalvloer worden verlaagd en is het balkon steiler gemaakt voor betere zichtlijnen. Daardoor moesten hier en daar de betimmering en tegelwanden worden aangeheeld.
De stoelen, ontworpen door Van Ravensteyn, zijn gerestaureerd; de gangpaden, die tussen de stoelen liepen, lopen nu langs de wanden zodat er meer zitplaatsen en goede zichtlijnen zijn. De plafonds zijn hersteld en onzichtbaar van akoestisch materiaal voorzien. In de zaal – net als de foyers – zijn de wanden na kleurenonderzoek teruggebracht naar de oorspronkelijke tinten: zandkleurige schakeringen in plaats van wit.
De kleine zaal is met een inschuifbare tribune multifunctioneel inzetbaar – voor kleinere voorstellingen, maar ook voor recepties en dergelijke. De oorspronkelijke ramen in deze zaal zijn weer te gebruiken en zorgen voor daglicht indien gewenst. Onder de voormalige feestzaal zijn de garderobe en toiletten gesitueerd. Door de zaal iets op te tillen heeft het architectenbureau een goede zichtrelatie vanuit de foyer gerealiseerd. Van Goor: "We wilden niet dat mensen het gevoel hebben in een kelder te moeten afdalen." Jurgen Bey, die het interieurontwerp voor de gerestaureerde Kunstmin heeft gemaakt, wilde de garderoberuimte blauw. Zelfs de originele garderoberekken zijn deels blauw geverfd; in overleg met Monumentenzorg met een wegneembare verf.
Contrast
Studio Makkink & Bey heeft het interieur van de foyers en de ruimtes voor artiesten en personeel ontworpen. Daartoe behoorden de vloerbedekking, bars en losse meubels. In de verschillende ruimtes zijn andere kleurencombinaties toegepast. "We hebben Makkink & Bey gevraagd omdat ze buiten de gebaande paden treden. Ze zorgen voor een bijzondere toevoeging, een contrast maar met gevoel voor Van Ravensteijn", legt Van Goor uit.
Voor het paviljoen heeft Studio Makkink & Bey een houten vloer ontworpen. Van Goor: "Van Ravensteyn gebruikte verschillende materialen bij elkaar. Kijk naar de kolommen in de foyer: marmer, koper, mozaiek en een tl-rand. Dat zie je bij de overgang van het paviljoen naar het hoofdgebouw in de vloer terug: op een paar meter verandert de vloer van hout naar travertijn naar tapijt. Daar heeft Makkink & Bey nog eens ander hout aan toegevoegd. Het lijkt veel, maar het werkt."
Trefwoorden
makkink & bey
studio makkink & bey
greiner van goor huijten architecten
theatergebouw
restauratie
sybold van ravesteyn
interieur
theater
theateradvies b.v.
jan verheul
dordrecht
kunstmin
Locatie
Best gelezen
1
Architect Oliver Thill op 55-jarige leeftijd overleden
donderdag, 5 maart
2
André Kempe: ‘Het ging Oliver Thill om het geven van betekenis’
vrijdag, 6 maart
3
Werkstatt gaat verder zonder medeoprichter Niels Groeneveld
vrijdag, 6 maart
4
HvdHA ontwerpt twee woonblokken in Utrecht Terwijde volgens typologie van woonpalazzo
donderdag, 5 maart
5
Woongebouw door van Bergen Kolpa vormt nieuwe markering langs bocht Rotte
dinsdag, 10 maart
Gerelateerde nieuwsberichten
Martien van Goor (1944-2025) stelde het belang van een project boven zijn ego
7 januari
Renovatie Stadsschouwburg Nijmegen dringend noodzakelijk
9 november 2021
Vier nieuwe gemalen op Texel opgeleverd
16 juli 2019
De thuiswerkplek: Studio Makkink & Bey
19 mei 2020
Een utopisch archief van Makkink & Bey
18 augustus 2016
Installatie voor Gaultier door Makkink & Bey
1 april 2015
Transparante gemalen voor Texel
6 januari 2015
Onderwijsmuseum in monumentaal kantoorgebouw
17 november 2015
Restauratie dikhuidenvleugel Blijdorp gestart
16 november 2012
Drie VKG Architectenprijzen uitgereikt
4 december 2013
Meer ruimte en licht voor zijfoyer Carré
14 augustus 2014
Rotterdam Centraal laat niemand onberoerd
14 maart 2014
Klaasje Zevenster Amstelveen herontwikkeld
13 oktober 2014
Woonhuis Sybold van Ravesteyn opengesteld als museumwoning
28 augustus 2019
Martien van Goor (1944-2025) stelde het belang van een project boven zijn ego
7 januari
Renovatie Stadsschouwburg Nijmegen dringend noodzakelijk
9 november 2021
Vier nieuwe gemalen op Texel opgeleverd
16 juli 2019
De thuiswerkplek: Studio Makkink & Bey
19 mei 2020
Een utopisch archief van Makkink & Bey
18 augustus 2016
Installatie voor Gaultier door Makkink & Bey
1 april 2015
Transparante gemalen voor Texel
6 januari 2015
Onderwijsmuseum in monumentaal kantoorgebouw
17 november 2015
Restauratie dikhuidenvleugel Blijdorp gestart
16 november 2012
Drie VKG Architectenprijzen uitgereikt
4 december 2013
Meer ruimte en licht voor zijfoyer Carré
14 augustus 2014
Rotterdam Centraal laat niemand onberoerd
14 maart 2014
Klaasje Zevenster Amstelveen herontwikkeld
13 oktober 2014
Woonhuis Sybold van Ravesteyn opengesteld als museumwoning
28 augustus 2019
Toon alles
Andere nieuwsberichten
Groningen stelt gebiedsvisie voor wijk De Nieuwe Held vast
Gisteren, 15:45
In vijftien jaar tijd wil de gemeente 1.850 woningen bouwen in de nieuwe wijk aan de westkant van de stad. De verwachting is dat de bouw eind 2027, begin 2028 kan starten.
Bouw paviljoen van Atelier PUUUR met buurtfunctie en voorzieningen gestart
Gisteren, 14:06
In Amsterdam Noord is de bouw gestart van een paviljoen naar ontwerp van Atelier PUUUR met daarin een Ouder- en Kindteamlocatie en een buurtkamer. Het tweelaagse gebouw markeert tevens de entree van een naastgelegen groengebied.
Zeven ontwerpteams aan de slag met herontwikkeling Bernhardkazerne Amersfoort
Gisteren, 11:44
Het opleidings- en trainingscentrum van de Koninklijke Landmacht, dat uit meerdere gebouwen bestaat, is dringend toe aan modernisering. De zeven bureaus werken alle aan een deelopdracht binnen het masterplan voor de kazerne.
Kantoorcomplex door Goof Spruit bij station Utrecht krijgt tweede leven als De Nieuwe Tuin
Gisteren, 10:26
In het ontwerp van BiermanHenket behoudt het complex zijn kenmerkende honingraatstructuur, maar krijgt het een opener karakter. Ook wordt het gebouw zowel binnen als buiten vergroend.
Raad van State blokkeert plan voor verbouwing ring Utrecht
Gisteren, 16:31
Vorig jaar kreeg het kabinet de opdracht om de stikstofuitstoot van het project beter uit te leggen, maar dat is niet gelukt.
Provincie akkoord met natuurherstel voor nieuwe ASML-campus
Gisteren, 12:30
De provincie Noord-Brabant stemt in met het plan waarmee chipmachinefabrikant ASML natuur wil compenseren bij de realisatie van de nieuwe campus.
CBS: uitstoot gestegen in 2025, klimaatdoelen verder uit zicht
Gisteren, 09:20
Vorig jaar werd er 0,8 procent meer broeikasgassen uitgestoten dan in 2024.
Renovatie Belgisch Justitiepaleis loopt op tot zeshonderd miljoen euro
10 maart, 2:33
Het Justitiepaleis in Brussel is ruim 140 jaar oud en staat al meer dan veertig jaar in de steigers.
Zuid-Holland stemt in met bouwplannen 285.000 huizen tot 2036
10 maart, 12:12
Het college van Gedeputeerde Staten stemde in met 2333 ingediende plannen, omdat ze voldoen aan de provinciale regels in het omgevingsbeleid.
Fors meer omzet bouwbedrijf Dura Vermeer door grote vraag
10 maart, 9:48
Volgens het familiebedrijf uit Rotterdam steeg de jaaromzet met 24 procent tot 2,6 miljard euro.
Ga naar het nieuws-archief
0
0
0
0
Voor een optimale gebruikservaring plaatst Architectenweb functionele cookies. Wat de verschillende cookies precies doen leggen we uit in een
overzicht
. Cookies van social media kun je optioneel
aanzetten
.
Akkoord
Instellingen
Annuleren
OK
Sluiten
Doorgaan
Inloggen
Maak een gratis persoonlijk account aan
Feedback
Feedback
Wij horen graag jouw feedback. Laat je reactie achter en eventueel jouw e-mail adres.
Reactie
Verstuur