Projecten
Producten
Bedrijven
Vacatures
Agenda
Awards
Podcasts
more_horiz
Videos
Magazine
Thema's
Favorieten
Profiel
Uitloggen
Nieuw
Populair
Toon alles
Architectenweb magazine #14
Architectenweb magazine #13
Publieke gebouwen
Architectenweb magazine #12
Kantoren
Architectenweb magazine #11
Scholen
Architectenweb magazine #10
Zorg
Architectenweb magazine #14
Architectenweb magazine #10
Zorg
Architectenweb magazine #12
Kantoren
Architectenweb magazine #13
Publieke gebouwen
Architectenweb magazine #6
Transformatie en Renovatie
Om direct naar je favorieten te kunnen gaan is het nodig om eerst in te loggen.
Nieuw
Architectenweb Awards 2025
Architectenweb Awards 2024
Architectenweb Awards 2023
Architectenweb Awards 2022
Architectenweb Awards 2021
Architectenweb Awards 2020
Architectenweb Awards 2019
Architectenweb Awards 2018
Om direct naar je favorieten te kunnen gaan is het nodig om eerst in te loggen.
Nieuw
Populair
Favorieten
Toon alles
Vakwerk Architecten
Nominatie voor de prijs voor Architect van het Jaar 2025
Sanne van Manen
Nominatie voor de prijs voor Architect van het Jaar 2025
KSA
Nominatie voor de prijs voor Architect van het Jaar 2025
KRFT
Nominatie voor de prijs voor Architect van het Jaar 2025
Joost Ector
Nominatie voor de prijs voor Architect van het Jaar 2025
Prijsuitreiking Architectenweb Awards 2024
Impressie van een feestelijke avond
Martens, Willems & Humblé Architecten
Nominatie voor de prijs voor Architect van het Jaar 2024
Uitreiking van Architectenweb Awards 2020
Impressie van de prijsuitreiking via Zoom
De Zwarte Hond
Nominatie voor de prijs voor Architect van het Jaar 2024
Avond met De Zwarte Hond
Symposium
Om direct naar je favorieten te kunnen gaan is het nodig om eerst in te loggen.
Nieuw
Populair
Categorieën
Favorieten
Toon alles
Brandpreventie Academy BV
Cay Circulaire Keukens
Circulaire keukens en pantry's
Studio Kirsten Reith
Interieurontwerp
Studio175
Interieuradvies in regio Utrecht
Orange Automatic Doors
Indoorwrap
De specialist in Keukenwrappen
Cay Circulaire Keukens
Circulaire keukens en pantry's
Studio Kirsten Reith
Interieurontwerp
Studio175
Interieuradvies in regio Utrecht
Interior & Co
Orange Automatic Doors
Indoorwrap
De specialist in Keukenwrappen
Architecten
Architectuur
Mobiliteit en infrastructuur
Stedenbouw en landschapsarchitectuur
Leveranciers
Gevels
Daken
Ramen en deuren
Trappen, liften en balustrades
Binnenwanden
Vloeren
Plafonds
Verlichting
Sanitair
Projectinrichting
Installaties
Constructies
Buitenruimte
Software
Adviseurs
Bestekschrijvers
Bouwmanagement
Installatie adviseurs E
Bouwfysica
Calculators
Installatie adviseurs G/W
Bouwkundig tekenwerk
Constructeurs
Lichtadviseurs
Adviseur beveiliging
Juristen
Intermediairs, Payrolling
Aannemers
Overig
Presentatie
Instellingen / onderwijs
Overig
Om direct naar je favorieten te kunnen gaan is het nodig om eerst in te loggen.
Nieuw
Populair
Favorieten
Toon alles
Gesprek met Stephan Sliepenbeek over hoogbouw in Amstel III
Gesprek met Ellen van Bueren over gebiedsontwikkeling en hoogbouw
Gesprek met Ma Yansong over ontwerpen die emotie oproepen
Gesprek met Paul de Ruiter over innovatieve en duurzame hoogbouw
Gesprek met Pi de Bruijn over zijn ontwerpen voor de Tweede Kamer toen en nu
Gesprek met Ellen van Bueren over gebiedsontwikkeling en hoogbouw
Gesprek met Oresti Sarafopoulos over het ontwerpen van een kantoorgebouw met bijna geen installaties
Gesprek met Stijn Steenbakkers over verdichting en hoogbouw in Eindhoven
Gesprek met Pi de Bruijn over zijn ontwerpen voor de Tweede Kamer toen en nu
Gesprek met Paul de Ruiter over innovatieve en duurzame hoogbouw
Om direct naar je favorieten te kunnen gaan is het nodig om eerst in te loggen.
Nieuw
Populair
Categorieën
Favorieten
Toon alles
Exclusieve wooneenheden
Ottho Amsterdam
Kleurrijke renovatie kantoor
Van verouderd kantoor naar een moderne uitstraling
Woningen op BEFU terrein Utrecht
Prinsenpark, Rotterdam
ASML Gebouw 3
IVY, Amsterdam
IKC De Brug
Houthavens, Amsterdam
Architectuur
Woningbouw
Zorg
Hotels
Restaurants en café’s
Winkels
Sportgebouwen
Culturele gebouwen
Overheidsgebouwen
Scholen
Kantoren
Bedrijfsgebouwen
Paviljoens en kunst
Overig
Mobiliteit en infrastructuur
Trein- en metrostations
Luchthavens
Busstations
Parkeergarages
Fietsparkeren
Wegen
Bruggen
Water
Energie
Tankstations en laadstations
Waterzuivering en afvalverwerking
Overig
Stedenbouw en landschapsarchitectuur
Regionale visies
Gebiedsvisies
Plannen stedelijk weefsel
Amusementsparken en dierentuinen
Lichtontwerpen
Openbare ruimte
Pleinen
Parken
Tuinen
Speelplaatsen
Uitkijktorens
Overige (bijv. begraafplaatsen)
Om direct naar je favorieten te kunnen gaan is het nodig om eerst in te loggen.
Nieuw
Populair
Categorieën
Favorieten
Toon alles
Lumiglaze – Het vlakglas van VELUX Commercial
Een nieuw tijdperk in daglichtontwerp – minimalistisch, functioneel en klaar voor de toekomst.
Akoestisch kussen.
Ervaar de ultime natuurlijke oplossing voor akoestiek problemen.
Knauf MaxSpace
Minder wand, méér ruimte. Het ideale profiel voor meer winst per m²
Veelzijdig straatmeubilair
Van openbare ruimte naar (be)leefomgeving
Gevelplinten
Geïsoleerd of ongeïsoleerd
Digital Prints
Meer mogelijkheden in gekleurd staal
Element+ H-I
Hout - Aluminium Elementgevel
Vierkante vluchtroutearmaturen voor grote ruimtes
Zichtbare veiligheid van alle kanten
Schüco Zonweringsysteem Integralmaster in FWS
Bescherming tegen zon, verblinding en privacy – verborgen en volledig geïntegreerd
Dictator deuropeningsbegrenzers
Controle over elke deuropening
Gevels
Gevelbekleding
Vliesgevels
Zonwering buiten
Isolatie
Gevelconstructies
Signing
Overig
Daken
Dakafwerkingen
Dakisolatie
Dakconstructies
Dakranden, dakgoten en HWA's
Dakramen
Lichtkoepels
Lichtstraten
Schoorstenen
Overig
Dakluiken
Ramen en deuren
Raam- en deursystemen / kozijnen
Vliesgevels
Hang- en sluitwerk
Beveiliging en luiken
Dorpels en vensterbanken
Lateien
Roosters
Glas
Dakramen
Dakkoepels
Lichtstraten
Zonwering buiten
Zonwering binnen
Buitendeuren
Binnendeuren
Postvakken en brievenbussen
Overig
Dakluiken
Trappen, liften en balustrades
Trappen
Roltrappen
Liften
Balustrades en hekwerken
Galerijen
Binnenwanden
Binnenwanden
Wandafwerking
Vloeren
Constructieve vloeren
Verhoogde vloeren
Vloerafwerkingen
Overig
Plafonds
Tegels
Lineair
Grill
Open en roosters
Naadloos
Eilanden en baffles
Plafondafwerkingen
Ophangsystemen
Overig
Klimaatplafonds
Verlichting
Binnenverlichting
Buitenverlichting
Sanitair
Kranen en douchesets
Wastafels
Douchewanden en douchebakken
Baden
Waterclosets
Accessoires
Overig
Projectinrichting
Stoelen
Banken
Tafels
Kasten
Balies
Vrijstaande wanden
Keukens
Accessoires
Overig
Cabines
Interieurbeplanting
Stoffering
Installaties
Verwarming, koeling en ventilatie
Elektrotechnische installaties
Schakelmateriaal
Domotica
Deurcommunicatie
Beveiliging
Liften
Onderhoudsinstallaties
Overig
Brandbeveiliging
Constructies
Draagconstructies
Funderingen en kelders
Overig
Brandbeveiliging
Buitenruimte
Bestratingen en verhardingen
Afwateringen
Terreinafscheidingen en geluidsschermen
Buitenmeubilair
Fietsparkeren
Terrassen
Terrasoverkappingen
Bruggen
Accessoires
Overig
Beplanting
Sport- en speeltoestellen
Software
Tekenen 2D
Modelleren 3D / BIM
Visualisatie / rendering
Parametrisch ontwerpen
Bouwfysica
Draagconstructie
Overig
Virtual Reality
Cloudoplossingen
Om direct naar je favorieten te kunnen gaan is het nodig om eerst in te loggen.
Nieuw
Populair
Favorieten
Toon alles
LIAG over duurzaamheid centraal in project
Online
Zomerwandelingen Nieuwe Stad op Zondag 2025
Amsterdam
Prefab beurs - 7 t/m 9 oktober 2025
Brabanthallen 's-Hertogenbosch
Boekpresentatie en panelgesprek met Floor Milikows
Prins Hendrikkade 600, 1011 VX Amsterdam
Architects Table ’25: Lunch & Inspiratie in HAUT Amsterdam
ATAG LIVE – HAUT gebouw, Spaklerweg 10F, 1096 BA Amsterdam (tegenover metrostation Spaklerweg)
Architects Table ’25: Lunch & Inspiratie in HAUT Amsterdam
ATAG LIVE – HAUT gebouw, Spaklerweg 10F, 1096 BA Amsterdam (tegenover metrostation Spaklerweg)
Ontdek het seminarieprogramma van Architect@Work Amsterdam
De Kromhouthal, Gedempt Hamerkanaal 231, Amsterdam
LIAG over duurzaamheid centraal in project
Online
1.Lectures HouseEurope! Renovate, don’t speculate
Pakhuis de Zwijger
Carbon Stories: Architects taking sustainable initiatives
Keilepand Rotterdam
Om direct naar je favorieten te kunnen gaan is het nodig om eerst in te loggen.
Nieuw
Toon alles
Design
Duurzaamheid
Gevel
Infrastructuur
Interieur
Kantoren
Leisure
Openbare ruimte
Publieke gebouwen
Scholen
Transformatie en Renovatie
Woningbouw
Zorg
Om direct naar je favorieten te kunnen gaan is het nodig om eerst in te loggen.
Nieuw
Populair
Toon alles
BIM/REVIT-modelleur
Bureaumanager
Nederlandstalige projectleider
Medior Technisch Interieurtekenaar
architect / interieurarchitect Amsterdam
(assistent) Architect by Bassie Architectuur in Gouda.
Junior Architect gezocht!
wUrck zoekt junior Architect
Project Architect
Shift zoekt medior/senior architect
Assistent Ontwerper & vakidioot
Architect
Om direct naar je favorieten te kunnen gaan is het nodig om eerst in te loggen.
Copyright: MLA+
Copyright: MLA+
Copyright: MLA+
Copyright: MLA+
Copyright: MLA+
Copyright: MLA+
Copyright: MLA+
Copyright: MLA+
Copyright: MLA+
Copyright: MLA+
Copyright: MLA+
Copyright: MLA+
MLA+ wint ontwerpprijsvraag Guanlan-rivier
6 maart 2014, 16:52
MLA+
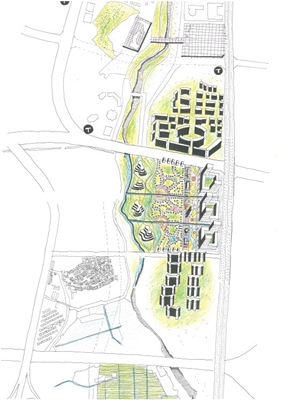
heeft de ontwerpprijsvraag voor de Guanlan River Eco-Cultural Corridor in de Chinese stad Shenzhen gewonnen. Het Rotterdamse bureau werd geselecteerd uit vijf gegadigden. Het gaat om de ontwikkeling van een gebied aan weerszijden van de rivier Guanlan.
Het 15,9 vierkante kilometer omvattend plangebied kampt als gevolg van ongebreidelde groei en gebrek aan toezicht kampt het gebied op dit moment met ernstige problemen. “De rivier is sterk vervuild en wordt gezien als een belemmering voor de ontwikkeling van nabijgelegen bebouwing”, vertelt MLA+.
In het plan ‘A city facing the river’ wordt niet uitgegaan van een tabula rasa-strategie, zoals gebruikelijk is in China, maar van een transformatie die voortborduurt op het huidige stedelijk weefsel. De komende maanden gaat MLA+ met lokale bewoners en andere betrokkenen werken aan een gedetailleerd ontwerp.
Het project is aangemerkt als sleutelproject van Longhua-district in Shenzhen en wordt financieel gesteund door de overheid.
Trefwoorden
mla
china
shenzhen
Locatie
Best gelezen
1
Na renovatie en verduurzaming heeft Aquarium van Artis zijn helderheid terug
donderdag, 25 september
2
Architectenweb symposium: klein maar fijn wonen?
donderdag, 25 september
3
Kabinet wil wijken erbij op 127 plekken in Nederland
maandag, 29 september
4
KAAN Architecten wint aanbesteding voor gebouw Europees parlement
maandag, 29 september
5
Startsein gegeven voor bouw De Scharnier op Katendrecht
maandag, 29 september
Gerelateerde nieuwsberichten
Bouw tweede project OMA in Shenzhen gestart
24 juli 2014
BIG ontwerpt gebouw energiebedrijf Shenzhen
8 september 2009
'Koolhaas'-beurs Shenzhen vooral symbolisch
2 januari 2007
Transparante toren met doorlopend atrium
2 november 2010
Groene buurman voor Chinese toren OMA
4 augustus 2010
Chinese terminal van Fuksas in gebruik
27 november 2013
'Voorzichtige' transformatie voor Chinees plein
11 december 2009
Spectaculaire terminal Fuksas in Shenzhen
14 april 2008
Mecanoo ontwerpt cultuurcentrum Shenzhen
19 mei 2011
Shenzhen Stock Exchange (OMA) opgeleverd
8 oktober 2013
Chinese opdracht voor Coop Himmelb(l)au
19 februari 2009
Mecanoo wint prijsvraag zakencentrum China
12 mei 2009
OMA ontwerpt kantoorgebouw in Shenzhen
6 februari 2013
Toparchitecten slaan slag, pech voor OMA
4 oktober 2007
KuiperCompagnons wint prijsvraag in China
6 september 2007
OMA wint prijsvraag Crystal Island
19 juni 2009
KCAP vernieuwt twee wijken in Shenzhen
4 mei 2011
Bouw Shenzhen Stock Exchange ingeluid
26 november 2007
INTI organiseert congres over Shenzhen
6 november 2014
Grote opdrachten MLA+ in China en Rusland
3 december 2014
China investeert miljarden in urbanisatie
17 maart 2014
Video: Markus Appenzeller over Shenzhen
23 januari 2015
Bouwstart voor enorm woonblok MLA+ in Shenzhen
16 maart 2016
MLA+ en Openfabric winnen competitie in Shenzhen
27 maart 2014
MLA+ en Felixx winnen competitie Shenzhen
12 augustus 2016
MLA+ wint prijsvraag herinrichting Shenyan Road
25 juli 2019
Bouw tweede project OMA in Shenzhen gestart
24 juli 2014
BIG ontwerpt gebouw energiebedrijf Shenzhen
8 september 2009
'Koolhaas'-beurs Shenzhen vooral symbolisch
2 januari 2007
Transparante toren met doorlopend atrium
2 november 2010
Groene buurman voor Chinese toren OMA
4 augustus 2010
Chinese terminal van Fuksas in gebruik
27 november 2013
'Voorzichtige' transformatie voor Chinees plein
11 december 2009
Spectaculaire terminal Fuksas in Shenzhen
14 april 2008
Mecanoo ontwerpt cultuurcentrum Shenzhen
19 mei 2011
Shenzhen Stock Exchange (OMA) opgeleverd
8 oktober 2013
Chinese opdracht voor Coop Himmelb(l)au
19 februari 2009
Mecanoo wint prijsvraag zakencentrum China
12 mei 2009
OMA ontwerpt kantoorgebouw in Shenzhen
6 februari 2013
Toparchitecten slaan slag, pech voor OMA
4 oktober 2007
KuiperCompagnons wint prijsvraag in China
6 september 2007
OMA wint prijsvraag Crystal Island
19 juni 2009
KCAP vernieuwt twee wijken in Shenzhen
4 mei 2011
Bouw Shenzhen Stock Exchange ingeluid
26 november 2007
INTI organiseert congres over Shenzhen
6 november 2014
Grote opdrachten MLA+ in China en Rusland
3 december 2014
China investeert miljarden in urbanisatie
17 maart 2014
Video: Markus Appenzeller over Shenzhen
23 januari 2015
Bouwstart voor enorm woonblok MLA+ in Shenzhen
16 maart 2016
MLA+ en Openfabric winnen competitie in Shenzhen
27 maart 2014
MLA+ en Felixx winnen competitie Shenzhen
12 augustus 2016
MLA+ wint prijsvraag herinrichting Shenyan Road
25 juli 2019
Toon alles
Andere nieuwsberichten
EGM architecten voltooit duurzame renovatie rijksmonument Moreelsepark
2 uur geleden
De hoogwaardige renovatie van Utrechts kantoorpand brengt monumentale architectuur en Paris Proof-ambitie samen
Nudus en Proof of the Sum geselecteerd voor groot laboratoriumgebouw Groningen
Vandaag, 11:00
Een team met onder meer Nudus en Proof of the Sum is geselecteerd voor het ontwerp van het nieuwe Centraal Laboratorium voor Diagnostiek en Research (CLDR) op de Healthy Ageing Campus in Groningen.
Nieuwe editie van DigiBouw vindt plaats op 19 en 20 november in Utrecht
Vandaag, 09:59
AI, robotisering, parametrisch ontwerpen en bouwen, verandermanagement, veiligheid, open standaarden, BIM, slimme bouwlogistiek, CO2-reductie op de bouwplaats… dat zijn de thema’s die aan bod komen bij DigiBouw.
Nominaties Interieur van het Jaar 2025 bekend
Vandaag, 09:00
Als onderdeel van de Architectenweb Awards 2025 wordt begin november de prijs voor Interieur van het Jaar 2025 uitgereikt. Uit de achttien inzendingen voor deze prijs heeft de jury drie projecten genomineerd.
Zuid-Holland wil in ‘oogstjaar’ 2026 plannen uitvoeren
52 minuten geleden
De provincie investeert onder meer in infrastructuur, woningbouw, natuur en versterking van kleine kernen.
Rijk schrijft aanbesteding uit voor nieuwe marinierskazerne
1 uur geleden
Eind 2031 wil het Korps Mariniers vanuit zijn huidige kazerne in Doorn verhuizen naar een nieuw onderkomen op de bestaande Defensielocatie Kamp Nieuw-Milligen vlakbij Apeldoorn.
Landschapstriënnale 2026 strijkt neer in Arnhem
4 uur geleden
Het thema van de komende editie van de manifestatie is ‘Op Waterbasis’.
Veelzijdig ontwerper Mathieu Bruls verzorgt 21e Peutz-lezing
30 september, 3:05
Bruls (1960) is een veelzijdig ontwerper, die naast gebouwen en stedenbouwkundige plannen onder meer interieurs, meubels en tentoonstellingen ontwerpt.
Rekenkamer betwijfelt of miljoenen voor Woningbouwimpuls nuttig waren
30 september, 12:03
Het is ‘twijfelachtig’ of honderden miljoenen euro's overheidsgeld hebben geleid tot meer woningen, schrijft de Rekenkamer.
Rapport: rijke Amsterdammers leven steeds vaker apart van rest
30 september, 9:44
Het wel of niet bezitten van een woning zorgt voor een steeds grotere welvaartskloof tussen Amsterdammers.
Ga naar het nieuws-archief
0
0
0
0
Voor een optimale gebruikservaring plaatst Architectenweb functionele cookies. Wat de verschillende cookies precies doen leggen we uit in een
overzicht
. Cookies van social media kun je optioneel
aanzetten
.
Akkoord
Instellingen
Annuleren
OK
Sluiten
Doorgaan
Inloggen
Maak een gratis persoonlijk account aan
Feedback
Feedback
Wij horen graag jouw feedback. Laat je reactie achter en eventueel jouw e-mail adres.
Reactie
Verstuur