Projecten
Producten
Bedrijven
Vacatures
Agenda
Awards
Podcasts
more_horiz
Videos
Magazine
Thema's
Favorieten
Profiel
Uitloggen
Abonneer je nu op onze nieuwsbrieven!
Abonneren
Nee, bedankt
Ja, denk met me mee rond de
materialisering van mijn project
Copyright: Boris Zeisser
Copyright: Boris Zeisser
Copyright: Boris Zeisser
Copyright: Boris Zeisser
Copyright: Boris Zeisser
Copyright: Boris Zeisser
Copyright: Boris Zeisser
Copyright: Boris Zeisser
Copyright: Boris Zeisser
Copyright: Boris Zeisser
Tekening: 24h architecture
Tekening: 24h architecture
24h geeft bestaande school ‘natuurlijke’ draai
15 augustus 2013, 15:56
Om een regulier schoolgebouw in Leiden geschikt te maken om als Vrije School te dienen, heeft
24h architecture
de bestaande, rechthoekige structuur verrijkt met twee bolvormige volumes die extra programma huisvesten.
De natuur vormt voor 24h architecture een belangrijke inspiratiebron. Een paviljoen met een dak als een boomblad, een gevel als wuivend riet, een interieur als een grot… het natuurlijke komt in het werk van het bureau steeds op een andere manier terug. De gebruikte metaforen zijn daarbij altijd afgestemd op hun functie, betekenis en context. Ze zijn daardoor functioneler dan ze op het eerste gezicht misschien lijken.
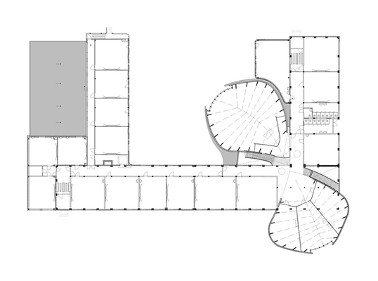
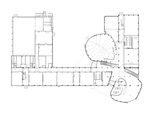
In Leiden was het Marecollege, een middelbare Vrije School, door stedelijke ontwikkelingen gedwongen om te verhuizen. In plaats van een heel nieuw gebouw te betrekken, is ervoor gekozen een bestaand schoolgebouw uit de jaren zestig aan de Sumatrastraat te transformeren. Het nieuwe schoolgebouw is in totaal 3800 vierkante meter groot en huisvest 450 leerlingen.
Bladpatronen
“De ontwerpstrategie was om het bestaande gebouw een nieuw gezicht te geven met de nieuw te realiseren ruimtes, zowel aan de buitenkant als in het interieur”, schrijft 24h in een verklaring. “Alle 32 klaslokalen hebben een speciaal ontworpen houten plafond en een frisse scholen-systeem dat de leerlingen verse, zuurstofrijke lucht levert voor maximale concentratie.”
In de bestaande gevels springen de nieuwe houten accenten in het oog. Deze gevels zullen over de jaren overgroeid worden door een hedera. De gevel aan het binnenplein is helemaal vernieuwd. Door het hout hier een profilering te geven vormt deze bladpatronen. De functie van de profilering – schaduw bieden – wordt door het ornament van het blad geïllustreerd.
Lemniscaat-vorm
Om het bestaande gebouw geschikt te maken om als Vrije School te dienen, zijn op een van de hoeken ervan ook twee bolvormige volumes toegevoegd. In plattegrond vormen deze volumes als het ware een lemniscaat-vorm, stelt 24h. In het bolvormige volume aan de straat liggen de nieuwe entreehal en enkele lokalen. Het volume aan het binnenplein bevat de aula.
“In deze vorm bevinden zich speciale Vrije School-ruimtes zoals de aula en Euritmie, organisch koken, tekenen, schilderen en textiel werk. De lemniscaat is met natuurlijke leisteen bekleed, die van buiten naar binnen doorloopt, daarbij de beweging van de studenten ondersteunend.”
Trefwoorden
vrije school
ornament
hout
24h architecture
leiden
transformatie
bladpatronen
Locatie
Best gelezen
1
Luxe appartementengebouw naast klooster Etten-Leur door Studio AAAN klaar
donderdag, 19 maart
2
Houten Stelthuis van Woonpioniers is aardbevings- en klimaatbestendig
woensdag, 18 maart
3
BureauVanEig verbetert uitstraling Haagse rijtjeswoningen bij verduurzaming
dinsdag, 17 maart
4
De nieuwe kleren van de keizer
dinsdag, 17 maart
5
Duncan Stutterheim en SOM maken plannen voor meerdere locaties Sloterdijk I
maandag, 16 maart
Gerelateerde nieuwsberichten
MEC Assen ontworpen als termietenheuvel
29 april 2015
Kraaijvanger realiseert school als boerenerf
2 september 2013
24H-architecture verder als twee bureaus
1 juli 2015
Heringericht Wegensteunpunt in Assen
16 juni 2014
Duurzaam kantoor Rijkswaterstaat opgeleverd
24 mei 2011
24H> ontwerpt gebouw Rijkswaterstaat Assen
17 februari 2009
Woontoren 24H in Nijmegen opgeleverd
11 november 2011
Basisschool 24H architecture opgeleverd
22 juni 2011
24H> ontwerpt Milieu Educatie Centrum Assen
20 augustus 2009
Architectuurprijs Nijmegen voor Castellatoren
24 juni 2013
24H> bouwt 110 woningen in Zweden
5 februari 2009
Tweelingtorens 24H in Amsterdam opgeleverd
19 juni 2012
Bouw districtskantoor Rijkswaterstaat van start
4 mei 2010
24H wint Russische architectuurprijs
19 april 2012
Twee woningen 24H opgeleverd
25 maart 2011
MEC Assen: duurzaamheid in lowtech gebouw
22 januari 2010
MEC Assen ontworpen als termietenheuvel
29 april 2015
Kraaijvanger realiseert school als boerenerf
2 september 2013
24H-architecture verder als twee bureaus
1 juli 2015
Heringericht Wegensteunpunt in Assen
16 juni 2014
Duurzaam kantoor Rijkswaterstaat opgeleverd
24 mei 2011
24H> ontwerpt gebouw Rijkswaterstaat Assen
17 februari 2009
Woontoren 24H in Nijmegen opgeleverd
11 november 2011
Basisschool 24H architecture opgeleverd
22 juni 2011
24H> ontwerpt Milieu Educatie Centrum Assen
20 augustus 2009
Architectuurprijs Nijmegen voor Castellatoren
24 juni 2013
24H> bouwt 110 woningen in Zweden
5 februari 2009
Tweelingtorens 24H in Amsterdam opgeleverd
19 juni 2012
Bouw districtskantoor Rijkswaterstaat van start
4 mei 2010
24H wint Russische architectuurprijs
19 april 2012
Twee woningen 24H opgeleverd
25 maart 2011
MEC Assen: duurzaamheid in lowtech gebouw
22 januari 2010
Toon alles
Andere nieuwsberichten
PSV presenteert plannen voor uitbreiding Philips Stadion
1 uur geleden
De Eindhovense club wil de capaciteit van zijn onderkomen opschroeven met maximaal 25.000 bezoekers. Om dit te bewerkstelligen, komt er een nieuwe schil rond het stadion waarin een derde ring is opgenomen.
Rijkswaterstaat staakt renovatie markante houten Krùsrak-brug in Sneek
Vandaag, 11:32
Tijdens de renovatie werd duidelijk dat de constructieve veiligheid van de brug niet langer kan worden verzekerd, laat RWS weten. De uit 2008 stammende Krúsrak-brug over de rijksweg 7 is ontworpen door Onix en Archterbosch Architecten.
KAAN Architecten en De Zwarte Hond winnen tender voor Area 19 TU Eindhoven
Vandaag, 10:35
De opdracht omvat het ontwerp van een nieuw onderzoeks- en onderwijsgebouw en de stedenbouwkundige ontwikkeling van een nieuw campusgebied.
Projecten gezocht voor vijfde Adriaan Dessingprijs
Gisteren, 14:42
De tweejaarlijkse architectuurprijs vestigt de aandacht op bijzondere, gerealiseerde plannen in de Zuid-Hollandse gemeenten Westland en Midden-Delfland. Het kan gaan om nieuwbouw, restauratie of landschappelijke projecten.
Friesland brengt duizenden karakteristieke boerderijen in kaart
3 uur geleden
Door alle informatie over de voor het landschap kenmerkende gebouwen op één plek te brengen, moet het makkelijker worden om ze te behouden.
ING: bijna de helft van de huiseigenaren stelt verduurzaming uit
Vandaag, 12:18
De meeste mensen vinden dat de overheid te weinig doet om dit te stimuleren.
Rekenkamer kraakt resultaten EU-innovatiefonds voor verduurzaming
Vandaag, 09:25
Het Innovatiefonds van de Europese Unie levert veel minder resultaat op dan verwacht op het gebied van verduurzaming en innovatie.
Provincie schrapt beoogde locaties windturbines in Groene Hart
Gisteren, 13:35
De provincie had twaalf plekken op het oog, maar dat leidde tot maatschappelijk en politiek verzet.
Staten Utrecht willen netcongestie versneld aanpakken
Gisteren, 09:44
De fracties wezen op de noodzaak van het zo snel mogelijk realiseren van een hoogspanningsstation dat essentieel is voor het opsplitsen van het elektriciteitsnetwerk tussen de Flevopolder, Gelderland en Utrecht.
Rotterdam wil woningbouw versnellen met pilot ‘Ontwikkelaar aan Zet’
18 maart, 4:33
De gemeente Rotterdam start een pilot waarbij projectontwikkelaars een grotere rol krijgen bij de voorbereiding van woningbouwprojecten.
Ga naar het nieuws-archief
0
0
0
0
Voor een optimale gebruikservaring plaatst Architectenweb functionele cookies. Wat de verschillende cookies precies doen leggen we uit in een
overzicht
. Cookies van social media kun je optioneel
aanzetten
.
Akkoord
Instellingen
Annuleren
OK
Sluiten
Doorgaan
Inloggen
Maak een gratis persoonlijk account aan
Feedback
Feedback
Wij horen graag jouw feedback. Laat je reactie achter en eventueel jouw e-mail adres.
Reactie
Verstuur