Projecten
Producten
Bedrijven
Vacatures
Agenda
Awards
Podcasts
more_horiz
Videos
Magazine
Thema's
Favorieten
Profiel
Uitloggen
Abonneer je nu op onze nieuwsbrieven!
Abonneren
Nee, bedankt
Ja, denk met me mee rond de
materialisering van mijn project
Copyright: Johan de Wachter Architecten
Copyright: Johan de Wachter Architecten
Copyright: Johan de Wachter Architecten
Copyright: Johan de Wachter Architecten
Copyright: Johan de Wachter Architecten
Copyright: Johan de Wachter Architecten
Copyright: Johan de Wachter Architecten
Copyright: Johan de Wachter Architecten
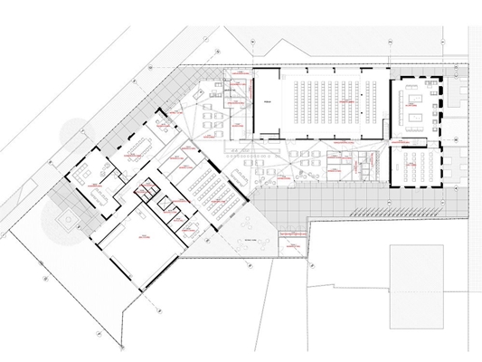
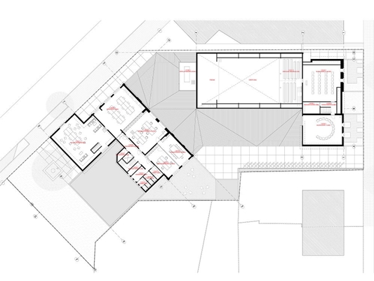
Ontwerp voor Kulturhus in Dinxperlo afgerond
3 april 2013, 11:12
Het definitief ontwerp voor het Kulturhus in Dinxperlo is eind maart afgerond door
Johan de Wachter Architecten
. Het bureau won in 2011 de prijsvraag voor het ontwerp. In juni 2013 wordt gestart met de realisatie.
Het Kulturhus bestaat uit twee karakteristieke panden uit 1892 en 1914 die de stichting Ons Huis en het Sociaal Kultureel Centrum van Dinxperlo huisvesten. Doel van de architect is om met weinig ingrepen het gebouw representatiever te maken en efficiënter in te delen zonder afbreuk te doen aan de authenticiteit van de panden.
Enkele jongere bouwvolumes worden gesloopt om plaats te maken voor een transparante foyer die de twee organisaties met elkaar verbindt en daardoor representatief is voor de nieuwe samenwerking. Beide panden worden gerenoveerd, opnieuw ingedeeld en voorzien van een hedendaags interieur.
Om slimmer gebruik te maken van de bestaande ruimte zijn workshopsessies met de gebruikers en belangstellenden gehouden. Aan de hand van de wensen, programmering en samenwerkingsverbanden van de verschillende gebruikers, is in kaart gebracht welke faciliteiten en ruimtes gedeeld kunnen worden.
Het nieuwe Kulturhus wordt voor iedereen toegankelijk. Dinxperloërs kunnen er terecht voor diverse sociale activiteiten. Verenigingen en organisaties kunnen er straks een ruimte huren, zowel op incidentele als structurele basis.
Johan de Wachter Architecten heeft al eerder culturele centra ontworpen. In 2012 werden in dezelfde regio het Kulturhus `De Nieuwhof`
in Westervoort en cultureel centrum ‘Huis van Droo’ in Duiven opgeleverd.
Trefwoorden
kulturhus
johan de wachter architecten
sociaal cultureel centrum
Locatie
Best gelezen
1
Finalisten presenteren ontwerp voor Shift Landmark in Rotterdam
woensdag, 4 maart
2
Architect Oliver Thill op 55-jarige leeftijd overleden
donderdag, 5 maart
3
Nieuwe Hittekaart Woningmarkt 2026 van BPD toont aanhoudende woningdruk
dinsdag, 3 maart
4
Strijp-S krijgt woonbuurtje met karakteristieken voormalig Philips-terrein
maandag, 2 maart
5
Haagse gemeenteraad stemt in met bouw van 11.400 woningen in nieuw stadscentrum
maandag, 2 maart
Gerelateerde nieuwsberichten
Houten meubel schept kantoorruimte in oud fabrieksgebouw
18 februari 2020
JDWA realiseert modern kantoor in fabriekscomplex aan de Maas
11 juni 2020
Kulturhus De Nieuwhof in Westervoort geopend
18 april 2013
Koning opent Trefkoele+ Dalfsen
21 oktober 2014
Zorgwoningen De Passerel Apeldoorn klaar
5 september 2014
2DVW wint prijsvraag voor brede school in België
24 april 2013
Oude fabriek omgeturnd tot woonensemble
6 januari 2017
JDWA ontwerpt jongerencentrum Genk
7 oktober 2011
Archipelontwerpers realiseert energie-genererend Kulturhus
29 november 2019
Houten meubel schept kantoorruimte in oud fabrieksgebouw
18 februari 2020
JDWA realiseert modern kantoor in fabriekscomplex aan de Maas
11 juni 2020
Kulturhus De Nieuwhof in Westervoort geopend
18 april 2013
Koning opent Trefkoele+ Dalfsen
21 oktober 2014
Zorgwoningen De Passerel Apeldoorn klaar
5 september 2014
2DVW wint prijsvraag voor brede school in België
24 april 2013
Oude fabriek omgeturnd tot woonensemble
6 januari 2017
JDWA ontwerpt jongerencentrum Genk
7 oktober 2011
Archipelontwerpers realiseert energie-genererend Kulturhus
29 november 2019
Toon alles
Gerelateerde projecten
Kulturhus De Wiekelaar Oudleusen
ir.G. van der Veen, Architect BNA
Kulturhus De Trefkoele
MoederscheimMoonen Architects
Andere nieuwsberichten
André Kempe: ‘Het ging Oliver Thill om het geven van betekenis’
6 maart, 7:15
Agelopen maandag is architect Oliver Thill overleden. Zijn compagnon André Kempe gedenkt de man met wie hij al meer dan 35 jaar bevriend was en ruim een kwarteeuw geleden Atelier Kempe Thill oprichtte.
TconcepT transformeert voormalig warenhuis in Offenbach tot bibliotheek
6 maart, 3:54
Het 12.000 vierkante meter omvattende complex gaat in bredere zin fungeren als een cultuur- en educatiecentrum met vele functies. In 2027 moet Station Mitte, zoals het gebouw zijn volgende leven wordt genoemd, klaar zijn.
Werkstatt gaat verder zonder medeoprichter Niels Groeneveld
6 maart, 2:49
Medeoprichter van Werkstatt Niels Groeneveld stopt als partner bij het bureau, om zich te kunnen richten op zijn gezin en onderwijs. Floor Frings en Raoul Vleugels blijven het Eindhovense bureau leiden.
Binationaal ontwerpteam buigt zich over waterhuishouding Cartagena in Colombia
6 maart, 1:43
Een Colombiaans-Nederlands ontwerpteam met Felixx Landscape Architects & Planners en Witteveen+Bos moedigt Cartagena aan om haar relatie met water te heroverwegen en na te denken over een veerkrachtige toekomst
Kunstmuseum in Den Haag moet worden verbouwd
6 maart, 4:32
Daarvoor dient het museum in het Statenkwartier waarschijnlijk een tijd te sluiten.
Coen van Oostrom benoemd tot nieuwe voorzitter VNO-NCW
6 maart, 12:23
De oprichter van ontwikkelaar Edge volgt in die rol Ingrid Thijssen op, die deze week is begonnen als nieuwe bestuursvoorzitter van de TU Delft.
Rapport: lokaal klimaatbeleid schiet nog tekort
6 maart, 10:25
De makers van de zogeheten Toekomstmeter hebben het beleid van zeventig gemeenten doorgelicht.
Hardt Hyperloop failliet verklaard door rechtbank
5 maart, 11:37
Het Rotterdamse bedrijf was bezig met de ontwikkeling van technologie om mensen op hoge snelheid via capsules door een vacuümbuis te vervoeren.
Onderzoek: zeespiegel kustgebieden hoger dan in studies aangenomen
5 maart, 9:13
De zeespiegel aan de kust is in grote delen van de wereld waarschijnlijk hoger dan in veel wetenschappelijke studies wordt aangenomen.
Gelderland geeft voorrang aan vergunningen met minder stikstof
4 maart, 12:24
De plannen zijn onderdeel van het pakket maatregelen dat het Gelderse bestuur wil nemen om de vergunningverlening voor zaken als de woningbouw weer op gang te krijgen.
Ga naar het nieuws-archief
0
0
0
0
Voor een optimale gebruikservaring plaatst Architectenweb functionele cookies. Wat de verschillende cookies precies doen leggen we uit in een
overzicht
. Cookies van social media kun je optioneel
aanzetten
.
Akkoord
Instellingen
Annuleren
OK
Sluiten
Doorgaan
Inloggen
Maak een gratis persoonlijk account aan
Feedback
Feedback
Wij horen graag jouw feedback. Laat je reactie achter en eventueel jouw e-mail adres.
Reactie
Verstuur