Projecten
Producten
Bedrijven
Vacatures
Agenda
Awards
Podcasts
more_horiz
Videos
Magazine
Thema's
Favorieten
Profiel
Uitloggen
Copyright: Kraaijvanger
Copyright: Kraaijvanger
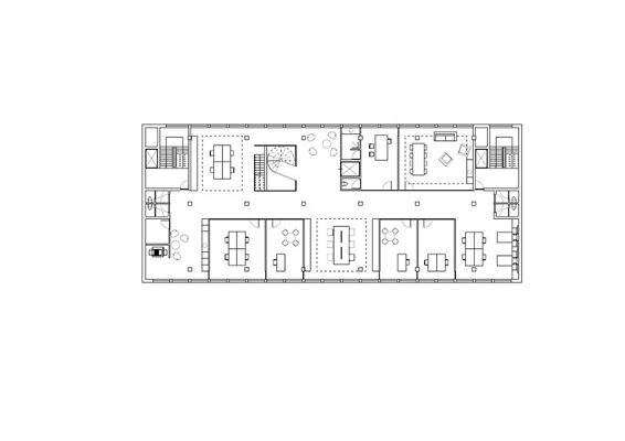
Copyright: Begane grond. Kraaijvanger
Copyright: Eerste etage. Kraaijvanger
Kraaijvanger ontwerpt interieur polikliniek
11 september 2012, 10:12
Kraaijvanger
heeft de opdracht gekregen om het interieurontwerp te maken van de poli- en dagkliniek het Dok in Rotterdam, onderdeel van forensisch psychiatrisch centrum de Kijvelanden. Het ontwerp omvat in totaal 2.300 vierkante meter, verdeeld over vijf verdiepingen.
Het bureau verwierf de opdracht op basis van een visiepresentatie. Naast de inrichting van de verschillende afdelingen wordt ook het entreegebied met receptie, verschillende wachtruimtes en een congres- annex lunchruimte vernieuwd.
“In de visie voor Het Dok is gezocht naar een heldere, logische opzet waarbij de centrale entree op de begane grond het hart van het gebouw vormt”, legt Kraaijvanger uit. “Vanuit het lichte, uitnodigende entreegebied zijn alle zorgprogramma’s eenvoudig te bereiken. De receptie vormt een centraal punt in het entreegebied: de balie geeft direct zicht op de twee wachtruimten en is verbonden met het secretariaat en de backoffice. In beide wachtruimtes zijn grote leestafels en wandbanken geplaatst, waardoor er één groot gebaar in de centrale entree ontstaat.”
Naast de receptie wordt de begane grond verbonden met de eerste etage. “De bestaande vide wordt behouden en door middel van een brede ronde trap kunnen medewerkers en patiënten vanaf de entreehal naar boven.”
Het bureau verwacht het project in mei 2013 op te leveren.
Trefwoorden
polikliniek
interieur
kraaijvanger
dok
Locatie
Best gelezen
1
Den Bosch 'pauzeert' aanbesteding voor ontwerp gebiedsontwikkeling Citadelpoort
maandag, 17 november
2
Expositie in Kunsthal belicht eerdere toeristische periode Rotterdam
dinsdag, 18 november
3
Zelfsluitende Vlotterkering in Steyl vormt tevens 'balkon aan de Maas'
dinsdag, 18 november
4
Het streven naar nieuw is ouderwets
donderdag, 20 november
5
Kleurrijk atrium vormt hart van nieuw internationaal hoofdkantoor NXP
maandag, 17 november
Gerelateerde nieuwsberichten
Provinciekantoor Haarlem duurzaamste renovatie
19 maart 2013
Kraaijvanger ontwerpt museum Caldic Collectie
29 maart 2012
Voorlopig ontwerp stadhuis Almelo akkoord
28 september 2011
Rabobank-toren Utrecht in gebruik genomen
26 oktober 2011
Stadskantoor Vlaardingen wordt verbouwd
1 december 2011
Kraaijvanger•Urbis ontwerpt stadhuis Almelo
31 mei 2011
Nieuwe naam en partners voor Kraaijvanger
6 januari 2012
Provinciekantoor Haarlem duurzaamste renovatie
19 maart 2013
Kraaijvanger ontwerpt museum Caldic Collectie
29 maart 2012
Voorlopig ontwerp stadhuis Almelo akkoord
28 september 2011
Rabobank-toren Utrecht in gebruik genomen
26 oktober 2011
Stadskantoor Vlaardingen wordt verbouwd
1 december 2011
Kraaijvanger•Urbis ontwerpt stadhuis Almelo
31 mei 2011
Nieuwe naam en partners voor Kraaijvanger
6 januari 2012
Toon alles
Andere nieuwsberichten
Studio for New Realities brengt binnenspel Plaswijckpark onder gevouwen dak
21 november, 2:00
Het Plaswijckpark in het noorden van Rotterdam biedt voor kinderen allerlei mogelijkheden om buiten te spelen. Voor dagen met minder goed weer is er nu een tweede paviljoen gerealiseerd met mogelijkheden om binnen te spelen.
Space&Matter ontwerpt ingetogen houten paviljoen voor BSO in Zeist
21 november, 9:30
Aan de rand van het dorpscentrum van Zeist, in een door woningen omzoomd binnengebied, ontwerpt Space&Matter een nieuwe buitenschoolse opvang (BSO) en gymzaal.
MoederscheimMoonen Architects benoemt vijf associates
21 november, 9:00
Om de basis van het groeiende bureau richting de toekomst te versterken heeft het nu vijf associates benoemd: Aldo Trim, Boy Hoffs, Maarten de Roij, Mike Pennings en Romano van den Dool.
ECHO Urban Design en RoosRos Architecten winnen tender Machinewerf Vlissingen
20 november, 4:30
ECHO Urban Design en RoosRos Architecten zijn samen met partners Leyten, Fullhouse, depart en Steenvlinder door de gemeente Vlissingen geselecteerd als winnende partner voor de ontwikkeling van locatie de Machinewerf in het Scheldekwartier.
Vervoersregio's Rotterdam, Den Haag en Amsterdam willen miljard extra voor OV
21 november, 11:29
Volgens burgemeester Jan van Zanen van Den Haag is 500 miljoen euro extra nodig "om niet achteruit te gaan door indexering en bezuinigingen". En nog eens 500 miljoen euro is nodig "om het OV mee te laten groeien met het aantal inwoners.
Mogelijke proef zelfrijdende pendelbussen tussen station Hoofddorp en Schiphol Trade Park
20 november, 2:15
De provincie Noord-Holland onderzoekt of het zelfrijdende pendelbussen zonder chauffeur kan laten rijden in de buurt van Schiphol. Als dit qua veiligheid en techniek haalbaar is, wil de provincie in 2027 een proef starten.
Fietsflat bij Amsterdam Centraal wordt na 25 jaar gesloopt
20 november, 1:45
Voor de door VMX Architects ontworpen fietsenstalling is geen nieuwe plek gevonden. Daarom wordt de 'fietsflat' nu gesloopt.
Maastricht grootste stijger op lijst van beste steden om te wonen
20 november, 1:15
Op de ranglijst van de Atlas voor Gemeenten steeg Maastricht de afgelopen tien jaar van de 40e naar de 34e plek. Amsterdam staat stevig op de 1e plek van de lijst.
Minder infraprojecten gaan door na bezuinigingen Prinsjesdag
20 november, 10:40
Minder infrastructuurprojecten kunnen doorgaan door bezuinigingen die met Prinsjesdag zijn doorgevoerd. Dat staat in antwoorden op Kamervragen over de begroting van het Mobiliteitsfonds.
Om malafide grondspeculatie tegen te gaan, overweegt het kabinet een bedenktijd voor kopers van grond
20 november, 9:00
Grondhandelaren splitsen landbouwgrond vaker op in kleine stukjes en verkopen die dan door aan particulieren. De kopers kunnen dan ten onrechte denken dat de gemeente op de grond wil bouwen, terwijl dat niet zo is.
Ga naar het nieuws-archief
0
0
0
0
Voor een optimale gebruikservaring plaatst Architectenweb functionele cookies. Wat de verschillende cookies precies doen leggen we uit in een
overzicht
. Cookies van social media kun je optioneel
aanzetten
.
Akkoord
Instellingen
Annuleren
OK
Sluiten
Doorgaan
Inloggen
Maak een gratis persoonlijk account aan
Feedback
Feedback
Wij horen graag jouw feedback. Laat je reactie achter en eventueel jouw e-mail adres.
Reactie
Verstuur