Projecten
Producten
Bedrijven
Vacatures
Agenda
Awards
Podcasts
more_horiz
Videos
Magazine
Thema's
Favorieten
Profiel
Uitloggen
Copyright: grafie Emile Ashley
Copyright: grafie Emile Ashley
Copyright: grafie Emile Ashley
Copyright: grafie Emile Ashley
Copyright: grafie Emile Ashley
Copyright: grafie Emile Ashley
Copyright: grafie Emile Ashley
Copyright: grafie Emile Ashley
Copyright: grafie Emile Ashley
Copyright: grafie Emile Ashley
Copyright: Emile Ashley
Noorse bibliotheek met houten geraamte
23 februari 2012, 14:47
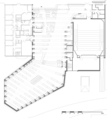
Een boek lezen in een houten geraamte. In de Noorse plaats Vennesla kan het in de nieuw geopende bibliotheek, ontworpen door
Helen & Hard
.
De bibliotheek is tussen twee bestaande gebouwen (gemeenschapscentrum en kenniscentrum) in de winkelstraat van de plaats gerealiseerd. Het pand heeft een houten skelet van 27 ribben, gemaakt van timmerhout en triplexplaten. De ribben zijn de basis van de boekrekken in de bibliotheekzaal en de individuele leescompartimenten. Tussen de ribben zijn stroken verlichting geïntegreerd voor beter leeslicht.
Het gebouw heeft aan de winkelstraatzijde een voornamelijk glazen gevel, om voorbijgangers zicht te geven op het gehele interieur van de bibliotheek. Ook zijn hier houten zitbanken geplaatst als ontmoetingsplek. Aan de achterzijde is de gevel van het pand voorzien van een tweede huid van verticale houten panelen. In het gebouw zijn naast een bibliotheekruimte een café en administratieve ruimtes opgenomen.
Trefwoorden
noorwegen
vennesla
helen en hard
bibliotheek
houten geraamte
Locatie
Best gelezen
1
Nieuw voorstel voor renovatie en uitbreiding De Kuip
woensdag, 26 november
2
Het streven naar nieuw is ouderwets
donderdag, 20 november
3
SAWA officieel geopend door Koningin Máxima
donderdag, 20 november
4
Space&Matter ontwerpt ingetogen houten paviljoen voor BSO in Zeist
vrijdag, 21 november
5
Studioninedots deelt nieuwe beelden van project Spark op Smakkelaarsveld in Utrecht
maandag, 24 november
Gerelateerde nieuwsberichten
Golvend bibliotheekgebouw met witte gevels
14 maart 2012
Openluchtbibliotheek in Gentse wijngaard
31 mei 2012
A-lab ontwerpt militaire basis Noorwegen
21 juni 2010
Restaurant tussen Noorse bergen opgeleverd
9 september 2011
Gebouwen over spoor door Noors dorp
23 december 2010
Golvend bibliotheekgebouw met witte gevels
14 maart 2012
Openluchtbibliotheek in Gentse wijngaard
31 mei 2012
A-lab ontwerpt militaire basis Noorwegen
21 juni 2010
Restaurant tussen Noorse bergen opgeleverd
9 september 2011
Gebouwen over spoor door Noors dorp
23 december 2010
Toon alles
Andere nieuwsberichten
Schiphol investeert tien miljard in nieuwe terminal en andere infrastructuur
3 uur geleden
Schiphol wil tot 2035 tien miljard euro investeren in betere en duurzamere infrastructuur, waaronder een nieuwe terminal en vernieuwde pieren.
Video's: genomineerden voor de Abe Bonnema Architectuurprijs 2025
Vandaag, 13:00
Van de vier genomineerde architecten voor de Abe Bonnema Architectuurprijs 2025 zijn video's gemaakt.
'Landmark' voor duurzame toekomst komt in Rotterdamse wijk Waterkant
Vandaag, 11:53
De zogeheten Shift Landmark krijgt een plek in de toekomstige wijk Waterkant in Rotterdam-Zuid. Het gebouw moet een internationale trekpleister worden die mensen, bedrijven en andere organisaties aanzet tot actie voor een duurzame toekomst.
RxDOMI ontwikkelt modulaire, biobased mantelzorgwoning op basis van WikiHouse-systeem
Gisteren, 16:06
Met 3D-modules van 10 m2 kunnen kleinere en grote woonruimtes gerealiseerd worden. RxDOMI ontwikkelt en bouwt de modulaire mantelzorgwoning.
Flevoland rekent op kabinet bij openstellen Lelystad Airport
3 uur geleden
De provincie Flevoland rekent erop dat het kabinet Lelystad Airport niet alleen openstelt voor Defensie, maar ook voor vakantievluchten.
CBS: bijna acht procent van de corporatiewoningen naar statushouders
Vandaag, 14:42
Bijna acht procent van de huurwoningen van woningcorporaties die in 2023 vrijkwamen, ging dat jaar naar statushouders.
Kennisinstituut: reizen met auto, vliegtuig en e-bike in de lift
Gisteren, 12:56
Het wegverkeer, het aantal vliegtuigpassagiers, en het gebruik van de elektrische fiets zijn in 2024 gegroeid en naar verwachting zet die stijging door.
Amsterdam koppelt metrolijn 50 en 53 om capaciteit metronetwerk te verhogen
Gisteren, 10:00
Op het nieuwe netwerk kunnen de metro's vaker rijden: acht keer per uur overdag en tien keer per uur in de spits. Door de ontvlechting rijden er straks minder lijnen op hetzelfde spoor.
Gemeente Den Haag komt met meldpunt voor onveilige plekken
24 november, 12:11
De gemeente Den Haag heeft een meldpunt gecreëerd waar mensen melding kunnen maken van onveilige plekken. Experts bekijken de locaties vervolgens om vast te stellen welke maatregelen er nodig zijn om het gevoel van veiligheid te verbeteren.
Vervoersregio's Rotterdam, Den Haag en Amsterdam willen miljard extra voor OV
21 november, 11:29
Volgens burgemeester Jan van Zanen van Den Haag is 500 miljoen euro extra nodig "om niet achteruit te gaan door indexering en bezuinigingen". En nog eens 500 miljoen euro is nodig "om het OV mee te laten groeien met het aantal inwoners.
Ga naar het nieuws-archief
0
0
0
0
Voor een optimale gebruikservaring plaatst Architectenweb functionele cookies. Wat de verschillende cookies precies doen leggen we uit in een
overzicht
. Cookies van social media kun je optioneel
aanzetten
.
Akkoord
Instellingen
Annuleren
OK
Sluiten
Doorgaan
Inloggen
Maak een gratis persoonlijk account aan
Feedback
Feedback
Wij horen graag jouw feedback. Laat je reactie achter en eventueel jouw e-mail adres.
Reactie
Verstuur