Projecten
Producten
Bedrijven
Vacatures
Agenda
Awards
Podcasts
more_horiz
Videos
Magazine
Thema's
Favorieten
Profiel
Uitloggen
Nieuw
Populair
Toon alles
Architectenweb magazine #14
Architectenweb magazine #13
Publieke gebouwen
Architectenweb magazine #12
Kantoren
Architectenweb magazine #11
Scholen
Architectenweb magazine #10
Zorg
Architectenweb magazine #14
Architectenweb magazine #10
Zorg
Architectenweb magazine #12
Kantoren
Architectenweb magazine #13
Publieke gebouwen
Architectenweb magazine #6
Transformatie en Renovatie
Om direct naar je favorieten te kunnen gaan is het nodig om eerst in te loggen.
Nieuw
Architectenweb Awards 2025
Architectenweb Awards 2024
Architectenweb Awards 2023
Architectenweb Awards 2022
Architectenweb Awards 2021
Architectenweb Awards 2020
Architectenweb Awards 2019
Architectenweb Awards 2018
Om direct naar je favorieten te kunnen gaan is het nodig om eerst in te loggen.
Nieuw
Populair
Favorieten
Toon alles
Vakwerk Architecten
Nominatie voor de prijs voor Architect van het Jaar 2025
Sanne van Manen
Nominatie voor de prijs voor Architect van het Jaar 2025
KSA
Nominatie voor de prijs voor Architect van het Jaar 2025
KRFT
Nominatie voor de prijs voor Architect van het Jaar 2025
Joost Ector
Nominatie voor de prijs voor Architect van het Jaar 2025
Prijsuitreiking Architectenweb Awards 2024
Impressie van een feestelijke avond
Martens, Willems & Humblé Architecten
Nominatie voor de prijs voor Architect van het Jaar 2024
Uitreiking van Architectenweb Awards 2020
Impressie van de prijsuitreiking via Zoom
De Zwarte Hond
Nominatie voor de prijs voor Architect van het Jaar 2024
Avond met De Zwarte Hond
Symposium
Om direct naar je favorieten te kunnen gaan is het nodig om eerst in te loggen.
Nieuw
Populair
Categorieën
Favorieten
Toon alles
Brandpreventie Academy BV
Cay Circulaire Keukens
Circulaire keukens en pantry's
Studio Kirsten Reith
Interieurontwerp
Studio175
Interieuradvies in regio Utrecht
Orange Automatic Doors
Indoorwrap
De specialist in Keukenwrappen
Cay Circulaire Keukens
Circulaire keukens en pantry's
Studio Kirsten Reith
Interieurontwerp
Studio175
Interieuradvies in regio Utrecht
Interior & Co
Indoorwrap
De specialist in Keukenwrappen
Orange Automatic Doors
Architecten
Architectuur
Mobiliteit en infrastructuur
Stedenbouw en landschapsarchitectuur
Leveranciers
Gevels
Daken
Ramen en deuren
Trappen, liften en balustrades
Binnenwanden
Vloeren
Plafonds
Verlichting
Sanitair
Projectinrichting
Installaties
Constructies
Buitenruimte
Software
Adviseurs
Bestekschrijvers
Bouwmanagement
Installatie adviseurs E
Bouwfysica
Calculators
Installatie adviseurs G/W
Bouwkundig tekenwerk
Constructeurs
Lichtadviseurs
Adviseur beveiliging
Juristen
Intermediairs, Payrolling
Aannemers
Overig
Presentatie
Instellingen / onderwijs
Overig
Om direct naar je favorieten te kunnen gaan is het nodig om eerst in te loggen.
Nieuw
Populair
Favorieten
Toon alles
Gesprek met Stephan Sliepenbeek over hoogbouw in Amstel III
Gesprek met Ellen van Bueren over gebiedsontwikkeling en hoogbouw
Gesprek met Ma Yansong over ontwerpen die emotie oproepen
Gesprek met Paul de Ruiter over innovatieve en duurzame hoogbouw
Gesprek met Pi de Bruijn over zijn ontwerpen voor de Tweede Kamer toen en nu
Gesprek met Ellen van Bueren over gebiedsontwikkeling en hoogbouw
Gesprek met Oresti Sarafopoulos over het ontwerpen van een kantoorgebouw met bijna geen installaties
Gesprek met Stijn Steenbakkers over verdichting en hoogbouw in Eindhoven
Gesprek met Pi de Bruijn over zijn ontwerpen voor de Tweede Kamer toen en nu
Gesprek met Paul de Ruiter over innovatieve en duurzame hoogbouw
Om direct naar je favorieten te kunnen gaan is het nodig om eerst in te loggen.
Nieuw
Populair
Categorieën
Favorieten
Toon alles
De energiemarkt revolutionair vernieuwen
Festivalterrein als inspiratie van dit kantoor
De antieke Agora als inspiratie voor een kantoor
Renovatieproject Ockenburghstraat
Aluminium kozijnen: de isolerende oplossing
Prinsenpark, Rotterdam
ASML Gebouw 3
IVY, Amsterdam
IKC De Brug
Houthavens, Amsterdam
Architectuur
Woningbouw
Zorg
Hotels
Restaurants en café’s
Winkels
Sportgebouwen
Culturele gebouwen
Overheidsgebouwen
Scholen
Kantoren
Bedrijfsgebouwen
Paviljoens en kunst
Overig
Mobiliteit en infrastructuur
Trein- en metrostations
Luchthavens
Busstations
Parkeergarages
Fietsparkeren
Wegen
Bruggen
Water
Energie
Tankstations en laadstations
Waterzuivering en afvalverwerking
Overig
Stedenbouw en landschapsarchitectuur
Regionale visies
Gebiedsvisies
Plannen stedelijk weefsel
Amusementsparken en dierentuinen
Lichtontwerpen
Openbare ruimte
Pleinen
Parken
Tuinen
Speelplaatsen
Uitkijktorens
Overige (bijv. begraafplaatsen)
Om direct naar je favorieten te kunnen gaan is het nodig om eerst in te loggen.
Nieuw
Populair
Categorieën
Favorieten
Toon alles
Control Track Versa
Langdurige flexibiliteit voor kantoren van de toekomst
Toegankelijkheid in de stad: klanktegels als gids
Een nieuwe dimensie in stadsontwerp: integreren van klank voor een inclusieve ervaring.
Dreentegel
Terug van weggeweest
Flux-totaalaanbod vraaggestuurde Renson WTW-ventilatie
Compacte wand- en plafondmontage voor alle debieten
Wie denkt er aan slopen tijdens bouwen?
Kies voor de toekomst, kies voor circulair isoleren!
Digital Prints
Meer mogelijkheden in gekleurd staal
Element+ H-I
Hout - Aluminium Elementgevel
Vierkante vluchtroutearmaturen voor grote ruimtes
Zichtbare veiligheid van alle kanten
GROHE Cubeo: kranen voor elke badkamer
Stijlvol en duurzaam design voor jarenlang plezier
Schüco Zonweringsysteem Integralmaster in FWS
Bescherming tegen zon, verblinding en privacy – verborgen en volledig geïntegreerd
Gevels
Gevelbekleding
Vliesgevels
Zonwering buiten
Isolatie
Gevelconstructies
Signing
Overig
Daken
Dakafwerkingen
Dakisolatie
Dakconstructies
Dakranden, dakgoten en HWA's
Dakramen
Lichtkoepels
Lichtstraten
Schoorstenen
Overig
Dakluiken
Ramen en deuren
Raam- en deursystemen / kozijnen
Vliesgevels
Hang- en sluitwerk
Beveiliging en luiken
Dorpels en vensterbanken
Lateien
Roosters
Glas
Dakramen
Dakkoepels
Lichtstraten
Zonwering buiten
Zonwering binnen
Buitendeuren
Binnendeuren
Postvakken en brievenbussen
Overig
Dakluiken
Trappen, liften en balustrades
Trappen
Roltrappen
Liften
Balustrades en hekwerken
Galerijen
Binnenwanden
Binnenwanden
Wandafwerking
Vloeren
Constructieve vloeren
Verhoogde vloeren
Vloerafwerkingen
Overig
Plafonds
Tegels
Lineair
Grill
Open en roosters
Naadloos
Eilanden en baffles
Plafondafwerkingen
Ophangsystemen
Overig
Klimaatplafonds
Verlichting
Binnenverlichting
Buitenverlichting
Sanitair
Kranen en douchesets
Wastafels
Douchewanden en douchebakken
Baden
Waterclosets
Accessoires
Overig
Projectinrichting
Stoelen
Banken
Tafels
Kasten
Balies
Vrijstaande wanden
Keukens
Accessoires
Overig
Cabines
Interieurbeplanting
Stoffering
Installaties
Verwarming, koeling en ventilatie
Elektrotechnische installaties
Schakelmateriaal
Domotica
Deurcommunicatie
Beveiliging
Liften
Onderhoudsinstallaties
Overig
Brandbeveiliging
Constructies
Draagconstructies
Funderingen en kelders
Overig
Brandbeveiliging
Buitenruimte
Bestratingen en verhardingen
Afwateringen
Terreinafscheidingen en geluidsschermen
Buitenmeubilair
Fietsparkeren
Terrassen
Terrasoverkappingen
Bruggen
Accessoires
Overig
Beplanting
Sport- en speeltoestellen
Software
Tekenen 2D
Modelleren 3D / BIM
Visualisatie / rendering
Parametrisch ontwerpen
Bouwfysica
Draagconstructie
Overig
Virtual Reality
Cloudoplossingen
Om direct naar je favorieten te kunnen gaan is het nodig om eerst in te loggen.
Nieuw
Populair
Favorieten
Toon alles
Zomerwandelingen Nieuwe Stad op Zondag 2025
Amsterdam
Prefab beurs - 7 t/m 9 oktober 2025
Brabanthallen 's-Hertogenbosch
Boekpresentatie en panelgesprek met Floor Milikows
Prins Hendrikkade 600, 1011 VX Amsterdam
Architects Table ’25: Lunch & Inspiratie in HAUT Amsterdam
ATAG LIVE – HAUT gebouw, Spaklerweg 10F, 1096 BA Amsterdam (tegenover metrostation Spaklerweg)
Inspiratiedag @ Sempergreen – Gevelgroen
Defensieweg 1, 3984 LR Odijk
Architects Table ’25: Lunch & Inspiratie in HAUT Amsterdam
ATAG LIVE – HAUT gebouw, Spaklerweg 10F, 1096 BA Amsterdam (tegenover metrostation Spaklerweg)
Ontdek het seminarieprogramma van Architect@Work Amsterdam
De Kromhouthal, Gedempt Hamerkanaal 231, Amsterdam
LIAG over duurzaamheid centraal in project
Online
1.Lectures HouseEurope! Renovate, don’t speculate
Pakhuis de Zwijger
Zomerwandelingen Nieuwe Stad op Zondag 2025
Amsterdam
Om direct naar je favorieten te kunnen gaan is het nodig om eerst in te loggen.
Nieuw
Toon alles
Design
Duurzaamheid
Gevel
Infrastructuur
Interieur
Kantoren
Leisure
Openbare ruimte
Publieke gebouwen
Scholen
Transformatie en Renovatie
Woningbouw
Zorg
Om direct naar je favorieten te kunnen gaan is het nodig om eerst in te loggen.
Nieuw
Populair
Toon alles
Junior Architect (NL/EN)
De Academie van Bouwkunst Amsterdam zoekt twee onderzoekers voor lectoraat
Site Practice zoekt medior architect met 3-6 jaar ervaring (Amsterdam)
DAT zoekt een BIM Modelleur (Revit)
stagiair bouwkunde Heerenveen
Meewerkend Voorman
Architect
Junior Architect gezocht!
Junior Ontwerper
Studio Nauta zoekt projectleider
wUrck zoekt junior Architect
Project Architect
Om direct naar je favorieten te kunnen gaan is het nodig om eerst in te loggen.
Copyright: Atelier Kempe Thill
Copyright: Atelier Kempe Thill
Copyright: Atelier Kempe Thill
Copyright: Atelier Kempe Thill
Copyright: Atelier Kempe Thill
Copyright: Atelier Kempe Thill
Copyright: Atelier Kempe Thill
Bouwstart verslaafdenopvang Kempe Thill
20 januari 2011, 9:02
Aanstaande vrijdag start woningcorporatie Rochdale met de bouw van een wooncentrum voor mensen met een drugsverslaving. Het gebouw, naar ontwerp van
Atelier Kempe Thill
, komt aan de rand van het Bijlmerpark te staan.
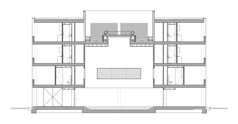
De typologie van het wooncentrum voor drugsverslaafden is volgens Atelier Kempe Thill goed vergelijkbaar met dat van een klassiek hotel. De wooneenheden variëren in grote van 15 tot 25 vierkante meter. De eenheden liggen rondom een lobby, een gemeenschappelijke ruimte voor maximaal 50 bewoners. De ‘collectieve woonkamer’, zoals Atelier Kempe Thill het noemt, is voorzien van een daklicht en biedt uitzicht over het park. Bovenop de lobby ligt voor de bewoners ook een kleine binnenplaats.
Programma
Het wooncentrum bestaat uit vier verdiepingen en heeft een vloeroppervlakte van 2100 vierkante meter. De begane grond bestaat uit kantoren, keuken, activiteitenruimte, en een ruimte waar kan worden gerookt. De kamers van de 35 bewoners liggen op de drie verdiepingen. De bewoners zijn georganiseerd in vijf woongroepen. Nieuwe bewoners wonen, om te wennen, eerst even op zichzelf.
De 24-uursopvang en persoonlijke begeleiding van mensen met een verslaving wordt verzorgd door HVO-Querido, in samenwerking met de Jellinek, de GGD en Streetcornerwork. Zowel mannen als vrouwen kunnen in de opvang terecht. Er is een warme maaltijd, een douche, de mogelijkheid kleding te wassen, een slaapplaats en de volgende ochtend een ontbijt te krijgen. Gedurende de dag en avond is er de gebruikersruimte in het gebouw geopend. De duur van de opvang is in principe onbeperkt.
Vernieuwing Bijlmermeer
Jaap Fransman, bestuurder bij HVO-Querido, is blij dat deze nieuwe huisvesting: “Mensen krijgen op deze manier de mogelijkheid om in een veilige omgeving even op adem te komen. Ook komt het de veiligheid ten goede. Uit diverse initiatieven blijkt dat deze manier de overlast voor de buurt beperkt. Onderzoek van de GGD toont aan dat zelfs het aantal politiecontacten aanzienlijk vermindert.”
Hester van Buren, lid van de Raad van Bestuur Rochdale, verklaarde: “We hebben de afgelopen jaren veel tijd en geld geïnvesteerd in de vernieuwing van de Bijlmermeer. Daar plukken we nu de vruchten van. In de onlangs gepubliceerde Bijlmermonitor zien we een aanzienlijke stijging van tevreden bewoners in Amsterdam Zuidoost.”
Volgens de planning zullen de nieuwe bewoners voorjaar 2012 hun intrek nemen in het nieuwe gebouw. De opdrachtgevers van het gebouw zijn Deltaforte en Rochdale.
Trefwoorden
atelier kempe thill
bijlmerpark
rochdale
Best gelezen
1
Rijk schrijft aanbesteding uit voor nieuwe marinierskazerne
woensdag, 1 oktober
2
Rapport: rijke Amsterdammers leven steeds vaker apart van rest
dinsdag, 30 september
3
Kabinet wil wijken erbij op 127 plekken in Nederland
maandag, 29 september
4
Architectenweb symposium: klein maar fijn wonen?
donderdag, 2 oktober
5
Leiden wil verhoogd busstation naast treinperrons centraal station
dinsdag, 30 september
Gerelateerde nieuwsberichten
Vernieuwd Bijlmerpark Amsterdam geopend
31 mei 2011
Verslaafdenopvang Amsterdam geopend
22 juni 2012
Atelier Kempe Thill is Architect van het Jaar
12 december 2011
Sociale woningbouwcomplex voor Bremen
9 juni 2011
Gebouw De Hood in Osdorp geopend
5 april 2011
Kempe Thill transformeert flats Antwerpen
24 juni 2011
Kempe Thill herontwikkelt Wintercircus Gent
15 januari 2013
Glaswoningen van Kempe Thill in Moerwijk
21 juli 2009
Kempe Thill wint aanbesteding laboratorium
13 december 2010
Europese eer theaterpodium Rotterdam
30 maart 2010
‘Rotterdam biedt nog geen echte kansen’
25 maart 2009
Duitstalige Belgen schrappen dure nieuwbouw
22 december 2009
Transformatie Nazi-hotel gestart
14 juli 2009
Twee winnaars AM NAi Prijs
13 december 2010
Kempe Thill wint competitie Space of Silence
17 november 2010
Ondergrondse koepel van Atelier Kempe Thill
23 maart 2010
'Huis van de gemeenschap' voor Borssele
14 januari 2010
Atelier Kempe Thill wint Detail Preis 2009
20 januari 2009
Maaskantprijs uitgereikt aan Oliver Thill
29 oktober 2005
‘Te hoge eisen bij stadskantoor Rotterdam’
19 maart 2009
Atelier Kempe Thill bouwt concertgebouw Oostenrijk
1 februari 2005
Atelier Kempe Thill ontwerpt parlementsgebouw
28 oktober 2008
Luxe sociale woningbouw van Kempe Thill
25 augustus 2009
Bouw jongerencentrum Osdorp van start
1 maart 2010
Europese klacht over Havenhuis Antwerpen
23 februari 2009
Gevangeniskolonie veranderd in museum
6 maart 2008
Grens loopt dwars door gemeentehuis
9 maart 2010
Atelier Kempe Thill vernieuwt 'nazihotel' Rügen
3 december 2008
Bouwstart woningbouw Kempe Thill
5 juli 2010
Vernieuwd Bijlmerpark Amsterdam geopend
31 mei 2011
Verslaafdenopvang Amsterdam geopend
22 juni 2012
Atelier Kempe Thill is Architect van het Jaar
12 december 2011
Sociale woningbouwcomplex voor Bremen
9 juni 2011
Gebouw De Hood in Osdorp geopend
5 april 2011
Kempe Thill transformeert flats Antwerpen
24 juni 2011
Kempe Thill herontwikkelt Wintercircus Gent
15 januari 2013
Glaswoningen van Kempe Thill in Moerwijk
21 juli 2009
Kempe Thill wint aanbesteding laboratorium
13 december 2010
Europese eer theaterpodium Rotterdam
30 maart 2010
‘Rotterdam biedt nog geen echte kansen’
25 maart 2009
Duitstalige Belgen schrappen dure nieuwbouw
22 december 2009
Transformatie Nazi-hotel gestart
14 juli 2009
Twee winnaars AM NAi Prijs
13 december 2010
Kempe Thill wint competitie Space of Silence
17 november 2010
Ondergrondse koepel van Atelier Kempe Thill
23 maart 2010
'Huis van de gemeenschap' voor Borssele
14 januari 2010
Atelier Kempe Thill wint Detail Preis 2009
20 januari 2009
Maaskantprijs uitgereikt aan Oliver Thill
29 oktober 2005
‘Te hoge eisen bij stadskantoor Rotterdam’
19 maart 2009
Atelier Kempe Thill bouwt concertgebouw Oostenrijk
1 februari 2005
Atelier Kempe Thill ontwerpt parlementsgebouw
28 oktober 2008
Luxe sociale woningbouw van Kempe Thill
25 augustus 2009
Bouw jongerencentrum Osdorp van start
1 maart 2010
Europese klacht over Havenhuis Antwerpen
23 februari 2009
Gevangeniskolonie veranderd in museum
6 maart 2008
Grens loopt dwars door gemeentehuis
9 maart 2010
Atelier Kempe Thill vernieuwt 'nazihotel' Rügen
3 december 2008
Bouwstart woningbouw Kempe Thill
5 juli 2010
Toon alles
Andere nieuwsberichten
Plan Spot belooft Lelystad bruisend centrumgebied
3 oktober, 4:30
Heutink Groep, Groosman en LOLA Landscape Architects winnen tender stadshart met nieuw horecaplein.
Hoogste punt van woontoren Blaak 333 bereikt
3 oktober, 3:11
De door Kraaijvanger Architects ontworpen woontoren in het centrum van Rotterdam verrijst op de plek waar voorheen een kantoortoren van de Rabobank stond.
‘NDSM-werf en Buiksloterham zijn júíst inspirerende voorbeelden voor de stad van morgen’
3 oktober, 2:40
Architect Alexander Straub reageert op de column van Alexander Pols, waarin de vraag centraal stond of we bij de bouw van nieuwe wijken als Buiksloterham en de NDSM-werf in Amsterdam kunnen leren van de traditionele Europese stad.
Zes nominaties voor Haagse architectuurprijs Berlagevlag 2025
3 oktober, 1:34
De nominaties voor de Haagse architectuurprijs, de Berlagevlag, zijn bekend. Uit 31 inzendingen koos de vakjury zes projecten.
Kamer wil dat Keijzer afziet van versoepelingen huurwet
3 oktober, 12:11
Sinds de huurwet - tegen de zin van Keijzer - van kracht werd, waarschuwen verhuurders dat daardoor het aanbod aan betaalbare huurwoningen afneemt.
Steden vrezen voor woningbouw door nieuwe regels netcongestie
2 oktober, 4:25
Amsterdam, Den Haag, Rotterdam en Utrecht vrezen dat de bouw van nieuwe woningen stil komt te liggen door netcongestie.
Dienst Toeslagen: plan voor wonen op vakantieparken onuitvoerbaar
2 oktober, 1:06
Het kabinetsplan om permanent wonen in vakantiehuisjes mogelijk te maken, is volgens de Dienst Toeslagen onuitvoerbaar.
Zuid-Holland wil in ‘oogstjaar’ 2026 plannen uitvoeren
1 oktober, 3:16
De provincie investeert onder meer in infrastructuur, woningbouw, natuur en versterking van kleine kernen.
Rijk schrijft aanbesteding uit voor nieuwe marinierskazerne
1 oktober, 2:27
Eind 2031 wil het Korps Mariniers vanuit zijn huidige kazerne in Doorn verhuizen naar een nieuw onderkomen op de bestaande Defensielocatie Kamp Nieuw-Milligen vlakbij Apeldoorn.
Landschapstriënnale 2026 strijkt neer in Arnhem
1 oktober, 11:57
Het thema van de komende editie van de manifestatie is ‘Op Waterbasis’.
Ga naar het nieuws-archief
0
0
0
0
Voor een optimale gebruikservaring plaatst Architectenweb functionele cookies. Wat de verschillende cookies precies doen leggen we uit in een
overzicht
. Cookies van social media kun je optioneel
aanzetten
.
Akkoord
Instellingen
Annuleren
OK
Sluiten
Doorgaan
Inloggen
Maak een gratis persoonlijk account aan
Feedback
Feedback
Wij horen graag jouw feedback. Laat je reactie achter en eventueel jouw e-mail adres.
Reactie
Verstuur