Projecten
Producten
Bedrijven
Vacatures
Agenda
Awards
Podcasts
more_horiz
Videos
Magazine
Thema's
Favorieten
Profiel
Uitloggen
Abonneer je nu op onze nieuwsbrieven!
Abonneren
Nee, bedankt
Ja, denk met me mee rond de
materialisering van mijn project
Copyright: grafie René de Wit
Copyright: grafie René de Wit
Copyright: grafie René de Wit
Copyright: grafie René de Wit
Copyright: grafie René de Wit
‘Hangende tuinen’ in Delft
13 januari 2011, 10:55
Vandaag opent gezondheidscentrum ‘De Smaragd’ in Delft zijn deuren voor het publiek. Het gebouw is ontworpen door
Architectuurstudio BötgerOudshoorn
. De gevel is rondom voorzien van begroeide luifels.
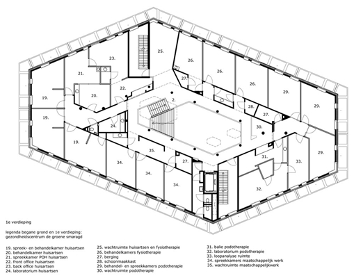
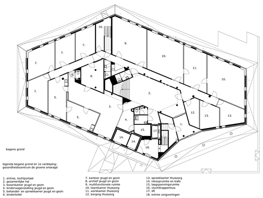
Het gezondheidscentrum ‘De Smaragd’ biedt eerstelijns zorg en maatschappelijke dienstverlening aan de bewoners van de Delftse wijk Buitenhof. Binnen het gebouw bevinden de zorgvoorzieningen zich op de begane grond en eerste verdieping. Op de tweede en derde verdieping zijn 21 woonruimtes gerealiseerd voor begeleid wonen. De bewoners wil Architectuurstudio BötgerOudshoorn met het ontwerp een beschermende omgeving bieden.
De opdrachtgevers van ‘De Smaragd’ zijn de Gemeente Delft en woningcorporatie Woonbron. Het gebouw is al voor de zomer van 2010 opgeleverd, maar nu pas geheel in gebruik genomen.
Beplante luifels
“De met hedera beplante luifels van de Smaragd verbinden het gebouw met zijn groene omgeving”, verklaart BötgerOudshoorn. “Daarnaast geeft het groen vanuit de ramen een rustgevende sfeer aan alle binnenruimtes. En dat sluit goed aan bij zowel de functie van het beschermd wonen als de functie van het gezondheidscentrum.”
“Afgelopen zomer heeft de hedera al ruim over de luifels gehangen. Voor de eerste winter is de beplanting terug gesnoeid, om in het voorjaar en komende jaren goed te kunnen groeien. Dit betekent letterlijk dat het gebouw door alle seizoenen altijd zal blijven leven en veranderen.”
Trefwoorden
delft
gezondheidscentrum
begeleid wonen
woonbron
de smaragd
architectuurstudio bötgeroudshoorn
Best gelezen
1
Luxe appartementengebouw naast klooster Etten-Leur door Studio AAAN klaar
donderdag, 19 maart
2
Houten Stelthuis van Woonpioniers is aardbevings- en klimaatbestendig
woensdag, 18 maart
3
BureauVanEig verbetert uitstraling Haagse rijtjeswoningen bij verduurzaming
dinsdag, 17 maart
4
De nieuwe kleren van de keizer
dinsdag, 17 maart
5
Landschappelijk ontworpen buurt in Vinex-wijk Schuytgraaf voltooid
woensdag, 18 maart
Gerelateerde nieuwsberichten
Satire over gebruik groene gevels
12 juli 2011
Wytze Patijn stadsbouwmeester Delft
26 november 2010
Andere nieuwsberichten
PSV presenteert plannen voor uitbreiding Philips Stadion
20 maart, 3:37
De Eindhovense club wil de capaciteit van zijn onderkomen opschroeven met maximaal 25.000 bezoekers. Om dit te bewerkstelligen, komt er een nieuwe schil rond het stadion waarin een derde ring is opgenomen.
Rijkswaterstaat staakt renovatie markante houten Krùsrak-brug in Sneek
20 maart, 11:32
Tijdens de renovatie werd duidelijk dat de constructieve veiligheid van de brug niet langer kan worden verzekerd, laat RWS weten. De uit 2008 stammende Krúsrak-brug over de rijksweg 7 is ontworpen door Onix en Archterbosch Architecten.
KAAN Architecten en De Zwarte Hond winnen tender voor Area 19 TU Eindhoven
20 maart, 10:35
De opdracht omvat het ontwerp van een nieuw onderzoeks- en onderwijsgebouw en de stedenbouwkundige ontwikkeling van een nieuw campusgebied.
Projecten gezocht voor vijfde Adriaan Dessingprijs
19 maart, 2:42
De tweejaarlijkse architectuurprijs vestigt de aandacht op bijzondere, gerealiseerde plannen in de Zuid-Hollandse gemeenten Westland en Midden-Delfland. Het kan gaan om nieuwbouw, restauratie of landschappelijke projecten.
Friesland brengt duizenden karakteristieke boerderijen in kaart
20 maart, 2:16
Door alle informatie over de voor het landschap kenmerkende gebouwen op één plek te brengen, moet het makkelijker worden om ze te behouden.
ING: bijna de helft van de huiseigenaren stelt verduurzaming uit
20 maart, 12:18
De meeste mensen vinden dat de overheid te weinig doet om dit te stimuleren.
Rekenkamer kraakt resultaten EU-innovatiefonds voor verduurzaming
20 maart, 9:25
Het Innovatiefonds van de Europese Unie levert veel minder resultaat op dan verwacht op het gebied van verduurzaming en innovatie.
Provincie schrapt beoogde locaties windturbines in Groene Hart
19 maart, 1:35
De provincie had twaalf plekken op het oog, maar dat leidde tot maatschappelijk en politiek verzet.
Staten Utrecht willen netcongestie versneld aanpakken
19 maart, 9:44
De fracties wezen op de noodzaak van het zo snel mogelijk realiseren van een hoogspanningsstation dat essentieel is voor het opsplitsen van het elektriciteitsnetwerk tussen de Flevopolder, Gelderland en Utrecht.
Rotterdam wil woningbouw versnellen met pilot ‘Ontwikkelaar aan Zet’
18 maart, 4:33
De gemeente Rotterdam start een pilot waarbij projectontwikkelaars een grotere rol krijgen bij de voorbereiding van woningbouwprojecten.
Ga naar het nieuws-archief
0
0
0
0
Voor een optimale gebruikservaring plaatst Architectenweb functionele cookies. Wat de verschillende cookies precies doen leggen we uit in een
overzicht
. Cookies van social media kun je optioneel
aanzetten
.
Akkoord
Instellingen
Annuleren
OK
Sluiten
Doorgaan
Inloggen
Maak een gratis persoonlijk account aan
Feedback
Feedback
Wij horen graag jouw feedback. Laat je reactie achter en eventueel jouw e-mail adres.
Reactie
Verstuur