Projecten
Producten
Bedrijven
Vacatures
Agenda
Awards
Podcasts
more_horiz
Videos
Magazine
Thema's
Favorieten
Profiel
Uitloggen
Illustraties: Laura Alvarez Architecture
Laura Alvarez wint tweede prijs in Baskenland
12 oktober 2010, 15:09
Het Amsterdamse bureau
Laura Alvarez Architecture
heeft de tweede prijs verworven in de internationale competitie voor een nieuw cultureel centrum in Hernani, in Spaans Baskenland. De competitie was georganiseerd door het stadsbestuur als een open Europese tender.
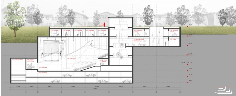
Het programma van eisen bestond uit 4.600 m2 aan ruimten voor cultuur, zoals een muziekschool, een theater, alsook ruimten voor workshops en vergaderingen. Verder werd er 3.000 m2 parkeerruimte gewenst.
Het voorstel van Laura Alvarez, Kultur Plataformak (platformen van cultuur) is georganiseerd rond vier terrasvormige bouwlagen. Deze ‘cultuurplatformen’ vormen een geheel met de helling waarin ze zijn verwerkt.
Op die wijze weet de architect met het gebouw de hoofdstraat een nieuwe cultureel gezicht te geven. Aan de andere zijde is de schaal klein gehouden om het complex te laten aansluiten bij de lage bebouwing aan de hoger gelegen straat.
Kultur Plataforma lost ook het hoogteverschil van zestien meter tussen het hoger en lager gelegen gedeelte van Hernani op. Het terrasvormige landschap maakt een verbinding tussen de twee stadsdelen door een nieuwe, aangename wandelroute te bieden. Die route draagt ook bij aan een intensiever gebruik van het cultureel centrum.
Laura Alvarez heeft eerder dit jaar in de internationale ideeënprijsvraag
Building for Bouwkunde
de (gedeelde) eerste prijs gewonnen met haar ‘Amalgam’. Ook werd zij opgenomen in de prestigieuze ‘ Europe´s 40 under 40’-keuze van The European Centre for Architecture, Art Design and Urban Studies en The Chicago Athenaeum Museum of Architecture and Design) en mocht zij de eerste prijs in de competitie 'Customize me', georganiseerd door Heijmans Vastgoed & Woningbouw, in ontvangst nemen.
Trefwoorden
laura alvarez
cultureel centrum
baskenland
Best gelezen
1
Woongebouwen door VdpArchitecten vormen nieuwe 'voorkant' Groningse Oosterparkwijk
vrijdag, 17 oktober
2
Gedetailleerde 3D-geprinte maquette toont ruimtelijke ontwikkeling Amsterdam
vrijdag, 17 oktober
3
Nieuw woongebouw op plek befaamde elektronicazaak Rotterdam-Noord
maandag, 20 oktober
4
Buikslotermeerplein in Amsterdam-Noord krijgt zeventig meter hoge woontoren
woensdag, 22 oktober
5
De Louise van De Zwarte Hond combineert sociale woningbouw met kwaliteit en duurzaamheid
maandag, 20 oktober
Gerelateerde nieuwsberichten
Tuinhuis voor meervoudig gebruik
28 juni 2017
Architectenweb organiseert tweede editie TIEN keer TIEN
21 mei 2012
Zaha Hadid ontwerpt cultuurcentrum Jordanië
24 februari 2010
Studio Lawrence is talent van de toekomst
1 juli 2010
Carme Pinós bouwt cultureel centrum
6 februari 2009
Building for Bouwkunde: de winnaars
16 maart 2009
Tuinhuis voor meervoudig gebruik
28 juni 2017
Architectenweb organiseert tweede editie TIEN keer TIEN
21 mei 2012
Zaha Hadid ontwerpt cultuurcentrum Jordanië
24 februari 2010
Studio Lawrence is talent van de toekomst
1 juli 2010
Carme Pinós bouwt cultureel centrum
6 februari 2009
Building for Bouwkunde: de winnaars
16 maart 2009
Toon alles
Andere nieuwsberichten
Schimmelstraat Amsterdam loopt niet langer dood dankzij woongebouw voor 55-plussers
46 minuten geleden
Aan de Tweede Kostverlorenkade in Amsterdam-West is deze zomer een appartementengebouw voor 55-plussers opgeleverd. Het gebouw met 38 sociale huurwoningen is in opdracht van Rochdale ontworpen door INBO.
Vormingsjaren van het Nieuwe Bouwen centraal in boek
1 uur geleden
Bij uitgeverij Wbooks is een boek verschenen over wat je de vormingsjaren van Het Nieuwe Bouwen kunt noemen. Centraal staat de periode 1910-1940, toen architecen als J.J.P. Oud en jan Duiker op zoek gingen naar een nieuwe architectuur.
Suikerbrug in Veurne voert gebruikers over hellingbanen langs werelderfgoed
Vandaag, 11:56
In het West-Vlaamse Veurne is onlangs de door ZJA Architects & Engineers ontworpen Suikerbrug geopend. De gebruikers fietsen of wandelen er over het kanaal door tussen de boomtoppen en langs Unesco Werelderfgoed.
Buikslotermeerplein in Amsterdam-Noord krijgt zeventig meter hoge woontoren
Vandaag, 10:57
VORM, VMX Architects en Arup hebben een tender gewonnen voor een zeventig hoge woontoren aan het Buikslotermeerplein in Amsterdam-Noord. Hartje Noord bestaat uit 114 woningen van elk zestig vierkante meter, met flexibele plattegronden.
Provincies zetten in op natuurherstel tegen stikstofimpasse
3 uur geleden
In 2030 moet zeventig procent van die natuurgebieden op orde zijn, vijf jaar later moet dat voor negentig procent gelden.
Renovatie Prinsenhof Delft kost negen miljoen meer dan eerder begroot
Vandaag, 09:33
Dat komt onder meer doordat bouwmaterialen en energie duurder zijn geworden en door ‘schaarste aan gespecialiseerd vakmanschap’, meldt de gemeente.
Oproep aan nieuw kabinet: maak topprioriteit van schoon water
Gisteren, 12:26
De Unie van Waterschappen vindt dat het volgende kabinet hiervoor moet zorgen om de Europese doelen voor schoon en gezond water te halen.
Zuid-Holland draagt elf locaties Groene Hart aan voor windturbines
Gisteren, 10:45
Uit een verkennend onderzoek bleek al dat in het open polderlandschap ruimte is voor maximaal 67 turbines van 240 meter.
Advocaten waarschuwen voor beperken bezwaar bij bouw
20 oktober, 11:54
Het inperken van de mogelijkheden om in bezwaar te gaan tegen bouwplannen is een risico voor de rechtsstaat, stelt de Nederlandse orde van advocaten.
Controle na asbestsanering schiet in derde van gevallen tekort
20 oktober, 9:31
Daardoor worden gebouwen schoon verklaard terwijl er nog asbestresten aanwezig zijn, waarschuwt de Arbeidsinspectie.
Ga naar het nieuws-archief
0
0
0
0
Voor een optimale gebruikservaring plaatst Architectenweb functionele cookies. Wat de verschillende cookies precies doen leggen we uit in een
overzicht
. Cookies van social media kun je optioneel
aanzetten
.
Akkoord
Instellingen
Annuleren
OK
Sluiten
Doorgaan
Inloggen
Maak een gratis persoonlijk account aan
Feedback
Feedback
Wij horen graag jouw feedback. Laat je reactie achter en eventueel jouw e-mail adres.
Reactie
Verstuur