Projecten
Producten
Bedrijven
Vacatures
Agenda
Awards
Podcasts
more_horiz
Videos
Magazine
Thema's
Favorieten
Profiel
Uitloggen
Copyright: en Ontwerpplek
Interieurarchitecten ontwerpen vrijwillig ruimte
22 maart 2010, 15:13
De interieurarchitecten van
Ontwerpplek
hebben op vrijwillige basis een ontmoetings- en taallesruimte voor de
Interkerkelijke Stichting Kerken en Buitenlanders
(ISKB) ontworpen. Tijdens de nationale vrijwilligersactie
NL DOET
afgelopen weekend presenteerden ze het resultaat.
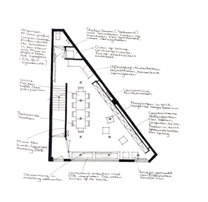
Rita Bronotte, zakelijk directeur van de stichting IKSB, spreekt van ‘een sobere praktische basis van OSB-vloerplaten, vilten kussens in een verbrede vensterbank en een grid hanglampen met kunst en open stellingkasten als symbool van zicht op sporen die mensen achterlaten. En dit alles binnen de grote beperkingen van een klein budget’.
Volgens Hilde Wopereis van Ontwerpplek heeft het bureau dertig uur gedaan over het totale project, inclusief de presentatie ervan. Het ISKB gaat nu een plan maken om de ruimte in haar onderkomen in Utrecht te realiseren.
Vrolijk meubel- en interieurbouw
gaat zich een dag lang eveneens vrijwillig inzetten voor de bouw van het interieur.
Trefwoorden
iskb
utrecht
vrolijk
ontwerpplek
Best gelezen
1
Zuid-Holland pakt provinciale weg bij Alphen voor honderd miljoen aan
vrijdag, 30 januari
2
Nederlands Fotomuseum opent deuren in gerenoveerd pakhuis Santos
woensdag, 4 februari
3
Wake-up calls from China
dinsdag, 3 februari
4
Huis Polderblik in De Realiteit Almere vernieuwd en verduurzaamd
maandag, 2 februari
5
Object Rotterdam neemt bezit van lege centrale bibliotheek
dinsdag, 3 februari
Gerelateerde nieuwsberichten
Catwalk als labyrint tussen publiek
21 juli 2010
Andere nieuwsberichten
FARO wint tender nieuwe woonwijk in Ravenstein
3 uur geleden
In opdracht van Ballast Nedam Development gaat FARO 190 woningen in de nieuwe wijk Ooievaarshoek ontwerpen.
Paul de Ruiter en DELVA aan de slag met herontwikkeling oud hoofdkantoor DSM
Vandaag, 10:42
Ontwikkelaar Laudy is samen met Paul de Ruiter Architects en DELVA Landscape Architecture | Urbanism geselecteerd voor de herontwikkeling van het voormalige hoofdkantoor van DSM in Heerlen.
Finalisten EUmies Award 2026 bekendgemaakt
Vandaag, 09:00
Vijf projecten komen in aanmerking voor de categorie architectuur, die als de ‘hoofdprijs’ beschouwd kan worden. Daarnaast zijn er twee genomineerden in de categorie Emerging.
De Zwarte Hond en Arup presenteren schetsontwerp nieuw Museum Batavialand
Gisteren, 14:19
In schetsontwerp voor de vernieuwing van het museum in Lelystad is het schip de Batavia een prominente plek toebedeeld
Zeeland en bisdom Breda zoeken naar maatwerk bij herbestemming kerken
1 uur geleden
Donderdag is een overeenkomst getekend om een duurzame oplossing te vinden voor de gebouwen, die door ontkerkelijking steeds vaker leeg komen te staan.
Caroline Voet verzorgt derde Jos. Bedaux-lezing
4 uur geleden
Ze spreekt haar lezing onder de titel ‘Op zoek naar schoonheid. De zeggingskracht van architectuur.’ uit in het Cobbenhagengebouw van Tilburg University.
RLi: overheid moet actiever ingrijpen in grondmarkt
Vandaag, 09:51
Het huidige overheidsbeleid bestaat vooral uit vrijwillige ingrepen, die in de praktijk zorgen voor hogere prijzen van landbouwgrond, stelt de raad.
A-tract architecture treedt toe tot Sweco
Gisteren, 11:52
Sweco neemt a-tract architecture op in haar groep en bouwt daarmee verder aan haar geïntegreerde ontwerpaanpak, zo meldt de onderneming.
Zorgen in Zuid-Hollandse politiek om bouw kwart miljoen woningen
Gisteren, 11:00
Een groot deel van de Zuid-Hollandse politiek vreest dat de woningbouw niet snel genoeg gaat om het doel voor 2030 te halen.
Oppositie Noord-Holland vindt plan landelijk gebied ‘slappe hap’
4 februari, 3:13
Het plan, genaamd Buitengewoon Noord-Holland, werd door de steun van de coalitie wel aangenomen.
Ga naar het nieuws-archief
0
0
0
0
Voor een optimale gebruikservaring plaatst Architectenweb functionele cookies. Wat de verschillende cookies precies doen leggen we uit in een
overzicht
. Cookies van social media kun je optioneel
aanzetten
.
Akkoord
Instellingen
Annuleren
OK
Sluiten
Doorgaan
Inloggen
Maak een gratis persoonlijk account aan
Feedback
Feedback
Wij horen graag jouw feedback. Laat je reactie achter en eventueel jouw e-mail adres.
Reactie
Verstuur