Projecten
Producten
Bedrijven
Vacatures
Agenda
Awards
Podcasts
more_horiz
Videos
Magazine
Thema's
Favorieten
Profiel
Uitloggen
Copyright: 's Richard Lememeyer
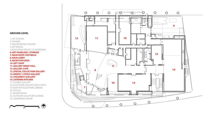
'Poollicht'-museum in Edmonton geopend
1 februari 2010, 10:22
Een materialisatie van het poollicht, zo zou je het zondag geopende
Art Gallery of Alberta
kunnen noemen. Meer nog dan dat is het museum een reflectie van de Canadese stad Edmonton, waar het door
Randall Stout Architects
ontworpen gebouw staat.
Met zijn ‘dwarrelende’ gevelplaten van staal refereert het gebouw aan het in Edmonton aanwezige
poollicht
. Daarnaast zorgen de spiegelende materialen (naast staal ook glas en zink) in combinatie met het veranderende daglicht telkens voor een ander aanzicht.
De grootste inspiratie haalde de architect echter uit de structuur van de stad, die is gelegen aan een meanderende rivier. Het contrast tussen de rechte stedenbouwkundige vormen en de golvende loop van de Saskatchewan is terug te zien in het ontwerp.
De golvende entree is tevens het centrale punt van het gebouw. Het 26 meter hoge atrium is van binnen al even vloeiend als aan de buitenkant en vormt zo een kunstwerk op zich. De rest van het interieur is wit en sober, zodat alle aandacht naar de collectie uitgaat.
Het museum, dat ’s avonds aan de buitenzijde is aangekleed met wit kunstlicht, dient als onderkomen voor (hedendaagse) kunst en historisch materiaal uit de regio. Verder zijn er een restaurant en winkel in gevestigd.
De Art Gallery of Alberta vormt een icoon, maar staat niet helemaal los van de omgeving. Naast de nieuwbouw is ook een bestaand theater gerenoveerd en een educatiecentrum voor kunst uitgebreid. Hun functies zullen als een drie-eenheid worden gecombineerd.
Trefwoorden
edmonton
alberta art gallery
randall stout architects
Locatie
Best gelezen
1
Finalisten presenteren ontwerp voor Shift Landmark in Rotterdam
woensdag, 4 maart
2
Architect Oliver Thill op 55-jarige leeftijd overleden
donderdag, 5 maart
3
Nieuwe Hittekaart Woningmarkt 2026 van BPD toont aanhoudende woningdruk
dinsdag, 3 maart
4
Strijp-S krijgt woonbuurtje met karakteristieken voormalig Philips-terrein
maandag, 2 maart
5
Melkmeisje staat model voor woontoren De Catharina in Zaandam
vrijdag, 27 februari
Gerelateerde nieuwsberichten
Malmö krijgt oranje doos
8 april 2010
Kathedraal van het Noorderlicht ingewijd
11 februari 2013
Andere nieuwsberichten
Architect Oliver Thill op 55-jarige leeftijd overleden
Gisteren, 14:27
Afgelopen maandag is op 55-jarige leeftijd architect Oliver Thill overleden. Het door hem en André Kempe opgerichte Atelier Kempe Thill behoort tot de meest gewaardeerde Nederlandse architectenbureaus van de afgelopen 25 jaar.
HvdHA ontwerpt twee woonblokken in Utrecht Terwijde volgens typologie van woonpalazzo
Gisteren, 10:49
In Utrecht Terwijde worden twee woonblokken met 161 sociale huurwoningen naar ontwerp van Hans van der Heijden Architecten gerealiseerd. De gebouwen worden ontworpen volgens de typologie van een ‘woonpalazzo’.
Sweco neemt Belgische activiteiten Conix RDBM Architects over
4 maart, 4:31
Sweco voegt opnieuw een grote vis toe aan zijn vijver van overgenomen architectenbureaus. Vanaf 30 april zet Conix RDBM Architects zijn Belgische activiteiten voort onder de naam Sweco Architects.
VAi schijnt licht op feministische vrouwenwerkgroep uit de jaren tachtig
4 maart, 3:47
In de jaren 1980 ging de Vlaamse Werkgroep Vrouwen en Wonen de strijd aan met het heersende patriarchale woon- en maatschappijmodel. Het Vlaams Architectuurinstituut organiseert een tentoonstelling over deze wegbereiders en hun boodschap.
Hardt Hyperloop failliet verklaard door rechtbank
Gisteren, 11:37
Het Rotterdamse bedrijf was bezig met de ontwikkeling van technologie om mensen op hoge snelheid via capsules door een vacuümbuis te vervoeren.
Onderzoek: zeespiegel kustgebieden hoger dan in studies aangenomen
Gisteren, 09:13
De zeespiegel aan de kust is in grote delen van de wereld waarschijnlijk hoger dan in veel wetenschappelijke studies wordt aangenomen.
Gelderland geeft voorrang aan vergunningen met minder stikstof
4 maart, 12:24
De plannen zijn onderdeel van het pakket maatregelen dat het Gelderse bestuur wil nemen om de vergunningverlening voor zaken als de woningbouw weer op gang te krijgen.
Amsterdam bouwde opnieuw minder woningen dan de bedoeling is
4 maart, 10:56
Wethouder Steven van Weyenberg spreekt van een ‘sprong in de aantallen’, omdat er in 2025 beduidend meer huizen bijkwamen dan de jaren daarvoor.
Rijksvastgoedbedrijf zet eerste deelgebied nieuwe wijk Valkenhorst in Katwijk te koop
3 maart, 3:26
Op deze locatie mogen de eerste 450 van de in totaal 5.600 woningen worden gebouwd.
Verkoopgolf van woningen door investeerders zet door
2 maart, 2:57
Investeerders hebben in het vierde kwartaal van vorig jaar de meeste woningen verkocht sinds 2021, meldt het Kadaster.
Ga naar het nieuws-archief
0
0
0
0
Voor een optimale gebruikservaring plaatst Architectenweb functionele cookies. Wat de verschillende cookies precies doen leggen we uit in een
overzicht
. Cookies van social media kun je optioneel
aanzetten
.
Akkoord
Instellingen
Annuleren
OK
Sluiten
Doorgaan
Inloggen
Maak een gratis persoonlijk account aan
Feedback
Feedback
Wij horen graag jouw feedback. Laat je reactie achter en eventueel jouw e-mail adres.
Reactie
Verstuur