Projecten
Producten
Bedrijven
Vacatures
Agenda
Awards
Podcasts
more_horiz
Videos
Magazine
Thema's
Favorieten
Profiel
Uitloggen
Producten
Producttags
AAN
UIT
Trapjeswijk Holtenbroek
13 oktober 2006
0
0
0
0
VRIJE VERTALING CIAM-BEGINSELEN
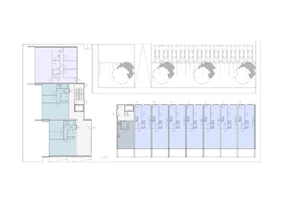
Voor Holtenbroek, een CIAM-wijk in Zwolle, is een stedenbouwkundig plan gemaakt waarin de oude stempels opnieuw zijn gedefinieerd. Naast een verouderd woningbestand is het grootste probleem van deze wijken de definiëring van de grenzen tussen openbaar, collectief en privé gebied. Daar staat tegenover dat veel van de kwaliteiten van de wijk voortkomen uit de CIAM- beginselen van licht, lucht en ruimte, die voor een aangenaam open karakter van de buurt zorgen.
De nieuwbouw van de woningen is verdeeld over vier architectenbureaus. De herontwikkeling wordt gedaan door één bureau, Binnen het plan maakt Broekbakema vijfennegentig woningen verdeeld over vier clusters met een mix van laag - en hoogbouw.
Een duidelijke markering van de overgang tussen de openbare ruimte en de vernieuwde clusters is essentieel voor de opzet van het plan. Alle woningen zijn daarom op een plint gesitueerd die de grens van het cluster definieert. Het is een fysieke afscheiding die de openheid van de buurt handhaaft. Deze plint sluit aan bij de bestaande woningtypologie van de trapjeswijk en reageert ook op de verschillende nieuwe woningtypes voor de wijk.
De stedenbouwkundige opzet van de Trapjeswijk is de transformatie van een open stempelverkaveling tot een woonwijk met 14 clusters. Bestaande woningen binnen een cluster worden deels herontwikkeld. Nieuwe woningen worden toegevoegd. Binnen het plan is een duidelijk onderscheid tussen de open, autoluwe en groene openbare ruimte en de collectiviteit van de binnengebieden.
De clusters zijn opgebouwd uit verschillende woningtypes, die ieder in een eenduidig volume op de plint zijn geplaatst. Alle woningen zijn gericht op de openbare ruimte en hebben aan deze zijde een architectonisch element dat de richting van de woningen in het cluster bepaalt. Deze betonnen kaders worden op verschillende wijze ingezet, als balkon, loggia of woningentree.
Stel jezelf kort voor! Dan weet het betreffende bedrijf wie hun model gedownload heeft.
Wil je niet bij elke download jouw gegevens in hoeven voeren?
Klik dan hier om in te loggen
.
Heb je nog geen account?
Maak dan hier een gratis account aan
.
Voornaam
Achternaam
E-mailadres
Downloaden
Wanneer je modellen downloadt op Architectenweb.nl worden relevante gegevens van jou – zoals jouw naam en e-mailadres – met het betreffende bedrijf gedeeld. Meer hierover lees je in ons
privacybeleid
.
Trefwoorden
openbare ruimte
plint
Broekbakema
Neem contact op
Projectdata
Staat van realisatie
Voltooid
Start bouw
2007
Bruto m
2
17500
Neem contact op met
Broekbakema
Je bent momenteel niet ingelogd. Hierdoor is het alleen mogelijk om meer informatie per e-mail op te vragen. Wil je liever gebeld worden of documentatie per post ontvangen?
Klik dan hier om in te loggen
.
Heb je nog geen account?
Maak dan hier een gratis account aan
.
Voornaam
Achternaam
E-mailadres
Opmerkingen
Bij iedere aanvraag worden relevante gegevens van jou gedeeld met het betreffende bedrijf. Meer hierover lees je in ons
privacybeleid
.
Ja, denk met me mee rond de
materialisering van mijn project
Meer projecten van Broekbakema
Portiersloge: groene entree op de Byondis Campus
Broekbakema
dsm-firmenich hoofdkantoor
Broekbakema
Ashram college Alphen, een school met een hart!
Broekbakema
Omnia: gebouw voor dialoog
Broekbakema
Next Material House
Broekbakema
Canon Production Printing HQ
Broekbakema
Ashram College Nieuwkoop
Broekbakema
Sabic Technology Center
Broekbakema
DSM Materialencentrum
Broekbakema
IKC De Bollenstreek
Broekbakema
Brightlands Chemelot Campus Geleen
Broekbakema
Trinseo HQ
Broekbakema
Wees- en oudeliedenhuis
Broekbakema
Woonzorgboerderij Nooitgedacht
Broekbakema
Energy Academy Europe
Broekbakema
Gebouw 24: tijdelijk restaurant
Broekbakema
De Kuyper Royal Distillers
Broekbakema
SKO Kindercentrum Vuur en Vlam
Broekbakema
Belasting & Douane museum
Broekbakema
Fioretticollege
Broekbakema
Synthon Fast Track Offices & Labs
Broekbakema
Dikhuidenvleugel Diergaarde Blijdorp
Broekbakema
Raadzaal Ede
Broekbakema
DSM/Lanxess Headquarters
Broekbakema
Hoofdgebouw GSG Leo Vroman
Broekbakema
Interieur woonhuis
Broekbakema
Beweegcentrum Windesheim
Broekbakema
Frederikkazerne
Broekbakema
Brugklasgebouw GSG Leo Vroman
Broekbakema
Herinrichting robecotoren
Broekbakema
Herinrichting robecotoren
Broekbakema
Gebouw X Hogeschool Windesheim
Broekbakema
Leerpark Presikhaaf
Broekbakema
Portiersloge Research Campus Chemelot
Broekbakema
RIKILT-VWA WUR-campus
Broekbakema
Publiekshal Gemeentehuis
Broekbakema
Twents Carmel College De Thij
Broekbakema
Kantoorvilla Brainpark
Broekbakema
CP Parenterals productiegebouw Organon Oss
Broekbakema
Twents Carmel College De Thij
Broekbakema
Vrijstaande woningen
Broekbakema
Gemeentehuis Raalte
Broekbakema
World Music & Dance Centre
Broekbakema
De Kuyper Royal Distillers
Broekbakema
Stedelijk Gymnasium Arnhem
Broekbakema
Galerie Erf Vlasblom
Broekbakema
Vrijstaande woningen Wormer
Broekbakema
Kantoorpaviljoen TGM Asten
Broekbakema
Het Buitenhof
Broekbakema
Combistations De President
Broekbakema
Casa CASLa
Broekbakema
Quarantainelab Plantenziektenkundige Dienst
Broekbakema
Europan Omega, Woonlandschap de Evenaar
Broekbakema
TEP Loungin
Broekbakema
Herinrichting Provinciehuis Noord-Holland
Broekbakema
Renovatie Roteb
Broekbakema
Renovatie Roteb
Broekbakema
NAi Open Maquettedepot
Broekbakema
NAi Open Maquettedepot
Broekbakema
Corlaer College 2
Broekbakema
Kropman Installatietechniek, Nieuwerijn Utrecht
Broekbakema
Mainstreet Shell
Broekbakema
3550 HOJEL CITY CENTER FASE II, UTRECHT
Broekbakema
Centrale Bibliotheek Rotterdam
Broekbakema
Douane- en Belastingmuseum
Broekbakema
Ministerie van LNV
Broekbakema
Kropman Installatietechniek B.V.
Broekbakema
Esdal College
Broekbakema
Hojel City Center
Broekbakema
Plantenziektenkundige Dienst
Broekbakema
KLM : Operations Control Center Schiphol Oost
Broekbakema
Masterplan Shell Int. Exploration and Production
Broekbakema
Laboratorium RG Organon Oss
Broekbakema
Organon te Oss (gebouw KR)
Broekbakema
Portiersloge: groene entree op de Byondis Campus
Broekbakema
dsm-firmenich hoofdkantoor
Broekbakema
Ashram college Alphen, een school met een hart!
Broekbakema
Omnia: gebouw voor dialoog
Broekbakema
Next Material House
Broekbakema
Canon Production Printing HQ
Broekbakema
Ashram College Nieuwkoop
Broekbakema
Sabic Technology Center
Broekbakema
DSM Materialencentrum
Broekbakema
IKC De Bollenstreek
Broekbakema
Brightlands Chemelot Campus Geleen
Broekbakema
Trinseo HQ
Broekbakema
Wees- en oudeliedenhuis
Broekbakema
Woonzorgboerderij Nooitgedacht
Broekbakema
Energy Academy Europe
Broekbakema
Gebouw 24: tijdelijk restaurant
Broekbakema
De Kuyper Royal Distillers
Broekbakema
SKO Kindercentrum Vuur en Vlam
Broekbakema
Belasting & Douane museum
Broekbakema
Fioretticollege
Broekbakema
Synthon Fast Track Offices & Labs
Broekbakema
Dikhuidenvleugel Diergaarde Blijdorp
Broekbakema
Raadzaal Ede
Broekbakema
DSM/Lanxess Headquarters
Broekbakema
Hoofdgebouw GSG Leo Vroman
Broekbakema
Interieur woonhuis
Broekbakema
Beweegcentrum Windesheim
Broekbakema
Frederikkazerne
Broekbakema
Brugklasgebouw GSG Leo Vroman
Broekbakema
Herinrichting robecotoren
Broekbakema
Herinrichting robecotoren
Broekbakema
Gebouw X Hogeschool Windesheim
Broekbakema
Leerpark Presikhaaf
Broekbakema
Portiersloge Research Campus Chemelot
Broekbakema
RIKILT-VWA WUR-campus
Broekbakema
Publiekshal Gemeentehuis
Broekbakema
Twents Carmel College De Thij
Broekbakema
Kantoorvilla Brainpark
Broekbakema
CP Parenterals productiegebouw Organon Oss
Broekbakema
Twents Carmel College De Thij
Broekbakema
Vrijstaande woningen
Broekbakema
Gemeentehuis Raalte
Broekbakema
World Music & Dance Centre
Broekbakema
De Kuyper Royal Distillers
Broekbakema
Stedelijk Gymnasium Arnhem
Broekbakema
Galerie Erf Vlasblom
Broekbakema
Vrijstaande woningen Wormer
Broekbakema
Kantoorpaviljoen TGM Asten
Broekbakema
Het Buitenhof
Broekbakema
Combistations De President
Broekbakema
Casa CASLa
Broekbakema
Quarantainelab Plantenziektenkundige Dienst
Broekbakema
Europan Omega, Woonlandschap de Evenaar
Broekbakema
TEP Loungin
Broekbakema
Herinrichting Provinciehuis Noord-Holland
Broekbakema
Renovatie Roteb
Broekbakema
Renovatie Roteb
Broekbakema
NAi Open Maquettedepot
Broekbakema
NAi Open Maquettedepot
Broekbakema
Corlaer College 2
Broekbakema
Kropman Installatietechniek, Nieuwerijn Utrecht
Broekbakema
Mainstreet Shell
Broekbakema
3550 HOJEL CITY CENTER FASE II, UTRECHT
Broekbakema
Centrale Bibliotheek Rotterdam
Broekbakema
Douane- en Belastingmuseum
Broekbakema
Ministerie van LNV
Broekbakema
Kropman Installatietechniek B.V.
Broekbakema
Esdal College
Broekbakema
Hojel City Center
Broekbakema
Plantenziektenkundige Dienst
Broekbakema
KLM : Operations Control Center Schiphol Oost
Broekbakema
Masterplan Shell Int. Exploration and Production
Broekbakema
Laboratorium RG Organon Oss
Broekbakema
Organon te Oss (gebouw KR)
Broekbakema
Toon alles
Andere Projecten
Verlichting fietsenstalling Koopgoot Rotterdam
Loerakker led line
Efficiënt afvaltransport in ziekenhuis St. Jansdal
Stansz
Emco entreematten in museale architectuur
EMCO Benelux B.V.
Duurzame zwembadroosters voor zwemcentrum De Welle
EMCO Benelux B.V.
Gorter dakluiken op Spaarnwoude Park Hotel
Gorter Luiken BV
Veilige daktoegang nieuwbouw Emmapark
Gorter Luiken BV
Houten huis in de polder - WaxedWood Gold Color
Foreco Houtproducten
Ottho Amsterdam - geluidwerende balkonbeglazing
Solarlux Nederland B.V.
Groningse baksteenarchitectuur met Clickbrick Pure
wienerberger
Duurzame transformatie met groene gevel in Utrecht
Sempergreen
Low Carbon isolatieglas van Vandaglas voor Kavel F
Vandaglas b.v.
BDO kantoor Breda
ULMA Architectural Solutions
Ga naar het projecten-overzicht
Voor een optimale gebruikservaring plaatst Architectenweb functionele cookies. Wat de verschillende cookies precies doen leggen we uit in een
overzicht
. Cookies van social media kun je optioneel
aanzetten
.
Akkoord
Instellingen
Annuleren
OK
Sluiten
Doorgaan
Inloggen
Maak een gratis persoonlijk account aan
Feedback
Feedback
Wij horen graag jouw feedback. Laat je reactie achter en eventueel jouw e-mail adres.
Reactie
Verstuur