Projecten
Producten
Bedrijven
Vacatures
Agenda
Awards
Podcasts
more_horiz
Videos
Magazine
Thema's
Favorieten
Profiel
Uitloggen
Nieuw
Populair
Toon alles
Architectenweb magazine #14
Architectenweb magazine #13
Publieke gebouwen
Architectenweb magazine #12
Kantoren
Architectenweb magazine #11
Scholen
Architectenweb magazine #10
Zorg
Architectenweb magazine #14
Architectenweb magazine #10
Zorg
Architectenweb magazine #12
Kantoren
Architectenweb magazine #13
Publieke gebouwen
Architectenweb magazine #6
Transformatie en Renovatie
Om direct naar je favorieten te kunnen gaan is het nodig om eerst in te loggen.
Nieuw
Architectenweb Awards 2025
Architectenweb Awards 2024
Architectenweb Awards 2023
Architectenweb Awards 2022
Architectenweb Awards 2021
Architectenweb Awards 2020
Architectenweb Awards 2019
Architectenweb Awards 2018
Om direct naar je favorieten te kunnen gaan is het nodig om eerst in te loggen.
Nieuw
Populair
Favorieten
Toon alles
Vakwerk Architecten
Nominatie voor de prijs voor Architect van het Jaar 2025
Sanne van Manen
Nominatie voor de prijs voor Architect van het Jaar 2025
KSA
Nominatie voor de prijs voor Architect van het Jaar 2025
KRFT
Nominatie voor de prijs voor Architect van het Jaar 2025
Joost Ector
Nominatie voor de prijs voor Architect van het Jaar 2025
Prijsuitreiking Architectenweb Awards 2024
Impressie van een feestelijke avond
Martens, Willems & Humblé Architecten
Nominatie voor de prijs voor Architect van het Jaar 2024
Uitreiking van Architectenweb Awards 2020
Impressie van de prijsuitreiking via Zoom
De Zwarte Hond
Nominatie voor de prijs voor Architect van het Jaar 2024
Avond met De Zwarte Hond
Symposium
Om direct naar je favorieten te kunnen gaan is het nodig om eerst in te loggen.
Nieuw
Populair
Categorieën
Favorieten
Toon alles
ST1centrum
Dé specialist op het gebied van gevelstenen en dakpannen met showrooms in Amsterdam en Meppel
Studio Massimo
Architecture & Nature
Brandpreventie Academy BV
Cay Circulaire Keukens
Circulaire keukens en pantry's
Studio Kirsten Reith
Interieurontwerp
Studio175
Interieuradvies in regio Utrecht
Interior & Co
Studio175
Interieuradvies in regio Utrecht
Cay Circulaire Keukens
Circulaire keukens en pantry's
Orange Automatic Doors
Brandpreventie Academy BV
Studio Kirsten Reith
Interieurontwerp
Architecten
Architectuur
Mobiliteit en infrastructuur
Stedenbouw en landschapsarchitectuur
Leveranciers
Gevels
Daken
Ramen en deuren
Trappen, liften en balustrades
Binnenwanden
Vloeren
Plafonds
Verlichting
Sanitair
Projectinrichting
Installaties
Constructies
Buitenruimte
Software
Adviseurs
Bestekschrijvers
Bouwmanagement
Installatie adviseurs E
Bouwfysica
Calculators
Installatie adviseurs G/W
Bouwkundig tekenwerk
Constructeurs
Lichtadviseurs
Adviseur beveiliging
Juristen
Intermediairs, Payrolling
Aannemers
Overig
Presentatie
Instellingen / onderwijs
Overig
Om direct naar je favorieten te kunnen gaan is het nodig om eerst in te loggen.
Nieuw
Populair
Favorieten
Toon alles
Gesprek met Stephan Sliepenbeek over hoogbouw in Amstel III
Gesprek met Ellen van Bueren over gebiedsontwikkeling en hoogbouw
Gesprek met Ma Yansong over ontwerpen die emotie oproepen
Gesprek met Paul de Ruiter over innovatieve en duurzame hoogbouw
Gesprek met Pi de Bruijn over zijn ontwerpen voor de Tweede Kamer toen en nu
Gesprek met Ellen van Bueren over gebiedsontwikkeling en hoogbouw
Gesprek met Oresti Sarafopoulos over het ontwerpen van een kantoorgebouw met bijna geen installaties
Gesprek met Stijn Steenbakkers over verdichting en hoogbouw in Eindhoven
Gesprek met Pi de Bruijn over zijn ontwerpen voor de Tweede Kamer toen en nu
Gesprek met Paul de Ruiter over innovatieve en duurzame hoogbouw
Om direct naar je favorieten te kunnen gaan is het nodig om eerst in te loggen.
Nieuw
Populair
Categorieën
Favorieten
Toon alles
Hoofdkantoor We Enable Climbers
Renovatie met respect voor oorspronkelijke ontwerp
Øbro-Hallen
ITO Toren Amsterdam
Natuurlijk modern bedrijfsgebouw
Boekweitkamp, Den Haag
Renovatieproject Ockenburghstraat
Exclusieve wooneenheden
De Grote Zwaan, Nijmegen
ASML Gebouw 3
Architectuur
Woningbouw
Zorg
Hotels
Restaurants en café’s
Winkels
Sportgebouwen
Culturele gebouwen
Overheidsgebouwen
Scholen
Kantoren
Bedrijfsgebouwen
Paviljoens en kunst
Overig
Mobiliteit en infrastructuur
Trein- en metrostations
Luchthavens
Busstations
Parkeergarages
Fietsparkeren
Wegen
Bruggen
Water
Energie
Tankstations en laadstations
Waterzuivering en afvalverwerking
Overig
Stedenbouw en landschapsarchitectuur
Regionale visies
Gebiedsvisies
Plannen stedelijk weefsel
Amusementsparken en dierentuinen
Lichtontwerpen
Openbare ruimte
Pleinen
Parken
Tuinen
Speelplaatsen
Uitkijktorens
Overige (bijv. begraafplaatsen)
Om direct naar je favorieten te kunnen gaan is het nodig om eerst in te loggen.
Nieuw
Populair
Categorieën
Favorieten
Toon alles
Colorcoat Prisma Textured
Nieuwe structuurafwerking toegevoegd aan Tata Steel's Colorcoat Prisma® portfolio
Compact sectionaaldeur voor showrooms
Praktisch én mooi
Kvadrat Acoustics introduces Baffle
A pioneering acoustic concept for ceilings.
MasterPatio Vertical Slider
MasterPatio Vertical Slider doorontwikkeld tot systeemoplossing
Akoestische scheidingswand met print
Een oplossing met print waar je stil van wordt
StoTherm Wood: cementvrij gevelsysteem met houtvezelisolatie
Biobased gevelisolatie met natuurlijke prestaties
Akoestisch kussen.
Ervaar de ultime natuurlijke oplossing voor akoestiek problemen.
Lumiglaze – Het vlakglas van VELUX Commercial
Een nieuw tijdperk in daglichtontwerp – minimalistisch, functioneel en klaar voor de toekomst.
Knauf MaxSpace
Minder wand, méér ruimte. Het ideale profiel voor meer winst per m²
Veelzijdig straatmeubilair
Van openbare ruimte naar (be)leefomgeving
Gevels
Gevelbekleding
Vliesgevels
Zonwering buiten
Isolatie
Gevelconstructies
Signing
Overig
Daken
Dakafwerkingen
Dakisolatie
Dakconstructies
Dakranden, dakgoten en HWA's
Dakramen
Lichtkoepels
Lichtstraten
Schoorstenen
Overig
Dakluiken
Ramen en deuren
Raam- en deursystemen / kozijnen
Vliesgevels
Hang- en sluitwerk
Beveiliging en luiken
Dorpels en vensterbanken
Lateien
Roosters
Glas
Dakramen
Dakkoepels
Lichtstraten
Zonwering buiten
Zonwering binnen
Buitendeuren
Binnendeuren
Postvakken en brievenbussen
Overig
Dakluiken
Trappen, liften en balustrades
Trappen
Roltrappen
Liften
Balustrades en hekwerken
Galerijen
Binnenwanden
Binnenwanden
Wandafwerking
Vloeren
Constructieve vloeren
Verhoogde vloeren
Vloerafwerkingen
Overig
Plafonds
Tegels
Lineair
Grill
Open en roosters
Naadloos
Eilanden en baffles
Plafondafwerkingen
Ophangsystemen
Overig
Klimaatplafonds
Verlichting
Binnenverlichting
Buitenverlichting
Sanitair
Kranen en douchesets
Wastafels
Douchewanden en douchebakken
Baden
Waterclosets
Accessoires
Overig
Projectinrichting
Stoelen
Banken
Tafels
Kasten
Balies
Vrijstaande wanden
Keukens
Accessoires
Overig
Cabines
Interieurbeplanting
Stoffering
Installaties
Verwarming, koeling en ventilatie
Elektrotechnische installaties
Schakelmateriaal
Domotica
Deurcommunicatie
Beveiliging
Liften
Onderhoudsinstallaties
Overig
Brandbeveiliging
Constructies
Draagconstructies
Funderingen en kelders
Overig
Brandbeveiliging
Buitenruimte
Bestratingen en verhardingen
Afwateringen
Terreinafscheidingen en geluidsschermen
Buitenmeubilair
Fietsparkeren
Terrassen
Terrasoverkappingen
Bruggen
Accessoires
Overig
Beplanting
Sport- en speeltoestellen
Software
Tekenen 2D
Modelleren 3D / BIM
Visualisatie / rendering
Parametrisch ontwerpen
Bouwfysica
Draagconstructie
Overig
Virtual Reality
Cloudoplossingen
Om direct naar je favorieten te kunnen gaan is het nodig om eerst in te loggen.
Nieuw
Populair
Favorieten
Toon alles
Prefab beurs - 7 t/m 9 oktober 2025
Brabanthallen 's-Hertogenbosch
Boekpresentatie en panelgesprek met Floor Milikowsky
Prins Hendrikkade 600, 1011 VX Amsterdam
Architects Table ’25: Lunch & Inspiratie in HAUT Amsterdam
ATAG LIVE – HAUT gebouw, Spaklerweg 10F, 1096 BA Amsterdam (tegenover metrostation Spaklerweg)
Inspiratiedag @ Sempergreen – Gevelgroen
Defensieweg 1, 3984 LR Odijk
Architectenweb symposium: klein maar fijn wonen?
Pakhuis de Zwijger
Ontdek het seminarieprogramma van Architect@Work Amsterdam
De Kromhouthal, Gedempt Hamerkanaal 231, Amsterdam
Architects Table ’25: Lunch & Inspiratie in HAUT Amsterdam
ATAG LIVE – HAUT gebouw, Spaklerweg 10F, 1096 BA Amsterdam (tegenover metrostation Spaklerweg)
Prefab beurs - 7 t/m 9 oktober 2025
Brabanthallen 's-Hertogenbosch
DigiBouw 2025 – hét event voor digitalisering in de bouwsector
Expozaal van het Beatrixgebouw in Utrecht
Architectenweb symposium: klein maar fijn wonen?
Pakhuis de Zwijger
Om direct naar je favorieten te kunnen gaan is het nodig om eerst in te loggen.
Nieuw
Toon alles
Design
Duurzaamheid
Gevel
Infrastructuur
Interieur
Kantoren
Leisure
Openbare ruimte
Publieke gebouwen
Scholen
Transformatie en Renovatie
Woningbouw
Zorg
Om direct naar je favorieten te kunnen gaan is het nodig om eerst in te loggen.
Nieuw
Populair
Toon alles
Medior Architect
Assistent Ontwerper (Junior Architect)
Ervaren Bouwkundig Tekenaar
9graden architectuur Amersfoort zoekt een bouwkundig modelleur
SVP zoekt bureauondersteuner
SVP zoekt medior stedenbouwkundige
Junior Architect (NL/EN)
De Academie van Bouwkunst Amsterdam zoekt twee onderzoekers voor lectoraat
Architect
Site Practice zoekt medior architect met 4-6 jaar ervaring (Amsterdam)
Junior Ontwerper
Studio Nauta zoekt projectleider
Om direct naar je favorieten te kunnen gaan is het nodig om eerst in te loggen.
Producten
Copyright: Norbert van Onna
Copyright: Norbert van Onna
Copyright: Norbert van Onna
Copyright: Norbert van Onna
Copyright: Norbert van Onna
Copyright: Norbert van Onna
Copyright: Norbert van Onna
Copyright: Norbert van Onna
Copyright: Norbert van Onna
Copyright: Broekbakema
Copyright: Broekbakema
Copyright: Broekbakema
Copyright: Broekbakema
Copyright: Broekbakema
Copyright: Broekbakema
Producttags
AAN
UIT
Next Material House
10 januari 2022
2
0
0
0
Op het terrein van Tespa in Weert is de nieuwbouw van het Next Material House (NEMHO) opgeleverd. De verschillende bedrijven van Broadview Holding – waarponder Arpa, Formica, Homapal, Trespa en Westag – werken voortaan onder één dak samen aan innovatie en productontwikkeling. Ons gebouwontwerp zorgt op de werkvloer voor maximale R&D-synergie tussen medewerkers.
Buiten valt je oog meteen op de bijzondere gevel van dit internationale ‘R&D-huis.’ De gevelbekleding is van Trespa-makelij. We laten zien dat je met dit materiaal hele mooie dingen kunt doen. Eerlijk gezegd, waren de materiaalmogelijkheden voor ons onbekend, totdat we in 2017 voor het bedrijf aan de slag gingen. De nieuwste snufjes uit de productlijnen verwerkten we uiteindelijk als een showcase in het gebouwontwerp.
Nieuwbouw
Wat zijn we nu enthousiast over het eindresultaat. De zwarte buitengevel zit als een natuurlijke huid vol reliëf om het gebouw heen. Als het denkbeeldige huidpatroon van een slang zijn de Trespa-platen met wisselende structuren (textuur) tot klein formaat gezaagd. Dit patroon verbindt alle gevelonderdelen. Met de ‘huid’ vertellen we het verhaal van de materialen die binnen ontwikkeld worden. In dat concept gaan we terug naar de natuurlijke oorsprong van het materiaal van Trespa, waaronder voornamelijk (70%) hout. Je ziet dit nu terug in de uitstraling van de nieuwbouw, Door de combinatie van de zwarte huid en witte lamellen heeft het gebouw bovendien een hele sterke en eigen identiteit.
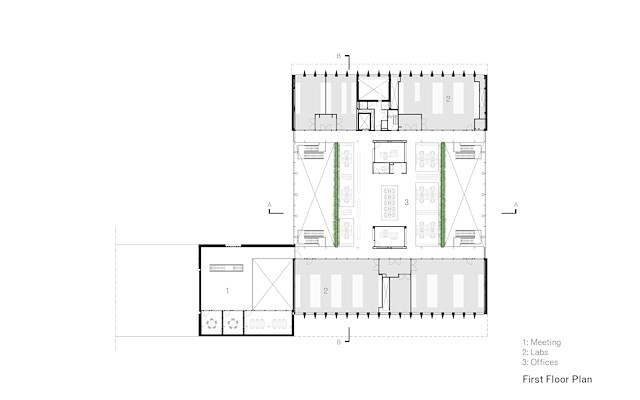
Open werkomgeving
Van buitenaf zie je meteen wat er in de laboratoria gebeurt. We gaven de ‘labvleugels’ in het gebouwontwerp een prominente plek aan de buitengevel. De lamellen en het overstek houden de directe zoninval tegen. Binnen hebben medewerkers hun werkplek in het hart van het gebouw. Op elke werkplek kijk je dankzij dubbel hoge vides en daklichten met veel daglicht uit over de twee ‘labvleugels’. Het maakt optisch en functioneel bovendien één geheel van de kantoorruimten, laboratoria en klantruimten. Het interieur en exterieur lopen in elkaar over. Binnen komen Arpa-, Trespa- en Westag materialen terug in de afwerking van meubels, deuren en wanden. Samen met Trespa ontwikkelden we daarvoor nieuwe patronen. Bovendien komt het huidpatroon van de buitengevel binnen terug in gerecycled vilt. In de muren komen geïntegreerde magnetische whiteboards van Homapal. En in een deel van het meubilair zijn draadloze opladers van Formica verwerkt.
Bedrijfscommunity
Of je nu in de laboratoria bent of in de kantoorruimten, je voelt je overal op de werkvloer met iedereen verbonden. Afdelingen en werkplekken liggen op loopafstand van elkaar. Daardoor voel je snel dat je deel uitmaakt van een hechte R&D- en bedrijfsgemeenschap. Het lichte- en open kantoorlandschap stimuleert de onderlinge samenwerking en kennissynergie. Dankzij een ‘lineaire opzet’ is uitbreiding van het gebouw relatief gemakkelijk. En is NEMHO voorbereid op bedrijfsgroei.
Gezond werkklimaat
Het gebruik van lichte kleuren in combinatie met houten elementen - voor onder meer de binnenpuien – zorgt voor een rustige werksfeer. In onze optiek is het voor een gezond werkklimaat in R&D-gebouwen belangrijk om kantoorwerkplekken en laboratoria ruimtelijk van elkaar te scheiden, maar visueel te verbinden. Die filosofie hebben we ook toegepast in het gebouwontwerp voor NEMHO. Bovendien hebben we veel aandacht besteed aan groenvoorzieningen in- en om het gebouw. Daarmee krijgt de R&D-locatie van Broadview Holding in potentie het karakter van een campus. Een plek waar medewerkers, klanten en stakeholders graag naar toe komen voor R&D-samenwerking, co-creatie en inspiratie.
Stel jezelf kort voor! Dan weet het betreffende bedrijf wie hun model gedownload heeft.
Wil je niet bij elke download jouw gegevens in hoeven voeren?
Klik dan hier om in te loggen
.
Heb je nog geen account?
Maak dan hier een gratis account aan
.
Voornaam
Achternaam
E-mailadres
Downloaden
Wanneer je modellen downloadt op Architectenweb.nl worden relevante gegevens van jou – zoals jouw naam en e-mailadres – met het betreffende bedrijf gedeeld. Meer hierover lees je in ons
privacybeleid
.
Locatie
Trefwoorden
limburg
kantoren
gevel
onderzoek
r&d
weert
trespa
broekbakema
broadview
labs
laboratorium
Broekbakema
Neem contact op
Projectdata
Staat van realisatie
Voltooid
Start ontwerpproces
2017
Start bouw
2019
Oplevering
2020
Ingebruikname
2020
Plaats
Weert
Bruto m
2
3500
Meewerkende partijen
Architect
Broekbakema
Projectarchitect
Erik van Eck
Ontwerpteam
Marieke Grimbergen, Tessa Barendrecht, Sandra Sanchez de la Garza, Bouke den Ouden
Opdrachtgever
Broadview Holding
Aannemer
BAM Bouw & Techniek
Constructeur
Adviesbureau Tielemans B.V.
Adviseurs installaties E & W
Kuijpers
Fotograaf
Norbert van Onna
Projectmanagement
Brink Management & Advies bv
Adviseur bouwfysica
Deerns
Leveranciers
Overig
Refelt,
Forbo Flooring
,
Knauf B.V.
, Westag & Getalit AG, Interior Glassolutions,
Metadecor
,
Forster Nederland N.V.
,
Duracryl Global Flooring BV
, homapal,
Tarkett BV
,
Saint-Gobain Ecophon
, BUVA, Formica BV,
LEOXX
, Trespa, Veteka
Neem contact op met
Broekbakema
Je bent momenteel niet ingelogd. Hierdoor is het alleen mogelijk om meer informatie per e-mail op te vragen. Wil je liever gebeld worden of documentatie per post ontvangen?
Klik dan hier om in te loggen
.
Heb je nog geen account?
Maak dan hier een gratis account aan
.
Voornaam
Achternaam
E-mailadres
Opmerkingen
Bij iedere aanvraag worden relevante gegevens van jou gedeeld met het betreffende bedrijf. Meer hierover lees je in ons
privacybeleid
.
Ja, denk met me mee rond de
materialisering van mijn project
Meer projecten van Broekbakema
Portiersloge: groene entree op de Byondis Campus
Broekbakema
dsm-firmenich hoofdkantoor
Broekbakema
Ashram college Alphen, een school met een hart!
Broekbakema
Omnia: gebouw voor dialoog
Broekbakema
Canon Production Printing HQ
Broekbakema
Ashram College Nieuwkoop
Broekbakema
Sabic Technology Center
Broekbakema
DSM Materialencentrum
Broekbakema
IKC De Bollenstreek
Broekbakema
Brightlands Chemelot Campus Geleen
Broekbakema
Trinseo HQ
Broekbakema
Wees- en oudeliedenhuis
Broekbakema
Woonzorgboerderij Nooitgedacht
Broekbakema
Energy Academy Europe
Broekbakema
Gebouw 24: tijdelijk restaurant
Broekbakema
De Kuyper Royal Distillers
Broekbakema
SKO Kindercentrum Vuur en Vlam
Broekbakema
Belasting & Douane museum
Broekbakema
Fioretticollege
Broekbakema
Synthon Fast Track Offices & Labs
Broekbakema
Dikhuidenvleugel Diergaarde Blijdorp
Broekbakema
Raadzaal Ede
Broekbakema
DSM/Lanxess Headquarters
Broekbakema
Hoofdgebouw GSG Leo Vroman
Broekbakema
Interieur woonhuis
Broekbakema
Beweegcentrum Windesheim
Broekbakema
Frederikkazerne
Broekbakema
Brugklasgebouw GSG Leo Vroman
Broekbakema
Herinrichting robecotoren
Broekbakema
Herinrichting robecotoren
Broekbakema
Gebouw X Hogeschool Windesheim
Broekbakema
Leerpark Presikhaaf
Broekbakema
Portiersloge Research Campus Chemelot
Broekbakema
RIKILT-VWA WUR-campus
Broekbakema
Publiekshal Gemeentehuis
Broekbakema
Twents Carmel College De Thij
Broekbakema
Kantoorvilla Brainpark
Broekbakema
CP Parenterals productiegebouw Organon Oss
Broekbakema
Twents Carmel College De Thij
Broekbakema
Vrijstaande woningen
Broekbakema
Gemeentehuis Raalte
Broekbakema
World Music & Dance Centre
Broekbakema
De Kuyper Royal Distillers
Broekbakema
Stedelijk Gymnasium Arnhem
Broekbakema
Galerie Erf Vlasblom
Broekbakema
Vrijstaande woningen Wormer
Broekbakema
Kantoorpaviljoen TGM Asten
Broekbakema
Het Buitenhof
Broekbakema
Combistations De President
Broekbakema
Casa CASLa
Broekbakema
Quarantainelab Plantenziektenkundige Dienst
Broekbakema
Europan Omega, Woonlandschap de Evenaar
Broekbakema
TEP Loungin
Broekbakema
Herinrichting Provinciehuis Noord-Holland
Broekbakema
Renovatie Roteb
Broekbakema
Trapjeswijk Holtenbroek
Broekbakema
Renovatie Roteb
Broekbakema
NAi Open Maquettedepot
Broekbakema
NAi Open Maquettedepot
Broekbakema
Corlaer College 2
Broekbakema
Kropman Installatietechniek, Nieuwerijn Utrecht
Broekbakema
Mainstreet Shell
Broekbakema
3550 HOJEL CITY CENTER FASE II, UTRECHT
Broekbakema
Centrale Bibliotheek Rotterdam
Broekbakema
Douane- en Belastingmuseum
Broekbakema
Ministerie van LNV
Broekbakema
Kropman Installatietechniek B.V.
Broekbakema
Esdal College
Broekbakema
Hojel City Center
Broekbakema
Plantenziektenkundige Dienst
Broekbakema
KLM : Operations Control Center Schiphol Oost
Broekbakema
Masterplan Shell Int. Exploration and Production
Broekbakema
Laboratorium RG Organon Oss
Broekbakema
Organon te Oss (gebouw KR)
Broekbakema
Portiersloge: groene entree op de Byondis Campus
Broekbakema
dsm-firmenich hoofdkantoor
Broekbakema
Ashram college Alphen, een school met een hart!
Broekbakema
Omnia: gebouw voor dialoog
Broekbakema
Canon Production Printing HQ
Broekbakema
Ashram College Nieuwkoop
Broekbakema
Sabic Technology Center
Broekbakema
DSM Materialencentrum
Broekbakema
IKC De Bollenstreek
Broekbakema
Brightlands Chemelot Campus Geleen
Broekbakema
Trinseo HQ
Broekbakema
Wees- en oudeliedenhuis
Broekbakema
Woonzorgboerderij Nooitgedacht
Broekbakema
Energy Academy Europe
Broekbakema
Gebouw 24: tijdelijk restaurant
Broekbakema
De Kuyper Royal Distillers
Broekbakema
SKO Kindercentrum Vuur en Vlam
Broekbakema
Belasting & Douane museum
Broekbakema
Fioretticollege
Broekbakema
Synthon Fast Track Offices & Labs
Broekbakema
Dikhuidenvleugel Diergaarde Blijdorp
Broekbakema
Raadzaal Ede
Broekbakema
DSM/Lanxess Headquarters
Broekbakema
Hoofdgebouw GSG Leo Vroman
Broekbakema
Interieur woonhuis
Broekbakema
Beweegcentrum Windesheim
Broekbakema
Frederikkazerne
Broekbakema
Brugklasgebouw GSG Leo Vroman
Broekbakema
Herinrichting robecotoren
Broekbakema
Herinrichting robecotoren
Broekbakema
Gebouw X Hogeschool Windesheim
Broekbakema
Leerpark Presikhaaf
Broekbakema
Portiersloge Research Campus Chemelot
Broekbakema
RIKILT-VWA WUR-campus
Broekbakema
Publiekshal Gemeentehuis
Broekbakema
Twents Carmel College De Thij
Broekbakema
Kantoorvilla Brainpark
Broekbakema
CP Parenterals productiegebouw Organon Oss
Broekbakema
Twents Carmel College De Thij
Broekbakema
Vrijstaande woningen
Broekbakema
Gemeentehuis Raalte
Broekbakema
World Music & Dance Centre
Broekbakema
De Kuyper Royal Distillers
Broekbakema
Stedelijk Gymnasium Arnhem
Broekbakema
Galerie Erf Vlasblom
Broekbakema
Vrijstaande woningen Wormer
Broekbakema
Kantoorpaviljoen TGM Asten
Broekbakema
Het Buitenhof
Broekbakema
Combistations De President
Broekbakema
Casa CASLa
Broekbakema
Quarantainelab Plantenziektenkundige Dienst
Broekbakema
Europan Omega, Woonlandschap de Evenaar
Broekbakema
TEP Loungin
Broekbakema
Herinrichting Provinciehuis Noord-Holland
Broekbakema
Renovatie Roteb
Broekbakema
Trapjeswijk Holtenbroek
Broekbakema
Renovatie Roteb
Broekbakema
NAi Open Maquettedepot
Broekbakema
NAi Open Maquettedepot
Broekbakema
Corlaer College 2
Broekbakema
Kropman Installatietechniek, Nieuwerijn Utrecht
Broekbakema
Mainstreet Shell
Broekbakema
3550 HOJEL CITY CENTER FASE II, UTRECHT
Broekbakema
Centrale Bibliotheek Rotterdam
Broekbakema
Douane- en Belastingmuseum
Broekbakema
Ministerie van LNV
Broekbakema
Kropman Installatietechniek B.V.
Broekbakema
Esdal College
Broekbakema
Hojel City Center
Broekbakema
Plantenziektenkundige Dienst
Broekbakema
KLM : Operations Control Center Schiphol Oost
Broekbakema
Masterplan Shell Int. Exploration and Production
Broekbakema
Laboratorium RG Organon Oss
Broekbakema
Organon te Oss (gebouw KR)
Broekbakema
Toon alles
Andere Projecten
Hoofdkantoor We Enable Climbers
Intermontage B.V.
Renovatie met respect voor oorspronkelijke ontwerp
Caparol
Center Parcs De Vossemeren
Alprokon
SPOT belooft Lelystad bruisend centrumgebied
GROOSMAN
ITO Toren Amsterdam
Van Wylick
Waalstaete Arnhem
opZoom architecten
Natuurlijk modern bedrijfsgebouw
HUIBERS bureau voor architectuur
Overbos Arnhem
opZoom architecten
parkeerdak Air Offices
Van Wylick
Øbro-Hallen
VELUX Commercial Benelux B.V.
The Valley
Van Wylick
Wonderwoods
Van Wylick
Ga naar het projecten-overzicht
Voor een optimale gebruikservaring plaatst Architectenweb functionele cookies. Wat de verschillende cookies precies doen leggen we uit in een
overzicht
. Cookies van social media kun je optioneel
aanzetten
.
Akkoord
Instellingen
Annuleren
OK
Sluiten
Doorgaan
Inloggen
Maak een gratis persoonlijk account aan
Feedback
Feedback
Wij horen graag jouw feedback. Laat je reactie achter en eventueel jouw e-mail adres.
Reactie
Verstuur